+ Lisa oma töö      

Otsid ehitajat "Üldehitus" valdkonnast?

Parima pakkumise ja teostaja leidmiseks lisa oma töö.

Paneelmaja ukse avause freesimine

ID 87992

424 vaatamist

Prindi

  • check Pakkumiste tegemine
    kuni 12.11.2023
  • check Võitja valik kuni
    19.11.2023
  • 3 Töö teostamine
    ja hinnang
Hanke lõpp: P, 12. november, 2023
Maakond: Harjumaa
Linn: Tallinn
Tööde algus: E, 20. november, 2023 (Soovituslik)
Tööde lõpp: E, 18. detsember, 2023 (Soovituslik)
Ehitusmaterjalid: Töö tegija poolt
Soovin pakkumisi: Summa kogu projektile

Töö sisu

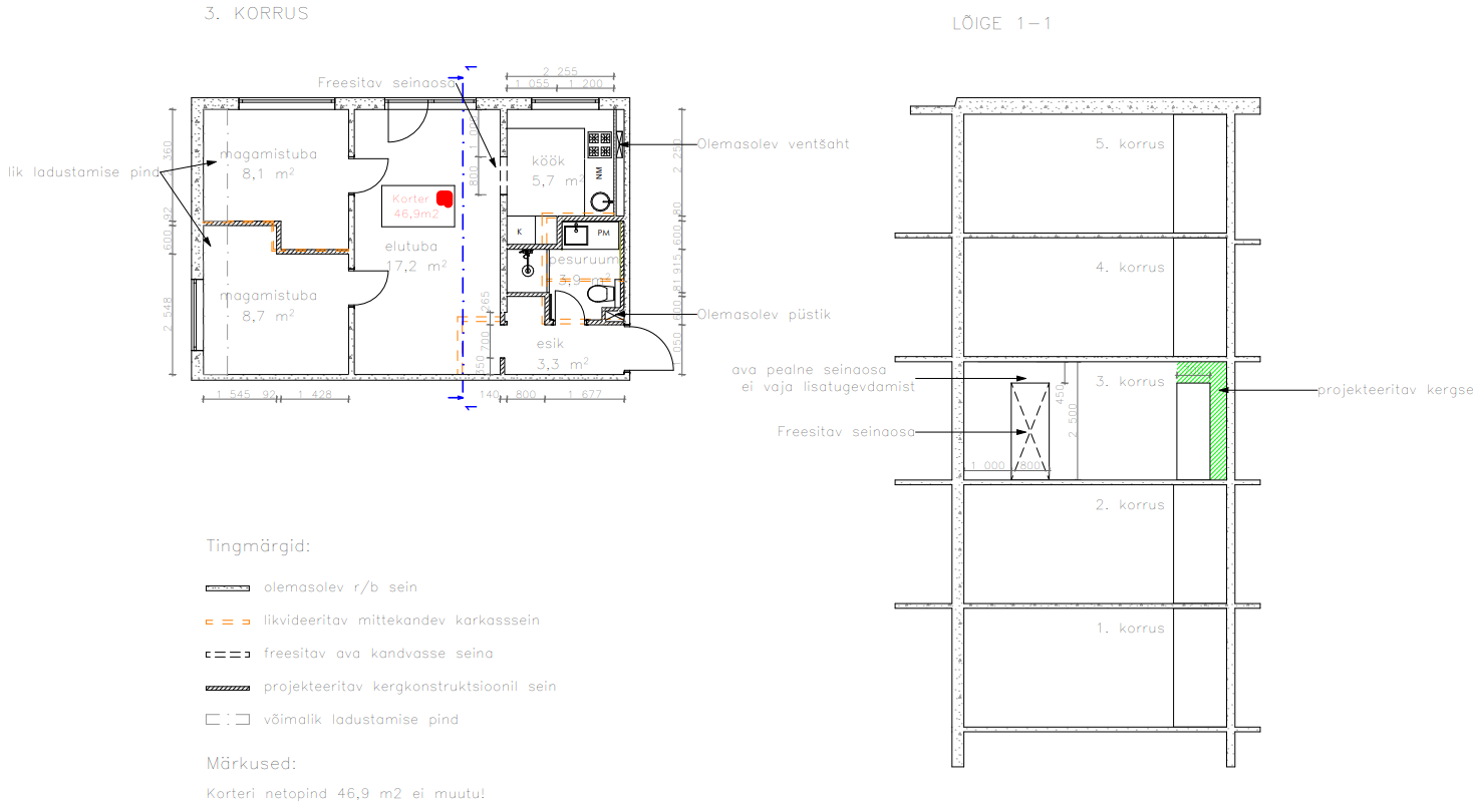
Viiekorruselise paneelmaja elutoa ja köögi vahele uue avause tekitamine ning jäätmete ära vedu. 800mm lai ja 2050mm kõrge. Konstruktiivne projekt menetluses.

Pildid, video ja failid

Hanke korraldaja: eraisik ID76806

Pakkumised

Pakkumisi kokku: 4

Ettevõte Summa Käibemaks Lisatud Vestlus
Kasutaja ikoon ID73564
Pakkuja profiil Väike nool paremale
700€ Sisaldab KM Sisaldab KM 09.11.2023 Vestlus (0)
Kasutaja ikoon ID59132
Pakkuja profiil Väike nool paremale
580€ KM lisandub KM lisandub 09.11.2023 Vestlus (0)
Kasutaja ikoon ID65371
Pakkuja profiil Väike nool paremale
500€ KM lisandub KM lisandub 10.11.2023 Vestlus (0)
Kasutaja ikoon ID77775
Pakkuja profiil Väike nool paremale
470€ Sisaldab KM Sisaldab KM 12.11.2023 Vestlus (0)

Pakkumise kirjeldus:

Hind on pakutud tööle.
Saame alustada kohe.
Lpg.C.H.

Küsimused hanke korraldajale

Hanke korraldajale ei ole veel küsimusi esitatud.

Lisa küsimus

Lisa küsimus

Minu pakkumine

Reeglid

Pakkumise kirjelduse väli on mõeldud pakkumise detailsemaks lahti kirjutamiseks. Pikema teksti mugavaks sisestamiseks klikkige kasti paremal ülaservas oleval ikoonil.
Pakkumist tehes on keelatud postitada enda kontaktandmeid (nimi, telefon, aadress jne). Me jälgime ja analüüsime pakkumisi, et vältida pettuseid ja reeglite rikkumisi.
Rikkumise puhul kasutajakonto blokeeritakse.

 

Teisi töid samas valdkonnas

Valdkonnas "Üldehitus" on 30 aktiivset tööd

Kuuri lammutus

Asukoht: Pärnumaa
Aega jäänud: 2p 19h
Tehtud pakkumisi: 6

Põrandakütte torustiku ja kollektori paigaldus.

Asukoht: Harjumaa, Kurkse
Aega jäänud: 15p 19h
Tehtud pakkumisi: 4

Vanemad teated:

Vaata kõiki

Sellel veebilehel kasutatakse küpsiseid. Kasutamist jätkates nõustute küpsiste kasutamisega.

Sulge
 
Minu pakkumine

Reeglid

Pakkumise kirjelduse väli on mõeldud pakkumise detailsemaks lahti kirjutamiseks. Pikema teksti mugavaks sisestamiseks klikkige kasti paremal ülaservas oleval ikoonil.
Pakkumist tehes on keelatud postitada enda kontaktandmeid (nimi, telefon, aadress jne). Me jälgime ja analüüsime pakkumisi, et vältida pettuseid ja reeglite rikkumisi.
Rikkumise puhul kasutajakonto blokeeritakse.