+ Lisa oma töö      

Otsid ehitajat "Üldehitus" valdkonnast?

Parima pakkumise ja teostaja leidmiseks lisa oma töö.

Garaaži ehitamine

ID 87951

862 vaatamist

Prindi

  • check Pakkumiste tegemine
    kuni 09.11.2023
  • check Võitja valik kuni
    16.11.2023
  • 3 Töö teostamine
    ja hinnang
Hanke lõpp: N, 9. november, 2023
Maakond: Harjumaa
Linn: Tallinn
Tööde algus: K, 22. november, 2023 (Soovituslik)
Tööde lõpp: K, 31. jaanuar, 2024 (Soovituslik)
Ehitusmaterjalid: Töö tellija poolt
Soovin pakkumisi: Summa kogu projektile

Töö sisu

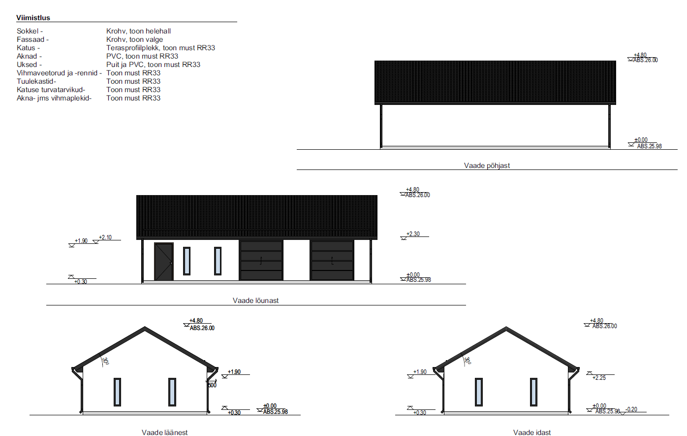
Sooviks saada pakkumist uue garaazi ehitamisele vastavalt projektile.

Pildid, video ja failid

Hanke korraldaja: eraisik ID78095

Pakkumised

Pakkumisi kokku: 7

Ettevõte Summa Käibemaks Lisatud Vestlus
Kasutaja ikoon ID70688
Pakkuja profiil Väike nool paremale
145 000€ KM lisandub KM lisandub 08.11.2023 Vestlus (0)

Pakkumise kirjeldus:

Tere!

See 91m2 garaazi ehituse hind. Kõikumine +-10% hinnast,sõltuvalt garaaziuste soovist.

Saame alustada suht kohe.

NB! Lisandub hange.ee tasu ühekordselt 5%+km

Lugupidamisega,

Erki

Kasutaja ikoon ID33806
Pakkuja profiil Väike nool paremale
61 730€ KM lisandub KM lisandub 08.11.2023 Vestlus (0)

Pakkumise kirjeldus:

Tere

Hinnapakkumine ainult tööle, ehitusmaterjalid töö tellija poolt, sisaldab:

-Vee ja kanalisatsiooni välistrassi ehitus liitumispunktist hooneni kuni 10 m;
-Elektri välistrassi ehitus liitumispunktist hooneni kuni 10 m;
-Vundamendi ehitus koos soojustatud põrandaplaadiga;
- 250mm kergplokk sise- ja välisseinte ehitus;
-Fermide paigaldus; ... Rohkem

Kasutaja ikoon ID62893
Pakkuja profiil Väike nool paremale
49 000€ KM lisandub KM lisandub 08.11.2023 Vestlus (0)

Pakkumise kirjeldus:

Tere,

Täpsem pakkumine edaspidi juba lepingus.

Jõudu

Kasutaja ikoon ID73462
Pakkuja profiil Väike nool paremale
36 500€ Ei ole KMKR Ei ole KMKR 09.11.2023 Vestlus (0)

Pakkumise kirjeldus:

Pakkumises ainult tööraha.
Vundamendist viimistluseni.

Arveldamine iga nädal tehtud tôö eest.

Parimat
E.

Kasutaja ikoon ID55277
Pakkuja profiil Väike nool paremale
73 000€ KM lisandub KM lisandub 09.11.2023 Vestlus (0)

Pakkumise kirjeldus:

Tere

Pakkumine koostatud vastavalt hane tingimustele.


Parimat

Kasutaja ikoon ID77207
Pakkuja profiil Väike nool paremale
70 000€ Sisaldab KM Sisaldab KM 09.11.2023 Vestlus (0)

Pakkumise kirjeldus:

pakkumine kogu projektile

Kasutaja ikoon ID39222
Pakkuja profiil Väike nool paremale
46 700€ KM lisandub KM lisandub 09.11.2023 Vestlus (0)

Pakkumise kirjeldus:

Vundament,seinad,aknad,väravad,fassaad,katus.Ilma lõppviimistluseta

Küsimused hanke korraldajale

Küsimus: private ID77867   08.11.2023 10:37
Tere !
Saan ikka õieti aru et garaazi ehituse materjalid tulevad töö tellija poolt nagu siin hanke teates kirjas on ?
Tervitades,
Mart

Teavita reeglite rikkumisest

Korraldaja vastus: 08.11.2023 10:47

Tere,

Jah, täpselt nii!

Teavita reeglite rikkumisest

Küsimus: private ID77974   08.11.2023 18:39
Tervist,
Sooviks natuke lisainfot. Mis plokist täpsemalt plaanis seinad laduda? Kas katus on fermidest? Katus on klassik klicksysteemi plekk või valts?
Milline vundament? Kas auk on olemas? Kuidas kommunikatsioonidega lood, kas need ka vaja teha jnejne? Kahe pildi põhjal keeruline adekvaatne pakkumine teha, mingit pikemat projekti või seletuskirja pole?
Edu hankel,
Karl

Teavita reeglite rikkumisest

Korraldaja vastus:
Hanke korraldaja ei ole küsimusele veel vastanud

Küsimus: private ID70955   08.11.2023 23:08
Siin on nii palju lahtist infot, kas oleks võimalik saada rohkem infot projekti kohta?

Teavita reeglite rikkumisest

Korraldaja vastus:
Hanke korraldaja ei ole küsimusele veel vastanud

Lisa küsimus

Lisa küsimus

Minu pakkumine

Reeglid

Pakkumise kirjelduse väli on mõeldud pakkumise detailsemaks lahti kirjutamiseks. Pikema teksti mugavaks sisestamiseks klikkige kasti paremal ülaservas oleval ikoonil.
Pakkumist tehes on keelatud postitada enda kontaktandmeid (nimi, telefon, aadress jne). Me jälgime ja analüüsime pakkumisi, et vältida pettuseid ja reeglite rikkumisi.
Rikkumise puhul kasutajakonto blokeeritakse.

 

Teisi töid samas valdkonnas

Valdkonnas "Üldehitus" on 30 aktiivset tööd

Kuuri lammutus

Asukoht: Pärnumaa
Aega jäänud: 2p 20h
Tehtud pakkumisi: 6

Põrandakütte torustiku ja kollektori paigaldus.

Asukoht: Harjumaa, Kurkse
Aega jäänud: 15p 20h
Tehtud pakkumisi: 4

Vanemad teated:

Vaata kõiki

Sellel veebilehel kasutatakse küpsiseid. Kasutamist jätkates nõustute küpsiste kasutamisega.

Sulge
 
Minu pakkumine

Reeglid

Pakkumise kirjelduse väli on mõeldud pakkumise detailsemaks lahti kirjutamiseks. Pikema teksti mugavaks sisestamiseks klikkige kasti paremal ülaservas oleval ikoonil.
Pakkumist tehes on keelatud postitada enda kontaktandmeid (nimi, telefon, aadress jne). Me jälgime ja analüüsime pakkumisi, et vältida pettuseid ja reeglite rikkumisi.
Rikkumise puhul kasutajakonto blokeeritakse.