+ Lisa oma töö      

Otsid ehitajat "Põrandatööd" valdkonnast?

Parima pakkumise ja teostaja leidmiseks lisa oma töö.

Põranda tasandamine

ID 87929

558 vaatamist

Prindi

  • check Pakkumiste tegemine
    kuni 14.11.2023
  • check Võitja valik kuni
    21.11.2023
  • 3 Töö teostamine
    ja hinnang
Hanke lõpp: T, 14. november, 2023
Maakond: Võrumaa
Muu asula: Sika
Tööde algus: E, 13. november, 2023 (Soovituslik)
Tööde lõpp: R, 17. november, 2023 (Soovituslik)
Ehitusmaterjalid: Töö tellija poolt
Soovin pakkumisi: Summa kogu projektile

Töö sisu

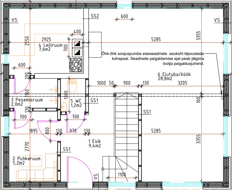
Soovin pakkumist põranda tasandamiseks isevalguva seguga esimesel korrusel terves majas(v.a duširuum). Leiliruumis vaja teha ka kalle ruumi keskele.

Eelnevalt on betooni sisse freesitud sooned põrandakütte torude jaoks(toru on sees ,ning sooned ka juba täis valatud)
Seguna kasutaks Mira x-plan ning sisse paneks ka Mira uninet armeerimisvõrgu.
Max kihi paksus mida võimalik valada 10mm.

Materjalid ostan ise.

Pildid, video ja failid

Hanke korraldaja: eraisik ID67049

Pakkumised

Pakkumisi kokku: 3

Ettevõte Summa Käibemaks Lisatud Vestlus
Kasutaja ikoon ID65371
Pakkuja profiil Väike nool paremale
600€ KM lisandub KM lisandub 07.11.2023 Vestlus (0)
Kasutaja ikoon ID67766
Pakkuja profiil Väike nool paremale
500€ Ei ole KMKR Ei ole KMKR 12.11.2023 Vestlus (0)

Pakkumise kirjeldus:

Hind sisaldab põranda tasandamist Mira X-planida. Ja vajadusel ka ettevalmistus töid. Parimat soovides

Kasutaja ikoon ID77775
Pakkuja profiil Väike nool paremale
1 540€ Sisaldab KM Sisaldab KM 14.11.2023 Vestlus (0)

Pakkumise kirjeldus:

Hind on pakutud tööle.
Ettemaksu soovin et vajadusel jooksvalt tekkinud kulud saaks kohe tasutud.
Tööle saame alustada kohe kui teile sobib

Küsimused hanke korraldajale

Küsimus: private ID67766   10.11.2023 07:39
Tere .Kas eeltöö teete ise kõik ära .Meie teha on ainult valamine, Kõik on hermeetiline ja põrandale on tolmutõke pandud .Või see kõik tuleb teha meil .Parimat soovides

Teavita reeglite rikkumisest

Korraldaja vastus:
Hanke korraldaja ei ole küsimusele veel vastanud

Küsimus: private ID29814   14.11.2023 13:27
Tere, mira X-planil kiud sees. Pole võrgu vajadust.

Teavita reeglite rikkumisest

Korraldaja vastus:
Hanke korraldaja ei ole küsimusele veel vastanud

Lisa küsimus

Lisa küsimus

Minu pakkumine

Reeglid

Pakkumise kirjelduse väli on mõeldud pakkumise detailsemaks lahti kirjutamiseks. Pikema teksti mugavaks sisestamiseks klikkige kasti paremal ülaservas oleval ikoonil.
Pakkumist tehes on keelatud postitada enda kontaktandmeid (nimi, telefon, aadress jne). Me jälgime ja analüüsime pakkumisi, et vältida pettuseid ja reeglite rikkumisi.
Rikkumise puhul kasutajakonto blokeeritakse.

 

Teisi töid samas valdkonnas

Valdkonnas "Põrandatööd" on 2 aktiivset tööd

Talumaja põrandate valamine/ehitus koos küttetorustiku paigaldusega

Asukoht: Raplamaa, Purila
Aega jäänud: 16p 19h
Tehtud pakkumisi: 2

Põrandakütte paigaldus ja põrandavalu (kips või betoon)

Asukoht: Saaremaa, Muhu vald
Aega jäänud: 19h 17 min
Tehtud pakkumisi: 1

Vanemad teated:

Vaata kõiki

Sellel veebilehel kasutatakse küpsiseid. Kasutamist jätkates nõustute küpsiste kasutamisega.

Sulge
 
Minu pakkumine

Reeglid

Pakkumise kirjelduse väli on mõeldud pakkumise detailsemaks lahti kirjutamiseks. Pikema teksti mugavaks sisestamiseks klikkige kasti paremal ülaservas oleval ikoonil.
Pakkumist tehes on keelatud postitada enda kontaktandmeid (nimi, telefon, aadress jne). Me jälgime ja analüüsime pakkumisi, et vältida pettuseid ja reeglite rikkumisi.
Rikkumise puhul kasutajakonto blokeeritakse.