+ Lisa oma töö      

Otsid ehitajat "Müüritööd" valdkonnast?

Parima pakkumise ja teostaja leidmiseks lisa oma töö.

Bauroc kivimüüri ladumine

ID 87900

593 vaatamist

Prindi

  • check Pakkumiste tegemine
    kuni 09.11.2023
  • check Võitja valik kuni
    16.11.2023
  • 3 Töö teostamine
    ja hinnang
Hanke lõpp: N, 9. november, 2023
Maakond: Võrumaa
Linn: Võru
Tööde algus: E, 01. aprill, 2024 (Soovituslik)
Tööde lõpp: R, 31. mai, 2024 (Soovituslik)
Ehitusmaterjalid: Töö tellija poolt
Soovin pakkumisi: Summa kogu projektile

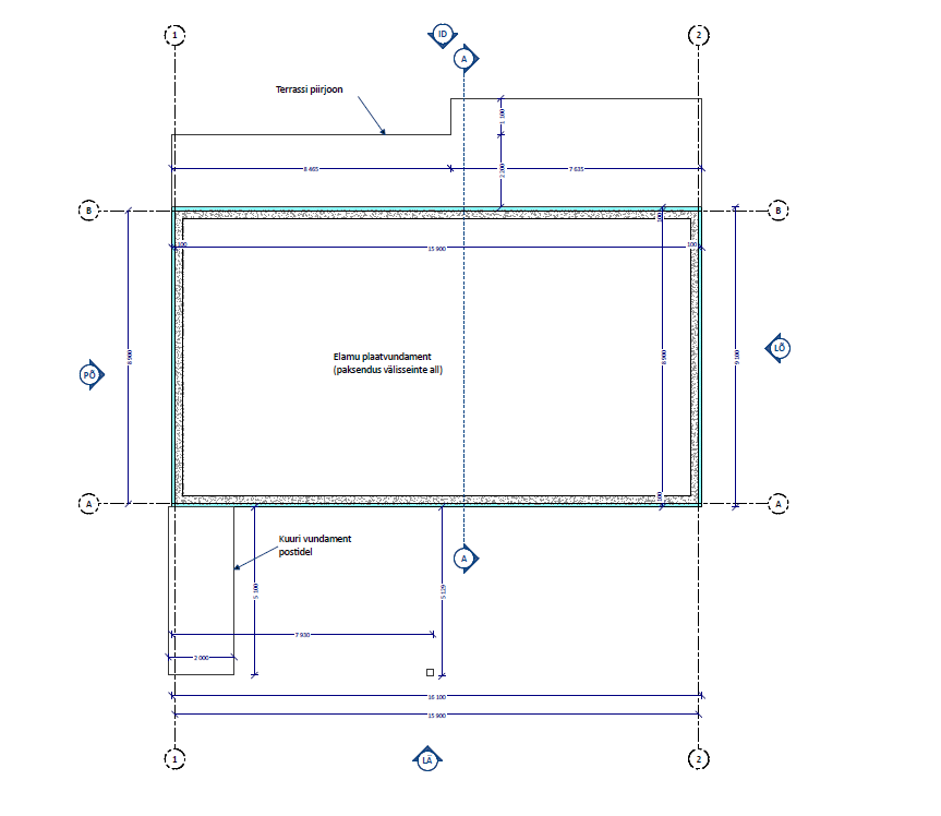
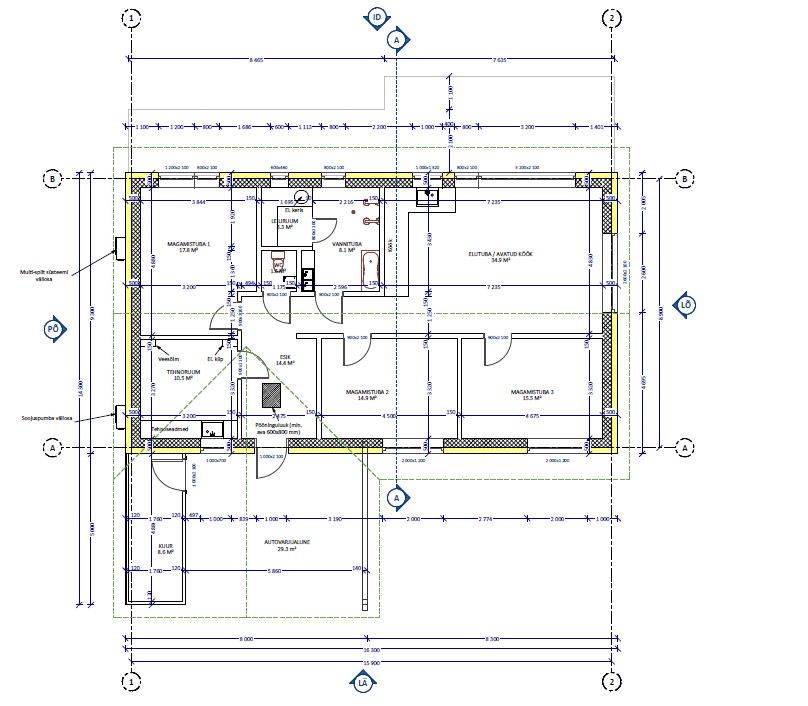
Töö sisu

Vajalik laduda plaatvundamendile kivimüür välis + siseseinad. Ühekorruseline hoone suletud netopinnaga 131,3m2.
Välisseinad tulevad Bauroc Ecoterm 300. Siseseinad Bauroc Element 150.
Mõõdud on näha kaasasolevatest piltidest. Elutoa ja magamistoa aknad on põrandast laeni (silluseni).
Kogu materjal tellija poolt.

Pildid, video ja failid

Hanke korraldaja: eraisik ID75524

Pakkumised

Pakkumisi kokku: 3

Ettevõte Summa Käibemaks Lisatud Vestlus
Kasutaja ikoon ID75260
Pakkuja profiil Väike nool paremale
5 000€ KM lisandub KM lisandub 07.11.2023 Vestlus (0)
Kasutaja ikoon ID77839
Pakkuja profiil Väike nool paremale
4 800€ Sisaldab KM Sisaldab KM 09.11.2023 Vestlus (0)

Pakkumise kirjeldus:

Tere päevast!

Meil on suur kogemus kivitööde valdkonnas ja oleme valmis pakkuma teile kvaliteetset ja kiiret tööd. Alustada saame alustada esimesel võimalusel. Oleme valmis tooma platsile 2-4 inimest, et tagada töö sujuvus ja kiirus.

Palun võtke meiegaa ühendust, kontakt andmeid saate leida meie profillis.

Kasutaja ikoon ID43565
Pakkuja profiil Väike nool paremale
4 200€ KM lisandub KM lisandub 09.11.2023 Vestlus (0)

Pakkumise kirjeldus:

Töö kiire ja korralik.
Parimat
Riivo

Küsimused hanke korraldajale

Hanke korraldajale ei ole veel küsimusi esitatud.

Lisa küsimus

Lisa küsimus

Minu pakkumine

Reeglid

Pakkumise kirjelduse väli on mõeldud pakkumise detailsemaks lahti kirjutamiseks. Pikema teksti mugavaks sisestamiseks klikkige kasti paremal ülaservas oleval ikoonil.
Pakkumist tehes on keelatud postitada enda kontaktandmeid (nimi, telefon, aadress jne). Me jälgime ja analüüsime pakkumisi, et vältida pettuseid ja reeglite rikkumisi.
Rikkumise puhul kasutajakonto blokeeritakse.

 

Vanemad teated:

Vaata kõiki

Sellel veebilehel kasutatakse küpsiseid. Kasutamist jätkates nõustute küpsiste kasutamisega.

Sulge
 
Minu pakkumine

Reeglid

Pakkumise kirjelduse väli on mõeldud pakkumise detailsemaks lahti kirjutamiseks. Pikema teksti mugavaks sisestamiseks klikkige kasti paremal ülaservas oleval ikoonil.
Pakkumist tehes on keelatud postitada enda kontaktandmeid (nimi, telefon, aadress jne). Me jälgime ja analüüsime pakkumisi, et vältida pettuseid ja reeglite rikkumisi.
Rikkumise puhul kasutajakonto blokeeritakse.