+ Lisa oma töö      

Otsid ehitajat "Üldehitus" valdkonnast?

Parima pakkumise ja teostaja leidmiseks lisa oma töö.

lintvindamendi ehitus

ID 87898

735 vaatamist

Prindi

  • check Pakkumiste tegemine
    kuni 13.11.2023
  • check Võitja valik kuni
    20.11.2023
  • 3 Töö teostamine
    ja hinnang
Hanke lõpp: E, 13. november, 2023
Maakond: Tartumaa
Muu asula: Virulase
Tööde algus: E, 13. november, 2023 (Soovituslik)
Tööde lõpp: P, 31. detsember, 2023 (Soovituslik)
Ehitusmaterjalid: Töö tellija poolt
Soovin pakkumisi: Summa kogu projektile

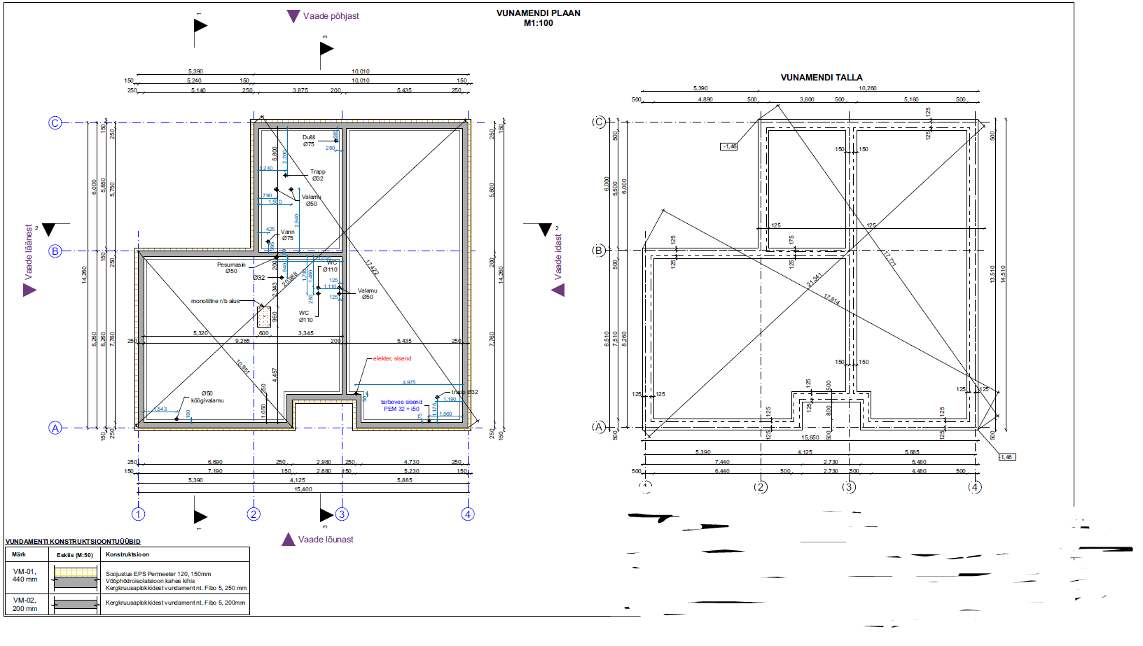
Töö sisu

- vana palkmaja lahti võtta, kuna tahan mõned palgid taaskasutada uues majas
- vana palkmaja vundamendi laialilõhkumine
- vundamendi süvendi kaevamine
- vormest mooduli paigaldus + betoneerimine
- fibo vundamendi müüride ladumine 77 jm
- EPS isolatsiooni paigaldus ja võõphüdroisolatsioon kahes kihis
- vundamendi tagasitäide

Kokkuvõttes peab olema 1 hunnik palkidega, 1 hunnik kividega ja liivaga täidetud uus vundament.

Töö tahaks valmis sellel aastal kuni külma tulekust

Utiliseerida midagi ei ole vaja.
Piltidel olev katus juba lammutatud.

Pildid, video ja failid

Hanke korraldaja: eraisik ID56806

Pakkumised

Pakkumisi kokku: 6

Ettevõte Summa Käibemaks Lisatud Vestlus
Kasutaja ikoon ID76068
Pakkuja profiil Väike nool paremale
15 000€ Ei ole KMKR Ei ole KMKR 07.11.2023 Vestlus (0)
Kasutaja ikoon ID77490
Pakkuja profiil Väike nool paremale
14 000€ KM lisandub KM lisandub 10.11.2023 Vestlus (0)
Kasutaja ikoon ID38240
Pakkuja profiil Väike nool paremale
12 800€ KM lisandub KM lisandub 10.11.2023 Vestlus (0)

Pakkumise kirjeldus:

Tere!

Pakkumine sisaldab vastavalt hanke sisule tööde teostamiseks vajaliku inimtööjõudu ja vajaliku kopatööd. Vajadusel paigaldame kommunikatsioonidele läbiviigud.

Kasutaja ikoon ID61081
Pakkuja profiil Väike nool paremale
11 000€ KM lisandub KM lisandub 11.11.2023 Vestlus (0)
Kasutaja ikoon ID67766
Pakkuja profiil Väike nool paremale
9 500€ Ei ole KMKR Ei ole KMKR 12.11.2023 Vestlus (0)

Pakkumise kirjeldus:

Hind sisaldab vana palkmaja lammutust koos vundamendiga ja uue lint vundamendi ehitust koos hüdroisolatsiooni ja eps soojustuse paigaldusega. Ja lõpuks vundamendi tagasitäide .Parimat soovides

Kasutaja ikoon ID38400
Pakkuja profiil Väike nool paremale
12 800€ Ei ole KMKR Ei ole KMKR 13.11.2023 Vestlus (0)

Pakkumise kirjeldus:

Hankes nimetatud tööd. Oleme Tartu ettevõte. Tasuda saab arvega. Käibemaksu ei lisandu.

Küsimused hanke korraldajale

Küsimus: private ID67766   08.11.2023 17:13
Tere .Palke soovite siis saada kätte tervena .Mis vundament on majal all .Parimat soovides

Teavita reeglite rikkumisest

Korraldaja vastus: 09.11.2023 14:40

Tere, umbes pool tahan tervena kätte saada, mis ei ole mädenenud ja näevad hästi välja.
Vundament tehtud maakividest. Maja ehitatud aastas 1937.

Teavita reeglite rikkumisest

Küsimus: private ID72543   10.11.2023 11:03
Tere,
Kirjas on, et töö sisuks on ka vundamendi tagasitäide.
Seoses sellega on küsimus, kes paigaldab vee ja kanalisatsiooni torustiku, kui see tarvis on?

Teavita reeglite rikkumisest

Korraldaja vastus: 13.11.2023 09:32

Tere, piisab jääda läbiviigud

Teavita reeglite rikkumisest

Küsimus: private ID38464   13.11.2023 08:47
Tere, kivid võib täiteks kasutada või maa sisse kaevata?

Teavita reeglite rikkumisest

Korraldaja vastus: 13.11.2023 09:33

Tere, tegelikult võib küll

Teavita reeglite rikkumisest

Lisa küsimus

Lisa küsimus

Minu pakkumine

Reeglid

Pakkumise kirjelduse väli on mõeldud pakkumise detailsemaks lahti kirjutamiseks. Pikema teksti mugavaks sisestamiseks klikkige kasti paremal ülaservas oleval ikoonil.
Pakkumist tehes on keelatud postitada enda kontaktandmeid (nimi, telefon, aadress jne). Me jälgime ja analüüsime pakkumisi, et vältida pettuseid ja reeglite rikkumisi.
Rikkumise puhul kasutajakonto blokeeritakse.

 

Teisi töid samas valdkonnas

Valdkonnas "Üldehitus" on 31 aktiivset tööd

Maja värvimine

Asukoht: Harjumaa, Saue
Aega jäänud: 2p 2h
Tehtud pakkumisi: 6

Terassi õlitamine, 13,7 ruutu

Asukoht: Harjumaa, Saue
Aega jäänud: 5p 2h
Tehtud pakkumisi: 5

Vanemad teated:

Vaata kõiki

Sellel veebilehel kasutatakse küpsiseid. Kasutamist jätkates nõustute küpsiste kasutamisega.

Sulge
 
Minu pakkumine

Reeglid

Pakkumise kirjelduse väli on mõeldud pakkumise detailsemaks lahti kirjutamiseks. Pikema teksti mugavaks sisestamiseks klikkige kasti paremal ülaservas oleval ikoonil.
Pakkumist tehes on keelatud postitada enda kontaktandmeid (nimi, telefon, aadress jne). Me jälgime ja analüüsime pakkumisi, et vältida pettuseid ja reeglite rikkumisi.
Rikkumise puhul kasutajakonto blokeeritakse.