+ Lisa oma töö      

Otsid ehitajat "Siseviimistlustööd" valdkonnast?

Parima pakkumise ja teostaja leidmiseks lisa oma töö.

Krohvitöö MP-75

ID 87848

829 vaatamist

Prindi

  • check Pakkumiste tegemine
    kuni 07.11.2023
  • check Võitja valik kuni
    14.11.2023
  • 3 Töö teostamine
    ja hinnang
Hanke lõpp: T, 7. november, 2023
Maakond: Raplamaa
Muu asula: Urge
Tööde algus: E, 04. detsember, 2023 (Soovituslik)
Tööde lõpp: E, 11. detsember, 2023 (Soovituslik)
Ehitusmaterjalid: Töö tegija poolt
Soovin pakkumisi: Summa kogu projektile

Töö sisu

Krohvida eramu siseseinad MP-75ga, lisaks armeerida. Ilma paledeta
Aluspind: Bauroc
Seina kõrgus: 3 m
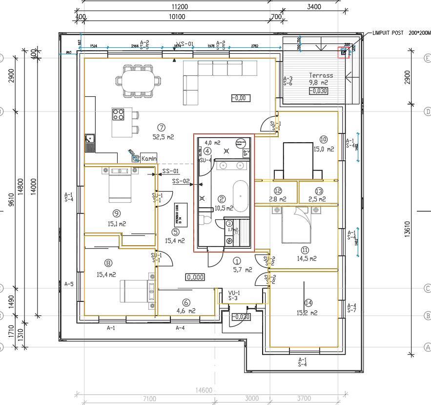
Seinte pind: ca 399 m2 , Avad maha arvestada, siis 342 m2.

Lisatud põhiplaanist screen. Krohvitavad pinnad märgitud kollase joonega

Pildid, video ja failid

Hanke korraldaja: eraisik ID50626

Pakkumised

Pakkumisi kokku: 15

Ettevõte Summa Käibemaks Lisatud Vestlus
Kasutaja ikoon ID77552
Pakkuja profiil Väike nool paremale
4 200€ Sisaldab KM Sisaldab KM 05.11.2023 Vestlus (0)

Pakkumise kirjeldus:

Tere. 3500+km.

Kasutaja ikoon ID65125
Pakkuja profiil Väike nool paremale
4 446€ Ei ole KMKR Ei ole KMKR 05.11.2023 Vestlus (0)

Pakkumise kirjeldus:

Tere
Meie pakkumine ainult tööle
Tervitades
Nb vaadake ka meie pilte tehtud töödest

Kasutaja ikoon ID44917
Pakkuja profiil Väike nool paremale
5 200€ Ei ole KMKR Ei ole KMKR 05.11.2023 Vestlus (0)
Kasutaja ikoon ID57179
Pakkuja profiil Väike nool paremale
5 250€ Sisaldab KM Sisaldab KM 05.11.2023 Vestlus (0)
Kasutaja ikoon ID72794
Pakkuja profiil Väike nool paremale
3 950€ Ei ole KMKR Ei ole KMKR 05.11.2023 Vestlus (2)

Pakkumise kirjeldus:

Tere

Pakkumine tehtud kogu tööle koos materjaliga.

Kruntimine
Krohvimine koos armeerimisega.

Koostöö jätkuks ka maalritööde teostamise võimalus.

Parimat!

Kasutaja ikoon ID44954
Pakkuja profiil Väike nool paremale
6 500€ KM lisandub KM lisandub 06.11.2023 Vestlus (0)

Pakkumise kirjeldus:

Tere!

Meie pakkumine vastavalt hankes esitatud mahule (342 m2) ja infole. Ei sisalda palede tegemist, võimalik eraldi kokku leppida.

Sisaldab:

1. Eeltööd- avatäidete katmised, põrandate katmine jms.
2. Aluspinna ettevalmistus ja kruntimine (Knauf Stuckprimer)
3. Krohvimine MP 75, 2x kihis koos armeeringuga (latipind)
4. Koristus, jäätme ... Rohkem

Kasutaja ikoon ID78064
Pakkuja profiil Väike nool paremale
4 100€ Ei ole KMKR Ei ole KMKR 06.11.2023 Vestlus (2)

Pakkumise kirjeldus:

Aluskrunt Knauf Stuck-Primer ,Klaaskiudvõrk CT Gewebe 650 Caparol ,Krohv Knauf MP75

Kasutaja ikoon ID65371
Pakkuja profiil Väike nool paremale
3 600€ KM lisandub KM lisandub 06.11.2023 Vestlus (0)
Kasutaja ikoon ID78070
Pakkuja profiil Väike nool paremale
4 550€ KM lisandub KM lisandub 06.11.2023 Vestlus (0)

Pakkumise kirjeldus:

Pakume krohvimistöid materjalidega: Knauf mp75,krunt, võrk. Töö kvaliteet vastab RYL2012 klass 2 standardile. Hind sisaldab kihti, mis ei ületa 10 mm. kui seinad on kõverad, lisatakse hinnale koefitsient 1,3%.

Kasutaja ikoon ID73822
Pakkuja profiil Väike nool paremale
4 500€ KM lisandub KM lisandub 07.11.2023 Vestlus (0)
Kasutaja ikoon ID50979
Pakkuja profiil Väike nool paremale
9 000€ Ei ole KMKR Ei ole KMKR 07.11.2023 Vestlus (0)

Pakkumise kirjeldus:

Leping,kvaliteet,garantii 5aastat,ettemaksu ei soovi,km.ei lisandu.Töö proffidelt selle aastajooksul.Parimat,Margus

Kasutaja ikoon ID51505
Pakkuja profiil Väike nool paremale
5 500€ KM lisandub KM lisandub 07.11.2023 Vestlus (0)

Pakkumise kirjeldus:

Pakkumine teie kirjeldusele, lisandub hange.ee tasu

Kasutaja ikoon ID52737
Pakkuja profiil Väike nool paremale
5 000€ KM lisandub KM lisandub 07.11.2023 Vestlus (0)

Pakkumise kirjeldus:

Tere
Hinnapakkumine on tehtud vaatavalt hankes kirjeldatud tööde ja mahtude põhjal.
Hind sisaldab tööd ja materjale.
Töid teostavad oma ala profesionaalid
Täpsem info vestluses.

Parimat
O.L

Kasutaja ikoon ID73462
Pakkuja profiil Väike nool paremale
4 460€ Ei ole KMKR Ei ole KMKR 07.11.2023 Vestlus (0)

Pakkumise kirjeldus:

Pakkumises

Kruntimine knauf kipskrohvi krundiga.
Mp75 võrguga.

Kui on huvi võime lõpuni ära viimistleda.

Esimene arve kohe kui materjal on kohal ja muud arved nädala lõpus tehtud töö eest.

Parimat
E.

Kasutaja ikoon ID56408
Pakkuja profiil Väike nool paremale
4 450€ Ei ole KMKR Ei ole KMKR 07.11.2023 Vestlus (0)

Pakkumise kirjeldus:

Tere,

Pakkumine Teie hankele
Krohvimine+võrk

Lugupidamisega

Küsimused hanke korraldajale

Küsimus: private ID10919   04.11.2023 22:47
Tere. Miks krohvi alla? Seinad nii viltu?Lgp.

Teavita reeglite rikkumisest

Korraldaja vastus: 05.11.2023 08:10

Tere! Mis alternatiivi pakud?

Teavita reeglite rikkumisest

Küsimus: private ID44436   05.11.2023 20:55
Tere.

Kui seinad on sirged siis lisakrohvimist pole vaja. Armeering koos aluspahtliga ja pärast juba peenpahtel .
Lugupidamisega

Teavita reeglite rikkumisest

Korraldaja vastus:
Hanke korraldaja ei ole küsimusele veel vastanud

Küsimus: private ID77552   05.11.2023 21:42
Добрый вечер. Не согласен с предыдущим специалистом. Чтобы достичь шпатлевкой такого же эффекта как от штукатурки, нужно 2 слоя базовой шпатлевки на ровных стенах + потом малярные работы финишными шпатлевками. Это дольше по работе, и дороже по материалу.

Teavita reeglite rikkumisest

Korraldaja vastus:
Hanke korraldaja ei ole küsimusele veel vastanud

Küsimus: private ID65371   07.11.2023 17:05
pahtliga aerokit ei saa viimistleda krohv 1 korda pahtel kruntt ja 2 värvi

Teavita reeglite rikkumisest

Korraldaja vastus:
Hanke korraldaja ei ole küsimusele veel vastanud

Lisa küsimus

Lisa küsimus

Minu pakkumine

Reeglid

Pakkumise kirjelduse väli on mõeldud pakkumise detailsemaks lahti kirjutamiseks. Pikema teksti mugavaks sisestamiseks klikkige kasti paremal ülaservas oleval ikoonil.
Pakkumist tehes on keelatud postitada enda kontaktandmeid (nimi, telefon, aadress jne). Me jälgime ja analüüsime pakkumisi, et vältida pettuseid ja reeglite rikkumisi.
Rikkumise puhul kasutajakonto blokeeritakse.

 

Teisi töid samas valdkonnas

Valdkonnas "Siseviimistlustööd" on 20 aktiivset tööd

Seinte pahteldus ja värvimine

Asukoht: Harjumaa, Türisalu
Aega jäänud: 2p 21h
Tehtud pakkumisi: 7

Korteri seinte ja lagede värvimine, osaline pahteldamine

Asukoht: Harjumaa, Tallinn
Aega jäänud: 21h 17 min
Tehtud pakkumisi: 5

Vanemad teated:

Vaata kõiki

Sellel veebilehel kasutatakse küpsiseid. Kasutamist jätkates nõustute küpsiste kasutamisega.

Sulge
 
Minu pakkumine

Reeglid

Pakkumise kirjelduse väli on mõeldud pakkumise detailsemaks lahti kirjutamiseks. Pikema teksti mugavaks sisestamiseks klikkige kasti paremal ülaservas oleval ikoonil.
Pakkumist tehes on keelatud postitada enda kontaktandmeid (nimi, telefon, aadress jne). Me jälgime ja analüüsime pakkumisi, et vältida pettuseid ja reeglite rikkumisi.
Rikkumise puhul kasutajakonto blokeeritakse.