+ Lisa oma töö      

Otsid ehitajat "Üldehitus" valdkonnast?

Parima pakkumise ja teostaja leidmiseks lisa oma töö.

Eramu ehitus

ID 87825

1058 vaatamist

Prindi

  • check Pakkumiste tegemine
    kuni 09.11.2023
  • check Võitja valik kuni
    16.11.2023
  • 3 Töö teostamine
    ja hinnang
Hanke lõpp: N, 9. november, 2023
Maakond: Harjumaa
Muu asula: Meremõisa
Tööde algus: R, 15. märts, 2024 (Soovituslik)
Tööde lõpp: P, 15. detsember, 2024 (Soovituslik)
Ehitusmaterjalid: Töö tegija poolt
Soovin pakkumisi: Tüki- või ühikuhinda

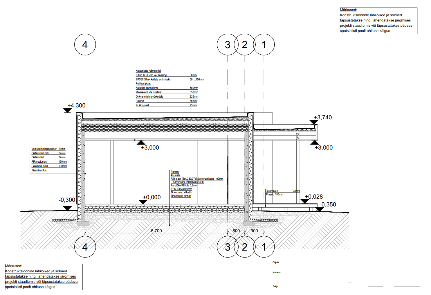
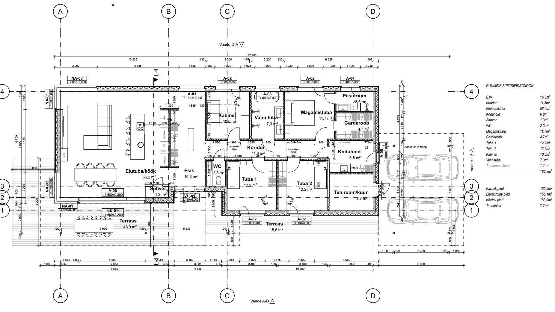
Töö sisu

Soovin indikatiivset hinnapakkumist 163m2 netopinnaga eramu ''valge karp, väljast valmis'' (siseseinad pahteldatud ja kruntvärviga kaetud) ja autode varjualuse ehitusele. Hind võib olla m2 hind või komplekti hind.

Asukoht: Harjumaa, Meremõisa.

Hetkel on arhitektuurne eskiis koostamisel. Ehitustööde algus märts-aprill 2024.
Asendiplaanil olev suvila ja biokäimla jäävad alles.
Energiaklass vähemalt B, eesmärk A.

Tööde maht:
1. Vundament (plaatvundament) sh küttekolde paksendus
2. Torutööd (sh põrandaküte)
3. Aknad ja välisuksed
4. Seinad, katus, talad. Kandvad seinad (columbia kivi), soojustus. Katus (puitsõrestik, SBS/PVC, komposiitplaat), liimpuittalad
5. Kipsitööd (lagedes topeltkips)
6. Siseuksed (tammespoon)
7. Küte, ventilatsioon. Maaküte seest ja väljast (vertikaalne) sh puurimine 2-3 puurauku, termostaadid, boiler jne. Soojustagastusega ventagregaat.
8. Elektritööd
9. Drenaaž
10. Vesi, kanal. Biopuhasti ja imbväljak, kommunikatsioonide ühendamine (puurkaev olemas).
11. Terrass, sh vundamendipostid
12. Soemüüriga kamina valmidus
13. Fassaad, aknaplekid, sadeveelahendused jms (topeltroovitus, värvitud poolpunn peensaetud laudis, nt 145mm)
14. Trepp ja käiguteed (betoonist)

Kirjeldatud tehnilised lahendused võivad projekteerimise käigus muutuda, soovitused/ettepanekud on samuti teretulnud.

Tänan ette!

Pildid, video ja failid

Hanke korraldaja: eraisik ID76491

Pakkumised

Pakkumisi kokku: 8

Ettevõte Summa Käibemaks Lisatud Vestlus
Kasutaja ikoon ID73462
Pakkuja profiil Väike nool paremale
2 400€ Sisaldab KM Sisaldab KM 03.11.2023 Vestlus (0)

Pakkumise kirjeldus:

Hinnapakkumine m2 alusel valgele karbile.

2400 m2 on hetkel turuhind millega tasuks arvestada kivimaja ehitades.Erilahendused teevad asja kallimaks. Kui ei ole soov 100% ametlikult teha siis leiab kindlasti kohti kust kokku hoida.

Parimat.
E.

Kasutaja ikoon ID59491
Pakkuja profiil Väike nool paremale
230 000€ Sisaldab KM Sisaldab KM 04.11.2023 Vestlus (0)

Pakkumise kirjeldus:

Pakkumine on koostatud 1400 €/m2 , hind on koos km, tänan.

Kasutaja ikoon ID39222
Pakkuja profiil Väike nool paremale
213 000€ Sisaldab KM Sisaldab KM 04.11.2023 Vestlus (0)

Pakkumise kirjeldus:

Valge karp,terass,autovarjaalune

Kasutaja ikoon ID59132
Pakkuja profiil Väike nool paremale
222 750€ KM lisandub KM lisandub 06.11.2023 Vestlus (0)

Pakkumise kirjeldus:

terve maja - enne kasutuselevõttu
(ilma Eelprojekt)

Kasutaja ikoon ID73822
Pakkuja profiil Väike nool paremale
163 000€ KM lisandub KM lisandub 07.11.2023 Vestlus (0)
Kasutaja ikoon ID33806
Pakkuja profiil Väike nool paremale
1 003,6€ KM lisandub KM lisandub 07.11.2023 Vestlus (0)

Pakkumise kirjeldus:

Tere.
Esitan indikatiivse hinnapakkumise ühikhinna kohta soovitule.

Energiatõhusa eramu puhul on soovitus ehitada maja putikarkass konstruktsioonile, see säästab ka teie vahendeid. Projektiga tutvudes selgub, et hoonele ei mõju selliseid koormuseid mis nõuaks täisbetoneeritud õõnesbetoonplokkidest välisseina ehitamist.
Kui soov on siiski kivi ... Rohkem

Kasutaja ikoon ID50594
Pakkuja profiil Väike nool paremale
2 600€ KM lisandub KM lisandub 09.11.2023 Vestlus (0)

Pakkumise kirjeldus:

Tere,

Pakkumine ruutmeetri põhjal.

Lgp. Taivo

Kasutaja ikoon ID51582
Pakkuja profiil Väike nool paremale
159 820€ Sisaldab KM Sisaldab KM 09.11.2023 Vestlus (0)

Küsimused hanke korraldajale

Küsimus: private ID66408   04.11.2023 06:59
Tere!
Kas otsit tervik lahendust või sobib kui eritööd eraldi pakutakse?
Saame pakkuda santehnilist tööd (vesi,küte,kanal)
Lugupidamisega

Teavita reeglite rikkumisest

Korraldaja vastus: 06.11.2023 08:53

Tere!

Tänan teid küsimuse eest.
Ma ei ole tänaseks veel otsustanud, kas sõlmin lepingu peatöövõtuettevõttega või korraldan eraldi hanked.

Kõike head!

Teavita reeglite rikkumisest

Lisa küsimus

Lisa küsimus

Minu pakkumine

Reeglid

Pakkumise kirjelduse väli on mõeldud pakkumise detailsemaks lahti kirjutamiseks. Pikema teksti mugavaks sisestamiseks klikkige kasti paremal ülaservas oleval ikoonil.
Pakkumist tehes on keelatud postitada enda kontaktandmeid (nimi, telefon, aadress jne). Me jälgime ja analüüsime pakkumisi, et vältida pettuseid ja reeglite rikkumisi.
Rikkumise puhul kasutajakonto blokeeritakse.

 

Teisi töid samas valdkonnas

Valdkonnas "Üldehitus" on 27 aktiivset tööd

Terassi õlitamine, 13,7 ruutu

Asukoht: Harjumaa, Saue
Aega jäänud: 5p 14h
Tehtud pakkumisi: 4

Eramaja ehitus

Asukoht: Harjumaa, Suurupi
Aega jäänud: 4p 14h
Tehtud pakkumisi: 4

Vanemad teated:

Vaata kõiki

Sellel veebilehel kasutatakse küpsiseid. Kasutamist jätkates nõustute küpsiste kasutamisega.

Sulge
 
Minu pakkumine

Reeglid

Pakkumise kirjelduse väli on mõeldud pakkumise detailsemaks lahti kirjutamiseks. Pikema teksti mugavaks sisestamiseks klikkige kasti paremal ülaservas oleval ikoonil.
Pakkumist tehes on keelatud postitada enda kontaktandmeid (nimi, telefon, aadress jne). Me jälgime ja analüüsime pakkumisi, et vältida pettuseid ja reeglite rikkumisi.
Rikkumise puhul kasutajakonto blokeeritakse.