+ Lisa oma töö      

Otsid ehitajat "Siseviimistlustööd" valdkonnast?

Parima pakkumise ja teostaja leidmiseks lisa oma töö.

Siseviimistlus

ID 87809

957 vaatamist

Prindi

  • check Pakkumiste tegemine
    kuni 16.11.2023
  • check Võitja valik kuni
    23.11.2023
  • 3 Töö teostamine
    ja hinnang
Hanke lõpp: N, 16. november, 2023
Maakond: Harjumaa
Muu asula: Aruküla
Tööde algus: E, 04. detsember, 2023 (Soovituslik)
Tööde lõpp: R, 08. detsember, 2023 (Soovituslik)
Ehitusmaterjalid: Töö tegija poolt
Soovin pakkumisi: Summa kogu projektile

Töö sisu

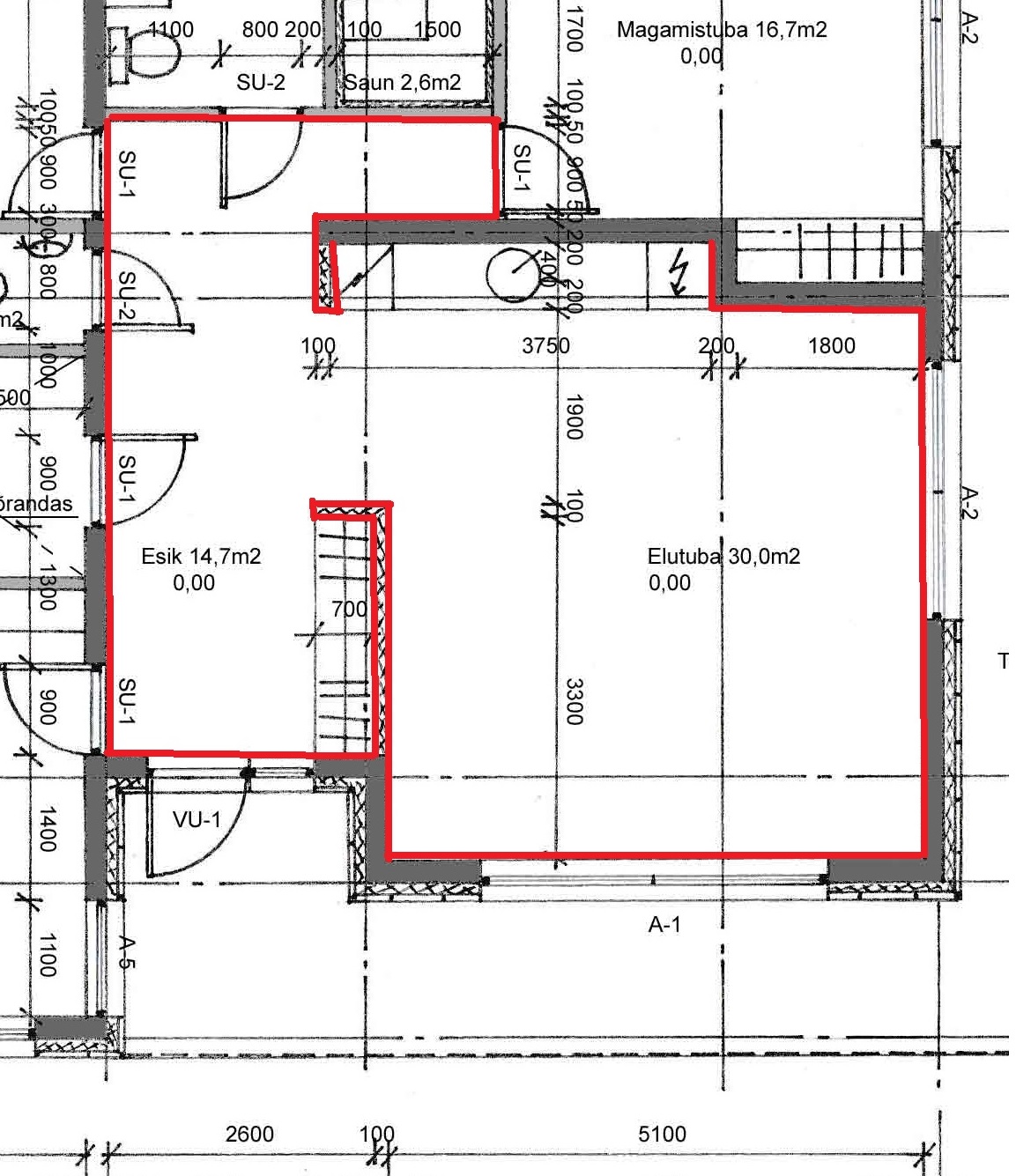
Elutoa ja koridori seinte sanitaarremont vastavalt lisatud joonisele.Punase joonega on märgitud tööd vajavad pinnad.
Seinad on juba pahteldatud ja värvitud 4 aastat tagasi aga on mitmeid pisidefekte. Lae kõrgus on 2,75m. Elutoas on aknad põrandast 2,35.
Töö on seinte, akna- ja uksepalede ülepahteldamine ning lihvimine, akna äärte akrüülimine, värvimine valge seinavärviga (Sadolin Bindo 7)
Seinad on puhtad ja kõik töid segav (pistiku kaaned,ukseliistud, kardinapuud, kapid jms) on minu poolt eelnevalt eemaldatud.

Pildid, video ja failid

Hanke korraldaja: eraisik ID73967

Pakkumised

Pakkumisi kokku: 17

Ettevõte Summa Käibemaks Lisatud Vestlus
Kasutaja ikoon ID74755
Pakkuja profiil Väike nool paremale
1 300€ Sisaldab KM Sisaldab KM 02.11.2023 Vestlus (0)

Pakkumise kirjeldus:

Tere hind on tehtud koos materjaliga vastavalt hanke sisule.

Lugupidamisega Keijo K.

Kasutaja ikoon ID70928
Pakkuja profiil Väike nool paremale
1 500€ Sisaldab KM Sisaldab KM 03.11.2023 Vestlus (4)

Pakkumise kirjeldus:

Tere
Põrandate kinni katmine, seinte paranduspahteldamine ja värvimine, aknapõsed uus akryyl ja värv. Tekkinud prügi ultiseerimine.
Hind sisaldab tööd ja materjali
Lugupidamisega GV.

Kasutaja ikoon ID65125
Pakkuja profiil Väike nool paremale
1 250€ Ei ole KMKR Ei ole KMKR 03.11.2023 Vestlus (6)

Pakkumise kirjeldus:

Tere
Meie pakkumine hankes kirjeltatud töödele
Tervitades

Kasutaja ikoon ID76330
Pakkuja profiil Väike nool paremale
1 155€ Sisaldab KM Sisaldab KM 03.11.2023 Vestlus (6)

Pakkumise kirjeldus:

Pakkumine vastavalt kliendi kirjeldusele:
*Eeltööd, kinni katmised
*Elutoa ja koridori seinte san.remont
*Seinte viimistlustööd
*Akna- ja uksepalede ülepahteldamine ja lihvimine
*Akna äärte akrüülimine
*Kasutame kvaliteetseid ja kergesti puhastatavaid ja hooldatavaid värve, soovi korral teie enda välja valitud toodet.
*Ehitusjärgne koristu ... Rohkem

Kasutaja ikoon ID72970
Pakkuja profiil Väike nool paremale
1 295€ Sisaldab KM Sisaldab KM 03.11.2023 Vestlus (0)

Pakkumise kirjeldus:

Tere

Hind sisaldab köik tööd, materjaal ja garantii 5a

Kasutaja ikoon ID49809
Pakkuja profiil Väike nool paremale
2 600€ KM lisandub KM lisandub 05.11.2023 Vestlus (0)
Kasutaja ikoon ID77775
Pakkuja profiil Väike nool paremale
750€ Sisaldab KM Sisaldab KM 05.11.2023 Vestlus (0)

Pakkumise kirjeldus:

Hind on pakutud tööle.
Materjali kulud katab tellija.
Lpg. C.H.

Kasutaja ikoon ID50979
Pakkuja profiil Väike nool paremale
2 200€ Ei ole KMKR Ei ole KMKR 08.11.2023 Vestlus (0)

Pakkumise kirjeldus:

Vajalikud katmistööd 100eur
Kohtparandused 100eur
Lauspahtel 600eur
Lihvimine 400eur
Krunt300eur
Lõppvärv 2x-500eur
Transport,hanke tasu,kuivkoristus,ehitusjäätmete utiliseerimine jms.200eur.
Garantii 5aastat meie töödele,ettemaksu ei soovi,km.ei lisandu.Töö teostus Teie poolt soovitud ajal ja vastavalt Teie soovidele ja kirjeldusele 2pika k ... Rohkem

Kasutaja ikoon ID58844
Pakkuja profiil Väike nool paremale
1 240€ Sisaldab KM Sisaldab KM 09.11.2023 Vestlus (0)
Kasutaja ikoon ID60956
Pakkuja profiil Väike nool paremale
1 200€ Ei ole KMKR Ei ole KMKR 10.11.2023 Vestlus (0)
Kasutaja ikoon ID52783
Pakkuja profiil Väike nool paremale
1 300€ Sisaldab KM Sisaldab KM 10.11.2023 Vestlus (0)

Pakkumise kirjeldus:

Tere.
Tegin pakkumise .

Lp.Joel

Kasutaja ikoon ID65371
Pakkuja profiil Väike nool paremale
1 350€ KM lisandub KM lisandub 10.11.2023 Vestlus (0)
Kasutaja ikoon ID72794
Pakkuja profiil Väike nool paremale
1 365€ Sisaldab KM Sisaldab KM 11.11.2023 Vestlus (0)

Pakkumise kirjeldus:

Tere

Pakkumises materjalid, vajalikud katmised, akrüülimised, pahteldamine ja värvimine.
Tekkinud prügi viiakse ära.
Omajärelt saab koristatud.

Parimat!

Kasutaja ikoon ID75521
Pakkuja profiil Väike nool paremale
1 220€ Sisaldab KM Sisaldab KM 15.11.2023 Vestlus (0)

Pakkumise kirjeldus:

Tere

pakkumine antud info järgi

*Kattetööd
*Teipimine
*Pahteldamine
*Värvimine 2x
*Prahi utiliseerimine

Materjal teiepoolt.

Kogemust antud vallas 10+ aastat.

Parimat
Christjan

Kasutaja ikoon ID57179
Pakkuja profiil Väike nool paremale
1 400€ Ei ole KMKR Ei ole KMKR 16.11.2023 Vestlus (0)
Kasutaja ikoon ID50594
Pakkuja profiil Väike nool paremale
3 500€ KM lisandub KM lisandub 16.11.2023 Vestlus (0)

Pakkumise kirjeldus:

Tere,

Hinnapakkumine vastavalt hanke kirjeldusele.

Lgp. Taivo

Kasutaja ikoon ID56408
Pakkuja profiil Väike nool paremale
1 350€ Ei ole KMKR Ei ole KMKR 16.11.2023 Vestlus (0)

Pakkumise kirjeldus:

Tere,

Pakkumine Teie hankele

Lugupidamisega

Küsimused hanke korraldajale

Küsimus: private ID70509   03.11.2023 10:48
Tere!

Saan aru et töö sisu on kohtparandused ja värvimine.

Kas oskate öelda mitu m2 on vaja viimistleda?


Parimat,

Kaarel

Teavita reeglite rikkumisest

Korraldaja vastus: 03.11.2023 16:16

Tere,

Lauspeenpahtel, ja värvimine.
m2 ei tea öelda

Teavita reeglite rikkumisest

Küsimus: private ID73654   16.11.2023 16:34
Tere !
Kõik materjalid teie poolt?
Lugupidamisega ;K.K

Teavita reeglite rikkumisest

Korraldaja vastus:
Hanke korraldaja ei ole küsimusele veel vastanud

Lisa küsimus

Lisa küsimus

Minu pakkumine

Reeglid

Pakkumise kirjelduse väli on mõeldud pakkumise detailsemaks lahti kirjutamiseks. Pikema teksti mugavaks sisestamiseks klikkige kasti paremal ülaservas oleval ikoonil.
Pakkumist tehes on keelatud postitada enda kontaktandmeid (nimi, telefon, aadress jne). Me jälgime ja analüüsime pakkumisi, et vältida pettuseid ja reeglite rikkumisi.
Rikkumise puhul kasutajakonto blokeeritakse.

 

Teisi töid samas valdkonnas

Valdkonnas "Siseviimistlustööd" on 20 aktiivset tööd

Seinte pahteldus ja värvimine

Asukoht: Harjumaa, Türisalu
Aega jäänud: 2p 21h
Tehtud pakkumisi: 7

Korteri seinte ja lagede värvimine, osaline pahteldamine

Asukoht: Harjumaa, Tallinn
Aega jäänud: 21h 17 min
Tehtud pakkumisi: 5

Vanemad teated:

Vaata kõiki

Sellel veebilehel kasutatakse küpsiseid. Kasutamist jätkates nõustute küpsiste kasutamisega.

Sulge
 
Minu pakkumine

Reeglid

Pakkumise kirjelduse väli on mõeldud pakkumise detailsemaks lahti kirjutamiseks. Pikema teksti mugavaks sisestamiseks klikkige kasti paremal ülaservas oleval ikoonil.
Pakkumist tehes on keelatud postitada enda kontaktandmeid (nimi, telefon, aadress jne). Me jälgime ja analüüsime pakkumisi, et vältida pettuseid ja reeglite rikkumisi.
Rikkumise puhul kasutajakonto blokeeritakse.