+ Lisa oma töö      

Otsid ehitajat "Siseviimistlustööd" valdkonnast?

Parima pakkumise ja teostaja leidmiseks lisa oma töö.

Eramu põrandakatte paigaldus ja viimistlus (vinüülparkett ja keraamiline plaat)

ID 87395

828 vaatamist

Prindi

  • check Pakkumiste tegemine
    kuni 01.11.2023
  • check Võitja valik kuni
    08.11.2023
  • 3 Töö teostamine
    ja hinnang
Hanke lõpp: K, 1. november, 2023
Maakond: Pärnumaa
Muu asula: Häädemeeste
Tööde algus: E, 04. detsember, 2023 (Soovituslik)
Tööde lõpp: P, 31. detsember, 2023 (Soovituslik)
Ehitusmaterjalid: Töö tellija poolt
Soovin pakkumisi: Tüki- või ühikuhinda

Töö sisu

Otsin kogenud vinüülparketi (elutoas kalasaba muster) ja keraamilise plaadi paigaldajat vastvalminud eramusse Häädemeeste vallas, Majaka külas.
Suletud netopind 103m2, millest tehnoruum on plaaditud.
Pakkumises palun välja tuua paigalduse m2 maksumus eraldi vinüülparketil ja plaatimisel. Palun pakkuda ka liistude paigaldamise jm maksumus.
Muud andmed: töötav põrandaküte maakütte baasil, vesi ja elekter olemas.
Vajalikud materjalid hangib tellija.
Võimalik arveldada läbi firma. Tööde planeeritav algusaeg: detsember 2023.

Pildid, video ja failid

Hanke korraldaja: eraisik ID77756

Pakkumised

Pakkumisi kokku: 7

Ettevõte Summa Käibemaks Lisatud Vestlus
Kasutaja ikoon ID73462
Pakkuja profiil Väike nool paremale
30€ Ei ole KMKR Ei ole KMKR 18.10.2023 Vestlus (0)

Pakkumise kirjeldus:

Tere

Vinüüparkett kalasaba 22€ m2
Keraamiline plaat 30€ m2
Liistude paigaldus 5€ jm

Kui on vaja teha lisatõid 24€/h

Parimat
E.

Kasutaja ikoon ID27299
Pakkuja profiil Väike nool paremale
5 200€ Ei ole KMKR Ei ole KMKR 19.10.2023 Vestlus (2)

Pakkumise kirjeldus:

Hind sisaldab liistude paigaldust.

Kasutaja ikoon ID59969
Pakkuja profiil Väike nool paremale
1 000€ KM lisandub KM lisandub 28.10.2023 Vestlus (0)

Pakkumise kirjeldus:

Tere. Tegin hinna ainult vinyyl parketi paigaldusele! Tehtud töödest näed pilte Orina Ehitus OÜ Facebook lehelt. Plaatimist saab arutada kohapeal! Plaatimis hind kujuneb kõik sellest kui suur plaat on?

Kasutaja ikoon ID76309
Pakkuja profiil Väike nool paremale
1 528€ KM lisandub KM lisandub 01.11.2023 Vestlus (0)

Pakkumise kirjeldus:

Pakkumine lvt paigaldusele:
Nn laevatekk paigaldus: 35.5×10=355€
Kalasaba: 38.8×20=776€
Liistude paigaldus: ca 80jm×4= 320€
Hanke tasu 5% ehk ca 77€
Tegeleme igapäevaselt põrandakatete paigaldusega ja enamuses ongi kalasaba, tulemusega jääte kindlasti rahule.
Võime ka plaatimisele pakkumise teha, aga selle peaks kohapeal täpselt üle v ... Rohkem

Kasutaja ikoon ID77822
Pakkuja profiil Väike nool paremale
40€ Ei ole KMKR Ei ole KMKR 01.11.2023 Vestlus (0)

Pakkumise kirjeldus:

Hinnapakkumise ruutmeetri hind sisaldab aluspinna kruntimist, hüdroisolatsiooni, plaatimist, vuukimist ja silikoonimist ilma materjalihinnata. Seda eeldusel, et üks plaaditav pind on ühetaolised plaadid. Plaadi mõõtute vahemik 10x10 cm kuni 40x80cm. Vahemikust välja jäävate mõõtude puhul vaja eraldi kokku leppida.

Kasutaja ikoon ID54831
Pakkuja profiil Väike nool paremale
2 300€ Sisaldab KM Sisaldab KM 01.11.2023 Vestlus (0)

Pakkumise kirjeldus:

Tere, Hinnapakkumine sisaldab hankes küsitud plaatimise - vuukimise töid ja LVT paigaldust Lugupidamisega!

Kasutaja ikoon ID73625
Pakkuja profiil Väike nool paremale
3 500€ Sisaldab KM Sisaldab KM 01.11.2023 Vestlus (0)

Pakkumise kirjeldus:

Tere,

Hea meelega teostame tööd teie jaoks.tööd tehakse kvaliteetselt ja võimalikult kiiresti.Pakume 5 aastane garantii oma töödele.

See hind sisaldab kõiki nimekirjas olevaid soovitud tööd.
Spetsialisti tulek teie objektile, hinnapakkumise ja tööteostamise lepingu koostamine.

Minu firma tegeleb katuste, fassaadide ehitusega ning üldeh ... Rohkem

Küsimused hanke korraldajale

Küsimus: private ID27299   18.10.2023 20:53
Ehk lisaksid rohkem pilte, ka teistest ruumidest.

Teavita reeglite rikkumisest

Korraldaja vastus: 18.10.2023 22:18

Saan rohkem pilte lisada nädalavahetusel. Täpsustan ka, et soovin LVT vinüülparketti paigaldada.

Teavita reeglite rikkumisest

Küsimus: private ID27299   18.10.2023 23:01
Hea oleks, kui kirjutaksite ka lahti palju on kalasaba ja ms parkett LVT ja need poegi nii väga olulised. kalasaba nagu kõige olulisem. Lihtsalt selle õieti paigaldus võta kõige rohkem aega. palju on kalasaba ruute? Nähes, et aknad põrandani, siis nurke jätkub.

Teavita reeglite rikkumisest

Korraldaja vastus: 18.10.2023 23:20

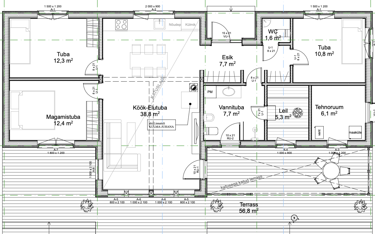
Tänan küsimuse eest! Köök-elutuba suurus on 38,8 m2 - vt joonist.

Teavita reeglite rikkumisest

Küsimus: private ID27299   19.10.2023 00:50
See joonis on mõttetu, tavaliselt ei alga aken põrandast ja pole selliseid sisselõikeid vaja teha. Kas teistes ruumides algavad ka aknad põrandast?

Teavita reeglite rikkumisest

Korraldaja vastus: 19.10.2023 04:11

Jooniselt on näha ka, kui palju on uksekohti. Uksed algavad põrandast. Teistes ruumides aknad põrandast ei alga.

Teavita reeglite rikkumisest

Küsimus: private ID59969   24.10.2023 20:07
Tere. Kui suur on plaat mis läheb maha? Kas vaja ka Vesi eristus teha või tehtud?

Teavita reeglite rikkumisest

Korraldaja vastus: 25.10.2023 19:38

Tere! Tänan küsimuse eest! Pole veel plaadi osas lõplikku otsust langetanud, ent kaldun puiduimitatsiooniga põrandaplaadi poole. Mõõdud 20,5x61,5 Teeksin lõpliku otsuse koos paigaldajaga. Vesieristus ei ole tehtud.

Teavita reeglite rikkumisest

Küsimus: private ID59969   24.10.2023 20:10
Mis läheb maha teistesse tubadesse?

Teavita reeglite rikkumisest

Korraldaja vastus: 25.10.2023 19:40

Tere! Teistesse tubadesse läheb ka vinüülparkett, ent lippidena mitte kalasabana.

Teavita reeglite rikkumisest

Küsimus: private ID59969   25.10.2023 20:25
35,5m2 läheb tavaline vinyyl ja 38,8läheb kalasaba vinyyl siis? Kui ja siis teen vinyyl parketi paigaldusele hinna kui sobib.

Teavita reeglite rikkumisest

Korraldaja vastus: 25.10.2023 21:00

Jah, just nii! Aga kas te keraamlise plaadi paigaldamisege ei tegele?

Teavita reeglite rikkumisest

Küsimus: private ID77822   01.11.2023 09:42
Tere, Millised pinnad konkreetselt plaadi alla lähevad. Kas vannitoas ka seinad.

Teavita reeglite rikkumisest

Korraldaja vastus: 01.11.2023 18:25

Tere! Plaatimisse lähevad:
vannituba - seinad ja põrand
WC - seinad ja põrand
Saun - põrand

Seinaplaat veel valimisel.

Teavita reeglite rikkumisest

Lisa küsimus

Lisa küsimus

Minu pakkumine

Reeglid

Pakkumise kirjelduse väli on mõeldud pakkumise detailsemaks lahti kirjutamiseks. Pikema teksti mugavaks sisestamiseks klikkige kasti paremal ülaservas oleval ikoonil.
Pakkumist tehes on keelatud postitada enda kontaktandmeid (nimi, telefon, aadress jne). Me jälgime ja analüüsime pakkumisi, et vältida pettuseid ja reeglite rikkumisi.
Rikkumise puhul kasutajakonto blokeeritakse.

 

Teisi töid samas valdkonnas

Valdkonnas "Siseviimistlustööd" on 23 aktiivset tööd

Seinte värvimine

Asukoht: Harjumaa, Tallinn
Aega jäänud: 3h 53 min
Tehtud pakkumisi: 7

Seinte pahteldus ja värvimine

Asukoht: Harjumaa, Türisalu
Aega jäänud: 3p 3h
Tehtud pakkumisi: 7

Vanemad teated:

Vaata kõiki

Sellel veebilehel kasutatakse küpsiseid. Kasutamist jätkates nõustute küpsiste kasutamisega.

Sulge
 
Minu pakkumine

Reeglid

Pakkumise kirjelduse väli on mõeldud pakkumise detailsemaks lahti kirjutamiseks. Pikema teksti mugavaks sisestamiseks klikkige kasti paremal ülaservas oleval ikoonil.
Pakkumist tehes on keelatud postitada enda kontaktandmeid (nimi, telefon, aadress jne). Me jälgime ja analüüsime pakkumisi, et vältida pettuseid ja reeglite rikkumisi.
Rikkumise puhul kasutajakonto blokeeritakse.