+ Lisa oma töö      

Otsid ehitajat "Katusetööd" valdkonnast?

Parima pakkumise ja teostaja leidmiseks lisa oma töö.

Lamekatuste ehitus

ID 87197

800 vaatamist

Prindi

  • check Pakkumiste tegemine
    kuni 14.10.2023
  • check Võitja valik kuni
    21.10.2023
  • 3 Töö teostamine
    ja hinnang
Hanke lõpp: L, 14. oktoober, 2023
Maakond: Harjumaa
Linn: Saue
Tööde algus: L, 14. oktoober, 2023 (Soovituslik)
Tööde lõpp: N, 30. november, 2023 (Soovituslik)
Ehitusmaterjalid: Töö tellija poolt
Soovin pakkumisi: Tüki- või ühikuhinda

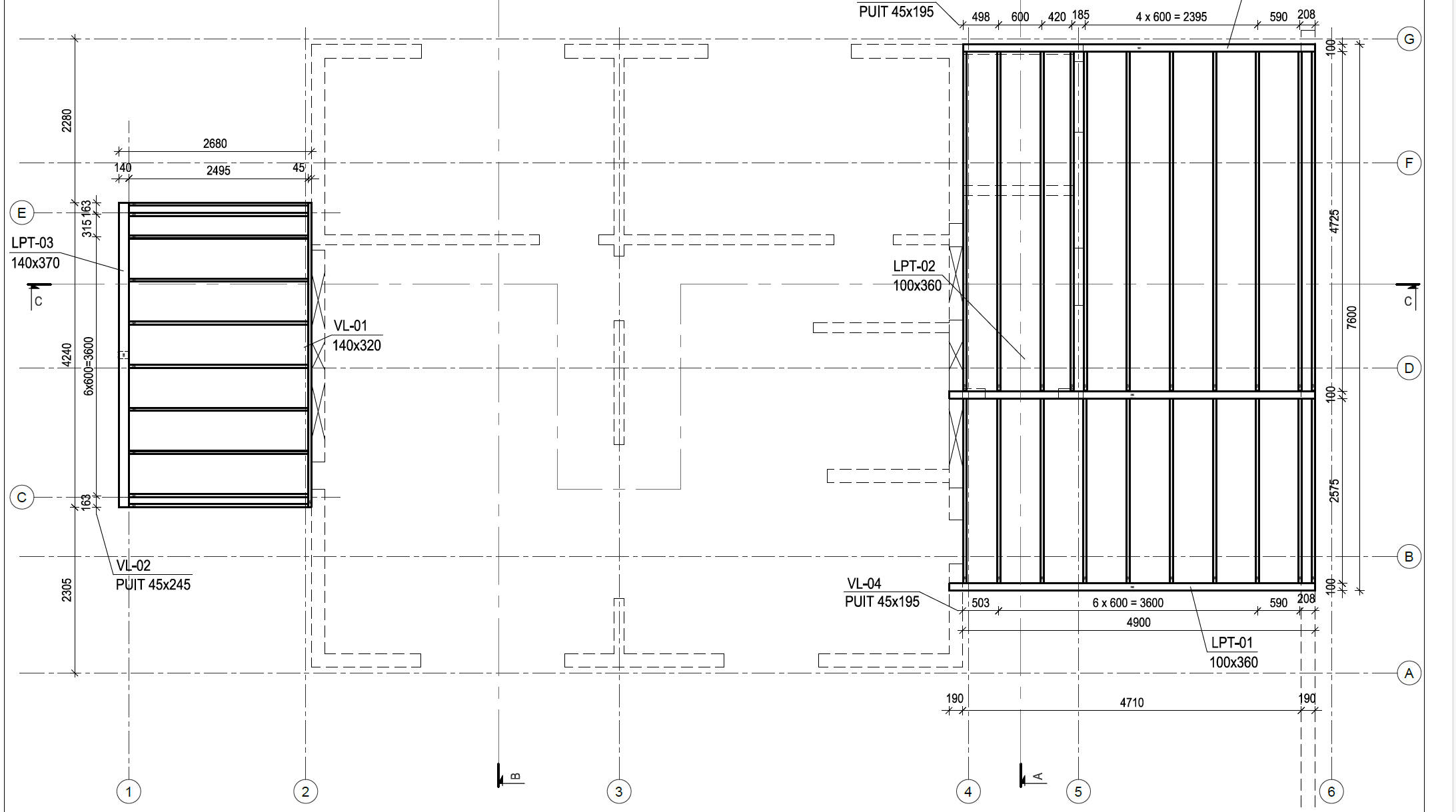
Töö sisu

Vaja ehitada kaks väiksemat sorti lamekatust:
Varikatus Ca 38 m2 (8 m2 soojustatud) + veranda 16m2 (soojustatud, käidav katu)

Suurem katus lahendatud fermidega.
Töö sisu: talade ja fermide paigaldamine, soojustuse paigaldamine, katusekattematerjali paigaldamine.

Pildid, video ja failid

Hanke korraldaja: eraisik ID45117

Pakkumised

Pakkumisi kokku: 5

Ettevõte Summa Käibemaks Lisatud Vestlus
Kasutaja ikoon ID52293
Pakkuja profiil Väike nool paremale
5 500€ Sisaldab KM Sisaldab KM 11.10.2023 Vestlus (0)
Kasutaja ikoon ID37184
Pakkuja profiil Väike nool paremale
4 000€ Sisaldab KM Sisaldab KM 12.10.2023 Vestlus (0)

Pakkumise kirjeldus:

Fermide ja talade paigaldus,
väiksema varikatuse tala+raamistik,
Osb plaadi paigaldus
nende jaoks vajaminevad materjali tellija poolt

PVC-Protan1,2SE +geotekstiil+ paigaldus -meie poolt.

Kasutaja ikoon ID50648
Pakkuja profiil Väike nool paremale
3 500€ KM lisandub KM lisandub 14.10.2023 Vestlus (0)

Pakkumise kirjeldus:

Fermide paigaldus, roovitus osb või vineeri paigaldus, tõstetööd (materjalid ja kraana kliendi poolt)

Protan 1,6 paigaldus koos servaplekkide ja geotekstiiliga( materjal meie poolt)

Hind ei sisalda alusvöö paigaldust, räästakaste vihmavee renne ega soojustamist ega soojustus materjale

Jääb selgusetuks kas tuleb ka katusealuskate ja tuu ... Rohkem

Kasutaja ikoon ID50594
Pakkuja profiil Väike nool paremale
6 300€ KM lisandub KM lisandub 14.10.2023 Vestlus (0)

Pakkumise kirjeldus:

Tere,

Pakkumine vastavalt hanke kirjeldusele.

Lgp. Taivo

Kasutaja ikoon ID77706
Pakkuja profiil Väike nool paremale
9 000€ Sisaldab KM Sisaldab KM 14.10.2023 Vestlus (0)

Pakkumise kirjeldus:

Tere,

Hea meelega teostame tööd teie jaoks.tööd tehakse kvaliteetselt ja võimalikult kiiresti.Pakume 5 aastane garantii oma töödele.

See hind sisaldab kõiki nimekirjas olevaid soovitud tööd.
Spetsialisti tulek teie objektile, hinnapakkumise ja tööteostamise lepingu koostamine.

Minu firma tegeleb katuste, fassaadide ehitusega ning üldeh ... Rohkem

Küsimused hanke korraldajale

Küsimus: private ID37184   11.10.2023 18:04
Tere,
Mis materjal peale tuleb?

Teavita reeglite rikkumisest

Korraldaja vastus: 12.10.2023 12:02

Eelistaks PVC -d, kuna veranda peal (vähe)käidav rõdu, Samas kindlat eelistust pole, pakkuda võib ka SBS.

Teavita reeglite rikkumisest

Lisa küsimus

Lisa küsimus

Minu pakkumine

Reeglid

Pakkumise kirjelduse väli on mõeldud pakkumise detailsemaks lahti kirjutamiseks. Pikema teksti mugavaks sisestamiseks klikkige kasti paremal ülaservas oleval ikoonil.
Pakkumist tehes on keelatud postitada enda kontaktandmeid (nimi, telefon, aadress jne). Me jälgime ja analüüsime pakkumisi, et vältida pettuseid ja reeglite rikkumisi.
Rikkumise puhul kasutajakonto blokeeritakse.

 

Teisi töid samas valdkonnas

Valdkonnas "Katusetööd" on 9 aktiivset tööd

no-img Pilt puudub

Käidava katuse PVC 54m2

Asukoht: Harjumaa, Muraste
Aega jäänud: 4p 13h
Tehtud pakkumisi: 3

Garaaži katuse vahetamine

Asukoht: Harjumaa, Viimsi
Aega jäänud: 13p 13h
Tehtud pakkumisi: 2

Vanemad teated:

Vaata kõiki

Sellel veebilehel kasutatakse küpsiseid. Kasutamist jätkates nõustute küpsiste kasutamisega.

Sulge
 
Minu pakkumine

Reeglid

Pakkumise kirjelduse väli on mõeldud pakkumise detailsemaks lahti kirjutamiseks. Pikema teksti mugavaks sisestamiseks klikkige kasti paremal ülaservas oleval ikoonil.
Pakkumist tehes on keelatud postitada enda kontaktandmeid (nimi, telefon, aadress jne). Me jälgime ja analüüsime pakkumisi, et vältida pettuseid ja reeglite rikkumisi.
Rikkumise puhul kasutajakonto blokeeritakse.