+ Lisa oma töö      

Otsid ehitajat "Siseviimistlustööd" valdkonnast?

Parima pakkumise ja teostaja leidmiseks lisa oma töö.

Hange on lõppenud!

Võitjaks osutus kasutaja ID 70509

Värvida u 145m2 siseseinu ja mööblit

ID 87195

471 vaatamist

Prindi

  • check Pakkumiste tegemine
    kuni 18.10.2023
  • check Võitja valik kuni
    25.10.2023
  • 3 Töö teostamine
    ja hinnang
Hanke lõpp: K, 18. oktoober, 2023
Maakond: Harjumaa
Muu asula: Vanamõisa
Tööde algus: K, 18. oktoober, 2023 (Soovituslik)
Tööde lõpp: K, 25. oktoober, 2023 (Soovituslik)
Ehitusmaterjalid: Töö tellija poolt
Soovin pakkumisi: Summa kogu projektile

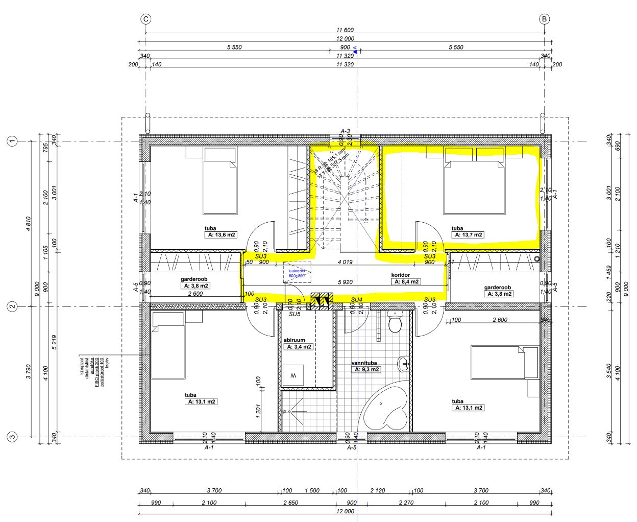
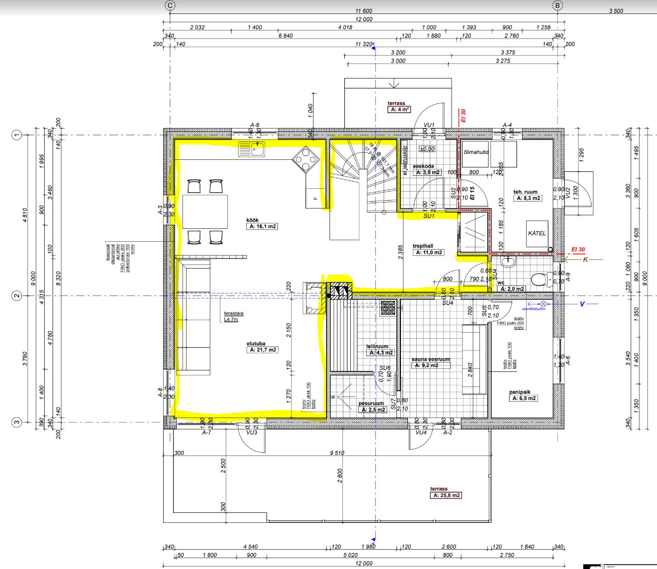
Töö sisu

Soovime värvida umbes 145m2 jagu siseseinu (aknad-uksed, köögimööbel jm maha arvestamata) ja lisaks köögimööbli, 2 madalat Ikea kappi ja garderoobkapi.

Katame mööbli ja eemaldame põrandaliistud ise, pistikud-lülitid jne jätame Sinu teha. Värv meie poolt, muu vajalik Sinu poolt.

Paluks köögimööbli värvimise töö kohta teha pakkumine ka eraldi, et saaksime seda võrrelda mööbli kiletamise variandi maksumusega. Kapid lähevad kindlasti värvimisele, seda hinda ei pea eraldi välja tooma.

Kapid soovime värvida ka seest (v.a sahtlipõhjad). Köögimööbli soovime värvida osaliselt - kapiuksed ja sahtlipaneelid mõlemalt poolt, aga riiuleid ja kappe seest värvima ei pea. Kõik köögimööbli seinad ja paneelid, mis paistavad, soovime värvida k.a sokkel.

Kappide ja köögimööbli mõõdud piltidel.

Pildid, video ja failid

Hanke korraldaja: eraisik ID77651

Pakkumised

Pakkumisi kokku: 9

Ettevõte Summa Käibemaks Lisatud Vestlus
Kasutaja ikoon ID52293
Pakkuja profiil Väike nool paremale
3 000€ Sisaldab KM Sisaldab KM 11.10.2023 Vestlus (0)
Kasutaja ikoon ID3527
Pakkuja profiil Väike nool paremale
2 500€ KM lisandub KM lisandub 11.10.2023 Vestlus (0)

Pakkumise kirjeldus:

Tere!
Omame pikaajalist kogemust ehitus valdkonnas, seega töö kiire ja kvaliteetne. Töid teostame hingega ning objekti anname üle puhtana!


Lugupidamisega,
JM

Kasutaja ikoon ID70509
Pakkuja profiil Väike nool paremale
700€ KM lisandub KM lisandub 13.10.2023 Vestlus (3)

Pakkumise kirjeldus:

Tere!

Hinnapakkumine sisladab:

-NB! ainult seinade värvimist!

-pindade kinni katmist vastavalt vajadusele
-teipimist
-Seinade värvimist 2x
-Võtan omad teibid ja värvirullid

Lisa küsimuste korral kirjutage mulle.

Kui soovite et ma teostan seinade värvimistööd siis palun võtke esimesel võimalusel ühendust!

Siis saan teid graafik ... Rohkem

Kasutaja ikoon ID77147
Pakkuja profiil Väike nool paremale
1 900€ Ei ole KMKR Ei ole KMKR 13.10.2023 Vestlus (0)
Kasutaja ikoon ID42866
Pakkuja profiil Väike nool paremale
1 500€ Ei ole KMKR Ei ole KMKR 16.10.2023 Vestlus (2)

Pakkumise kirjeldus:

Maalritööd 1500
Köögimööbli värvimine +250
Alustada saab kohe
Hinnale KM ei lisandu

Kasutaja ikoon ID75521
Pakkuja profiil Väike nool paremale
1 600€ Sisaldab KM Sisaldab KM 16.10.2023 Vestlus (0)

Pakkumise kirjeldus:

Tere

Pakkumine antud info järgi

*Kattetööd
*Teipimine
*Värvimine 2x
*Prahi utiliseerimine

Hinnapakkumine kõikidele tööle.

Parimat
Christjan

Kasutaja ikoon ID59057
Pakkuja profiil Väike nool paremale
1 595€ Ei ole KMKR Ei ole KMKR 18.10.2023 Vestlus (0)

Pakkumise kirjeldus:

Tere
Pakkumine nimetatud töödele.
Lugupidamisega

Kasutaja ikoon ID65365
Pakkuja profiil Väike nool paremale
1 800€ Ei ole KMKR Ei ole KMKR 18.10.2023 Vestlus (0)
Kasutaja ikoon ID72970
Pakkuja profiil Väike nool paremale
990€ Sisaldab KM Sisaldab KM 18.10.2023 Vestlus (6)

Pakkumise kirjeldus:

Tere

Hinnas on värvimistööd õhuvaba värvipritsiga

Teie poolt mööbli/akna/uste katmine kaitsekilega, värvid, krunt ja lisad

Meie poolt ainutl värvimistööd ja garantii 5a.

Küsimused hanke korraldajale

Küsimus: private ID70509   12.10.2023 18:57
Tere!

Kas kohtparandusi ei ole vaja teha?
Värvida vaja ühe värviga?
Laed ka vaja värvida?

Parimat,

Kaarel

Teavita reeglite rikkumisest

Korraldaja vastus: 13.10.2023 10:03

Tervist! Midagi pahteldada ei ole, lagesid värvida pole vaja. See u 145, mis mul arvutatud, on kõik seinapind.
Värvi osas nii palju, et üks välja ehitamata kamina soojamüür (läbi kahe korruse) tuleb ühte värvi, toaseinad teist värvi ja köök-kapid kolmandat värvi.
Kui ma peaks juhuslikult magamistoa jaoks neljanda värvi valima, siis kas see mõjutab hinda?

Tänud
Mariann

Teavita reeglite rikkumisest

Lisa küsimus

Lisa küsimus

Minu pakkumine

Reeglid

Pakkumise kirjelduse väli on mõeldud pakkumise detailsemaks lahti kirjutamiseks. Pikema teksti mugavaks sisestamiseks klikkige kasti paremal ülaservas oleval ikoonil.
Pakkumist tehes on keelatud postitada enda kontaktandmeid (nimi, telefon, aadress jne). Me jälgime ja analüüsime pakkumisi, et vältida pettuseid ja reeglite rikkumisi.
Rikkumise puhul kasutajakonto blokeeritakse.

 

Teisi töid samas valdkonnas

Valdkonnas "Siseviimistlustööd" on 23 aktiivset tööd

Seinte värvimine

Asukoht: Harjumaa, Tallinn
Aega jäänud: 2h 48 min
Tehtud pakkumisi: 7

Seinte pahteldus ja värvimine

Asukoht: Harjumaa, Türisalu
Aega jäänud: 3p 2h
Tehtud pakkumisi: 7

Vanemad teated:

Vaata kõiki

Sellel veebilehel kasutatakse küpsiseid. Kasutamist jätkates nõustute küpsiste kasutamisega.

Sulge
 
Minu pakkumine

Reeglid

Pakkumise kirjelduse väli on mõeldud pakkumise detailsemaks lahti kirjutamiseks. Pikema teksti mugavaks sisestamiseks klikkige kasti paremal ülaservas oleval ikoonil.
Pakkumist tehes on keelatud postitada enda kontaktandmeid (nimi, telefon, aadress jne). Me jälgime ja analüüsime pakkumisi, et vältida pettuseid ja reeglite rikkumisi.
Rikkumise puhul kasutajakonto blokeeritakse.