+ Lisa oma töö      

Otsid ehitajat "Korterite remont" valdkonnast?

Parima pakkumise ja teostaja leidmiseks lisa oma töö.

Hange on lõppenud!

Võitjaks osutus kasutaja ID 49704

Paneelmaja korteri vannitoa ja WC remont

ID 87073

1634 vaatamist

Prindi

  • check Pakkumiste tegemine
    kuni 07.11.2023
  • check Võitja valik kuni
    14.11.2023
  • 3 Töö teostamine
    ja hinnang
Hanke lõpp: T, 7. november, 2023
Maakond: Tartumaa
Linn: Tartu
Tööde algus: E, 06. november, 2023 (Soovituslik)
Tööde lõpp: K, 06. detsember, 2023 (Soovituslik)
Ehitusmaterjalid: Töö tegija poolt
Soovin pakkumisi: Summa kogu projektile

Töö sisu

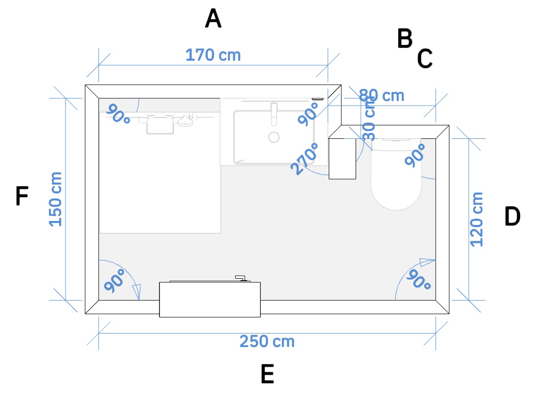
Soovin teha paneelmaja korteris vannitoa ja wc remonti, mis hetkel asuvad eraldi. Soov on wc/vannituba kokku ehitada. Pind ~3,8 m2.

Korter asub Tartus Veeriku linnaosas, 4. korrus. Lifti ei ole.

Vajalikud tööd:
- eemaldada ja utiliseerida vana vann, valamu, WC pott, torustik, seinte ning põranda keraamilised plaadid, käterätikuivati;
- terve vannitoa karbi väljalõhkumine, sh põranda lammutus ning ehitusjäätmete utiliseerimine;
- uue põranda valamine;
- põranda ja seinte hüdroisolatsioon ning viimistlemine keraamiliste plaatidega.
- vannitoa koridori poolse seina renoveerimine ja uue ukse paigaldamine. Uus sein ehitada olemasoleva seinaga võrreldes rohkem koridori poole, mille tulemusel on vannituba suurem ja koridor kitsam.
- uue torustiku paigaldus : ühendused duši- ja kraanikausi segistiga, WC potiga ning köögiga (torud seina sees). Püstaku vertikaalsed torud on juba vahetatud.
- ripplae ehitus ja süvistatud LED laevalgustite paigaldus;
- uue juhtmestiku, elektripistikute ja lülitite paigaldus;
- sundventilatsiooni paigaldus (lülitiga ventilaator);
- dušinurga ehitus (90 x 90 cm): kaldega dušipõrand, dušiseina segisti ja renntrapi paigaldus;
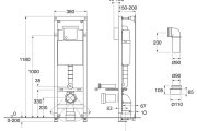
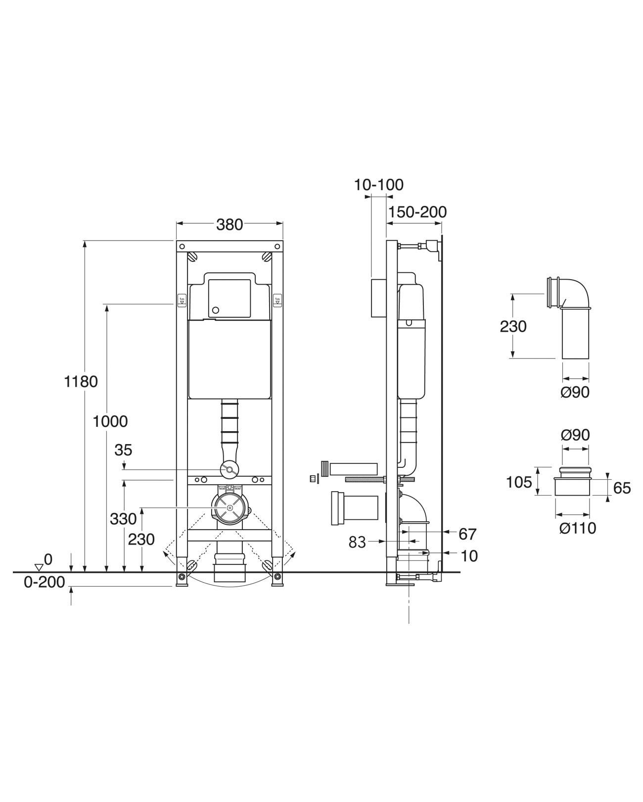
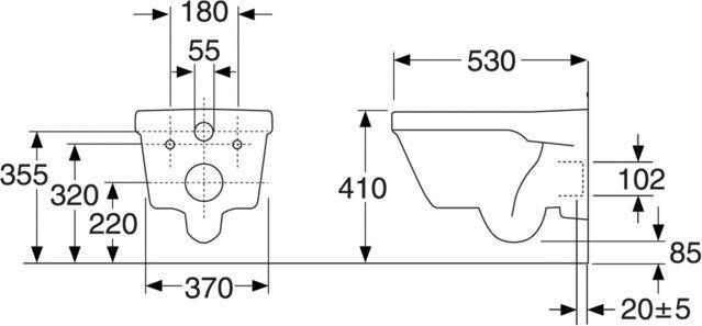
- seinapealse WC poti ja raami paigaldus (Gustavsberg Triomont XS, eraldi pott, seinaraam ja nupp);
- püstaku ümber ehitada kast, mille sisse paigutada ringi olemasolevad veemõõtjad. Juurdepääs näitude võtmiseks läbi teenindusluugi.

Lisatud on pildid vannitoa ja WC hetkeseisust. Lisaks renoveeritud vannitoa planeeringu skeem ja illustratiivne pilt.

Hinnapakkumine teha koos töö ja materjalidega, välja arvatud:
- WC pott ja raam;
- dušinurk
- segistid ja valamu;
- keraamilised plaadid;
- siseuks.

Remondi ajal korteris ei elata.

Pildid, video ja failid

Hanke korraldaja: eraisik ID77587

Pakkumised

Pakkumisi kokku: 8

Ettevõte Summa Käibemaks Lisatud Vestlus
Kasutaja ikoon ID57450
Pakkuja profiil Väike nool paremale
8 700€ KM lisandub KM lisandub 09.10.2023 Vestlus (0)

Pakkumise kirjeldus:

Hind vastavalt lähteülesandele. Sobivusel võtke ühendust, tuleme läbi ning koostame detailse pakkumise. Lõpetasime just 2 täpselt sama lahendust Tartus ning huvi korral saadame pildid.
Edukat hanget!

Kasutaja ikoon ID43596
Pakkuja profiil Väike nool paremale
6 500€ KM lisandub KM lisandub 09.10.2023 Vestlus (0)
Kasutaja ikoon ID75787
Pakkuja profiil Väike nool paremale
9 000€ Sisaldab KM Sisaldab KM 12.10.2023 Vestlus (2)

Pakkumise kirjeldus:

Hinnapakkumine hankele.

Kasutaja ikoon ID4459
Pakkuja profiil Väike nool paremale
7 800€ Ei ole KMKR Ei ole KMKR 12.10.2023 Vestlus (2)

Pakkumise kirjeldus:

Hinnapakkumine hankes oleva info põhjal töödele ja üldehitusmaterjalidele. Parimat

Kasutaja ikoon ID71747
Pakkuja profiil Väike nool paremale
7 666€ Sisaldab KM Sisaldab KM 04.11.2023 Vestlus (5)
Kasutaja ikoon ID77775
Pakkuja profiil Väike nool paremale
5 700€ Sisaldab KM Sisaldab KM 07.11.2023 Vestlus (0)

Pakkumise kirjeldus:

Hinna sees on lammutustööd ja tagasi ehitamine.hinna sees ei ole arvestatud tööde jaoks materjali kulud mis on määratud tellijale.
Ettemaksu soovin,et vajadusel jooksvalt tekkinud materjali kulud saaks kohe tasutud ja ei tekiks ootamist.
Lpg. C.H.

Kasutaja ikoon ID49704
Pakkuja profiil Väike nool paremale
6 400€ Ei ole KMKR Ei ole KMKR 07.11.2023 Vestlus (3)

Pakkumise kirjeldus:

Tere

Pakkumine vastavalt hankes kirjeldatule. Pakkumine sisaldab tööde teostamise tasu ja üldehitusmaterjale. Alustada saame detsembris nädal 50.

Lugupidamisega

Priit

Kasutaja ikoon ID78092
Pakkuja profiil Väike nool paremale
4 500€ Ei ole KMKR Ei ole KMKR 07.11.2023 Vestlus (5)

Pakkumise kirjeldus:

Tere

Kuna materjalide valik määrab üsna suures mahus hinna, siis hetkel teeme pakkumise töörahale.
Tööraha sisaldab kogu paketti valmis lahendusele. Ka mööbli kokkupanek paigaldus jms. ning prügivedu.
Materjalide ja ehitusliku poole pealt saame anda nõuandeid.

Sarnast lahendust oleme varem teostanud, kus eemaldatud sai kogu boks, ehitatud ... Rohkem

Küsimused hanke korraldajale

Küsimus: private ID19121   09.10.2023 10:03
Kanalisatsiooni ühendussõlm (nelik) püstikul on paigaldatud nii kõrgele olemasoleva põranda kohale, et dušialus tuleks ehitada vähemalt 10 - 15 cm vannitoa põrandast kõrgemale. Kas sellega on arvestatud? Praeguse põranda lammutus ja uue ehitus asja ei lahenda, kui just ei taheta tõsta kogu vannitoa põrandat, alates uksest.

Teavita reeglite rikkumisest

Korraldaja vastus: 09.10.2023 11:52

Hea tähelepanek! Soov on vannituba ja koridor samale tasapinnale tuua. Püstikul on võimalik see ühendussõlm madalamale viia, mis muidugi on lisatöö, mida tuleks hinnapakkumisel arvestada. Dušialust 10-15cm kõrgemale tuua ei välistaks, aga päris treppi ei sooviks vannituppa tekitada.

Teavita reeglite rikkumisest

Lisa küsimus

Lisa küsimus

Minu pakkumine

Reeglid

Pakkumise kirjelduse väli on mõeldud pakkumise detailsemaks lahti kirjutamiseks. Pikema teksti mugavaks sisestamiseks klikkige kasti paremal ülaservas oleval ikoonil.
Pakkumist tehes on keelatud postitada enda kontaktandmeid (nimi, telefon, aadress jne). Me jälgime ja analüüsime pakkumisi, et vältida pettuseid ja reeglite rikkumisi.
Rikkumise puhul kasutajakonto blokeeritakse.

 

Teisi töid samas valdkonnas

Valdkonnas "Korterite remont" on 2 aktiivset tööd

Vannitoa lampide paigaldus + erinevad pisiparandused korteris

Asukoht: Harjumaa, Tallinn
Aega jäänud: 1p 9h
Tehtud pakkumisi: 3

Korteri kapitaalremont ja ümberehitus (täielik siseviimistlus + elektritööd)

Asukoht: Järvamaa
Aega jäänud: 12p 9h
Tehtud pakkumisi: 0

Vanemad teated:

Vaata kõiki

Sellel veebilehel kasutatakse küpsiseid. Kasutamist jätkates nõustute küpsiste kasutamisega.

Sulge
 
Minu pakkumine

Reeglid

Pakkumise kirjelduse väli on mõeldud pakkumise detailsemaks lahti kirjutamiseks. Pikema teksti mugavaks sisestamiseks klikkige kasti paremal ülaservas oleval ikoonil.
Pakkumist tehes on keelatud postitada enda kontaktandmeid (nimi, telefon, aadress jne). Me jälgime ja analüüsime pakkumisi, et vältida pettuseid ja reeglite rikkumisi.
Rikkumise puhul kasutajakonto blokeeritakse.