+ Lisa oma töö      

Otsid ehitajat "Katusetööd" valdkonnast?

Parima pakkumise ja teostaja leidmiseks lisa oma töö.

Hange on lõppenud!

Võitjaks osutus kasutaja ID 50648

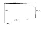
Lamekatuse kattematerjal ja paigaldus 47m2

ID 87025

644 vaatamist

Prindi

  • check Pakkumiste tegemine
    kuni 13.10.2023
  • check Võitja valik kuni
    20.10.2023
  • 3 Töö teostamine
    ja hinnang
Hanke lõpp: R, 13. oktoober, 2023
Maakond: Harjumaa
Linn: Tallinn
Tööde algus: E, 16. oktoober, 2023 (Soovituslik)
Tööde lõpp: R, 27. oktoober, 2023 (Soovituslik)
Ehitusmaterjalid: Töö tegija poolt
Soovin pakkumisi: Summa kogu projektile

Töö sisu

Ootame betoonist valatud lamekatusele (pikimad küljed 9,7m X 5,6m) ilmastikukindlat/veekindlat kattematerjali mis ei ole SPS. Kokku koos äärtega pinda 46,57m2. Materjal peaks kannatama ka tulevikus ehitatavat puidust terrassi.
Pakkuda lamekatusele sobivat materjali: EPDM, PVC, vms.

Pildid, video ja failid

Hanke korraldaja: eraisik ID225

Pakkumised

Pakkumisi kokku: 5

Ettevõte Summa Käibemaks Lisatud Vestlus
Kasutaja ikoon ID52293
Pakkuja profiil Väike nool paremale
5 000€ Sisaldab KM Sisaldab KM 06.10.2023 Vestlus (0)
Kasutaja ikoon ID50648
Pakkuja profiil Väike nool paremale
2 500€ KM lisandub KM lisandub 07.10.2023 Vestlus (0)

Pakkumise kirjeldus:

Pvc paigaldusega ja servaplekkidega

Garantii ja sertifitseeritud paigaldaja

Saab ilma kmta

Kasutaja ikoon ID70113
Pakkuja profiil Väike nool paremale
3 600€ Sisaldab KM Sisaldab KM 07.10.2023 Vestlus (0)

Pakkumise kirjeldus:

Tere, hinnas on käibemaks, PVC 2,0 terassikatte materjal, geotekstiil, PVC üüreplekk, seinaplekk, kinnitusvahendid, transport, paigaldus.

Lugupidamisega

Kasutaja ikoon ID50594
Pakkuja profiil Väike nool paremale
6 000€ KM lisandub KM lisandub 13.10.2023 Vestlus (0)

Pakkumise kirjeldus:

Tere,

Pakkumine vastavalt hanke kirjeldusele.

Lgp. Taivo

Kasutaja ikoon ID76330
Pakkuja profiil Väike nool paremale
4 715€ Sisaldab KM Sisaldab KM 13.10.2023 Vestlus (0)

Pakkumise kirjeldus:

Pakkumine vastavalt kliendi kirjeldusele:
*Lamekatuse kattematerjal vastavalt kohapealsele tegelikule olukorrrale, kas EPDM või PVC
*Paigaldus
*Ehitusjärgne prügi utiliseerimine

Parimat!

Küsimused hanke korraldajale

Hanke korraldajale ei ole veel küsimusi esitatud.

Lisa küsimus

Lisa küsimus

Minu pakkumine

Reeglid

Pakkumise kirjelduse väli on mõeldud pakkumise detailsemaks lahti kirjutamiseks. Pikema teksti mugavaks sisestamiseks klikkige kasti paremal ülaservas oleval ikoonil.
Pakkumist tehes on keelatud postitada enda kontaktandmeid (nimi, telefon, aadress jne). Me jälgime ja analüüsime pakkumisi, et vältida pettuseid ja reeglite rikkumisi.
Rikkumise puhul kasutajakonto blokeeritakse.

 

Teisi töid samas valdkonnas

Valdkonnas "Katusetööd" on 9 aktiivset tööd

no-img Pilt puudub

Käidava katuse PVC 54m2

Asukoht: Harjumaa, Muraste
Aega jäänud: 4p 8h
Tehtud pakkumisi: 3

Suvila

Asukoht: Pärnumaa, Eametsa
Aega jäänud: 8h 33 min
Tehtud pakkumisi: 2

Vanemad teated:

Vaata kõiki

Sellel veebilehel kasutatakse küpsiseid. Kasutamist jätkates nõustute küpsiste kasutamisega.

Sulge
 
Minu pakkumine

Reeglid

Pakkumise kirjelduse väli on mõeldud pakkumise detailsemaks lahti kirjutamiseks. Pikema teksti mugavaks sisestamiseks klikkige kasti paremal ülaservas oleval ikoonil.
Pakkumist tehes on keelatud postitada enda kontaktandmeid (nimi, telefon, aadress jne). Me jälgime ja analüüsime pakkumisi, et vältida pettuseid ja reeglite rikkumisi.
Rikkumise puhul kasutajakonto blokeeritakse.