+ Lisa oma töö      

Otsid ehitajat "Põrandatööd" valdkonnast?

Parima pakkumise ja teostaja leidmiseks lisa oma töö.

Hange on lõppenud!

Võitjaks osutus kasutaja ID 59969

Parketi paigaldus

ID 86505

587 vaatamist

Prindi

  • check Pakkumiste tegemine
    kuni 23.09.2023
  • check Võitja valik kuni
    23.09.2023
  • 3 Töö teostamine
    ja hinnang
Hanke lõpp: L, 23. september, 2023
Maakond: Harjumaa
Linn: Tallinn
Tööde algus: E, 02. oktoober, 2023 (Soovituslik)
Tööde lõpp: P, 15. oktoober, 2023 (Soovituslik)
Ehitusmaterjalid: Töö tellija poolt
Soovin pakkumisi: Summa kogu projektile

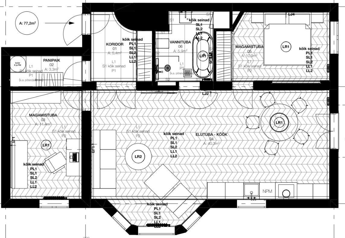
Töö sisu

On tarvis paigaldada u 63m2 kalasabaparketti. Parkett paigaldatakse OSB plaadile liimiga. Parkett ning liim olemas. Parketi lipi mõõdud 10,5*65*490mm.
Põrandaplaan lisatud.
Korter on tühi ning mingeid lisatöid ei ole vaja eelnevalt teha, samuti ei soovi liistude paigaldust.
NB! Põrandaplaanis Prantuse kalasaba, aga tegelikult tuleb tavaline.

Pildid, video ja failid

Hanke korraldaja: eraisik ID77268

Pakkumised

Pakkumisi kokku: 8

Ettevõte Summa Käibemaks Lisatud Vestlus
Kasutaja ikoon ID72269
Pakkuja profiil Väike nool paremale
3 350€ Ei ole KMKR Ei ole KMKR 20.09.2023 Vestlus (0)

Pakkumise kirjeldus:

Tere,
Esitan pakkumise hankes kirjeldatud töödele.

Parimat,

Olev

Kasutaja ikoon ID3527
Pakkuja profiil Väike nool paremale
2 400€ KM lisandub KM lisandub 20.09.2023 Vestlus (0)

Pakkumise kirjeldus:

Tere!
Omame pikaajalist kogemust ehitus valdkonnas, seega töö kiire ja kvaliteetne. Töid teostame hingega ning objekti anname üle puhtana!


Lugupidamisega,
JM

Kasutaja ikoon ID75330
Pakkuja profiil Väike nool paremale
2 000€ Sisaldab KM Sisaldab KM 21.09.2023 Vestlus (0)

Pakkumise kirjeldus:

Tere

Pakkumine vastavalt Teie poolsele informatsioonile.

Parimatega M.L

Kasutaja ikoon ID74528
Pakkuja profiil Väike nool paremale
1 800€ Sisaldab KM Sisaldab KM 21.09.2023 Vestlus (0)
Kasutaja ikoon ID75169
Pakkuja profiil Väike nool paremale
1 900€ KM lisandub KM lisandub 21.09.2023 Vestlus (0)
Kasutaja ikoon ID59969
Pakkuja profiil Väike nool paremale
1 300€ KM lisandub KM lisandub 21.09.2023 Vestlus (0)

Pakkumise kirjeldus:

Hind sisaldab parketi paigaldust. Hinnale ei lisandu kmi kui maksmine toimub sulas!
Töö kiire ja korralik. Pilt tehtud töödest Orina Ehitus OÜ Facebook lehelt.

Tervitades Siim

Kasutaja ikoon ID77093
Pakkuja profiil Väike nool paremale
2 250€ Sisaldab KM Sisaldab KM 21.09.2023 Vestlus (0)
Kasutaja ikoon ID77006
Pakkuja profiil Väike nool paremale
1 650€ Sisaldab KM Sisaldab KM 21.09.2023 Vestlus (0)

Pakkumise kirjeldus:

Selle summa eest saate parima kvaliteedi, täpsuse ja vastutustunde. Aitäh

Küsimused hanke korraldajale

Küsimus: private ID72269   20.09.2023 16:14
Tere,

Kas uksed on planeeritud uksepakuga või jääb parkett vaadeldav?

Ette tänades,

Olev

Teavita reeglite rikkumisest

Korraldaja vastus: 20.09.2023 16:17

Tere
Uksepakk tuleb ainult vannituppa, mujale mitte.
Tervitades
Hendrik

Teavita reeglite rikkumisest

Küsimus: private ID72269   20.09.2023 16:41
Arusaadav.
Tänan vastamast.
Kas oleks võimalil lisada ka pilt materjalist?

Teavita reeglite rikkumisest

Korraldaja vastus: 20.09.2023 16:44

Link tootele: https://www.rmstuudio.ee/tooted/parkett/jawor-parkett-kalasaba-tamm-rustic-timber-harjatud-olitatud

Teavita reeglite rikkumisest

Küsimus: private ID72269   20.09.2023 21:30
Tänan.

Teavita reeglite rikkumisest

Korraldaja vastus:
Hanke korraldaja ei ole küsimusele veel vastanud

Küsimus: private ID75330   20.09.2023 23:14
Tere

Kas osb on juba maas ?

Parimatega M.L

Teavita reeglite rikkumisest

Korraldaja vastus: 21.09.2023 08:17

Tere
OSB on maas ehk vaja ainult parkett maha laduda.
Tervitades
Hendrik

Teavita reeglite rikkumisest

Küsimus: private ID74528   21.09.2023 07:39
Saan tulla juba reedel tegema

Teavita reeglite rikkumisest

Korraldaja vastus:
Hanke korraldaja ei ole küsimusele veel vastanud

Lisa küsimus

Lisa küsimus

Minu pakkumine

Reeglid

Pakkumise kirjelduse väli on mõeldud pakkumise detailsemaks lahti kirjutamiseks. Pikema teksti mugavaks sisestamiseks klikkige kasti paremal ülaservas oleval ikoonil.
Pakkumist tehes on keelatud postitada enda kontaktandmeid (nimi, telefon, aadress jne). Me jälgime ja analüüsime pakkumisi, et vältida pettuseid ja reeglite rikkumisi.
Rikkumise puhul kasutajakonto blokeeritakse.

 

Teisi töid samas valdkonnas

Valdkonnas "Põrandatööd" on 2 aktiivset tööd

Talumaja põrandate valamine/ehitus koos küttetorustiku paigaldusega

Asukoht: Raplamaa, Purila
Aega jäänud: 16p 14h
Tehtud pakkumisi: 2

Põrandakütte paigaldus ja põrandavalu (kips või betoon)

Asukoht: Saaremaa, Muhu vald
Aega jäänud: 14h 24 min
Tehtud pakkumisi: 1

Vanemad teated:

Vaata kõiki

Sellel veebilehel kasutatakse küpsiseid. Kasutamist jätkates nõustute küpsiste kasutamisega.

Sulge
 
Minu pakkumine

Reeglid

Pakkumise kirjelduse väli on mõeldud pakkumise detailsemaks lahti kirjutamiseks. Pikema teksti mugavaks sisestamiseks klikkige kasti paremal ülaservas oleval ikoonil.
Pakkumist tehes on keelatud postitada enda kontaktandmeid (nimi, telefon, aadress jne). Me jälgime ja analüüsime pakkumisi, et vältida pettuseid ja reeglite rikkumisi.
Rikkumise puhul kasutajakonto blokeeritakse.