+ Lisa oma töö      

Otsid ehitajat "Siseviimistlustööd" valdkonnast?

Parima pakkumise ja teostaja leidmiseks lisa oma töö.

Kipslae ehitus ja aurutõkke paigaldus

ID 86257

874 vaatamist

Prindi

  • check Pakkumiste tegemine
    kuni 20.09.2023
  • check Võitja valik kuni
    27.09.2023
  • 3 Töö teostamine
    ja hinnang
Hanke lõpp: K, 20. september, 2023
Maakond: Harjumaa
Tööde algus: E, 25. september, 2023 (Soovituslik)
Tööde lõpp: E, 09. oktoober, 2023 (Soovituslik)
Ehitusmaterjalid: Töö tellija poolt
Soovin pakkumisi: Summa kogu projektile

Töö sisu

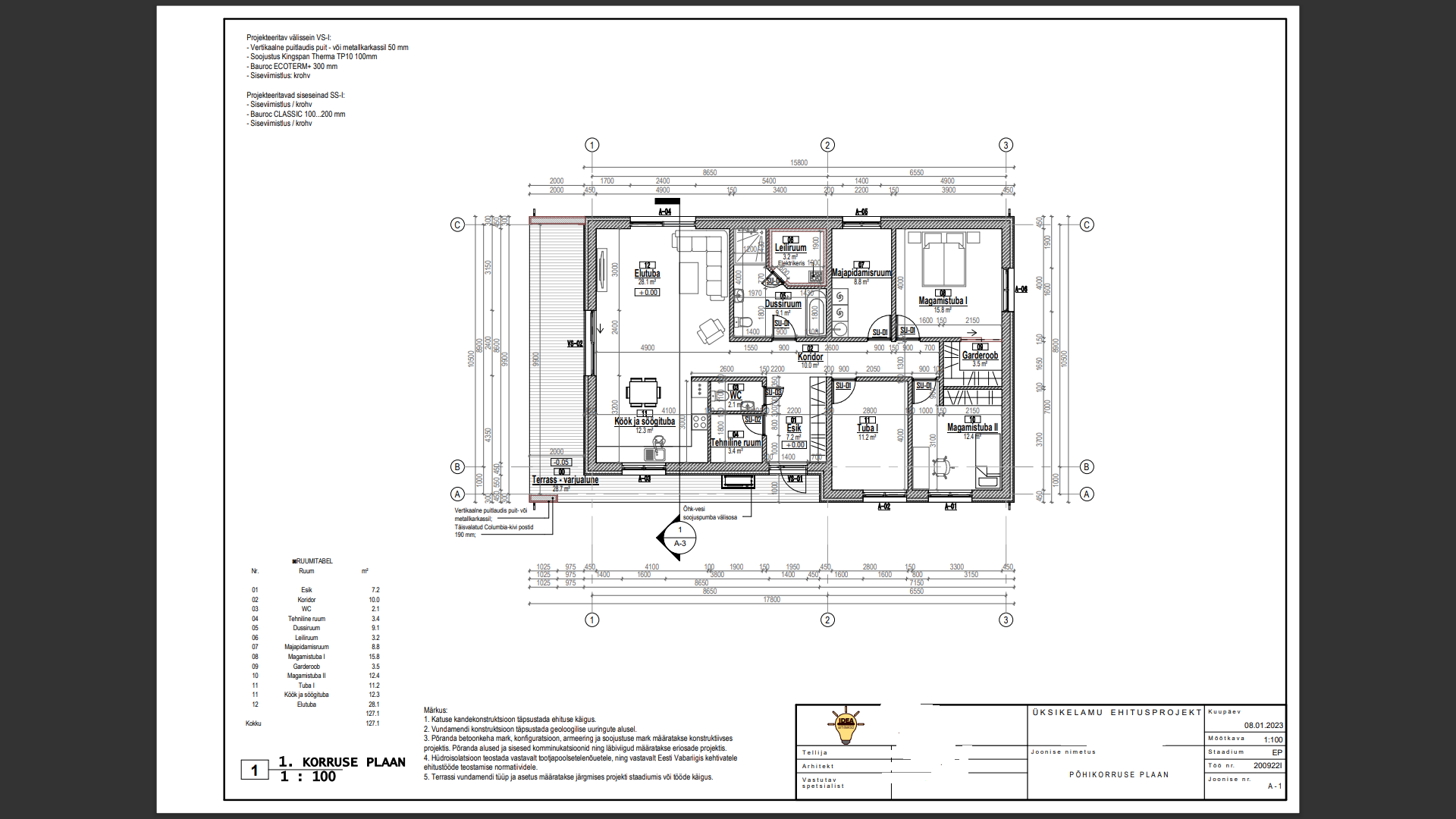
127m2 ühekordne maja aurutõkkekile paigaldus koos roovitusega (25x100) ja tihendamine.
Kahekordse kipsplaadi paigaldus koos riputitega.
Lae kõrgus 2.6m


Palun välja tuua eraldi hinnad vastavalt etappidele.

Pildid, video ja failid

Hanke korraldaja: eraisik ID71413

Pakkumised

Pakkumisi kokku: 9

Ettevõte Summa Käibemaks Lisatud Vestlus
Kasutaja ikoon ID50294
Pakkuja profiil Väike nool paremale
3 000€ Ei ole KMKR Ei ole KMKR 14.09.2023 Vestlus (0)

Pakkumise kirjeldus:

Hind vastavalt hankele. Töö kiire ja korralik. Garantii. Tegelenud ripplagedega alates 2006a.


Lugupidamisega,
Sergei. G

Kasutaja ikoon ID30805
Pakkuja profiil Väike nool paremale
5 080€ Ei ole KMKR Ei ole KMKR 14.09.2023 Vestlus (0)

Pakkumise kirjeldus:

Pakkumine vastavalt soovitule .
Maksmine 3 osas .
1 ) ettemaksuarve 40 %
2) tihendamine ja karkassi valmiduse lópp 20 %
3) lópparve, kui 2x kips on paigaldatud 40 % .
Hind on tehtud paigaldusele ja ei sisalda materjale !

Kasutaja ikoon ID50106
Pakkuja profiil Väike nool paremale
4 000€ Ei ole KMKR Ei ole KMKR 15.09.2023 Vestlus (0)
Kasutaja ikoon ID73462
Pakkuja profiil Väike nool paremale
3 560€ Ei ole KMKR Ei ole KMKR 17.09.2023 Vestlus (0)

Pakkumise kirjeldus:

Tere,

hinnas tööraha:

aurutökke paigaldus koos roovitusega + teipimine.

2x kipsplaadi paigaldus koos karkassi ehitusega.

Saaksime ette võtta Okt. keskel.

Saame lisaks pakkuda ka viimistlust, Okt. keskel lõpetame analoogse maja sisetöödega. ( kipsitööd, viimistlus, kalasaba parkett)

Arveldused iga nädalalõpp.

Parimat
E.

Kasutaja ikoon ID73822
Pakkuja profiil Väike nool paremale
3 175€ KM lisandub KM lisandub 18.09.2023 Vestlus (0)
Kasutaja ikoon ID54654
Pakkuja profiil Väike nool paremale
2 800€ KM lisandub KM lisandub 20.09.2023 Vestlus (0)

Pakkumise kirjeldus:

Tere. Meie pakkumine sisaldab.
Aurutõkke paigaldus koos roovi ja teipimisega.
Kips karkassi ehitus rihtimisega ja kipsi paigaldus.
Objekti koristamine peale tööde lõppu.
Arveldamine kahes osas (peale aurutõket ja tööde lõpus) Võimalik ka ilma km.
Lugupidamisega: R.

Kasutaja ikoon ID37184
Pakkuja profiil Väike nool paremale
2 500€ Ikoon kell KM lisandub KM lisandub 20.09.2023 Vestlus (0)
Kasutaja ikoon ID57475
Pakkuja profiil Väike nool paremale
2 540€ KM lisandub KM lisandub 20.09.2023 Vestlus (0)
Kasutaja ikoon ID73479
Pakkuja profiil Väike nool paremale
5 500€ Sisaldab KM Sisaldab KM 20.09.2023 Vestlus (0)

Pakkumise kirjeldus:

Tere,

Hea meelega teostame tööd teie jaoks.tööd tehakse kvaliteetselt ja võimalikult kiiresti.Pakume 5 aastane garantii oma töödele.

See hind sisaldab kõiki nimekirjas olevaid soovitud tööd.
Spetsialisti tulek teie objektile, hinnapakkumise ja tööteostamise lepingu koostamine.

Minu firma tegeleb katuste, fassaadide ehitusega ning üldeh ... Rohkem

Küsimused hanke korraldajale

Küsimus: private ID73820   13.09.2023 21:41
Tere
mis asjad on riputid mida paigaldada tueb ?

Teavita reeglite rikkumisest

Korraldaja vastus: 14.09.2023 01:02

Kipslae karkass tuleb olemasolevast fermi pinnast alla poole tuua ja neid nimetatakse rahvakeeli "riputiteks"

Teavita reeglite rikkumisest

Küsimus: private ID50106   14.09.2023 16:45
Tere,

Kas tööde algus oktoobri esimene nädal sobib?
Kas saate täpsustada linna osa?

Tänud

Teavita reeglite rikkumisest

Korraldaja vastus: 14.09.2023 16:51

Tere

Mida rutem seda parem, aga sobiks ka oktoobri esimene nädal.

Tervitades
Kaido

Teavita reeglite rikkumisest

Küsimus: private ID50106   14.09.2023 17:06
Ja kus piirkonnas objekt asub?

Tänud

Teavita reeglite rikkumisest

Korraldaja vastus: 14.09.2023 19:16

Saue vald

Teavita reeglite rikkumisest

Küsimus: private ID47600   18.09.2023 09:22
Tere.

Küsimus, et tööd tuleb siis teostada 2 etapis?
Aurutõke ja roovitus ning seejärel kaabeldus? Samuti ventilatsioon või tehakse see hiljem ülevalt?
Miks kasutada riputeid? Kas ristiroovitus ei oleks mõistlikum kasutada? Samuti mütsprofiili?


Tervitades
Tarmo

Teavita reeglite rikkumisest

Korraldaja vastus: 19.09.2023 08:46

Tere
Töö on ja kahes etapis, kuna vahepeal tuleks kaabeldus.
Ventilatsioon on mul omal peaaegu valmis, aga allaviigud toon peale aurutõkke kile, et hetkel ei segaks kile paigaldust.
Mütsprofiiil sobiks ka, praegu kõrgus 2745 aga soovime 2600 peale, et ei tea mis karkassi puidust sinna tegema peaks (külmasilla kaoks).

Tervitades
Kaido

Teavita reeglite rikkumisest

Lisa küsimus

Lisa küsimus

Minu pakkumine

Reeglid

Pakkumise kirjelduse väli on mõeldud pakkumise detailsemaks lahti kirjutamiseks. Pikema teksti mugavaks sisestamiseks klikkige kasti paremal ülaservas oleval ikoonil.
Pakkumist tehes on keelatud postitada enda kontaktandmeid (nimi, telefon, aadress jne). Me jälgime ja analüüsime pakkumisi, et vältida pettuseid ja reeglite rikkumisi.
Rikkumise puhul kasutajakonto blokeeritakse.

 

Teisi töid samas valdkonnas

Valdkonnas "Siseviimistlustööd" on 20 aktiivset tööd

Seinte pahteldus ja värvimine

Asukoht: Harjumaa, Türisalu
Aega jäänud: 2p 20h
Tehtud pakkumisi: 7

Korteri seinte ja lagede värvimine, osaline pahteldamine

Asukoht: Harjumaa, Tallinn
Aega jäänud: 20h 33 min
Tehtud pakkumisi: 5

Vanemad teated:

Vaata kõiki

Sellel veebilehel kasutatakse küpsiseid. Kasutamist jätkates nõustute küpsiste kasutamisega.

Sulge
 
Minu pakkumine

Reeglid

Pakkumise kirjelduse väli on mõeldud pakkumise detailsemaks lahti kirjutamiseks. Pikema teksti mugavaks sisestamiseks klikkige kasti paremal ülaservas oleval ikoonil.
Pakkumist tehes on keelatud postitada enda kontaktandmeid (nimi, telefon, aadress jne). Me jälgime ja analüüsime pakkumisi, et vältida pettuseid ja reeglite rikkumisi.
Rikkumise puhul kasutajakonto blokeeritakse.