+ Lisa oma töö      

Otsid ehitajat "Korterite remont" valdkonnast?

Parima pakkumise ja teostaja leidmiseks lisa oma töö.

Krohvimistööd 3 toalises korteris

ID 86186

945 vaatamist

Prindi

  • check Pakkumiste tegemine
    kuni 25.09.2023
  • check Võitja valik kuni
    02.10.2023
  • 3 Töö teostamine
    ja hinnang
Hanke lõpp: E, 25. september, 2023
Maakond: Tartumaa
Muu asula: Mehikoorma
Tööde algus: E, 25. september, 2023 (Soovituslik)
Tööde lõpp: E, 16. oktoober, 2023 (Soovituslik)
Ehitusmaterjalid: Töö tellija poolt
Soovin pakkumisi: Summa kogu projektile

Töö sisu

Tere,

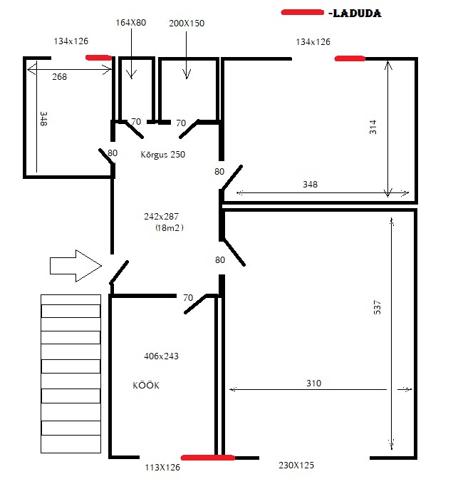
Sooviks krohvida seinad, akna põsed (peno+kipsplaat), laes vuugivahed krohvida ja vajadusel pahteldada.
Akna juures olevad avad kinni laduda. (Fibo)
Väike tuba avaga: 60 x 133 cm
2 väike tuba avaga (välisukse pakend varjas ava ära): 60 x 133 cm
Köök avaga (Pildil tõmbasin punased triibud peale kus tuleks vineer eest ära võtta ja kinni laduda): 60 x 130 cm
Suures toas ava: 30 x 130 cm

Pildid, video ja failid

Hanke korraldaja: eraisik ID65643

Pakkumised

Pakkumisi kokku: 2

Ettevõte Summa Käibemaks Lisatud Vestlus
Kasutaja ikoon ID70223
Pakkuja profiil Väike nool paremale
7 100€ KM lisandub KM lisandub 25.09.2023 Vestlus (2)

Pakkumise kirjeldus:

Hinnapakkumine sisaldab akende kõrval avade kinni ladumist, akna põskede ehitamist kipsiga, lagede pahteldamist ja värvimist, seinte krohvimist mp75-ga ning ettevalmistust tapeedi pinna jaoks (krohvipinnale vajadusel pahteldus ja krunt). Koostöö sobivusel saab hiljem ka seinad ära tapetseerida. Parimat!

Kasutaja ikoon ID73479
Pakkuja profiil Väike nool paremale
10 000€ Sisaldab KM Sisaldab KM 25.09.2023 Vestlus (0)

Pakkumise kirjeldus:

Tere,

Hea meelega teostame tööd teie jaoks.tööd tehakse kvaliteetselt ja võimalikult kiiresti.Pakume 5 aastane garantii oma töödele.

See hind sisaldab kõiki nimekirjas olevaid soovitud tööd.
Spetsialisti tulek teie objektile, hinnapakkumise ja tööteostamise lepingu koostamine.

Minu firma tegeleb katuste, fassaadide ehitusega ning üldeh ... Rohkem

Küsimused hanke korraldajale

Küsimus: private ID70223   12.09.2023 09:12
Tere
Kas seinad soovite krohvida mp75-ga ja üle pahteldada ja värvida, soovite ainult krohvimist või tahate pahteldamist ja värvimist ka. Palju on põranda üldpinda ja kas materjal teie või ehitaja poolt?

Teavita reeglite rikkumisest

Korraldaja vastus: 12.09.2023 18:59

Tere,

Kokku on korteri pindala 58m2.
Seinu on plaanis krohvida MP75-ga (kui aga on prof. krohvija siis tavalise krohviseguga)
Soov on hinnapakkumist saada krohvimisele ja pahteldamisele. (Edaspidi siis aquastop peale ja läheb tapeedi alla )
Minul on huvi hetkel krohvida ja pahteldada seinad ja laed - Seinu ja lage ei pea sirgeks ajama! (laed värvida)
Kui pakute tapeetimist siis võib selle eraldi välja tuua. Tapeedi alla lähevad kõik 3 tuba ja koridor.

Teavita reeglite rikkumisest

Lisa küsimus

Lisa küsimus

Minu pakkumine

Reeglid

Pakkumise kirjelduse väli on mõeldud pakkumise detailsemaks lahti kirjutamiseks. Pikema teksti mugavaks sisestamiseks klikkige kasti paremal ülaservas oleval ikoonil.
Pakkumist tehes on keelatud postitada enda kontaktandmeid (nimi, telefon, aadress jne). Me jälgime ja analüüsime pakkumisi, et vältida pettuseid ja reeglite rikkumisi.
Rikkumise puhul kasutajakonto blokeeritakse.

 

Teisi töid samas valdkonnas

Valdkonnas "Korterite remont" on 2 aktiivset tööd

Vannitoa lampide paigaldus + erinevad pisiparandused korteris

Asukoht: Harjumaa, Tallinn
Aega jäänud: 1p 21h
Tehtud pakkumisi: 3

Korteri kapitaalremont ja ümberehitus (täielik siseviimistlus + elektritööd)

Asukoht: Järvamaa
Aega jäänud: 12p 21h
Tehtud pakkumisi: 0

Vanemad teated:

Vaata kõiki

Sellel veebilehel kasutatakse küpsiseid. Kasutamist jätkates nõustute küpsiste kasutamisega.

Sulge
 
Minu pakkumine

Reeglid

Pakkumise kirjelduse väli on mõeldud pakkumise detailsemaks lahti kirjutamiseks. Pikema teksti mugavaks sisestamiseks klikkige kasti paremal ülaservas oleval ikoonil.
Pakkumist tehes on keelatud postitada enda kontaktandmeid (nimi, telefon, aadress jne). Me jälgime ja analüüsime pakkumisi, et vältida pettuseid ja reeglite rikkumisi.
Rikkumise puhul kasutajakonto blokeeritakse.