+ Lisa oma töö      

Otsid ehitajat "Pinnasetööd" valdkonnast?

Parima pakkumise ja teostaja leidmiseks lisa oma töö.

Vundamendi padja ja sissesõidu osa loomine

ID 85990

369 vaatamist

Prindi

  • check Pakkumiste tegemine
    kuni 19.09.2023
  • check Võitja valik kuni
    26.09.2023
  • 3 Töö teostamine
    ja hinnang
Hanke lõpp: T, 19. september, 2023
Maakond: Läänemaa
Muu asula: Kaasiku
Tööde algus: P, 01. oktoober, 2023 (Soovituslik)
Tööde lõpp: P, 15. oktoober, 2023 (Soovituslik)
Ehitusmaterjalid: Töö tellija poolt
Soovin pakkumisi: Summa kogu projektile

Töö sisu

Töö nr 1.
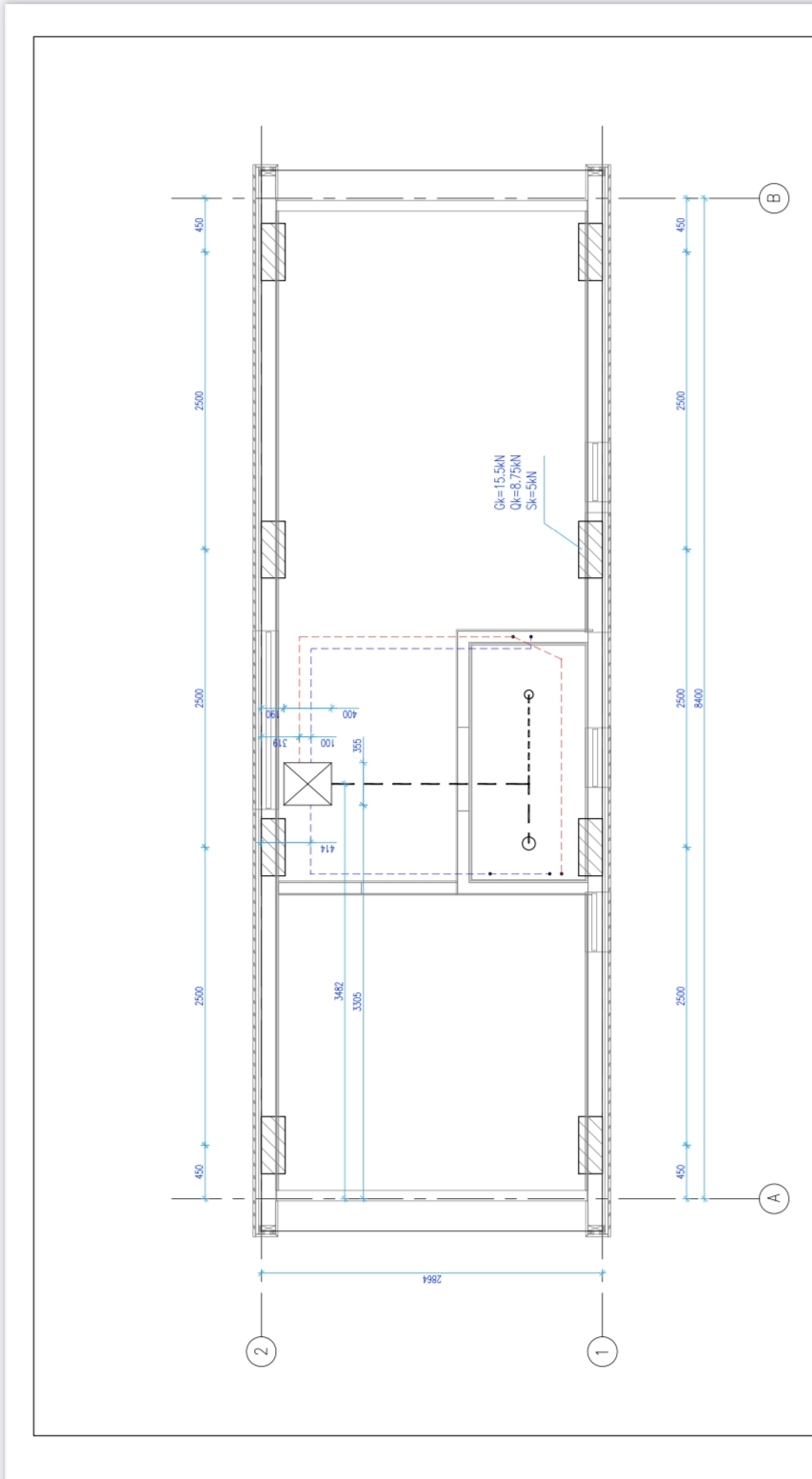
On vaja rajada riigitee ja kinnistu servast mahasõiduks suurem, tugevam ja kandvam teeots.
Tee peab kandma hiljem veokit, mis kannab moodulhoonet. (Vaata joonist).

Töö nr 2.
On vaja koorida asendiplaani järgi pinnas, sinna lisada kommunikatsioonide (vesi, kanalisatsioon ja elekter) liitumispunktid.
Tõsta pinnast vundamendi alal umbes 20cm ja see tugevalt kokku pinnata.
Hiljem tuleb sinna kruvivaivundament.
Koorimine ->täitematerjal->kild

Töö nr 3.
Teha kaevetöö elektrikaabli kilbist kuni vundamendi piirini.

Kooritud pinnase utiliseerimine ehk tööjärgne äravedamine.
Mahasõidu rajamkseks kild töövõtja poolt. Töö rajaja teeb ettepaneku sobiva killu valikuks.
Vundamendi padija ja tõstmise materjal töövõtja poolt.

Vastan tekkivatele küsimustele.

Eeldatav töö lõpetamise aeg oktoobri teine nädal 2023.

Pildid, video ja failid

Hanke korraldaja: eraisik ID56486

Pakkumised

Pakkumisi kokku: 3

Ettevõte Summa Käibemaks Lisatud Vestlus
Kasutaja ikoon ID48431
Pakkuja profiil Väike nool paremale
6 750€ Sisaldab KM Sisaldab KM 14.09.2023 Vestlus (0)

Pakkumise kirjeldus:

Tere
Minu pakkumine hankes olevale tööle.
Hind sisaldab
25meetri tee ja maja aluse väljakaeve koos ultiseerimisega.
25meerti tee ehitus koos materjaliga.
Maja aluse täide koos killustiku padjaga
Elektri kaeviku kaevamine 35 meetrit.

Kasutaja ikoon ID73479
Pakkuja profiil Väike nool paremale
8 000€ Sisaldab KM Sisaldab KM 19.09.2023 Vestlus (0)

Pakkumise kirjeldus:

Tere,

Hea meelega teostame tööd teie jaoks.tööd tehakse kvaliteetselt ja võimalikult kiiresti.Pakume 5 aastane garantii oma töödele.

See hind sisaldab kõiki nimekirjas olevaid soovitud tööd.
Spetsialisti tulek teie objektile, hinnapakkumise ja tööteostamise lepingu koostamine.

Minu firma tegeleb katuste, fassaadide ehitusega ning üldeh ... Rohkem

Kasutaja ikoon ID60852
Pakkuja profiil Väike nool paremale
7 400€ Sisaldab KM Sisaldab KM 19.09.2023 Vestlus (0)

Küsimused hanke korraldajale

Küsimus: private ID48431   06.09.2023 22:24
Tere
Sooviks teada tee pikkust ja laiust.
Parkla mõõdud?
Elekti kilbi kaugus majast?

Teavita reeglite rikkumisest

Korraldaja vastus: 07.09.2023 11:47

Tere,

Elektri kilbi kaugus majast umbes 30-35m.
Tee pikkus umbes 25m. Parklat eraldi rajama ei pea, piisab esialgu lihtsalt teest.
Laius teel 3m.

Teavita reeglite rikkumisest

Lisa küsimus

Lisa küsimus

Minu pakkumine

Reeglid

Pakkumise kirjelduse väli on mõeldud pakkumise detailsemaks lahti kirjutamiseks. Pikema teksti mugavaks sisestamiseks klikkige kasti paremal ülaservas oleval ikoonil.
Pakkumist tehes on keelatud postitada enda kontaktandmeid (nimi, telefon, aadress jne). Me jälgime ja analüüsime pakkumisi, et vältida pettuseid ja reeglite rikkumisi.
Rikkumise puhul kasutajakonto blokeeritakse.

 

Teisi töid samas valdkonnas

Valdkonnas "Pinnasetööd" on 4 aktiivset tööd

Salvkaevu sulgemine

Asukoht: Tartumaa
Aega jäänud: 3p 11h
Tehtud pakkumisi: 1

Panduse rajamine: äärekivid, geotekstiil ja killustik

Asukoht: Harjumaa, Tänassilma
Aega jäänud: 1p 11h
Tehtud pakkumisi: 1

Vanemad teated:

Vaata kõiki

Sellel veebilehel kasutatakse küpsiseid. Kasutamist jätkates nõustute küpsiste kasutamisega.

Sulge
 
Minu pakkumine

Reeglid

Pakkumise kirjelduse väli on mõeldud pakkumise detailsemaks lahti kirjutamiseks. Pikema teksti mugavaks sisestamiseks klikkige kasti paremal ülaservas oleval ikoonil.
Pakkumist tehes on keelatud postitada enda kontaktandmeid (nimi, telefon, aadress jne). Me jälgime ja analüüsime pakkumisi, et vältida pettuseid ja reeglite rikkumisi.
Rikkumise puhul kasutajakonto blokeeritakse.