+ Lisa oma töö      

Otsid ehitajat "Üldehitus" valdkonnast?

Parima pakkumise ja teostaja leidmiseks lisa oma töö.

Köögist pesuruumi ümberehitus

ID 85977

325 vaatamist

Prindi

  • check Pakkumiste tegemine
    kuni 12.09.2023
  • check Võitja valik kuni
    19.09.2023
  • 3 Töö teostamine
    ja hinnang
Hanke lõpp: T, 12. september, 2023
Maakond: Harjumaa
Linn: Tallinn
Tööde algus: E, 02. oktoober, 2023 (Soovituslik)
Tööde lõpp: R, 01. detsember, 2023 (Soovituslik)
Ehitusmaterjalid: Töö tellija poolt
Soovin pakkumisi: Summa kogu projektile

Töö sisu

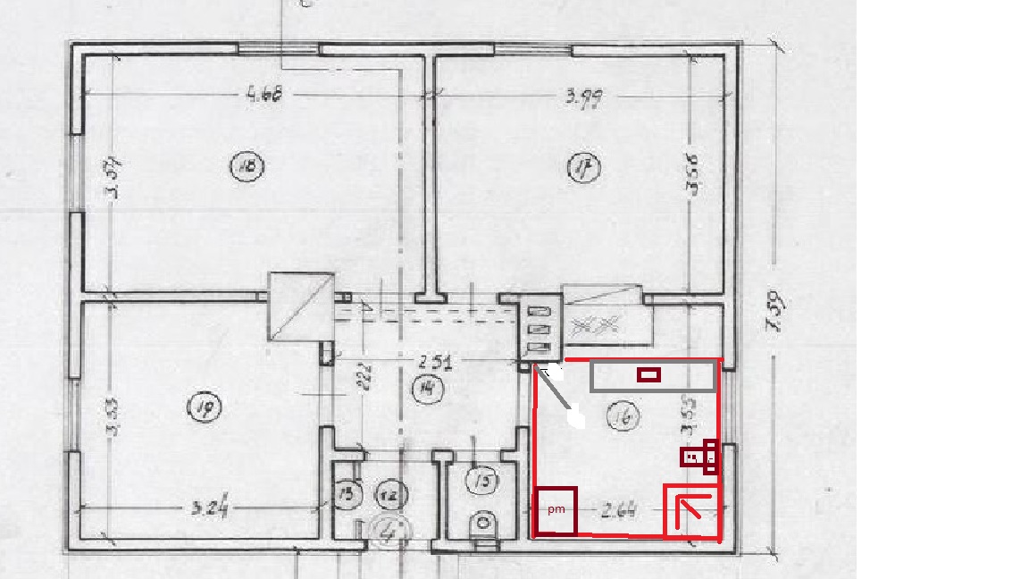
Tallinnas Nõmmel puumajas endisest köögist pesuruumi ümberehitus.
Pindalaga 2,6 x 2,6 m.
Torude paigaldus, põrandale küttekonturri paigaldus, valu põrandale, senitele kips, hüdo ja plaadid.

Pildid, video ja failid

Hanke korraldaja: eraisik ID76969

Pakkumised

Pakkumisi kokku: 5

Ettevõte Summa Käibemaks Lisatud Vestlus
Kasutaja ikoon ID40585
Pakkuja profiil Väike nool paremale
9 740€ Ei ole KMKR Ei ole KMKR 12.09.2023 Vestlus (0)

Pakkumise kirjeldus:

Tere.
Pakkumine indikatiivne eeldatava analoogse töö baasilt. Oleks vaja enne tööde algust töö sisu nig mahtusid objektil kohapeal täpsustada.
Kui kokkulepe teha 15.09.23, siis tööde võimalik algus idee poolest ka 20.09.23.

Kasutaja ikoon ID64446
Pakkuja profiil Väike nool paremale
6 000€ Sisaldab KM Sisaldab KM 12.09.2023 Vestlus (0)
Kasutaja ikoon ID71818
Pakkuja profiil Väike nool paremale
7 000€ Ei ole KMKR Ei ole KMKR 12.09.2023 Vestlus (0)

Pakkumise kirjeldus:

Tere pakkumine tehtud vastavalt hanke kirjelduse järgi.Materjal tellija poolt.Saame aidata materjali transpordiga.Garantii 2aastat.Lgp S.E

Kasutaja ikoon ID75913
Pakkuja profiil Väike nool paremale
7 200€ Ei ole KMKR Ei ole KMKR 12.09.2023 Vestlus (0)

Pakkumise kirjeldus:

Tere!
Teen hinnapakkumise vastavalt hanke kirjeldusele, millele lisandub hanke tasu.
Hanke täpsem hind võib muutuda, sõltuvalt sellest, milliseid viimistlusmaterjale ja võimalikke erilahendusi kasutame. Võimalik ettemaks oleks kokkuleppel ja mõeldud materjali ostuks.

Parimat soovides!

Kasutaja ikoon ID73479
Pakkuja profiil Väike nool paremale
10 000€ Sisaldab KM Sisaldab KM 12.09.2023 Vestlus (0)

Pakkumise kirjeldus:

Tere,

Hea meelega teostame tööd teie jaoks.tööd tehakse kvaliteetselt ja võimalikult kiiresti.Pakume 5 aastane garantii oma töödele.

See hind sisaldab kõiki nimekirjas olevaid soovitud tööd.
Spetsialisti tulek teie objektile, hinnapakkumise ja tööteostamise lepingu koostamine.

Minu firma tegeleb katuste, fassaadide ehitusega ning üldeh ... Rohkem

Küsimused hanke korraldajale

Küsimus: private ID71818   05.09.2023 19:22
Tere sooviks täpsemat kirjeldust

Teavita reeglite rikkumisest

Korraldaja vastus:
Hanke korraldaja ei ole küsimusele veel vastanud

Küsimus: private ID40585   12.09.2023 05:53
Paluks lisaks täpsemale kirjeldusele ka pilte ol.olevast olukorrast.

Teavita reeglite rikkumisest

Korraldaja vastus:
Hanke korraldaja ei ole küsimusele veel vastanud

Lisa küsimus

Lisa küsimus

Minu pakkumine

Reeglid

Pakkumise kirjelduse väli on mõeldud pakkumise detailsemaks lahti kirjutamiseks. Pikema teksti mugavaks sisestamiseks klikkige kasti paremal ülaservas oleval ikoonil.
Pakkumist tehes on keelatud postitada enda kontaktandmeid (nimi, telefon, aadress jne). Me jälgime ja analüüsime pakkumisi, et vältida pettuseid ja reeglite rikkumisi.
Rikkumise puhul kasutajakonto blokeeritakse.

 

Teisi töid samas valdkonnas

Valdkonnas "Üldehitus" on 30 aktiivset tööd

Kuuri lammutus

Asukoht: Pärnumaa
Aega jäänud: 2p 21h
Tehtud pakkumisi: 6

Põrandakütte torustiku ja kollektori paigaldus.

Asukoht: Harjumaa, Kurkse
Aega jäänud: 15p 21h
Tehtud pakkumisi: 4

Vanemad teated:

Vaata kõiki

Sellel veebilehel kasutatakse küpsiseid. Kasutamist jätkates nõustute küpsiste kasutamisega.

Sulge
 
Minu pakkumine

Reeglid

Pakkumise kirjelduse väli on mõeldud pakkumise detailsemaks lahti kirjutamiseks. Pikema teksti mugavaks sisestamiseks klikkige kasti paremal ülaservas oleval ikoonil.
Pakkumist tehes on keelatud postitada enda kontaktandmeid (nimi, telefon, aadress jne). Me jälgime ja analüüsime pakkumisi, et vältida pettuseid ja reeglite rikkumisi.
Rikkumise puhul kasutajakonto blokeeritakse.