+ Lisa oma töö      

Otsid ehitajat "Maalritööd" valdkonnast?

Parima pakkumise ja teostaja leidmiseks lisa oma töö.

Seinte krohvimine/pahteldamine/värvimine

ID 85794

499 vaatamist

Prindi

  • check Pakkumiste tegemine
    kuni 13.09.2023
  • check Võitja valik kuni
    20.09.2023
  • 3 Töö teostamine
    ja hinnang
Hanke lõpp: K, 13. september, 2023
Maakond: Harjumaa
Muu asula: Vaida
Tööde algus: E, 18. september, 2023 (Soovituslik)
Tööde lõpp: P, 08. oktoober, 2023
Ehitusmaterjalid: Töö tellija poolt
Soovin pakkumisi: Tüki- või ühikuhinda

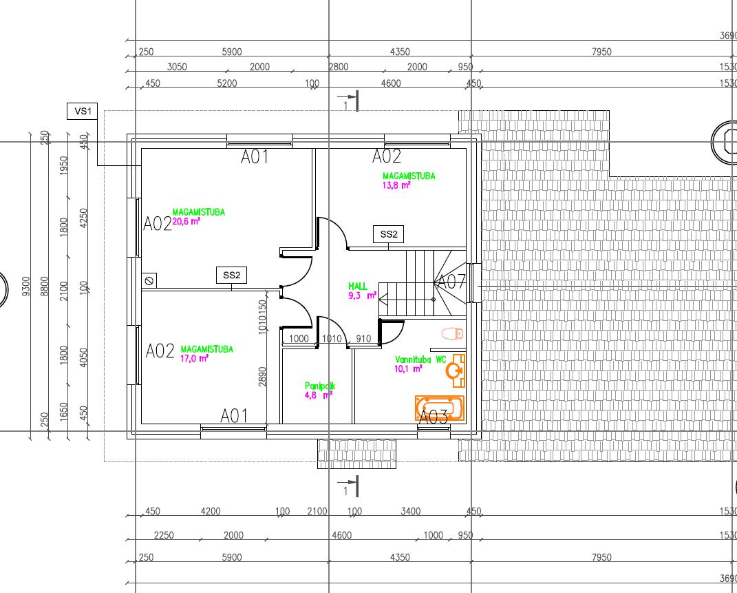
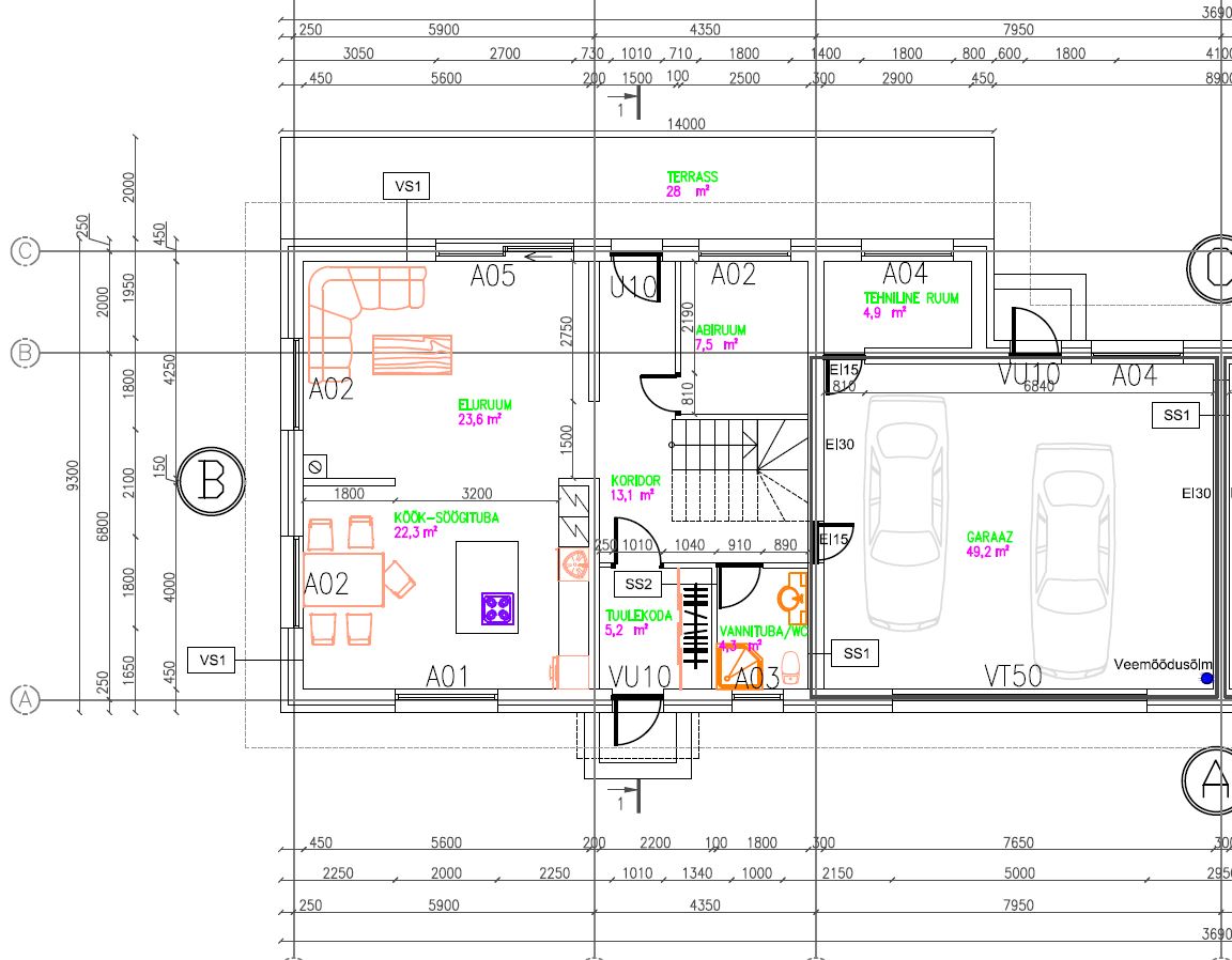
Töö sisu

Eramajal oleks vaja krohvida/pahteldada/värvida seinu. Välisseinad on fibo plokist ja siseseinad koos laega on kipsist, seinad on sirged.

Ettemaksu ei maksa, rahad saab vastavalt tehtud tööle

Mis oleks m2 töö hind

Pildid, video ja failid

Hanke korraldaja: eraisik ID68449

Pakkumised

Pakkumisi kokku: 9

Ettevõte Summa Käibemaks Lisatud Vestlus
Kasutaja ikoon ID71043
Pakkuja profiil Väike nool paremale
27€ KM lisandub KM lisandub 31.08.2023 Vestlus (0)
Kasutaja ikoon ID65365
Pakkuja profiil Väike nool paremale
25€ Ei ole KMKR Ei ole KMKR 08.09.2023 Vestlus (0)
Kasutaja ikoon ID71887
Pakkuja profiil Väike nool paremale
25€ Ei ole KMKR Ei ole KMKR 11.09.2023 Vestlus (0)

Pakkumise kirjeldus:

Fibo seinad krohvitud võrguga. ja pahteldatud.
Lauspahteldus.
Nurgad ja vuugid.
Tulemus jääb väga hea.
Saan saata pilte.

Tasu kolmes osas:
Peale krohvitööd
Peale lauspahtlit
Peale lõppvärvi

Kasutaja ikoon ID56408
Pakkuja profiil Väike nool paremale
20€ Sisaldab KM Sisaldab KM 13.09.2023 Vestlus (0)
Kasutaja ikoon ID67818
Pakkuja profiil Väike nool paremale
18€ Sisaldab KM Sisaldab KM 13.09.2023 Vestlus (1)
Kasutaja ikoon ID44917
Pakkuja profiil Väike nool paremale
30€ Ei ole KMKR Ei ole KMKR 13.09.2023 Vestlus (0)

Pakkumise kirjeldus:

Tööraha.
Arveldamine etappide kaupa,krohvimine,pahteldatud,värvimine.
Võimalik alustada 18.09

Kasutaja ikoon ID52293
Pakkuja profiil Väike nool paremale
20€ Sisaldab KM Sisaldab KM 13.09.2023 Vestlus (0)
Kasutaja ikoon ID50979
Pakkuja profiil Väike nool paremale
24€ Ei ole KMKR Ei ole KMKR 13.09.2023 Vestlus (0)
Kasutaja ikoon ID73479
Pakkuja profiil Väike nool paremale
35€ Sisaldab KM Sisaldab KM 13.09.2023 Vestlus (0)

Pakkumise kirjeldus:

Tere,

Hea meelega teostame tööd teie jaoks.tööd tehakse kvaliteetselt ja võimalikult kiiresti.Pakume 5 aastane garantii oma töödele.

See hind sisaldab kõiki nimekirjas olevaid soovitud tööd.
Spetsialisti tulek teie objektile, hinnapakkumise ja tööteostamise lepingu koostamine.

Minu firma tegeleb katuste, fassaadide ehitusega ning üldeh ... Rohkem

Küsimused hanke korraldajale

Küsimus: private ID50106   30.08.2023 20:46
Tere,
Kipsil vuugid sisse lõikamata, ukse kohal 2kiht jätkatud ebakorrektselt, kaabli süvised täitmata.
Kas sellised eeltööd tehakse enne krohvija/maalri tulekut ära tellija poolt?

Teavita reeglite rikkumisest

Korraldaja vastus: 31.08.2023 13:05

Tere, jah need eeltööd teeme ära

Teavita reeglite rikkumisest

Küsimus: private ID50979   13.09.2023 11:44
Palju umbes töömaht on?

Teavita reeglite rikkumisest

Korraldaja vastus: 13.09.2023 11:49

Tere, üle 500m2

Teavita reeglite rikkumisest

Küsimus: private ID44917   13.09.2023 16:56
Tegime pakkumise fibo viimistlusele ,kipsi viimistlus eraldi 14.-m2

Teavita reeglite rikkumisest

Korraldaja vastus:
Hanke korraldaja ei ole küsimusele veel vastanud

Lisa küsimus

Lisa küsimus

Minu pakkumine

Reeglid

Pakkumise kirjelduse väli on mõeldud pakkumise detailsemaks lahti kirjutamiseks. Pikema teksti mugavaks sisestamiseks klikkige kasti paremal ülaservas oleval ikoonil.
Pakkumist tehes on keelatud postitada enda kontaktandmeid (nimi, telefon, aadress jne). Me jälgime ja analüüsime pakkumisi, et vältida pettuseid ja reeglite rikkumisi.
Rikkumise puhul kasutajakonto blokeeritakse.

 

Vanemad teated:

Vaata kõiki

Sellel veebilehel kasutatakse küpsiseid. Kasutamist jätkates nõustute küpsiste kasutamisega.

Sulge
 
Minu pakkumine

Reeglid

Pakkumise kirjelduse väli on mõeldud pakkumise detailsemaks lahti kirjutamiseks. Pikema teksti mugavaks sisestamiseks klikkige kasti paremal ülaservas oleval ikoonil.
Pakkumist tehes on keelatud postitada enda kontaktandmeid (nimi, telefon, aadress jne). Me jälgime ja analüüsime pakkumisi, et vältida pettuseid ja reeglite rikkumisi.
Rikkumise puhul kasutajakonto blokeeritakse.