+ Lisa oma töö      

Otsid ehitajat "Põrandaküte, paigaldus" valdkonnast?

Parima pakkumise ja teostaja leidmiseks lisa oma töö.

Põrandakütte paigaldus

ID 85518

547 vaatamist

Prindi

  • check Pakkumiste tegemine
    kuni 29.08.2023
  • check Võitja valik kuni
    05.09.2023
  • 3 Töö teostamine
    ja hinnang
Hanke lõpp: T, 29. august, 2023
Maakond: Harjumaa
Linn: Tallinn
Tööde algus: E, 28. august, 2023 (Soovituslik)
Tööde lõpp: L, 30. september, 2023 (Soovituslik)
Ehitusmaterjalid: Töö tellija poolt
Soovin pakkumisi: Summa kogu projektile

Töö sisu

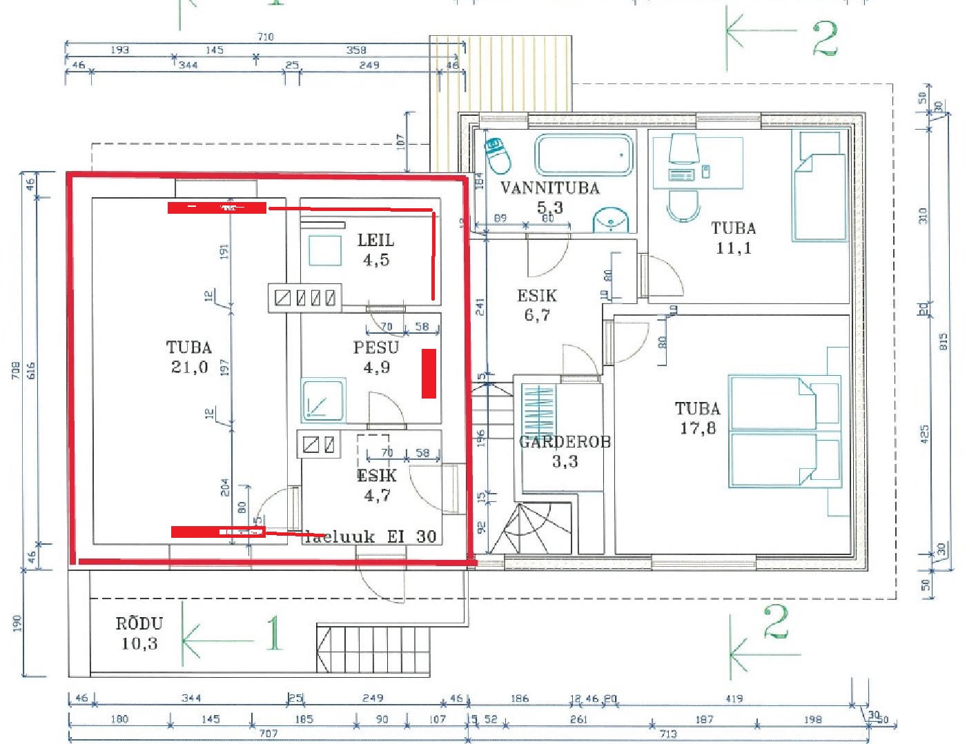
Soov paigaldada eramu teisele korrusele põrandaküte. Ruumid asuvad peamiselt kütmata garaazi kohal ja osaliselt tehnoruumi kohal, mis on samuti kütmata, kuid mitte nii külm. Betoonvahelaed. Hoones on juba olemas ÕV pump ning esimsel korrusel juba on ka põrandaküte olemas. Saan vajadusel anda täpsemat infot hetkeseisu kohta. Pakkuda võib erivaid lahendusi nii kuiv- kui märgpaigaldusega, kuid pakkumine peaks sisaldama ühendamist olemasoleva süsteemiga ja kõige muu sinna juurde kuuluvaga (valu jne). Ideaalis võiks kihi paksus olla kuni 14cm ja jätta garaazi külmaks edasi. Tuba ja esik peaks olema siis veetorudega ja pesuruum elektriga. Sisuliselt täislahendus ühendamisest kuni põrandani kuhu saab põrandakatte peale panna.
1k . plaanilt on näha, kus asub pump ja praegune kollektor. Ruum asub soklikorrusel ja on kõrge laega. Punasega on näha, kuidas on praegused kütte torud ja kust lähevad üles. 2k plaanilt on näha ruumid ise (punasega) ja teiselt plaanilt kus asuvad hetkel radikad ning kust liiguvad torud hetkel.

Pildid, video ja failid

Hanke korraldaja: eraisik ID48967

Pakkumised

Pakkumisi kokku: 3

Ettevõte Summa Käibemaks Lisatud Vestlus
Kasutaja ikoon ID74647
Pakkuja profiil Väike nool paremale
5 500€ KM lisandub KM lisandub 29.08.2023 Vestlus (0)

Pakkumise kirjeldus:

Tere.
Meie pakkumine sisaldab:
Lammutustöid koos ehtusprahi utiliseerimisega jäätmejaama.
Põranda ettevalmistust/tasandamist kui vajalik
Eps80 100mm, soovi korral saame asendada PIR tüüpi soojustusega( kingspan) mis on oluliselt soojapidavam kuid mõnevõrra kallim.
Armatuurvõrku, kandureid, kilet, servalinti.
16mm põrandaküttetoru paigaldust, ... Rohkem

Kasutaja ikoon ID56040
Pakkuja profiil Väike nool paremale
36€ Ei ole KMKR Ei ole KMKR 29.08.2023 Vestlus (0)

Pakkumise kirjeldus:

Materjal on märgitud tellija poolt, pakume siis paigaldust.
Küttekontuuride paigaldus koos kollektoriga 12eur-m2
Valamine seguga FE50, tasasus A-klass +-2mm 16eur-m2
EPS+aurutõke+servalint 8eur-m2

Kasutaja ikoon ID73479
Pakkuja profiil Väike nool paremale
7 000€ Sisaldab KM Sisaldab KM 29.08.2023 Vestlus (0)

Pakkumise kirjeldus:

Tere,

Hea meelega teostame tööd teie jaoks.tööd tehakse kvaliteetselt ja võimalikult kiiresti.Pakume 5 aastane garantii oma töödele.

See hind sisaldab kõiki nimekirjas olevaid soovitud tööd.
Spetsialisti tulek teie objektile, hinnapakkumise ja tööteostamise lepingu koostamine.

Minu firma tegeleb katuste, fassaadide ehitusega ning üldeh ... Rohkem

Küsimused hanke korraldajale

Küsimus: private ID74647   29.08.2023 13:06
Tere.
Mis hetkel teisel korrusel põrandal on, kui palju peab lammutama et paneelideni jõuda?

Teavita reeglite rikkumisest

Korraldaja vastus: 29.08.2023 13:35

Tere

Täispunn laud, mille all paistab sarikate vahel vill olevat. Kiskusin mõned lauad üles ja puurisin auke. Paistab, et oleks ruumi panna suurele toale isegi kokku 20cm kihte alla.

Teavita reeglite rikkumisest

Lisa küsimus

Lisa küsimus

Minu pakkumine

Reeglid

Pakkumise kirjelduse väli on mõeldud pakkumise detailsemaks lahti kirjutamiseks. Pikema teksti mugavaks sisestamiseks klikkige kasti paremal ülaservas oleval ikoonil.
Pakkumist tehes on keelatud postitada enda kontaktandmeid (nimi, telefon, aadress jne). Me jälgime ja analüüsime pakkumisi, et vältida pettuseid ja reeglite rikkumisi.
Rikkumise puhul kasutajakonto blokeeritakse.

 

Vanemad teated:

Vaata kõiki

Sellel veebilehel kasutatakse küpsiseid. Kasutamist jätkates nõustute küpsiste kasutamisega.

Sulge
 
Minu pakkumine

Reeglid

Pakkumise kirjelduse väli on mõeldud pakkumise detailsemaks lahti kirjutamiseks. Pikema teksti mugavaks sisestamiseks klikkige kasti paremal ülaservas oleval ikoonil.
Pakkumist tehes on keelatud postitada enda kontaktandmeid (nimi, telefon, aadress jne). Me jälgime ja analüüsime pakkumisi, et vältida pettuseid ja reeglite rikkumisi.
Rikkumise puhul kasutajakonto blokeeritakse.