+ Lisa oma töö      

Otsid ehitajat "Katusetööd" valdkonnast?

Parima pakkumise ja teostaja leidmiseks lisa oma töö.

Hange on lõppenud!

Võitjaks osutus kasutaja ID 57676

Katuse ja tuulekoja ehitus

ID 85300

925 vaatamist

Prindi

  • check Pakkumiste tegemine
    kuni 30.08.2023
  • check Võitja valik kuni
    06.09.2023
  • 3 Töö teostamine
    ja hinnang
Hanke lõpp: K, 30. august, 2023
Maakond: Saaremaa
Linn: Kuressaare
Tööde algus: E, 04. september, 2023 (Soovituslik)
Tööde lõpp: N, 30. november, 2023 (Soovituslik)
Ehitusmaterjalid: Töö tegija poolt
Soovin pakkumisi: Summa kogu projektile

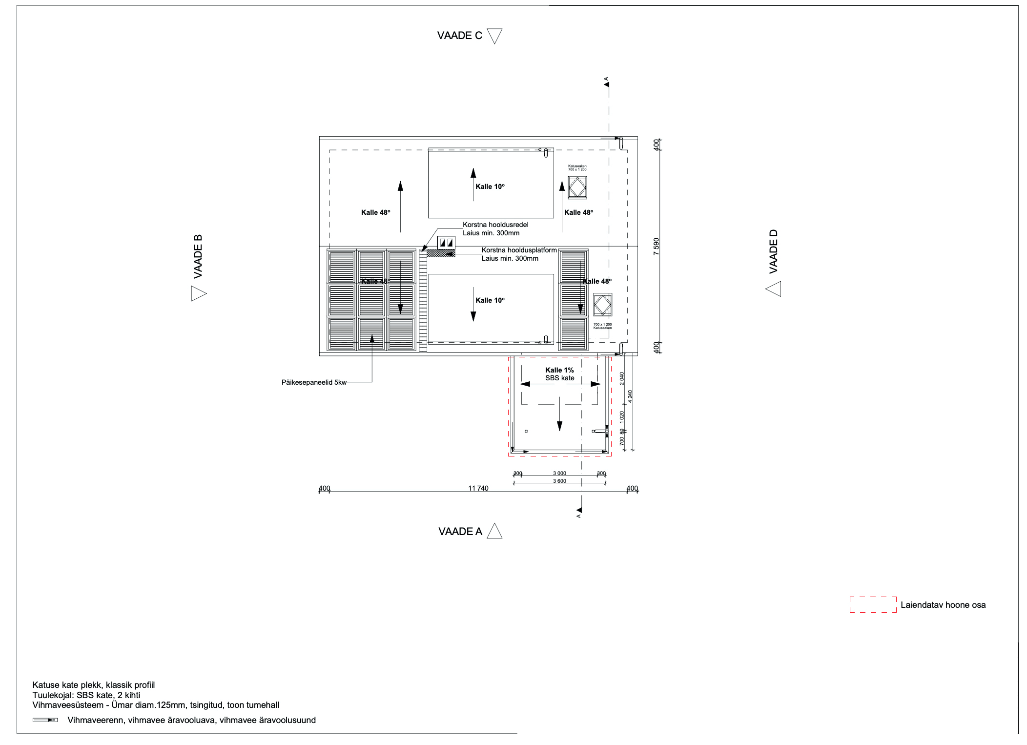
Töö sisu

1960ndatel ehitatud eterniitkatusega majal vaja vahetada katus koos sarikatega. Majal ka vintskapid. Lisaks on vaja ehitada tuulekoda 2x3m. Pakkumine peab sisaldama ka vihmaveetorud, korstna redelit ja muud projektil olevad lisad.
Pakkuda eraldi hind nii katusele kui ka tuulekoja ehitamisele.
Uuele katusele tuleb lisaks vintskappidele ka kaks uut katuseakent.
Ehitusinseneri poolt tehtud projekt lisatud koos vastavate mõõtude ja soovidega. Töödega alustaks nii ruttu kui võimalik, aga vajadusel võime ka oodata.

Pildid, video ja failid

Hanke korraldaja: eraisik ID50548

Pakkumised

Pakkumisi kokku: 6

Ettevõte Summa Käibemaks Lisatud Vestlus
Kasutaja ikoon ID57676
Pakkuja profiil Väike nool paremale
59 440€ Sisaldab KM Sisaldab KM 22.08.2023 Vestlus (0)

Pakkumise kirjeldus:

Tere
Koostasin pakkumise vastavalt projektile ja teie poolt soovitule.
Pakkumine sisaldab materjale nii katuse jaoks kui ka lisa ehitsise jaoks.
Samuti vana kakatuse lammutust eterniidi ja muu prahi utiliseerimist.
Uute sarikate ehitust tösteid kraanaga.
Roovituse tegemist, vintskappide ehitust,
Uue katuse katte paigaldust Classic profiil, toon tà ... Rohkem

Kasutaja ikoon ID75607
Pakkuja profiil Väike nool paremale
38 000€ KM lisandub KM lisandub 24.08.2023 Vestlus (0)
Kasutaja ikoon ID62677
Pakkuja profiil Väike nool paremale
41 200€ Ikoon kell Sisaldab KM Sisaldab KM 25.08.2023 Vestlus (2)

Pakkumise kirjeldus:

Hind sisaldab katusetööd.

Terv.

Kasutaja ikoon ID54207
Pakkuja profiil Väike nool paremale
27 200€ KM lisandub KM lisandub 27.08.2023 Vestlus (0)

Pakkumise kirjeldus:

Tere

Hind on tehtud vastavalt hankes kirjeldatud töödele ja mahtudele
Hind sisaldab vana katuse lammutust
Prügi utiliseerimist
Uute sarikate paigaldus
Villa paigaldus
Aluskate/tuulutus/roov/classic rr23 koos lisaplekkidega
Katuseredel koos teenindamislavaga
Vintskappide ehitus
Tuulekastide ehitus
Vihmaveerennide paigaldus
HINNAS EI SISALDU t ... Rohkem

Kasutaja ikoon ID75948
Pakkuja profiil Väike nool paremale
34 632€ KM lisandub KM lisandub 30.08.2023 Vestlus (0)
Kasutaja ikoon ID73479
Pakkuja profiil Väike nool paremale
50 000€ Sisaldab KM Sisaldab KM 30.08.2023 Vestlus (0)

Pakkumise kirjeldus:

Tere,

Hea meelega teostame tööd teie jaoks.tööd tehakse kvaliteetselt ja võimalikult kiiresti.Pakume 5 aastane garantii oma töödele.

See hind sisaldab kõiki nimekirjas olevaid soovitud tööd.
Spetsialisti tulek teie objektile, hinnapakkumise ja tööteostamise lepingu koostamine.

Minu firma tegeleb katuste, fassaadide ehitusega ning üldeh ... Rohkem

Küsimused hanke korraldajale

Küsimus: private ID62677   18.08.2023 09:08
Tere palju on katusel m2 pinda ? Koos vinskapidega.

Lugupidamisega

Teavita reeglite rikkumisest

Korraldaja vastus: 19.08.2023 17:03

Tervist!
Katuse pindala koos vintskappidega on 156m2. Lisandub Tuulekoja pind 13,7m2
Soovitan pakkujale ka joonised saata. Sealt saab ka kenasti kogu info kätte.

Teen ka pakkumise nimekirja, mis seal võiks kõik sees olla, ehk aitab see kaasa.
Pakkumine peaks sisaldama:

Vana katusekatte eemaldamist
Vana roovituse eemaldamist
Vana tuulekastide eemaldamist
Ehitusjäätmete utiliseerimist
Uute saritake paigaldamist
Uute sarikate vahele (katuslakke) villa paigaldamist
Vinspakkide külgedele neelupleki paigaldamist
Katuse aluskatte paigaldamist
Distantsliistu paigaldamist
Katuse roovituse paigaldamist
Uue katusekatte paigaldamist
Korstna ümbruse tihendamist
Uute tuulekastide ehitamist (jättes fassaadi soojustamiseks kaks fassaadipoolset lauda panemata). Tuulekastid peavad olema värvitud mõlemalt poolt tulekindla värviga. Samuti tuleb rooviotsad tulekindla värviga värvida.
Vihmaveesüsteemide paigaldamist
Katuseredeli ja korstna teenindusplatvormi paigaldamist
Võiks panna ka lumetõkke terrassi kohale.

Teavita reeglite rikkumisest

Küsimus: private ID57676   21.08.2023 21:36
Tere
Kas saaks maja möödud samuti? Saaks sarikate arvu välja arvutada, koos vintskapidega. Sarikate vahetusega tuleks teine korrus puhtaks lammutda. Sel moel saab löpp tulemuse sellise nagu projektis kirjas. Teostatud eelmine aastal samalaadne töö Kaarma külas, referents olemas antud tööst. Lisaks ka köik teised teostatud refentsid. Kas pakkumine peab sisaldama ka kaetud tööde akte ehituspäevikuid ja köik muud vajalikud dokumendid garantii jaoks?
Kaupo

Teavita reeglite rikkumisest

Korraldaja vastus: 21.08.2023 22:39

Tere!
Ikka aktid ja dokumendid ka
Katuse pindala koos vintskappidega on 156m2. Lisandub Tuulekoja pind 13,7m2
Katuseprojekti fotodel mõõdud kirjas.

Teen ka pakkumise nimekirja, mis seal võiks kõik sees olla, ehk aitab see kaasa.
Pakkumine peaks sisaldama:
 
* Vana katusekatte eemaldamist
* Vana roovituse eemaldamist
* Vana tuulekastide eemaldamist
* Ehitusjäätmete utiliseerimist
* Uute saritake paigaldamist
* Uute sarikate vahele (katuslakke) villa paigaldamist
* Vinspakkide külgedele neelupleki paigaldamist
* Katuse aluskatte paigaldamist
* Distantsliistu paigaldamist
* Katuse roovituse paigaldamist
* Uue klatusekatte paigaldamist
* Korstna ümbruse tihendamist
* Uute tuulekastide ehitamist (jättes fassaadi soojustamiseks kaks fassaadipoolset lauda panemata). Tuulekastid peavad olema värvitud mõlemalt poolt tulekindla värviga. Samuti tuleb rooviotsad tulekindla värviga värvida.
* Vihmaveesüsteemide paigaldamist
* Katuseredeli ja korstna teenindusplatvormi paigaldamist
* lumetõkke paigaldamnine terrassi kohale.

Teavita reeglite rikkumisest

Küsimus: private ID57676   21.08.2023 22:06
Tere Sooviks vaatama tulla teie maja ja vötta vajalikud möödud, et saaksin koostada konkreetse pakkumise kogu tööde peale koos materjalidega. Lugedes antud joonist siis oleks möningaid küsimusi.

Teavita reeglite rikkumisest

Korraldaja vastus: 21.08.2023 22:40

Tere!

Vaatama tulekut hetkel raske kokku leppida.

Katuse pindala koos vintskappidega on 156m2. Lisandub Tuulekoja pind 13,7m2
Soovitan pakkujale ka joonised saata. Sealt saab ka kenasti kogu info kätte.

Teen ka pakkumise nimekirja, mis seal võiks kõik sees olla, ehk aitab see kaasa.
Pakkumine peaks sisaldama:
 
* Vana katusekatte eemaldamist
* Vana roovituse eemaldamist
* Vana tuulekastide eemaldamist
* Ehitusjäätmete utiliseerimist
* Uute saritake paigaldamist
* Uute sarikate vahele (katuslakke) villa paigaldamist
* Vinspakkide külgedele neelupleki paigaldamist
* Katuse aluskatte paigaldamist
* Distantsliistu paigaldamist
* Katuse roovituse paigaldamist
* Uue klatusekatte paigaldamist
* Korstna ümbruse tihendamist
* Uute tuulekastide ehitamist (jättes fassaadi soojustamiseks kaks fassaadipoolset lauda panemata). Tuulekastid peavad olema värvitud mõlemalt poolt tulekindla värviga. Samuti tuleb rooviotsad tulekindla värviga värvida.
* Vihmaveesüsteemide paigaldamist
* Katuseredeli ja korstna teenindusplatvormi paigaldamist
* lumetõkke paigaldamnine terrassi kohale.

Teavita reeglite rikkumisest

Lisa küsimus

Lisa küsimus

Minu pakkumine

€

Reeglid

Pakkumise kirjelduse väli on mõeldud pakkumise detailsemaks lahti kirjutamiseks. Pikema teksti mugavaks sisestamiseks klikkige kasti paremal ülaservas oleval ikoonil.
Pakkumist tehes on keelatud postitada enda kontaktandmeid (nimi, telefon, aadress jne). Me jälgime ja analüüsime pakkumisi, et vältida pettuseid ja reeglite rikkumisi.
Rikkumise puhul kasutajakonto blokeeritakse.

 

Teisi töid samas valdkonnas

Valdkonnas "Katusetööd" on 9 aktiivset tööd

no-img Pilt puudub

Käidava katuse PVC 54m2

Asukoht: Harjumaa, Muraste
Aega jäänud: 4p 13h
Tehtud pakkumisi: 3

Garaaži katuse vahetamine

Asukoht: Harjumaa, Viimsi
Aega jäänud: 13p 13h
Tehtud pakkumisi: 2

Vanemad teated:

Vaata kõiki

Sellel veebilehel kasutatakse küpsiseid. Kasutamist jätkates nõustute küpsiste kasutamisega.

Sulge
 
Minu pakkumine
€

Reeglid

Pakkumise kirjelduse väli on mõeldud pakkumise detailsemaks lahti kirjutamiseks. Pikema teksti mugavaks sisestamiseks klikkige kasti paremal ülaservas oleval ikoonil.
Pakkumist tehes on keelatud postitada enda kontaktandmeid (nimi, telefon, aadress jne). Me jälgime ja analüüsime pakkumisi, et vältida pettuseid ja reeglite rikkumisi.
Rikkumise puhul kasutajakonto blokeeritakse.