+ Lisa oma töö      

Otsid ehitajat "Plaatimistööd" valdkonnast?

Parima pakkumise ja teostaja leidmiseks lisa oma töö.

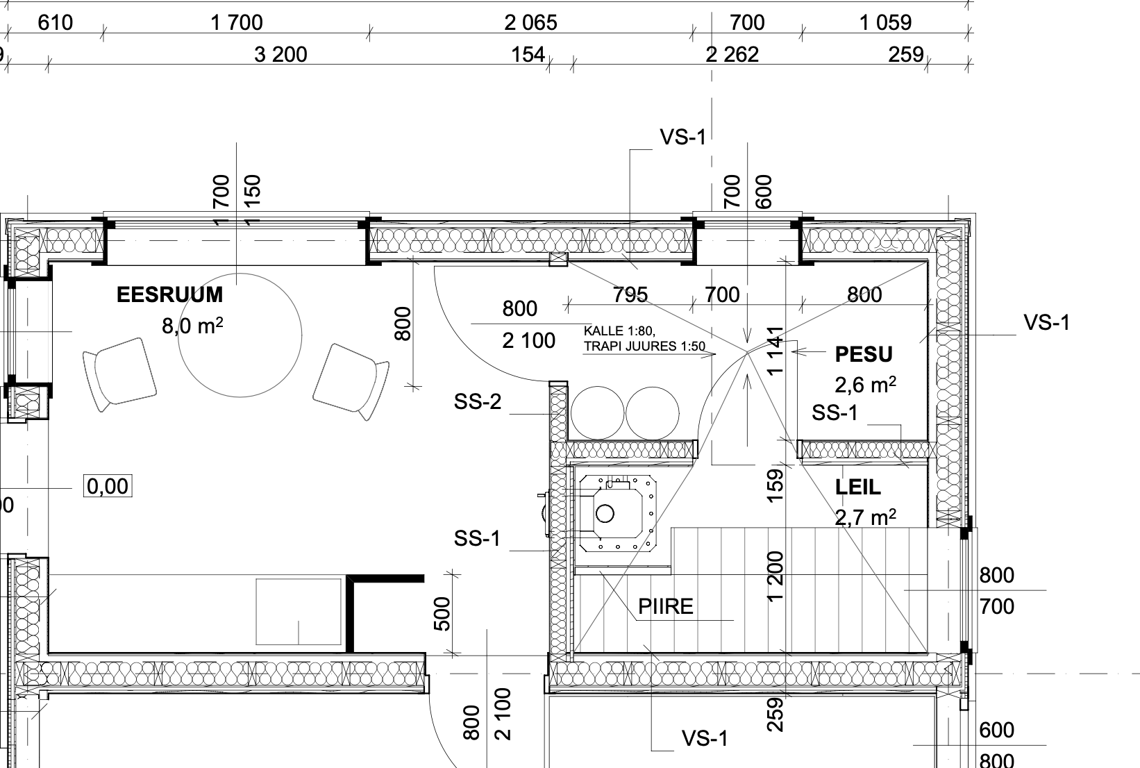
Sauna plaatimine, eesruum, pesuruum, leiliruum

ID 84951

646 vaatamist

Prindi

  • check Pakkumiste tegemine
    kuni 15.08.2023
  • check Võitja valik kuni
    22.08.2023
  • 3 Töö teostamine
    ja hinnang
Hanke lõpp: T, 15. august, 2023
Maakond: Pärnumaa
Muu asula: Häädemeeste
Tööde algus: E, 14. august, 2023 (Soovituslik)
Tööde lõpp: E, 28. august, 2023 (Soovituslik)
Ehitusmaterjalid: Töö tellija poolt
Soovin pakkumisi: Summa kogu projektile

Töö sisu

leiliruum põrandapind 2.5m2 + porte (~10-15cm) 6.6jm

pesuruum põrandapind 3m2 + seinad 17 m2 (üks aken 2 ust)

Eesruumi põrand 7.7m2 + porte ~10-15cm 4.2 jm

Pildid, video ja failid

Hanke korraldaja: ettevõte ID30066

Pakkumised

Pakkumisi kokku: 4

Ettevõte Summa Käibemaks Lisatud Vestlus
Kasutaja ikoon ID57475
Pakkuja profiil Väike nool paremale
2 700€ KM lisandub KM lisandub 10.08.2023 Vestlus (0)

Pakkumise kirjeldus:

Tere,


Meie pakkumine tööle.
Lisaküsimustele vastan meeleldi!

Lp. Timo

Kasutaja ikoon ID48307
Pakkuja profiil Väike nool paremale
2 790€ Ei ole KMKR Ei ole KMKR 15.08.2023 Vestlus (1)

Pakkumise kirjeldus:

Materjalid lisanduvad.

Kasutaja ikoon ID74897
Pakkuja profiil Väike nool paremale
1 600€ Sisaldab KM Sisaldab KM 15.08.2023 Vestlus (0)
Kasutaja ikoon ID73479
Pakkuja profiil Väike nool paremale
3 500€ Sisaldab KM Sisaldab KM 15.08.2023 Vestlus (0)

Pakkumise kirjeldus:

Tere,

Hea meelega teostame tööd teie jaoks.tööd tehakse kvaliteetselt ja võimalikult kiiresti.Pakume 5 aastane garantii oma töödele.

See hind sisaldab kõiki nimekirjas olevaid soovitud tööd.
Spetsialisti tulek teie objektile, hinnapakkumise ja tööteostamise lepingu koostamine.

Minu firma tegeleb katuste, fassaadide ehitusega ning üldeh ... Rohkem

Küsimused hanke korraldajale

Hanke korraldajale ei ole veel küsimusi esitatud.

Lisa küsimus

Lisa küsimus

Minu pakkumine

Reeglid

Pakkumise kirjelduse väli on mõeldud pakkumise detailsemaks lahti kirjutamiseks. Pikema teksti mugavaks sisestamiseks klikkige kasti paremal ülaservas oleval ikoonil.
Pakkumist tehes on keelatud postitada enda kontaktandmeid (nimi, telefon, aadress jne). Me jälgime ja analüüsime pakkumisi, et vältida pettuseid ja reeglite rikkumisi.
Rikkumise puhul kasutajakonto blokeeritakse.

 

Teisi töid samas valdkonnas

Valdkonnas "Plaatimistööd" on 2 aktiivset tööd

Trepikoja plaatimine

Asukoht: Tartumaa, Ülenurme
Aega jäänud: 4p 21h
Tehtud pakkumisi: 2

Pesuruumi plaatimine 12.6 m2

Asukoht: Tartumaa, Teedla
Aega jäänud: 1p 21h
Tehtud pakkumisi: 0

Vanemad teated:

Vaata kõiki

Sellel veebilehel kasutatakse küpsiseid. Kasutamist jätkates nõustute küpsiste kasutamisega.

Sulge
 
Minu pakkumine

Reeglid

Pakkumise kirjelduse väli on mõeldud pakkumise detailsemaks lahti kirjutamiseks. Pikema teksti mugavaks sisestamiseks klikkige kasti paremal ülaservas oleval ikoonil.
Pakkumist tehes on keelatud postitada enda kontaktandmeid (nimi, telefon, aadress jne). Me jälgime ja analüüsime pakkumisi, et vältida pettuseid ja reeglite rikkumisi.
Rikkumise puhul kasutajakonto blokeeritakse.