+ Lisa oma töö      

Otsid ehitajat "Fassaaditööd" valdkonnast?

Parima pakkumise ja teostaja leidmiseks lisa oma töö.

Vundamendi soojustamine

ID 84913

708 vaatamist

Prindi

  • check Pakkumiste tegemine
    kuni 13.08.2023
  • check Võitja valik kuni
    20.08.2023
  • 3 Töö teostamine
    ja hinnang
Hanke lõpp: P, 13. august, 2023
Maakond: Jõgevamaa
Muu asula: Palamuse
Tööde algus: E, 07. august, 2023 (Soovituslik)
Tööde lõpp: N, 31. august, 2023 (Soovituslik)
Ehitusmaterjalid: Töö tegija poolt
Soovin pakkumisi: Summa kogu projektile

Töö sisu

Elumaja vundamendi soojustamine pur vahuga, lahti kaevamine/kinni ajamine, sade ja vihmavee drenaaži rajamine ja sokli viimistlustööd. Viimistlus kas krohv või epo. Tellis vooder, tuhaplokk maja.

Pildid, video ja failid

Hanke korraldaja: eraisik ID72534

Pakkumised

Pakkumisi kokku: 4

Ettevõte Summa Käibemaks Lisatud Vestlus
Kasutaja ikoon ID67766
Pakkuja profiil Väike nool paremale
7 000€ Ei ole KMKR Ei ole KMKR 09.08.2023 Vestlus (0)

Pakkumise kirjeldus:

Hind sisaldab ainult tööraha vundamendi soojustamise ja viimistlemise ning drenaazi paigaldamiseks .Hind sisaldab veel kopa töötundi ja kohale vedu ning hiljem vundamendi planeerimis töid .Hind ei sisalda vundamendi soojustamiseks vaja minevaid ehitusmaterjali hinda .Need lisanduvad sumale ja tasuda saab tsekkide alusel .Tööde teostamise aeg oleks okt ... Rohkem

Kasutaja ikoon ID62677
Pakkuja profiil Väike nool paremale
9 300€ Sisaldab KM Sisaldab KM 10.08.2023 Vestlus (0)

Pakkumise kirjeldus:

Tere, pakkumine on ühikuhinnaga milleks on 150 eurot , hõlmab lahti ja kinni kaevamist , k.a kulumaterjale
Hind võib kõikuda 10-15%

Kasutaja ikoon ID74897
Pakkuja profiil Väike nool paremale
7 350€ Sisaldab KM Sisaldab KM 13.08.2023 Vestlus (0)

Pakkumise kirjeldus:

Ettemaks arutatav, kui saab teha osamaksetena tehtud töödega.

Kasutaja ikoon ID73479
Pakkuja profiil Väike nool paremale
10 000€ Sisaldab KM Sisaldab KM 13.08.2023 Vestlus (0)

Pakkumise kirjeldus:

Tere,

Hea meelega teostame tööd teie jaoks.tööd tehakse kvaliteetselt ja võimalikult kiiresti.Pakume 5 aastane garantii oma töödele.

See hind sisaldab kõiki nimekirjas olevaid soovitud tööd.
Spetsialisti tulek teie objektile, hinnapakkumise ja tööteostamise lepingu koostamine.

Minu firma tegeleb katuste, fassaadide ehitusega ning üldeh ... Rohkem

Küsimused hanke korraldajale

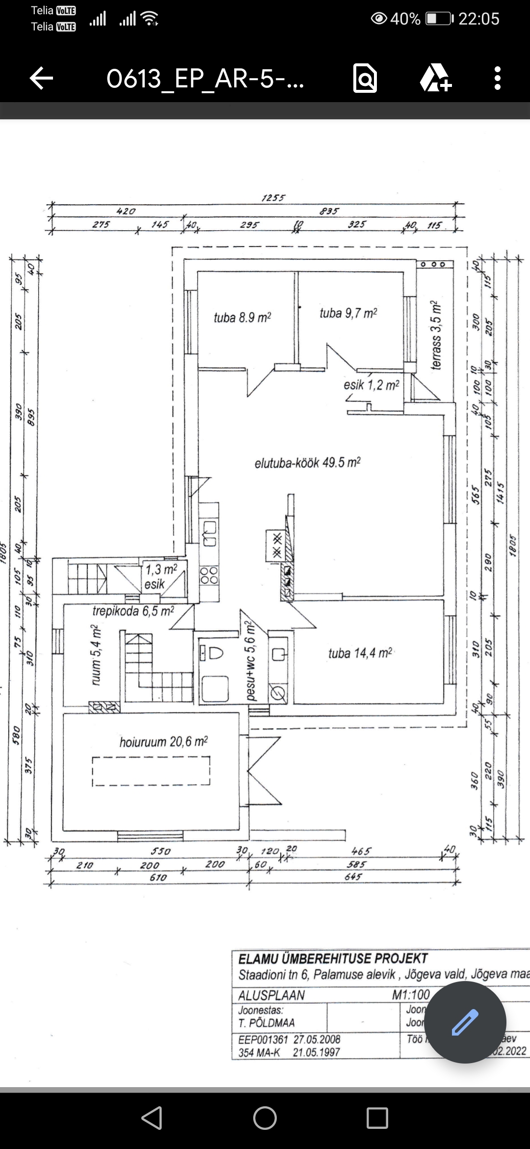
Küsimus: private ID62677   08.08.2023 09:07
Tere , palju on jooksvaid meetreid.

Lugupidamisega

Teavita reeglite rikkumisest

Korraldaja vastus: 08.08.2023 11:20

Tere, maja joonis viimasel pildil. 62m umbes jooksvalt. Maja vundamendi sügavus vs maapind kõigub kuna kallak suur. Ühel pool kaevata rohkem, kui teisel pool. Oru poolsest küljest tungib vesi vundamendi servast keldrisse.

Teavita reeglite rikkumisest

Lisa küsimus

Lisa küsimus

Minu pakkumine

Reeglid

Pakkumise kirjelduse väli on mõeldud pakkumise detailsemaks lahti kirjutamiseks. Pikema teksti mugavaks sisestamiseks klikkige kasti paremal ülaservas oleval ikoonil.
Pakkumist tehes on keelatud postitada enda kontaktandmeid (nimi, telefon, aadress jne). Me jälgime ja analüüsime pakkumisi, et vältida pettuseid ja reeglite rikkumisi.
Rikkumise puhul kasutajakonto blokeeritakse.

 

Teisi töid samas valdkonnas

Valdkonnas "Fassaaditööd" on 12 aktiivset tööd

Akende ja viilude parandus ja värvimine

Asukoht: Valgamaa, Valga
Aega jäänud: 21h 0 min
Tehtud pakkumisi: 3

Eramaja vintskapide laudise paigaldus

Asukoht: Pärnumaa, Pärnu-Jaagupi
Aega jäänud: 9p 21h
Tehtud pakkumisi: 2

Vanemad teated:

Vaata kõiki

Sellel veebilehel kasutatakse küpsiseid. Kasutamist jätkates nõustute küpsiste kasutamisega.

Sulge
 
Minu pakkumine

Reeglid

Pakkumise kirjelduse väli on mõeldud pakkumise detailsemaks lahti kirjutamiseks. Pikema teksti mugavaks sisestamiseks klikkige kasti paremal ülaservas oleval ikoonil.
Pakkumist tehes on keelatud postitada enda kontaktandmeid (nimi, telefon, aadress jne). Me jälgime ja analüüsime pakkumisi, et vältida pettuseid ja reeglite rikkumisi.
Rikkumise puhul kasutajakonto blokeeritakse.