+ Lisa oma töö      

Otsid ehitajat "Üldehitus" valdkonnast?

Parima pakkumise ja teostaja leidmiseks lisa oma töö.

60m2 maja ehitus

ID 84632

1389 vaatamist

Prindi

  • check Pakkumiste tegemine
    kuni 14.08.2023
  • check Võitja valik kuni
    21.08.2023
  • 3 Töö teostamine
    ja hinnang
Hanke lõpp: E, 14. august, 2023
Maakond: Harjumaa
Muu asula: Alliku
Tööde algus: R, 01. september, 2023 (Soovituslik)
Tööde lõpp: P, 31. detsember, 2023 (Soovituslik)
Ehitusmaterjalid: Töö tegija poolt
Soovin pakkumisi: Summa kogu projektile

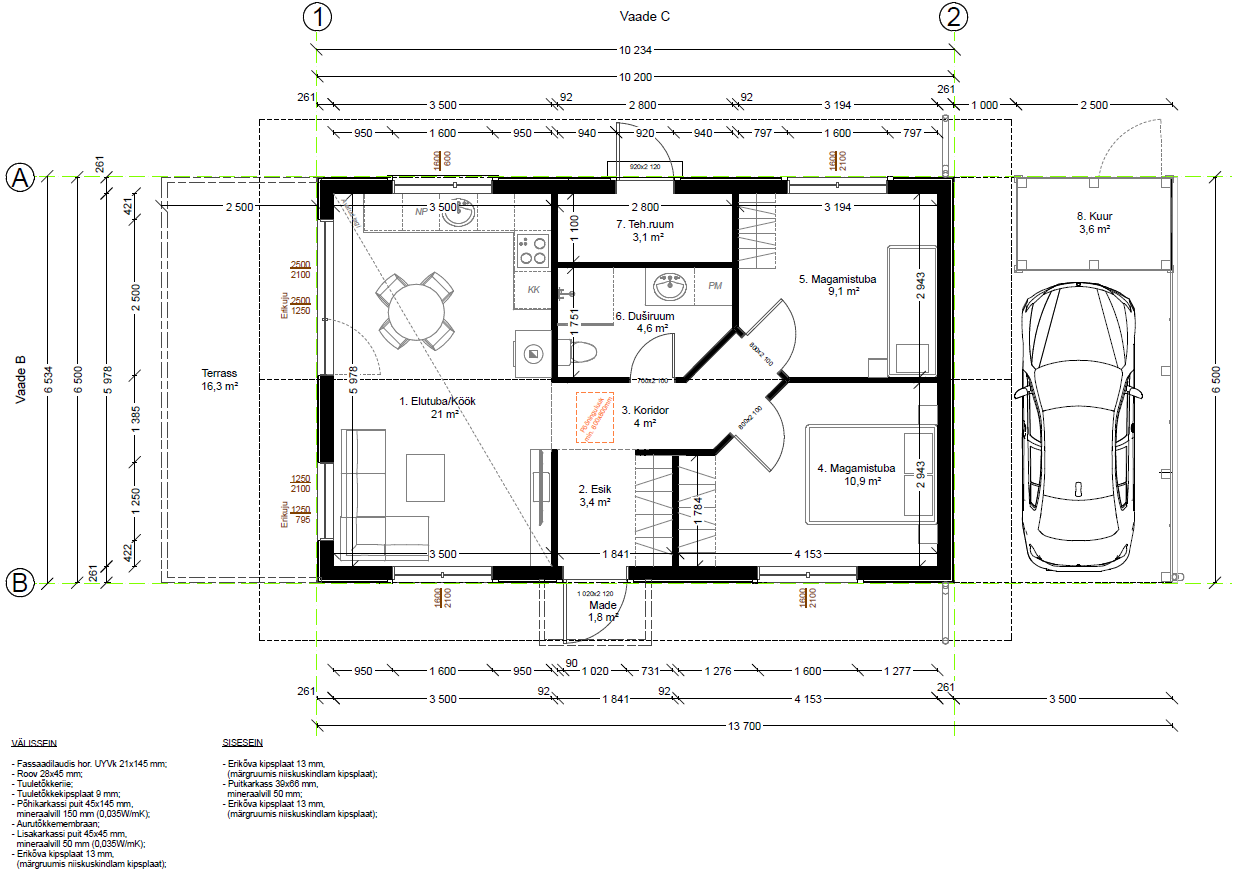
Töö sisu

Sooviks ca 60m2 elumaja võtmed-kätte lahendusele hinnapakkumist. Krunt asub Allikul, Saue vallas. Ehitusluba olemas.

Suletud netopind: 59,7 m2
Ehitusalune pind: 89,1 m2
Pinnas: paas (ca 30cm mullakihti peal)
Küte: õhk-vesi (vesipõrandaküte), kamin-ahi
Vent: sundventilatsioon
Konstruktsioon: puit
Vundament: plaatvundament (küttetorudega)
Katus: kivi
Aknad: 3x klaaspakett

Pakkumisse pole vaja lisada trasse vee ja kanalisatsiooni jaoks.

Pakkumises palun välja tuua ka järgmiste etappide hinnad:
1) vundament
2) väljast-valmis
3) ilma siseviimistluseta

Pildid, video ja failid

Hanke korraldaja: eraisik ID70897

Pakkumised

Pakkumisi kokku: 2

Ettevõte Summa Käibemaks Lisatud Vestlus
Kasutaja ikoon ID59528
Pakkuja profiil Väike nool paremale
44 640€ KM lisandub KM lisandub 14.08.2023 Vestlus (6)

Pakkumise kirjeldus:

Tere,

Pakkumine tehtud vastavalt Hankes kirjeldatud töödele. Täpsema hinnakalkulatsiooni saame saata vestluses.
Meie profiili alt näete meie poolt tehtud töid ja klientide poolt antud hinnanguid

Parimat,

Erik

Kasutaja ikoon ID73479
Pakkuja profiil Väike nool paremale
70 000€ Sisaldab KM Sisaldab KM 14.08.2023 Vestlus (1)

Pakkumise kirjeldus:

Tere,

Hea meelega teostame tööd teie jaoks.tööd tehakse kvaliteetselt ja võimalikult kiiresti.Pakume 5 aastane garantii oma töödele.

See hind sisaldab kõiki nimekirjas olevaid soovitud tööd.
Spetsialisti tulek teie objektile, hinnapakkumise ja tööteostamise lepingu koostamine.

Minu firma tegeleb katuste, fassaadide ehitusega ning üldeh ... Rohkem

Küsimused hanke korraldajale

Küsimus: private ID59491   01.08.2023 18:35
Tere, kas ikka on mõistlik karkassmajale kivikatust panna,?

Teavita reeglite rikkumisest

Korraldaja vastus: 01.08.2023 18:48

Ei näe, miks mitte, kui karkass on vastava kandevõimega ehitatud.

Teavita reeglite rikkumisest

Küsimus: private ID59491   01.08.2023 19:53
Selleks lähevad fermid topeltkallimaks ja seinad tuleks teha 195 mm prussist + viiene sisse, tänan.

Teavita reeglite rikkumisest

Korraldaja vastus: 02.08.2023 07:12

Tänud sisendi eest

Teavita reeglite rikkumisest

Lisa küsimus

Lisa küsimus

Minu pakkumine

Reeglid

Pakkumise kirjelduse väli on mõeldud pakkumise detailsemaks lahti kirjutamiseks. Pikema teksti mugavaks sisestamiseks klikkige kasti paremal ülaservas oleval ikoonil.
Pakkumist tehes on keelatud postitada enda kontaktandmeid (nimi, telefon, aadress jne). Me jälgime ja analüüsime pakkumisi, et vältida pettuseid ja reeglite rikkumisi.
Rikkumise puhul kasutajakonto blokeeritakse.

 

Teisi töid samas valdkonnas

Valdkonnas "Üldehitus" on 30 aktiivset tööd

Kuuri lammutus

Asukoht: Pärnumaa
Aega jäänud: 2p 22h
Tehtud pakkumisi: 6

Põrandakütte torustiku ja kollektori paigaldus.

Asukoht: Harjumaa, Kurkse
Aega jäänud: 15p 22h
Tehtud pakkumisi: 4

Vanemad teated:

Vaata kõiki

Sellel veebilehel kasutatakse küpsiseid. Kasutamist jätkates nõustute küpsiste kasutamisega.

Sulge
 
Minu pakkumine

Reeglid

Pakkumise kirjelduse väli on mõeldud pakkumise detailsemaks lahti kirjutamiseks. Pikema teksti mugavaks sisestamiseks klikkige kasti paremal ülaservas oleval ikoonil.
Pakkumist tehes on keelatud postitada enda kontaktandmeid (nimi, telefon, aadress jne). Me jälgime ja analüüsime pakkumisi, et vältida pettuseid ja reeglite rikkumisi.
Rikkumise puhul kasutajakonto blokeeritakse.