+ Lisa oma töö      

Otsid ehitajat "Betoonitööd" valdkonnast?

Parima pakkumise ja teostaja leidmiseks lisa oma töö.

Hange on lõppenud!

Võitjaks osutus kasutaja ID 68473

betoonpõrand

ID 84266

443 vaatamist

Prindi

  • check Pakkumiste tegemine
    kuni 28.07.2023
  • check Võitja valik kuni
    04.08.2023
  • 3 Töö teostamine
    ja hinnang
Hanke lõpp: R, 28. juuli, 2023
Maakond: Pärnumaa
Muu asula: Lindi
Tööde algus: K, 23. august, 2023 (Soovituslik)
Tööde lõpp: P, 27. august, 2023 (Soovituslik)
Ehitusmaterjalid: Töö tegija poolt
Soovin pakkumisi: Summa kogu projektile

Töö sisu

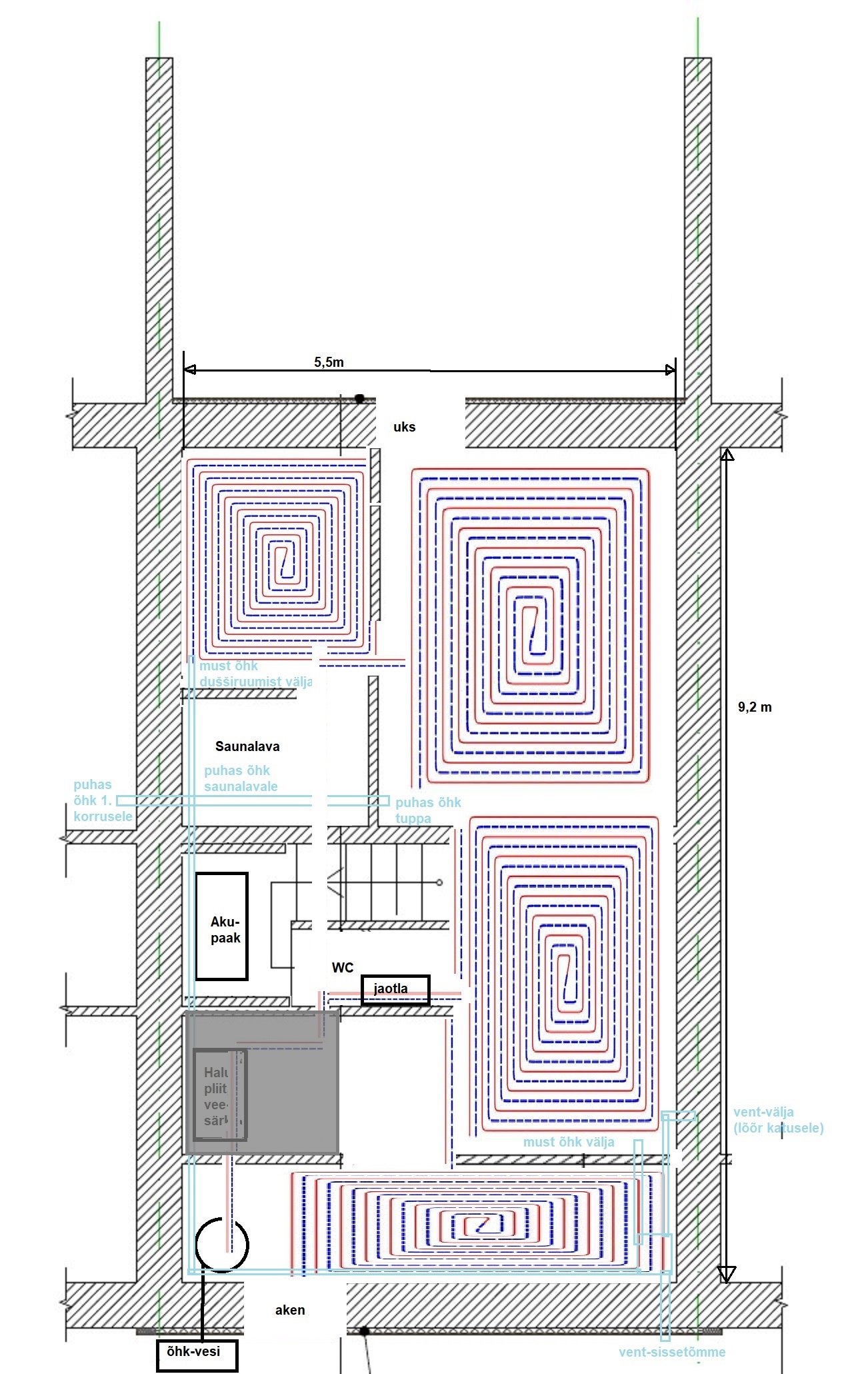
Ridamu keldris ettevalmistatud soojustuse, armatuuri ja vesikütte peale betoonpõranda valamine arvestades soovitud kaldeid (Töö tegijal kinnitada, kas saab või ei saa otse valatud põrandale hüdroisolatsiooni ja keraamilisi põrandaplaate liimida, või mida veel lisaks teha on vaja). Põranda pind 45m2, paksus keskmiselt 8 cm.

Pildid, video ja failid

Hanke korraldaja: eraisik ID76024

Pakkumised

Pakkumisi kokku: 3

Ettevõte Summa Käibemaks Lisatud Vestlus
Kasutaja ikoon ID66447
Pakkuja profiil Väike nool paremale
1 300€ Ei ole KMKR Ei ole KMKR 22.07.2023 Vestlus (0)

Pakkumise kirjeldus:

Tere!
Betooni c25/30 tellimine lähimast betoonitehasest
Betoneerimine õiget kaldet
Kopterdamine
Järelhooldus

Edukat hanget!

Kasutaja ikoon ID68473
Pakkuja profiil Väike nool paremale
1 250€ KM lisandub KM lisandub 28.07.2023 Vestlus (0)

Pakkumise kirjeldus:

Tere

Hinnapakkumine sisaldab : Tööd ja betooni

Betoonpõranda valamist
Betoonpõrandalihvimist (plaadipannipind)

Parimate soovidega indrek

Kasutaja ikoon ID73479
Pakkuja profiil Väike nool paremale
2 500€ Sisaldab KM Sisaldab KM 28.07.2023 Vestlus (0)

Pakkumise kirjeldus:

Tere

Hea meelega teostame tööd teie jaoks.Tööd tehakse kvaliteetselt ja võimalikult kiiresti.Pakume 5 aastane garantii oma töödele.

See hind sisaldab kõiki nimekirjas olevaid soovitud tööd.
Spetsialisti tulek teie objektile, hinnapakkumise ja tööteostamise lepingu koostamine.

Minu firma tegeleb katuste, fassaadide ehitusega ning üldehi ... Rohkem

Küsimused hanke korraldajale

Küsimus: private ID67766   21.07.2023 19:18
Tere .Kas soovite pakkumist ainult põranda valamiseks Kui jah ,siis kas koos betooniga või ilma betoonita teha pakkumine .Loomulikult saab valatud põrandale teha hüdrot ja panna põrandaplaate .Parimat soovides

Teavita reeglite rikkumisest

Korraldaja vastus: 21.07.2023 20:06

Tänan küsimuse eest! Palun teha pakkumine betoonpõrandale koos vesipõrandakütteks sobiva betooniga. Hüdro ja plaadid ei ole selle hanke osa. Lihtsalt tahaks kinnitust, et ei pea hiljem suuremahuliselt isevalguva betooniga vms viisil hakkama kaldeid korrigeerima või pinda üldiselt tasandama..

Teavita reeglite rikkumisest

Küsimus: private ID68473   26.07.2023 21:16
Tere

Kas vaheseinad on vahel ?
Kui järsud kalded on ?Kas rohkem või vähem kui 1 cm meetri kohta (Väga järskude kallete puhul teevad plaatijad ise praktiliselt alati tasandusvalu kalde koha peale ja liimiga plaatides on keeruline väga head tulemust saada ilma kalde kohapeale tasandus valu tegemata kui on järsk kalle.

Parimate soovidega

Teavita reeglite rikkumisest

Korraldaja vastus: 26.07.2023 21:52

Trepi vaheseinad on ikka ja üks saunalava äärne vahesein ka, teisi ei ole - tulevad hiljem etoonpõranda peale. Eriline on trepi alune ala muidugi - ruumi vähe. Kalded peaks jääma 1 cm/m kohta, kui tekivad suurema kalde vajadusega kohad, eks siis vaatame, vb tuleb jätta hilisema tasandusseguga tõstmiseks mõned kohad.

Teavita reeglite rikkumisest

Lisa küsimus

Lisa küsimus

Minu pakkumine

Reeglid

Pakkumise kirjelduse väli on mõeldud pakkumise detailsemaks lahti kirjutamiseks. Pikema teksti mugavaks sisestamiseks klikkige kasti paremal ülaservas oleval ikoonil.
Pakkumist tehes on keelatud postitada enda kontaktandmeid (nimi, telefon, aadress jne). Me jälgime ja analüüsime pakkumisi, et vältida pettuseid ja reeglite rikkumisi.
Rikkumise puhul kasutajakonto blokeeritakse.

 

Teisi töid samas valdkonnas

Valdkonnas "Betoonitööd" on 5 aktiivset tööd

Betoonist platsi valamine väljas.

Asukoht: Harjumaa, Luige
Aega jäänud: 17h 21 min
Tehtud pakkumisi: 4

Betoonpõranda valu

Asukoht: Harjumaa, Jõelähtme
Aega jäänud: 2p 17h
Tehtud pakkumisi: 3

Vanemad teated:

Vaata kõiki

Sellel veebilehel kasutatakse küpsiseid. Kasutamist jätkates nõustute küpsiste kasutamisega.

Sulge
 
Minu pakkumine

Reeglid

Pakkumise kirjelduse väli on mõeldud pakkumise detailsemaks lahti kirjutamiseks. Pikema teksti mugavaks sisestamiseks klikkige kasti paremal ülaservas oleval ikoonil.
Pakkumist tehes on keelatud postitada enda kontaktandmeid (nimi, telefon, aadress jne). Me jälgime ja analüüsime pakkumisi, et vältida pettuseid ja reeglite rikkumisi.
Rikkumise puhul kasutajakonto blokeeritakse.