+ Lisa oma töö      

Otsid ehitajat "Plaatimistööd" valdkonnast?

Parima pakkumise ja teostaja leidmiseks lisa oma töö.

200m2 plaatimine Pärnu linnas

ID 84219

776 vaatamist

Prindi

  • check Pakkumiste tegemine
    kuni 02.08.2023
  • check Võitja valik kuni
    09.08.2023
  • 3 Töö teostamine
    ja hinnang
Hanke lõpp: K, 2. august, 2023
Maakond: Pärnumaa
Linn: Pärnu
Tööde algus: E, 24. juuli, 2023 (Soovituslik)
Tööde lõpp: E, 18. september, 2023 (Soovituslik)
Ehitusmaterjalid: Töö tellija poolt
Soovin pakkumisi: Summa kogu projektile

Töö sisu

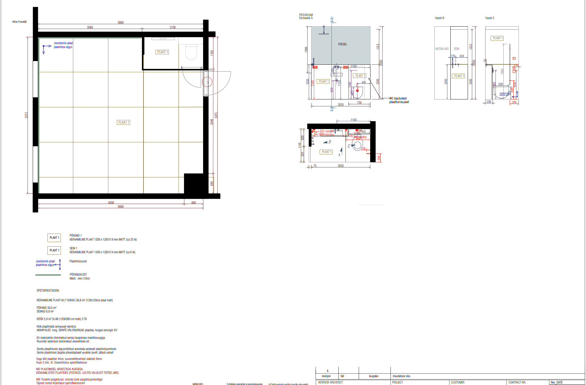
Plaatida 3 korteri eluruumide põrandad + vannitoa põrandad kalletega (koos hürdo ja elektri põrandaküttega) + osaliselt vannitubade seinad (koos hüdroga).
Plaatimisjoonised olemas.
Plaadid (1200x1200x9) olemas ja tarnitakse maja ette kokkulepitud ajaks.
Kõik muud materjalid töö tegija poolt.
Objekt asub Pärnu südames ja korterid asuvad puidust kortermaja teisel korrusel kõrvuti.

Pildid, video ja failid

Hanke korraldaja: eraisik ID46050

Pakkumised

Pakkumisi kokku: 3

Ettevõte Summa Käibemaks Lisatud Vestlus
Kasutaja ikoon ID73202
Pakkuja profiil Väike nool paremale
6 000€ Sisaldab KM Sisaldab KM 21.07.2023 Vestlus (0)
Kasutaja ikoon ID53066
Pakkuja profiil Väike nool paremale
8 000€ KM lisandub KM lisandub 25.07.2023 Vestlus (0)
Kasutaja ikoon ID73162
Pakkuja profiil Väike nool paremale
5 500€ Sisaldab KM Sisaldab KM 30.07.2023 Vestlus (0)

Küsimused hanke korraldajale

Küsimus: private ID66689   20.07.2023 08:12
Tere,
Kas vuuk tavaline või kahekomponentne?
Kui paindlik on tööde teostamise aeg?

Parimatega,
Asko

Teavita reeglite rikkumisest

Korraldaja vastus: 20.07.2023 08:48

Eelistatult epo vuuk, aga hinnapakkumises palun tooge välja hinnavahe tavalisega.

Teavita reeglite rikkumisest

Küsimus: private ID73162   21.07.2023 07:11
Tere!
Kas seina peale tuleb porte,või põrandaliist?

Teavita reeglite rikkumisest

Korraldaja vastus: 21.07.2023 08:38

Värvitud põrandaliist. Plaatida ei ole vaja.

Teavita reeglite rikkumisest

Lisa küsimus

Lisa küsimus

Minu pakkumine

Reeglid

Pakkumise kirjelduse väli on mõeldud pakkumise detailsemaks lahti kirjutamiseks. Pikema teksti mugavaks sisestamiseks klikkige kasti paremal ülaservas oleval ikoonil.
Pakkumist tehes on keelatud postitada enda kontaktandmeid (nimi, telefon, aadress jne). Me jälgime ja analüüsime pakkumisi, et vältida pettuseid ja reeglite rikkumisi.
Rikkumise puhul kasutajakonto blokeeritakse.

 

Teisi töid samas valdkonnas

Valdkonnas "Plaatimistööd" on 2 aktiivset tööd

Trepikoja plaatimine

Asukoht: Tartumaa, Ülenurme
Aega jäänud: 4p 15h
Tehtud pakkumisi: 2

Pesuruumi plaatimine 12.6 m2

Asukoht: Tartumaa, Teedla
Aega jäänud: 1p 15h
Tehtud pakkumisi: 0

Vanemad teated:

Vaata kõiki

Sellel veebilehel kasutatakse küpsiseid. Kasutamist jätkates nõustute küpsiste kasutamisega.

Sulge
 
Minu pakkumine

Reeglid

Pakkumise kirjelduse väli on mõeldud pakkumise detailsemaks lahti kirjutamiseks. Pikema teksti mugavaks sisestamiseks klikkige kasti paremal ülaservas oleval ikoonil.
Pakkumist tehes on keelatud postitada enda kontaktandmeid (nimi, telefon, aadress jne). Me jälgime ja analüüsime pakkumisi, et vältida pettuseid ja reeglite rikkumisi.
Rikkumise puhul kasutajakonto blokeeritakse.