+ Lisa oma töö      

Otsid ehitajat "Siseviimistlustööd" valdkonnast?

Parima pakkumise ja teostaja leidmiseks lisa oma töö.

Vannitubade ehitus/viimistlus

ID 84051

462 vaatamist

Prindi

  • check Pakkumiste tegemine
    kuni 28.07.2023
  • check Võitja valik kuni
    04.08.2023
  • 3 Töö teostamine
    ja hinnang
Hanke lõpp: R, 28. juuli, 2023
Maakond: Harjumaa
Muu asula: Kersalu
Tööde algus: E, 31. juuli, 2023 (Soovituslik)
Tööde lõpp: E, 14. august, 2023 (Soovituslik)
Ehitusmaterjalid: Töö tellija poolt
Soovin pakkumisi: Summa kogu projektile

Töö sisu

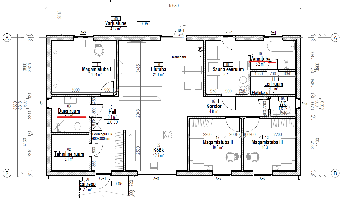
Otsin vannitubade ehitajat. Alates kipsist kuni plaatimiseni, kogu viimistlustöö.
Tööpinda on kaks vannituba 5,1 m2 ja 5,2 m2. Seinapinda hinnanguliselt 11m2 ja 19m2. Esimeses vannitoas on plaatimiseks kaks seina, ülejäänu värvimiseks. Ja teises kõik plaadi alla. Töö teostaja peab aitama koostada materjalide kalkulatsiooni.

Pildid, video ja failid

Hanke korraldaja: eraisik ID72219

Pakkumised

Pakkumisi kokku: 5

Ettevõte Summa Käibemaks Lisatud Vestlus
Kasutaja ikoon ID65125
Pakkuja profiil Väike nool paremale
7 200€ KM lisandub KM lisandub 23.07.2023 Vestlus (2)

Pakkumise kirjeldus:

Tere hinnapakkumine on tehtud kahele vannitoale.materjalide kalkulatsiooni saab teha alates kohapeal vaatamas käimisel.

lugupidamisega.

Kasutaja ikoon ID71052
Pakkuja profiil Väike nool paremale
6 600€ Ei ole KMKR Ei ole KMKR 28.07.2023 Vestlus (0)

Pakkumise kirjeldus:

Tere.
Hinnapakkumine vastavalt hanke sisule- vannitubade ehitus, viimistlus.
Materjalid Teie poolt.
Oleme ehitusvaldkonnas toimetanud juba 25a.

Vaid parimat soovides!

Kasutaja ikoon ID29141
Pakkuja profiil Väike nool paremale
5 980€ KM lisandub KM lisandub 28.07.2023 Vestlus (0)

Pakkumise kirjeldus:

Tere,

Pakkumine tehtud kipsi-, plaatimis- ja viimistlustöödele. Hinnas ka põrandapealse poti paigaldus. Pakkumine sisladab ka hange.ee teenustasu.
Töid teostame lepinguga. Eraisikutele võimalik teha töid ilma km-ta. Tasumine arve alusel etappide kauppa.
Töödele garantii.

Kasutaja ikoon ID64032
Pakkuja profiil Väike nool paremale
6 300€ KM lisandub KM lisandub 28.07.2023 Vestlus (0)

Pakkumise kirjeldus:

Tere!

Hind vastavalt hanke kirjeldusele tööraha.
Materjali kalkulatsiooni teeme kohapeal, peale objektiga tutvumist.
Lisaküsimustele vastame meeleldi.

Parimate soovidega,
Kristjan

Kasutaja ikoon ID73479
Pakkuja profiil Väike nool paremale
10 000€ Sisaldab KM Sisaldab KM 28.07.2023 Vestlus (0)

Pakkumise kirjeldus:

Tere

Hea meelega teostame tööd teie jaoks.Tööd tehakse kvaliteetselt ja võimalikult kiiresti.Pakume 5 aastane garantii oma töödele.

See hind sisaldab kõiki nimekirjas olevaid soovitud tööd.
Spetsialisti tulek teie objektile, hinnapakkumise ja tööteostamise lepingu koostamine.

Minu firma tegeleb katuste, fassaadide ehitusega ning üldehi ... Rohkem

Küsimused hanke korraldajale

Küsimus: private ID64032   18.07.2023 00:00
Tere!

Kes põrandad teeb?
Kas eelnev lammutustöö on tehtud?
Kes materjali objektile tarnib?
Kas santehnika jms. paigaldate ise?

Parimate soovidega,
Kristjan

Teavita reeglite rikkumisest

Korraldaja vastus: 18.07.2023 07:19

Tere,

Täiesti uus ehitatav maja, valatud betoon põrand koos põrandakütte torudega ja äravooludega.
Välisseintes paigaldatud aurutõkke koos roovitusega. Siseseinad valmis kipsimiseks.

Materjali tarnime ise vastavalt siis tööde tegija kalkulatsioonile.

Torude ühendamise valmiduse teeb eraldi san.tehnik. Oleks hea kui vannitoa tegijal on teadmised WC-poti paigaldamise kohta.

Anu

Teavita reeglite rikkumisest

Küsimus: private ID57986   18.07.2023 08:14
Tere, ehk siis soovite,et antud tööde teostaja paigaldaks ka potid? Raamiga pott?

Teavita reeglite rikkumisest

Korraldaja vastus: 18.07.2023 08:21

Jah oleks soov, et paigaldatakse ka WC-pott- tuleb raamita pott.

Teavita reeglite rikkumisest

Küsimus: private ID57986   18.07.2023 10:18
Kas saaks mõlemast vannitoast pilte? Ehk saab isegi krohvida osaliselt.

Teavita reeglite rikkumisest

Korraldaja vastus: 18.07.2023 10:44

Tegemist on uue ehitatava puitkarkass majaga. Ühel vannitoal on kaks välisseina ja teisel üks välissein aurutõkke kilega ning kipsi roovitusega.

Teavita reeglite rikkumisest

Küsimus: private ID57986   18.07.2023 12:19
Aa hästi, ühesõnaga lihtsalt kips paigaldada jah?

Teavita reeglite rikkumisest

Korraldaja vastus: 18.07.2023 12:35

Jah, kips paigaldada, hüdroisolatsioon ning plaatimine- vuukimine jne.

Teavita reeglite rikkumisest

Küsimus: private ID65125   23.07.2023 00:21
Tere mis ajaks sooviksite alustada ja mil peaks valis saama vannitoad?

Teavita reeglite rikkumisest

Korraldaja vastus: 23.07.2023 08:08

Tere, tööd peaks valmis saama hiljemalt augusti lõpuks. Hankes on küll kirjas 14.08 aga oleme paindlikud.

Teavita reeglite rikkumisest

Lisa küsimus

Lisa küsimus

Minu pakkumine

Reeglid

Pakkumise kirjelduse väli on mõeldud pakkumise detailsemaks lahti kirjutamiseks. Pikema teksti mugavaks sisestamiseks klikkige kasti paremal ülaservas oleval ikoonil.
Pakkumist tehes on keelatud postitada enda kontaktandmeid (nimi, telefon, aadress jne). Me jälgime ja analüüsime pakkumisi, et vältida pettuseid ja reeglite rikkumisi.
Rikkumise puhul kasutajakonto blokeeritakse.

 

Teisi töid samas valdkonnas

Valdkonnas "Siseviimistlustööd" on 20 aktiivset tööd

Seinte pahteldus ja värvimine

Asukoht: Harjumaa, Türisalu
Aega jäänud: 2p 20h
Tehtud pakkumisi: 7

Korteri seinte ja lagede värvimine, osaline pahteldamine

Asukoht: Harjumaa, Tallinn
Aega jäänud: 20h 11 min
Tehtud pakkumisi: 5

Vanemad teated:

Vaata kõiki

Sellel veebilehel kasutatakse küpsiseid. Kasutamist jätkates nõustute küpsiste kasutamisega.

Sulge
 
Minu pakkumine

Reeglid

Pakkumise kirjelduse väli on mõeldud pakkumise detailsemaks lahti kirjutamiseks. Pikema teksti mugavaks sisestamiseks klikkige kasti paremal ülaservas oleval ikoonil.
Pakkumist tehes on keelatud postitada enda kontaktandmeid (nimi, telefon, aadress jne). Me jälgime ja analüüsime pakkumisi, et vältida pettuseid ja reeglite rikkumisi.
Rikkumise puhul kasutajakonto blokeeritakse.