+ Lisa oma töö      

Otsid ehitajat "Siseviimistlustööd" valdkonnast?

Parima pakkumise ja teostaja leidmiseks lisa oma töö.

Korteri remont

ID 83919

667 vaatamist

Prindi

  • check Pakkumiste tegemine
    kuni 24.07.2023
  • check Võitja valik kuni
    31.07.2023
  • 3 Töö teostamine
    ja hinnang
Hanke lõpp: E, 24. juuli, 2023
Maakond: Harjumaa
Linn: Tallinn
Tööde algus: E, 31. juuli, 2023 (Soovituslik)
Tööde lõpp: L, 30. september, 2023 (Soovituslik)
Ehitusmaterjalid: Töö tegija poolt
Soovin pakkumisi: Summa kogu projektile

Töö sisu

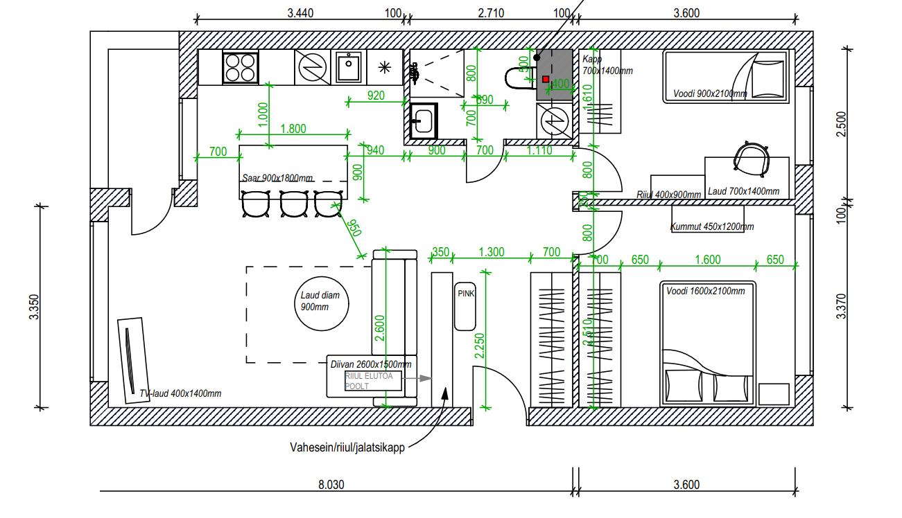
Kolmetoaline 63m2 korter Tallinnas Kristiine linnaosas, kolmandal korrusel, vajab kapitaalremonti.

Teostatavad tööd:
I Ettevalmistus
1) Olemasoleva mööbli utiliseerimine – elutoas diivan, laud ja neli tooli, tugitool seinasektsioonkapp´, kummut; köögis köögimööbel, gaasipliit, laud, külmik; magamistoas voodi, kummut, riidekapp; magamistoas voodi, kirjutuslaud ja tool, kummut, seinariiul; esikus kaks riidekappi, pink, peegel; vannitoas vann, kraanikauss, WC pott
2) Konteiner – saab paigutada kohe välisukse kõrval olevale parkimiskohale
II Ehitustööd
1) Kõik põrandad üles võtta
2) Kōōgi ja elutoa ning esiku vaheliste seinade, vannitoa ja WC vahelise seina eemaldamine ja utliseerimine
3) Vannitoa ja vetsu põranda eemaldamine ning uuesti valamine koos põrandasoojuse paigaldamisega
4) Vannitoa äravoolu uus asukoht ja sellega seonduvad torutööd (põranda tõstmine)
5) Vannitoa ukse uus asukoht ja selle paigaldamine
6) Vannitoa ja WC plaatimine
7) Vannitoa ja vetsu uued san. seadmed ja dušikabiini paigaldus
8) Kõikide tubade, esiku ja köögi uued põrandad (parkett ja kööki plaadid)
9) Tubade, esiku ja köögi seinad (juhtmete ja pistikupesade freesimine) - seinte värvimine, pahteldamine ja selleks vajalikud ettevalmistustööd
10) Lagede värvimine ja vajadusel pahteldamine ning lihvimine
11) Kõik elektritööd
12) Köögikraanikausi ja köögimööbli paigaldus
13) Korteri sisemiste uste vahetus (kolm siseust ja rõduuks)
14) Korteri välisukse vahetus ja selle paigaldus
15) Uus elektrikilp, juhtmestik ja pistikud (projekt vajalik)
16) Radiaatorite värvimine
17) Köögis gaasi sulgemine ja gaasiboileri vahetus elektriboileriga

Teostamisele mittekuuluvad tööd:
1) Akende vahetus
2) Uute aknalaudade paigaldus (toimub seoses akende vahetusega suvel)
3) Radiaatorite vahetus

Manuses on põrandaplaan, kus on näidatud vaheseinad, mis on plaanis eemaldada.

Palun teha pakkumine koos ja ilma ehitusmaterjalideta, detailsus kindlasti aitab otsuse tegemisel kaasa.

Pildid, video ja failid

Hanke korraldaja: eraisik ID72382

Pakkumised

Pakkumisi kokku: 7

Ettevõte Summa Käibemaks Lisatud Vestlus
Kasutaja ikoon ID75937
Pakkuja profiil Väike nool paremale
12 500€ Sisaldab KM Sisaldab KM 17.07.2023 Vestlus (0)

Pakkumise kirjeldus:

12500 без материала
с материалом 17500
оплата частями раз в неделю

Kasutaja ikoon ID65125
Pakkuja profiil Väike nool paremale
33 000€ KM lisandub KM lisandub 22.07.2023 Vestlus (1)

Pakkumise kirjeldus:

Hind koos materjaliga 33,000.
hind ainult töö 21,600.

lugupidamisega.

Kasutaja ikoon ID70588
Pakkuja profiil Väike nool paremale
21 000€ Ei ole KMKR Ei ole KMKR 24.07.2023 Vestlus (0)

Pakkumise kirjeldus:

Tere,

Pakkumine küsitud töödele, ilma materjalita.

Nb! Ei ole mõistlik pakkuda midagi, mille üle me ise otsustada ei saa ja mille kohta meil täpne info puudub.

Lugupidamisega,

jm.

Kasutaja ikoon ID71052
Pakkuja profiil Väike nool paremale
19 000€ Ei ole KMKR Ei ole KMKR 24.07.2023 Vestlus (0)

Pakkumise kirjeldus:

Tere.
Hinnapakkumine vastavalt hanke sisule.
Lammutus- ja ehitusprahi utilisatsioon hinna sees. Materjalid meie poolt.
Oleme ehitusvaldkonnas toimetanud juba 25a.


Vaid parimat soovides!

Kasutaja ikoon ID73479
Pakkuja profiil Väike nool paremale
40 000€ Sisaldab KM Sisaldab KM 24.07.2023 Vestlus (0)

Pakkumise kirjeldus:

Tere

Hea meelega teostame tööd teie jaoks.tööd tehakse kvaliteetselt ja võimalikult kiiresti.Pakume 5 aastane garantii oma töödele.

See hind sisaldab kõiki nimekirjas olevaid soovitud tööd.
Spetsialisti tulek teie objektile, hinnapakkumise ja tööteostamise lepingu koostamine.

Minu firma tegeleb katuste, fassaadide ehitusega ning üldehi ... Rohkem

Kasutaja ikoon ID73202
Pakkuja profiil Väike nool paremale
22 000€ KM lisandub KM lisandub 24.07.2023 Vestlus (0)
Kasutaja ikoon ID74897
Pakkuja profiil Väike nool paremale
18 400€ Sisaldab KM Sisaldab KM 24.07.2023 Vestlus (0)

Küsimused hanke korraldajale

Hanke korraldajale ei ole veel küsimusi esitatud.

Lisa küsimus

Lisa küsimus

Minu pakkumine

Reeglid

Pakkumise kirjelduse väli on mõeldud pakkumise detailsemaks lahti kirjutamiseks. Pikema teksti mugavaks sisestamiseks klikkige kasti paremal ülaservas oleval ikoonil.
Pakkumist tehes on keelatud postitada enda kontaktandmeid (nimi, telefon, aadress jne). Me jälgime ja analüüsime pakkumisi, et vältida pettuseid ja reeglite rikkumisi.
Rikkumise puhul kasutajakonto blokeeritakse.

 

Teisi töid samas valdkonnas

Valdkonnas "Siseviimistlustööd" on 24 aktiivset tööd

Korteri remont

Asukoht: Harjumaa, Muraste
Aega jäänud: 2p 18h
Tehtud pakkumisi: 15

no-img Pilt puudub

Laminaatparketi paigaldus

Asukoht: Harjumaa, Tallinn
Aega jäänud: 4p 18h
Tehtud pakkumisi: 7

Vanemad teated:

Vaata kõiki

Sellel veebilehel kasutatakse küpsiseid. Kasutamist jätkates nõustute küpsiste kasutamisega.

Sulge
 
Minu pakkumine

Reeglid

Pakkumise kirjelduse väli on mõeldud pakkumise detailsemaks lahti kirjutamiseks. Pikema teksti mugavaks sisestamiseks klikkige kasti paremal ülaservas oleval ikoonil.
Pakkumist tehes on keelatud postitada enda kontaktandmeid (nimi, telefon, aadress jne). Me jälgime ja analüüsime pakkumisi, et vältida pettuseid ja reeglite rikkumisi.
Rikkumise puhul kasutajakonto blokeeritakse.