+ Lisa oma töö      

Otsid ehitajat "Üldehitus" valdkonnast?

Parima pakkumise ja teostaja leidmiseks lisa oma töö.

Suvila ehitus

ID 83808

693 vaatamist

Prindi

  • check Pakkumiste tegemine
    kuni 06.08.2023
  • check Võitja valik kuni
    13.08.2023
  • 3 Töö teostamine
    ja hinnang
Hanke lõpp: P, 6. august, 2023
Maakond: Tartumaa
Muu asula: Välgi
Tööde algus: T, 01. august, 2023 (Soovituslik)
Tööde lõpp: T, 31. oktoober, 2023 (Soovituslik)
Ehitusmaterjalid: Töö tegija poolt
Soovin pakkumisi: Tüki- või ühikuhinda

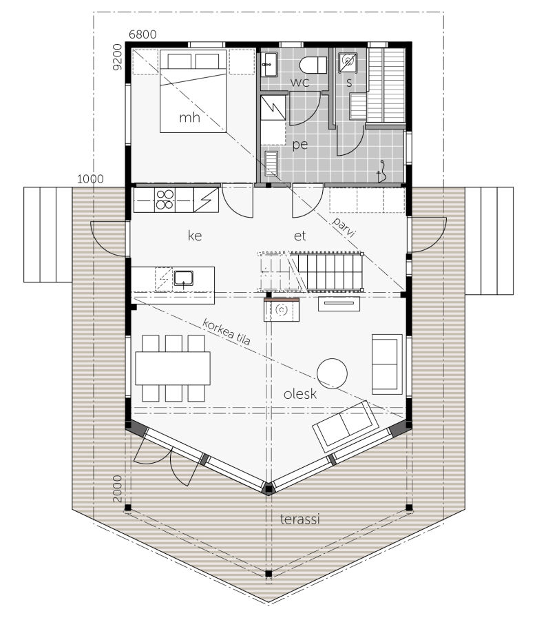
Töö sisu

Sooviks hinnapakkumist karp kinni. Tegu on küll suvilaga, aga peaks saama kasutada aastaringselt.

Akende u-väärtus peaks olema u 0,8. (akna pinda läheb vähemaks, kus pole standard kujul)

Kandvad seinad võivad olla liimpuidust(min 200mm), sip-element, põhuplaat vms

Katusele planeeritud päikesepaneelid.

Vundamendi osas peaks arvestama, et jõgi asub lähedal (valgala) ning tegu on savise pinnasega - teise hoone asemele.

terarssi osas m2 hind .

Võib pakkuda ka projekteerimist ehitusteatise jaoks.

Pildid, video ja failid

Hanke korraldaja: eraisik ID75748

Pakkumised

Pakkumisi kokku: 4

Ettevõte Summa Käibemaks Lisatud Vestlus
Kasutaja ikoon ID33769
Pakkuja profiil Väike nool paremale
1 200€ KM lisandub KM lisandub 12.07.2023 Vestlus (6)

Pakkumise kirjeldus:

CA 1200eur/m2 väljast valmis karp

Kasutaja ikoon ID57450
Pakkuja profiil Väike nool paremale
140 000€ KM lisandub KM lisandub 13.07.2023 Vestlus (0)

Pakkumise kirjeldus:

Pakkumine võtmed kätte lahendusele. Päiksepaneelid hinnas.
Sobivusel võtke ühendust, tuleme läbi ja koostame detailse pakkumise. Edukat hanget!

Kasutaja ikoon ID69079
Pakkuja profiil Väike nool paremale
27 600€ KM lisandub KM lisandub 05.08.2023 Vestlus (0)

Pakkumise kirjeldus:

Tere
Pakume Teie eritingimustele vastavat kergsavist maja seinapaksusega 30 cm kandev sein, kaetud puitkiudplaadiga 5 mm., vundamendiks pakume kruvivundament lahendust ja vana hoone lammutustöid. Pakkumine ei sisalda siseviimistlust(krohv/puit) ega välisviimistlust(krohv,/puit/kivi). Reaalset pakkumist ei ole võimalik ilma projektita teha, seega pakume s ... Rohkem

Kasutaja ikoon ID73479
Pakkuja profiil Väike nool paremale
150 000€ Sisaldab KM Sisaldab KM 06.08.2023 Vestlus (0)

Pakkumise kirjeldus:

Tere,

Hea meelega teostame tööd teie jaoks.tööd tehakse kvaliteetselt ja võimalikult kiiresti.Pakume 5 aastane garantii oma töödele.

See hind sisaldab kõiki nimekirjas olevaid soovitud tööd.
Spetsialisti tulek teie objektile, hinnapakkumise ja tööteostamise lepingu koostamine.

Minu firma tegeleb katuste, fassaadide ehitusega ning üldeh ... Rohkem

Küsimused hanke korraldajale

Küsimus: private ID59491   08.07.2023 18:52
Kui palju ruutmeetreid on ehitisel?? Kas suvila seina materjaliks on 200 mm putkarkaas? Kas ehitis tuleks ehitada plaatvundamendile? Millised kommunaalid on plaanis ? Kütte osas olete mõelnud millist varjanti?

Teavita reeglite rikkumisest

Korraldaja vastus: 10.07.2023 16:03

põrandapind: 80m2. (koos lavatsi osaga)
Plaatvundament on välistatud.
Elekter olemas, biopuhasti ja kaev rajamisel.
Küte - kamin, õhksoojuspump

Teavita reeglite rikkumisest

Küsimus: private ID33769   09.07.2023 12:11
Tere.

Saan aru, et vana hoone asemele tuleb? Paluks pilti olemasolevast olukorrast, kas hoone lammutatud ja mis seisus vana vundament?

Teavita reeglite rikkumisest

Korraldaja vastus: 10.07.2023 15:56

Jaa, uus tuleb vana asemele.
Hetkel hoone peal ning pole teada vundamendi olukord - lisatud pildid

Teavita reeglite rikkumisest

Küsimus: private ID69079   16.07.2023 23:56
Tere
Planeeritava maja seinakõrgus 0-müürilatini,0-harjani,kui soovite pakkumisse ka aknaid-uksi,siis avade mõõdud palun, kas katusekatte materjalideks päikesepaneelid või mis materjal paneelide alla?
Parimat

Teavita reeglite rikkumisest

Korraldaja vastus:
Hanke korraldaja ei ole küsimusele veel vastanud

Lisa küsimus

Lisa küsimus

Minu pakkumine

Reeglid

Pakkumise kirjelduse väli on mõeldud pakkumise detailsemaks lahti kirjutamiseks. Pikema teksti mugavaks sisestamiseks klikkige kasti paremal ülaservas oleval ikoonil.
Pakkumist tehes on keelatud postitada enda kontaktandmeid (nimi, telefon, aadress jne). Me jälgime ja analüüsime pakkumisi, et vältida pettuseid ja reeglite rikkumisi.
Rikkumise puhul kasutajakonto blokeeritakse.

 

Teisi töid samas valdkonnas

Valdkonnas "Üldehitus" on 30 aktiivset tööd

Kuuri lammutus

Asukoht: Pärnumaa
Aega jäänud: 2p 23h
Tehtud pakkumisi: 6

Põrandakütte torustiku ja kollektori paigaldus.

Asukoht: Harjumaa, Kurkse
Aega jäänud: 15p 23h
Tehtud pakkumisi: 4

Vanemad teated:

Vaata kõiki

Sellel veebilehel kasutatakse küpsiseid. Kasutamist jätkates nõustute küpsiste kasutamisega.

Sulge
 
Minu pakkumine

Reeglid

Pakkumise kirjelduse väli on mõeldud pakkumise detailsemaks lahti kirjutamiseks. Pikema teksti mugavaks sisestamiseks klikkige kasti paremal ülaservas oleval ikoonil.
Pakkumist tehes on keelatud postitada enda kontaktandmeid (nimi, telefon, aadress jne). Me jälgime ja analüüsime pakkumisi, et vältida pettuseid ja reeglite rikkumisi.
Rikkumise puhul kasutajakonto blokeeritakse.