+ Lisa oma töö      

Otsid ehitajat "Üldehitus" valdkonnast?

Parima pakkumise ja teostaja leidmiseks lisa oma töö.

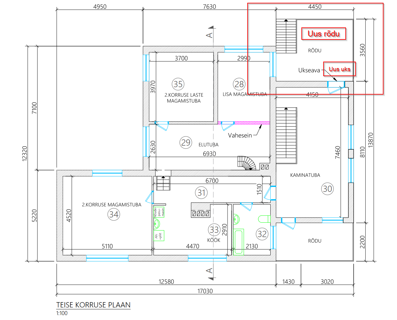
Rõdu, trepi ja uue sissekäigu ehitus

ID 83695

609 vaatamist

Prindi

  • check Pakkumiste tegemine
    kuni 10.07.2023
  • check Võitja valik kuni
    17.07.2023
  • 3 Töö teostamine
    ja hinnang
Hanke lõpp: E, 10. juuli, 2023
Maakond: Tartumaa
Linn: Tartu
Tööde algus: N, 31. august, 2023 (Soovituslik)
Tööde lõpp: L, 30. september, 2023 (Soovituslik)
Ehitusmaterjalid: Töö tegija poolt
Soovin pakkumisi: Summa kogu projektile

Töö sisu

1) Lammutada (või jätta alles ja ehitada ümber) olev kuur ning teha sellest uus rõdu (kõrgus 2.4meetrit maapinnast)
2) Õuest teise korruse rõdule vaja teha metallist trepp
3) Akna asemele ehitada uus välisuks

Pildid, video ja failid

Hanke korraldaja: eraisik ID75681

Pakkumised

Pakkumisi kokku: 3

Ettevõte Summa Käibemaks Lisatud Vestlus
Kasutaja ikoon ID65805
Pakkuja profiil Väike nool paremale
6 500€ KM lisandub KM lisandub 06.07.2023 Vestlus (0)

Pakkumise kirjeldus:

Tere!
Pakkumine kirjeldatud tööle, hind ei sisalda metalltreppi ning ust rõdule, kuid sisaldab nende paigaldamist ning ukse põse taastamist seest ja väljast. Ülejäänud materjalid hinnas. Katusel sbs ja peal terrassilaud. Saame aidata trepi joonestamisega ning valmistaja leidmisega.

Parimat!
Uku

Kasutaja ikoon ID70172
Pakkuja profiil Väike nool paremale
8 400€ Sisaldab KM Sisaldab KM 07.07.2023 Vestlus (0)

Pakkumise kirjeldus:

Pakkumis sisaldab olemasoleva kuuriosa lammutust, uue rõdu ehitamist, vana akna utiliseerimist-uue rõduukse paigaldust, rõduukse palede korda tegemist. Kahe töömehe tasu, transpordikulusid. Rõdu ehitamiseks vajamineva puitmaterjali ja metalltrepp tellimisse andmise jaoks ettemaksu 50%.

Lgp.

Kasutaja ikoon ID73479
Pakkuja profiil Väike nool paremale
11 000€ Sisaldab KM Sisaldab KM 10.07.2023 Vestlus (0)

Pakkumise kirjeldus:

Tere

Hea meelega teostame tööd teie jaoks.tööd tehakse kvaliteetselt ja võimalikult kiiresti.Pakume 5 aastane garantii oma töödele.

See hind sisaldab kõiki nimekirjas olevaid soovitud tööd.
Spetsialisti tulek teie objektile, hinnapakkumise ja tööteostamise lepingu koostamine.

Minu firma tegeleb katuste, fassaadide ehitusega ning üldehi ... Rohkem

Küsimused hanke korraldajale

Hanke korraldajale ei ole veel küsimusi esitatud.

Lisa küsimus

Lisa küsimus

Minu pakkumine

Reeglid

Pakkumise kirjelduse väli on mõeldud pakkumise detailsemaks lahti kirjutamiseks. Pikema teksti mugavaks sisestamiseks klikkige kasti paremal ülaservas oleval ikoonil.
Pakkumist tehes on keelatud postitada enda kontaktandmeid (nimi, telefon, aadress jne). Me jälgime ja analüüsime pakkumisi, et vältida pettuseid ja reeglite rikkumisi.
Rikkumise puhul kasutajakonto blokeeritakse.

 

Teisi töid samas valdkonnas

Valdkonnas "Üldehitus" on 30 aktiivset tööd

Kuuri lammutus

Asukoht: Pärnumaa
Aega jäänud: 2p 22h
Tehtud pakkumisi: 6

Põrandakütte torustiku ja kollektori paigaldus.

Asukoht: Harjumaa, Kurkse
Aega jäänud: 15p 22h
Tehtud pakkumisi: 4

Vanemad teated:

Vaata kõiki

Sellel veebilehel kasutatakse küpsiseid. Kasutamist jätkates nõustute küpsiste kasutamisega.

Sulge
 
Minu pakkumine

Reeglid

Pakkumise kirjelduse väli on mõeldud pakkumise detailsemaks lahti kirjutamiseks. Pikema teksti mugavaks sisestamiseks klikkige kasti paremal ülaservas oleval ikoonil.
Pakkumist tehes on keelatud postitada enda kontaktandmeid (nimi, telefon, aadress jne). Me jälgime ja analüüsime pakkumisi, et vältida pettuseid ja reeglite rikkumisi.
Rikkumise puhul kasutajakonto blokeeritakse.