+ Lisa oma töö      

Otsid ehitajat "Küttesüsteemid" valdkonnast?

Parima pakkumise ja teostaja leidmiseks lisa oma töö.

Keskkütte

ID 83339

549 vaatamist

Prindi

  • check Pakkumiste tegemine
    kuni 10.07.2023
  • check Võitja valik kuni
    17.07.2023
  • 3 Töö teostamine
    ja hinnang
Hanke lõpp: E, 10. juuli, 2023
Maakond: Harjumaa
Linn: Tallinn
Tööde algus: R, 01. september, 2023 (Soovituslik)
Tööde lõpp: L, 30. september, 2023 (Soovituslik)
Ehitusmaterjalid: Töö tegija poolt
Soovin pakkumisi: Summa kogu projektile

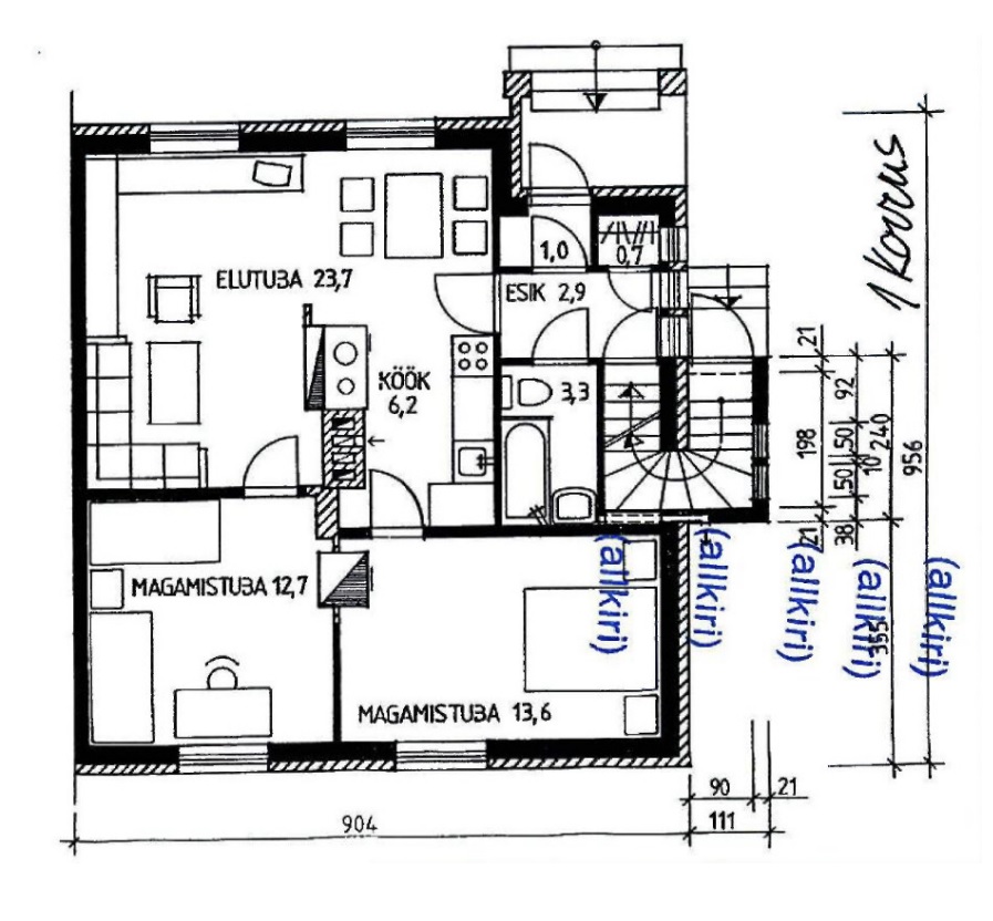
Töö sisu

Kesküttesüsteemi välja ehitamine.

Köetavate ruumide pind on umbes 65m².
Katlaruum tuleks keldrisse(ruumid on märgitud sinisega).

Radiaatorkütte tubadesse ja wc-sse põrandakütte.

Sooviks nn võtmed kätte lahendust.

Pildid, video ja failid

Hanke korraldaja: eraisik ID73561

Pakkumised

Pakkumisi kokku: 2

Ettevõte Summa Käibemaks Lisatud Vestlus
Kasutaja ikoon ID55890
Pakkuja profiil Väike nool paremale
3 500€ Sisaldab KM Sisaldab KM 10.07.2023 Vestlus (0)

Pakkumise kirjeldus:

Tere

Olen tegelenud torutöödega mitmeid aastaid ning spetsialiseerunud katlamajade ehitusele.
Hetkel raske pakkumist teha. Aga kui saaks objektiga tutvuda oleks asi palju lihtsam.
Panen esialgse hinna kuid kindel hind selgub objektiga tutvumisel

Lugupidamisega

Kasutaja ikoon ID73479
Pakkuja profiil Väike nool paremale
5 500€ Sisaldab KM Sisaldab KM 10.07.2023 Vestlus (0)

Pakkumise kirjeldus:

Tere

Hea meelega teostame tööd teie jaoks.tööd tehakse kvaliteetselt ja võimalikult kiiresti.Pakume 5 aastane garantii oma töödele.

See hind sisaldab kõiki nimekirjas olevaid soovitud tööd.
Spetsialisti tulek teie objektile, hinnapakkumise ja tööteostamise lepingu koostamine.

Minu firma tegeleb katuste, fassaadide ehitusega ning üldehi ... Rohkem

Küsimused hanke korraldajale

Küsimus: private ID50618   09.07.2023 21:46
Tere.
Keskküttetrassi torustik maija toodud?
Keskkütte soojussõlm olemas?

Teavita reeglite rikkumisest

Korraldaja vastus:
Hanke korraldaja ei ole küsimusele veel vastanud

Lisa küsimus

Lisa küsimus

Minu pakkumine

Reeglid

Pakkumise kirjelduse väli on mõeldud pakkumise detailsemaks lahti kirjutamiseks. Pikema teksti mugavaks sisestamiseks klikkige kasti paremal ülaservas oleval ikoonil.
Pakkumist tehes on keelatud postitada enda kontaktandmeid (nimi, telefon, aadress jne). Me jälgime ja analüüsime pakkumisi, et vältida pettuseid ja reeglite rikkumisi.
Rikkumise puhul kasutajakonto blokeeritakse.

 

Teisi töid samas valdkonnas

Valdkonnas "Küttesüsteemid" on 2 aktiivset tööd

no-img Pilt puudub

Küttesüsteemi püstakute vahetus ja radiaatoritega ühendamine

Asukoht: Järvamaa, Paide
Aega jäänud: 3p 19h
Tehtud pakkumisi: 2

Cooper&Hunter Consol Inverter 18

Asukoht: Harjumaa, Tallinn
Aega jäänud: 19h 32 min
Tehtud pakkumisi: 1

Vanemad teated:

Vaata kõiki

Sellel veebilehel kasutatakse küpsiseid. Kasutamist jätkates nõustute küpsiste kasutamisega.

Sulge
 
Minu pakkumine

Reeglid

Pakkumise kirjelduse väli on mõeldud pakkumise detailsemaks lahti kirjutamiseks. Pikema teksti mugavaks sisestamiseks klikkige kasti paremal ülaservas oleval ikoonil.
Pakkumist tehes on keelatud postitada enda kontaktandmeid (nimi, telefon, aadress jne). Me jälgime ja analüüsime pakkumisi, et vältida pettuseid ja reeglite rikkumisi.
Rikkumise puhul kasutajakonto blokeeritakse.