+ Lisa oma töö      

Otsid ehitajat "Ventilatsioonitööd" valdkonnast?

Parima pakkumise ja teostaja leidmiseks lisa oma töö.

Eramaja ventilatsioon

ID 83254

1346 vaatamist

Prindi

  • check Pakkumiste tegemine
    kuni 22.07.2023
  • check Võitja valik kuni
    29.07.2023
  • 3 Töö teostamine
    ja hinnang
Hanke lõpp: L, 22. juuli, 2023
Maakond: Tartumaa
Muu asula: Kaimi
Tööde algus: T, 01. august, 2023 (Soovituslik)
Tööde lõpp: E, 07. august, 2023 (Soovituslik)
Ehitusmaterjalid: Töö tegija poolt
Soovin pakkumisi: Tüki- või ühikuhinda

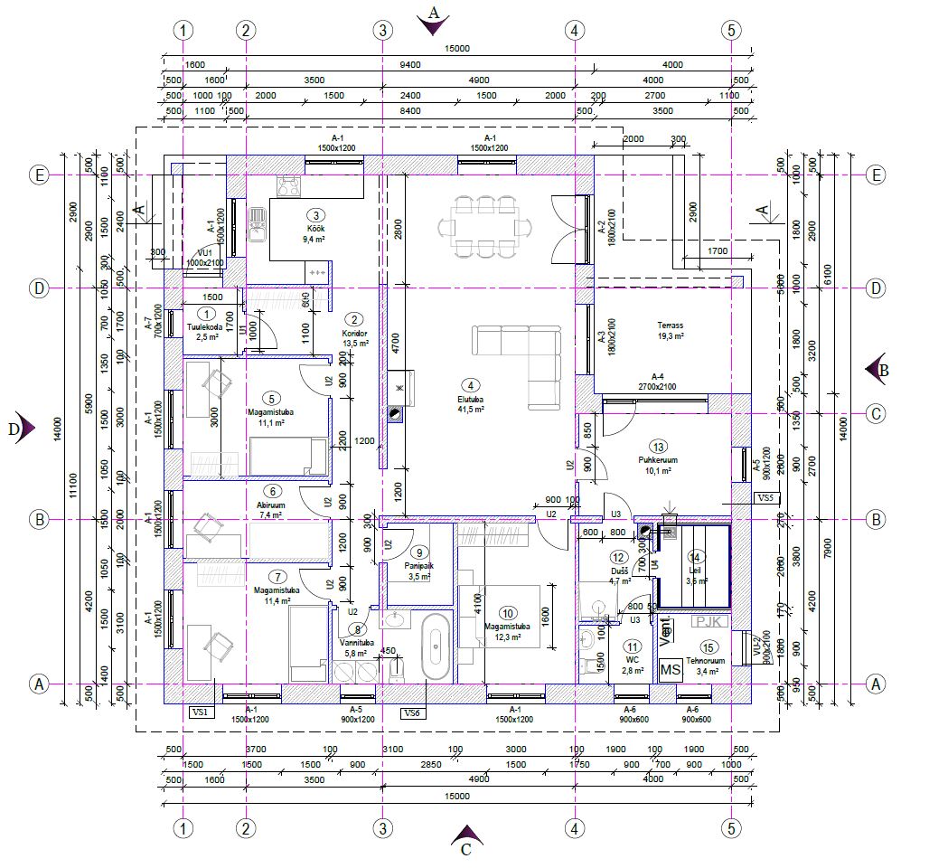
Töö sisu

Eramaja ventilatsiooni paigaldus.
Pakkumises välja tuua vähemalt 3 rida: materjali, ventilatsiooniseadme ja töö hind.

Pildid, video ja failid

Hanke korraldaja: eraisik ID7591

Pakkumised

Pakkumisi kokku: 6

Ettevõte Summa Käibemaks Lisatud Vestlus
Kasutaja ikoon ID51879
Pakkuja profiil Väike nool paremale
13 250€ KM lisandub KM lisandub 23.06.2023 Vestlus (3)

Pakkumise kirjeldus:

Pakkumine sisaldab:
1.Ventilatsiooniseade AIROBOT V8 ERV left
2.Ventilatsioonimaterjalid/isolatsioonimaterjalid.kinnitusvahendid/plafoonid,restid,abimaterjal.
3.paigaldustöö
4.mōōdistus/seadistus/dokumentatsioon

Kasutaja ikoon ID73565
Pakkuja profiil Väike nool paremale
8 000€ KM lisandub KM lisandub 23.06.2023 Vestlus (0)

Pakkumise kirjeldus:

Vent.agregaat Systemair/juhtpult. 2830€
Fassoonosad 2500€
Paigaldustöö/mõõdistuspass 2470€

Kasutaja ikoon ID74916
Pakkuja profiil Väike nool paremale
9 980€ KM lisandub KM lisandub 26.06.2023 Vestlus (0)

Pakkumise kirjeldus:

Tere

Pakkumine sisaldab 450-500 m3/h ventilatsiooniseadet, kubu ventilaatorit koos tagasilöögiklapiga, torusid, mürasummuteid, isolatsiooni ja abimaterjale, õhuhulkade akti ja paigaldust koos isoleerimisega.
Hind kokku 9980.00+km
Ventilatsiooniseade koos kubu ventilaatori ja tagasilöögiklapiga 4850.00+km, materjalid ja abimaterjalid koos isolatsi ... Rohkem

Kasutaja ikoon ID75526
Pakkuja profiil Väike nool paremale
8 600€ Sisaldab KM Sisaldab KM 27.06.2023 Vestlus (0)

Pakkumise kirjeldus:

Pakkumises: agregaat (Zehnder CA Standard 375 ERV PRH), materjalid (Zehnder), projekt, puurimised/freesimised ja mõõdistus. Kui ettemaks peaks tekkima probleemiks, siis võtke meiega ühendust ja leiame lahenduse.

Kasutaja ikoon ID61515
Pakkuja profiil Väike nool paremale
9 850€ Sisaldab KM Sisaldab KM 28.06.2023 Vestlus (0)

Pakkumise kirjeldus:

Tööde teostamine projekti alusel koos materjaliga

Kasutaja ikoon ID72372
Pakkuja profiil Väike nool paremale
9 240€ KM lisandub KM lisandub 17.07.2023 Vestlus (0)

Pakkumise kirjeldus:

Hinnapakkumine

Materjal:
AIROBOT-V3-HRV-L-B Soojustagastusega agregaat 2620.-
Spiraalkanalid,summutid,muhvid,põlved,sadulad,üleminekud, kinnitusvahendid, isolatsioon, abimaterjalid 4710.-

Töö:
Väliotste freesimine,torustiku ehitus,torustiku isoleerimine, agregaadi paigaldus, plafoonide paigaldus. 1910.-

Pakkumine ei sisalda elektritöid,m ... Rohkem

Küsimused hanke korraldajale

Küsimus: private ID71075   22.06.2023 21:22
Tere,

Kas spetsi ei ole?

Teavita reeglite rikkumisest

Korraldaja vastus: 23.06.2023 11:29

Tere. Rohkemat pole.

Teavita reeglite rikkumisest

Küsimus: private ID72372   23.06.2023 08:10
Tere!

Palun lisage mõni fail kus on hoone/tubade mõõdud välja toodud millepõhjal pakkumist koostada.

Ette tänades.
Y.

Teavita reeglite rikkumisest

Korraldaja vastus: 23.06.2023 11:28

Tere! Lisasin.

Teavita reeglite rikkumisest

Lisa küsimus

Lisa küsimus

Minu pakkumine

Reeglid

Pakkumise kirjelduse väli on mõeldud pakkumise detailsemaks lahti kirjutamiseks. Pikema teksti mugavaks sisestamiseks klikkige kasti paremal ülaservas oleval ikoonil.
Pakkumist tehes on keelatud postitada enda kontaktandmeid (nimi, telefon, aadress jne). Me jälgime ja analüüsime pakkumisi, et vältida pettuseid ja reeglite rikkumisi.
Rikkumise puhul kasutajakonto blokeeritakse.

 

Teisi töid samas valdkonnas

Valdkonnas "Ventilatsioonitööd" on 3 aktiivset tööd

Eramaja ventilatsioonitööd

Asukoht: Tartumaa, Soinaste
Aega jäänud: 6p 1h
Tehtud pakkumisi: 1

no-img Pilt puudub

Ventilatsiooni paigaldamine

Asukoht: Tartumaa, Tartu
Aega jäänud: 3p 1h
Tehtud pakkumisi: 0

Vanemad teated:

Vaata kõiki

Sellel veebilehel kasutatakse küpsiseid. Kasutamist jätkates nõustute küpsiste kasutamisega.

Sulge
 
Minu pakkumine

Reeglid

Pakkumise kirjelduse väli on mõeldud pakkumise detailsemaks lahti kirjutamiseks. Pikema teksti mugavaks sisestamiseks klikkige kasti paremal ülaservas oleval ikoonil.
Pakkumist tehes on keelatud postitada enda kontaktandmeid (nimi, telefon, aadress jne). Me jälgime ja analüüsime pakkumisi, et vältida pettuseid ja reeglite rikkumisi.
Rikkumise puhul kasutajakonto blokeeritakse.