+ Lisa oma töö      

Otsid ehitajat "Siseviimistlustööd" valdkonnast?

Parima pakkumise ja teostaja leidmiseks lisa oma töö.

Hange on lõppenud!

Võitjaks osutus kasutaja ID 68488

Korraldaja hinnang tehtud tööle

5.0
03.07.2023
Töökiirus: 12345
Kvaliteet: 12345
Hind: 12345

Kõik sujus, töövõtted ja varasem kogemus tagasid hea tulemuse. Soovitan! - Tanel S.

Näita pilte (2) Peida pildid

Enne:

  • vaade2.png

Pärast:

  • pilt.png

Ikea köögimööbli paigaldus

ID 83136

1195 vaatamist

Prindi

  • check Pakkumiste tegemine
    kuni 22.06.2023
  • check Võitja valik kuni
    29.06.2023
  • 3 Töö teostamine
    ja hinnang
Hanke lõpp: N, 22. juuni, 2023
Maakond: Tartumaa
Linn: Elva
Tööde algus: T, 27. juuni, 2023 (Soovituslik)
Tööde lõpp: E, 03. juuli, 2023 (Soovituslik)
Ehitusmaterjalid: Töö tellija poolt
Soovin pakkumisi: Summa kogu projektile

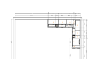
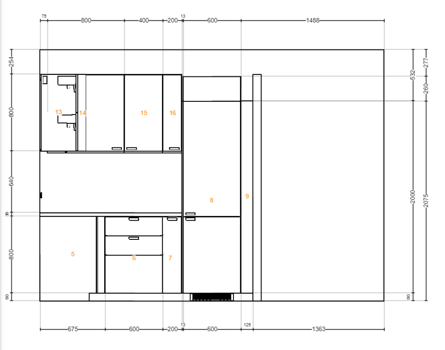
Töö sisu

IKEA köögi kokkupanek ja paigaldus vastavalt lisatud projektile. Eelnev kogemus on vajalik.

Tööülesanded:
* kappide ja sahtlite kokkupanemine
* kappide seinale kinnitamine
* tööpinna paigaldus
* tööpinna valamu ning pliidi jaoks augu lõikamine
* tehnika on kõik integreeritud ning sisaldab: külmkapp, nõudepesumasin, ahi, pliidiplaat, kubu
* valamu, segisti, nõudepesumasina ja tehnika paigaldamine ( õige pikkusega survevooliku toob tellija jooksvalt )
* kapialuse IKEA valgustuse paigaldus.
* kiviseinad (Fibo)
Kogenud köögipaigaldaja juba teab ka, kuhu niiskahjustuste vältimiseks santiaarsilikooni paigaldada.

Pildid, video ja failid

Hanke korraldaja: eraisik ID54623

Pakkumised

Pakkumisi kokku: 10

Ettevõte Summa Käibemaks Lisatud Vestlus
Kasutaja ikoon ID68488
Pakkuja profiil Väike nool paremale
700€ Ei ole KMKR Ei ole KMKR 18.06.2023 Vestlus (3)

Pakkumise kirjeldus:

Pikaaegne kogemus Norrast ja hetkel ka alltöövõtt Eesti IKEA-le

Kasutaja ikoon ID56371
Pakkuja profiil Väike nool paremale
1 100€ Ei ole KMKR Ei ole KMKR 19.06.2023 Vestlus (0)

Pakkumise kirjeldus:

Töödes ei sisaldu elektri ja santehnilised ühendused . Koha peal on võimalik ka see paigaldajaga kokku leppida.

Kasutaja ikoon ID74211
Pakkuja profiil Väike nool paremale
710€ Ei ole KMKR Ei ole KMKR 19.06.2023 Vestlus (3)

Pakkumise kirjeldus:

Oleme pikaaegse Ikea köökide paigaldamise kogemusega nii Eestis, kui Norras.

Kasutaja ikoon ID74460
Pakkuja profiil Väike nool paremale
800€ Ei ole KMKR Ei ole KMKR 19.06.2023 Vestlus (0)
Kasutaja ikoon ID75353
Pakkuja profiil Väike nool paremale
1 000€ Ei ole KMKR Ei ole KMKR 19.06.2023 Vestlus (0)
Kasutaja ikoon ID48876
Pakkuja profiil Väike nool paremale
680€ Ei ole KMKR Ei ole KMKR 19.06.2023 Vestlus (4)

Pakkumise kirjeldus:

Tere

Oleme pikaaegsed eritellimuse/ikea köökide paigaldajad. Paigaldusel kasutan enda kinnitusi, mis on kindlamad fibo seinade jaoks. Teostan elektri, kanalisatsiooni ja veeühendused. 2 aastane ametlik garantii paigaldusele ja silikoonimisele. Hindan paigalduseks 2 päeva ja ultiliseerin pakendid.

Kasutaja ikoon ID72524
Pakkuja profiil Väike nool paremale
860€ KM lisandub KM lisandub 19.06.2023 Vestlus (2)

Pakkumise kirjeldus:

Ikea köökide paigalduse kogemust 4 aastat
Töödega saan alustada peale jaanipäeva nädalat.
Mis tuleb kappide vahelisele seinale taustaks?

Kasutaja ikoon ID71474
Pakkuja profiil Väike nool paremale
680€ Sisaldab KM Sisaldab KM 21.06.2023 Vestlus (2)

Pakkumise kirjeldus:

Tere

Pakkumine sisaldab hankes näidatud IKEA köögi paigaldust ja kõigi vajalike ühenduste teostamist.

Kogemustega töömees ja tulemus alati kvaliteetne!

Parimatega
Mihkel

Kasutaja ikoon ID71147
Pakkuja profiil Väike nool paremale
800€ KM lisandub KM lisandub 22.06.2023 Vestlus (0)

Pakkumise kirjeldus:

Pakkumine paigaldusele.
Kogemused just ikea kui ka arensi mööbliga.
Saab arveldada ka sulas.

Töö aeg kuni 2 päeva

Töödele garantii!

Kasutaja ikoon ID75432
Pakkuja profiil Väike nool paremale
800€ KM lisandub KM lisandub 22.06.2023 Vestlus (0)

Küsimused hanke korraldajale

Hanke korraldajale ei ole veel küsimusi esitatud.

Lisa küsimus

Lisa küsimus

Minu pakkumine

Reeglid

Pakkumise kirjelduse väli on mõeldud pakkumise detailsemaks lahti kirjutamiseks. Pikema teksti mugavaks sisestamiseks klikkige kasti paremal ülaservas oleval ikoonil.
Pakkumist tehes on keelatud postitada enda kontaktandmeid (nimi, telefon, aadress jne). Me jälgime ja analüüsime pakkumisi, et vältida pettuseid ja reeglite rikkumisi.
Rikkumise puhul kasutajakonto blokeeritakse.

 

Teisi töid samas valdkonnas

Valdkonnas "Siseviimistlustööd" on 16 aktiivset tööd

no-img Pilt puudub

Seinte ja lagede värvimine

Asukoht: Harjumaa, Tallinn
Aega jäänud: 21h 51 min
Tehtud pakkumisi: 8

Trepikoja remont

Asukoht: Harjumaa, Tallinn
Aega jäänud: 9p 21h
Tehtud pakkumisi: 4

Vanemad teated:

Vaata kõiki

Sellel veebilehel kasutatakse küpsiseid. Kasutamist jätkates nõustute küpsiste kasutamisega.

Sulge
 
Minu pakkumine

Reeglid

Pakkumise kirjelduse väli on mõeldud pakkumise detailsemaks lahti kirjutamiseks. Pikema teksti mugavaks sisestamiseks klikkige kasti paremal ülaservas oleval ikoonil.
Pakkumist tehes on keelatud postitada enda kontaktandmeid (nimi, telefon, aadress jne). Me jälgime ja analüüsime pakkumisi, et vältida pettuseid ja reeglite rikkumisi.
Rikkumise puhul kasutajakonto blokeeritakse.