+ Lisa oma töö      

Otsid ehitajat "Üldehitus" valdkonnast?

Parima pakkumise ja teostaja leidmiseks lisa oma töö.

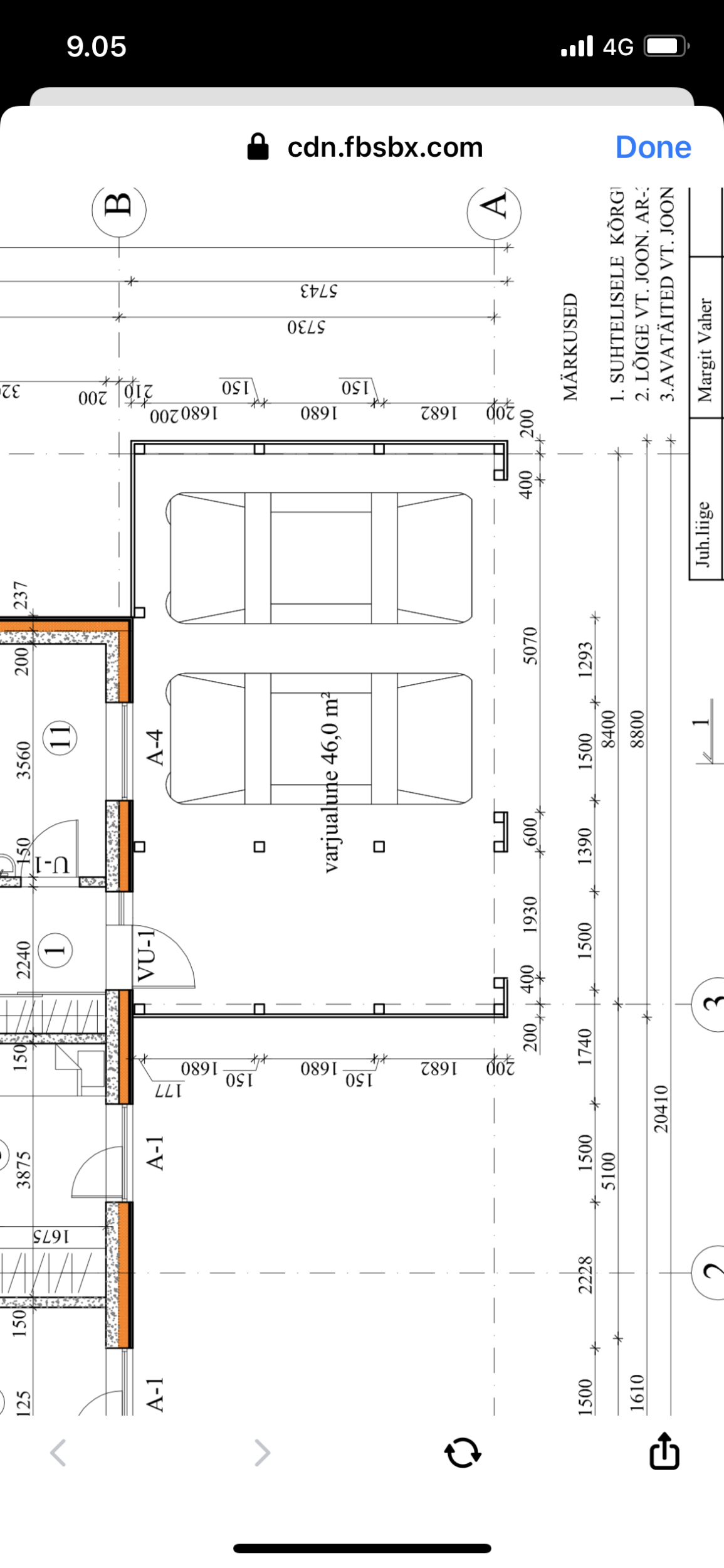
Autovarjualune

ID 83094

505 vaatamist

Prindi

  • check Pakkumiste tegemine
    kuni 19.06.2023
  • check Võitja valik kuni
    26.06.2023
  • 3 Töö teostamine
    ja hinnang
Hanke lõpp: E, 19. juuni, 2023
Maakond: Järvamaa
Muu asula: Kriilevälja
Tööde algus: E, 26. juuni, 2023 (Soovituslik)
Tööde lõpp: R, 21. juuli, 2023 (Soovituslik)
Ehitusmaterjalid: Töö tellija poolt
Soovin pakkumisi: Summa kogu projektile

Töö sisu

Postvundamndile autovarjualuse ehitus.
Postvundament tehtud.
Vaja kinnitada postikingad 14tk olemas objekil
150x150 puitmaterjal olemas objektil.
14 posti paigaldus ja ülavöö.
Katuse ehitus laudis,osb ja bituumen põletada

Pildid, video ja failid

Hanke korraldaja: eraisik ID75346

Pakkumised

Pakkumisi kokku: 4

Ettevõte Summa Käibemaks Lisatud Vestlus
Kasutaja ikoon ID75213
Pakkuja profiil Väike nool paremale
2 800€ Ei ole KMKR Ei ole KMKR 16.06.2023 Vestlus (0)
Kasutaja ikoon ID74528
Pakkuja profiil Väike nool paremale
3 500€ Ei ole KMKR Ei ole KMKR 17.06.2023 Vestlus (0)
Kasutaja ikoon ID75353
Pakkuja profiil Väike nool paremale
3 000€ Ei ole KMKR Ei ole KMKR 17.06.2023 Vestlus (0)
Kasutaja ikoon ID50648
Pakkuja profiil Väike nool paremale
2 500€ Sisaldab KM Sisaldab KM 18.06.2023 Vestlus (6)

Pakkumise kirjeldus:

Ei värvi, ja pigi põletamise asemel tänapäevane katuse pvc materjal

Töödega saaks alustada 3 nädala pärast

Küsimused hanke korraldajale

Küsimus: private ID58624   18.06.2023 23:22
Kas saate laadida dwg joonise?

Teavita reeglite rikkumisest

Korraldaja vastus: 18.06.2023 23:31

Tere.
Kahjuks ei ole võimalik.Eraldi mingeid jooniseid
pole.

Teavita reeglite rikkumisest

Küsimus: private ID58624   19.06.2023 07:13
150x150 talaks ei sobi.sille liiga suur? Kas vajalik on ka projekteerida?

Teavita reeglite rikkumisest

Korraldaja vastus: 19.06.2023 08:47

Katusetlaks 100x50 ja sinna osb

Teavita reeglite rikkumisest

Küsimus: private ID58624   19.06.2023 08:54
Kui pikk on sille?

Teavita reeglite rikkumisest

Korraldaja vastus: 19.06.2023 09:06

Lisasin foto

Teavita reeglite rikkumisest

Küsimus: private ID58624   19.06.2023 23:29
Kas konstruktiivne orojekt on olemas?

Teavita reeglite rikkumisest

Korraldaja vastus:
Hanke korraldaja ei ole küsimusele veel vastanud

Lisa küsimus

Lisa küsimus

Minu pakkumine

Reeglid

Pakkumise kirjelduse väli on mõeldud pakkumise detailsemaks lahti kirjutamiseks. Pikema teksti mugavaks sisestamiseks klikkige kasti paremal ülaservas oleval ikoonil.
Pakkumist tehes on keelatud postitada enda kontaktandmeid (nimi, telefon, aadress jne). Me jälgime ja analüüsime pakkumisi, et vältida pettuseid ja reeglite rikkumisi.
Rikkumise puhul kasutajakonto blokeeritakse.

 

Teisi töid samas valdkonnas

Valdkonnas "Üldehitus" on 32 aktiivset tööd

Kuuri lammutus

Asukoht: Pärnumaa
Aega jäänud: 3p
Tehtud pakkumisi: 6

Põrandakütte torustiku ja kollektori paigaldus.

Asukoht: Harjumaa, Kurkse
Aega jäänud: 16p
Tehtud pakkumisi: 4

Vanemad teated:

Vaata kõiki

Sellel veebilehel kasutatakse küpsiseid. Kasutamist jätkates nõustute küpsiste kasutamisega.

Sulge
 
Minu pakkumine

Reeglid

Pakkumise kirjelduse väli on mõeldud pakkumise detailsemaks lahti kirjutamiseks. Pikema teksti mugavaks sisestamiseks klikkige kasti paremal ülaservas oleval ikoonil.
Pakkumist tehes on keelatud postitada enda kontaktandmeid (nimi, telefon, aadress jne). Me jälgime ja analüüsime pakkumisi, et vältida pettuseid ja reeglite rikkumisi.
Rikkumise puhul kasutajakonto blokeeritakse.