+ Lisa oma töö      

Otsid ehitajat "Torutööd" valdkonnast?

Parima pakkumise ja teostaja leidmiseks lisa oma töö.

Eramjade vesi, kanal, küte

ID 82932

759 vaatamist

Prindi

  • check Pakkumiste tegemine
    kuni 19.06.2023
  • check Võitja valik kuni
    26.06.2023
  • 3 Töö teostamine
    ja hinnang
Hanke lõpp: E, 19. juuni, 2023
Maakond: Harjumaa
Linn: Tallinn
Tööde algus: P, 30. juuli, 2023 (Soovituslik)
Tööde lõpp: P, 31. detsember, 2023 (Soovituslik)
Ehitusmaterjalid: Töö tegija poolt
Soovin pakkumisi: Summa kogu projektile

Töö sisu

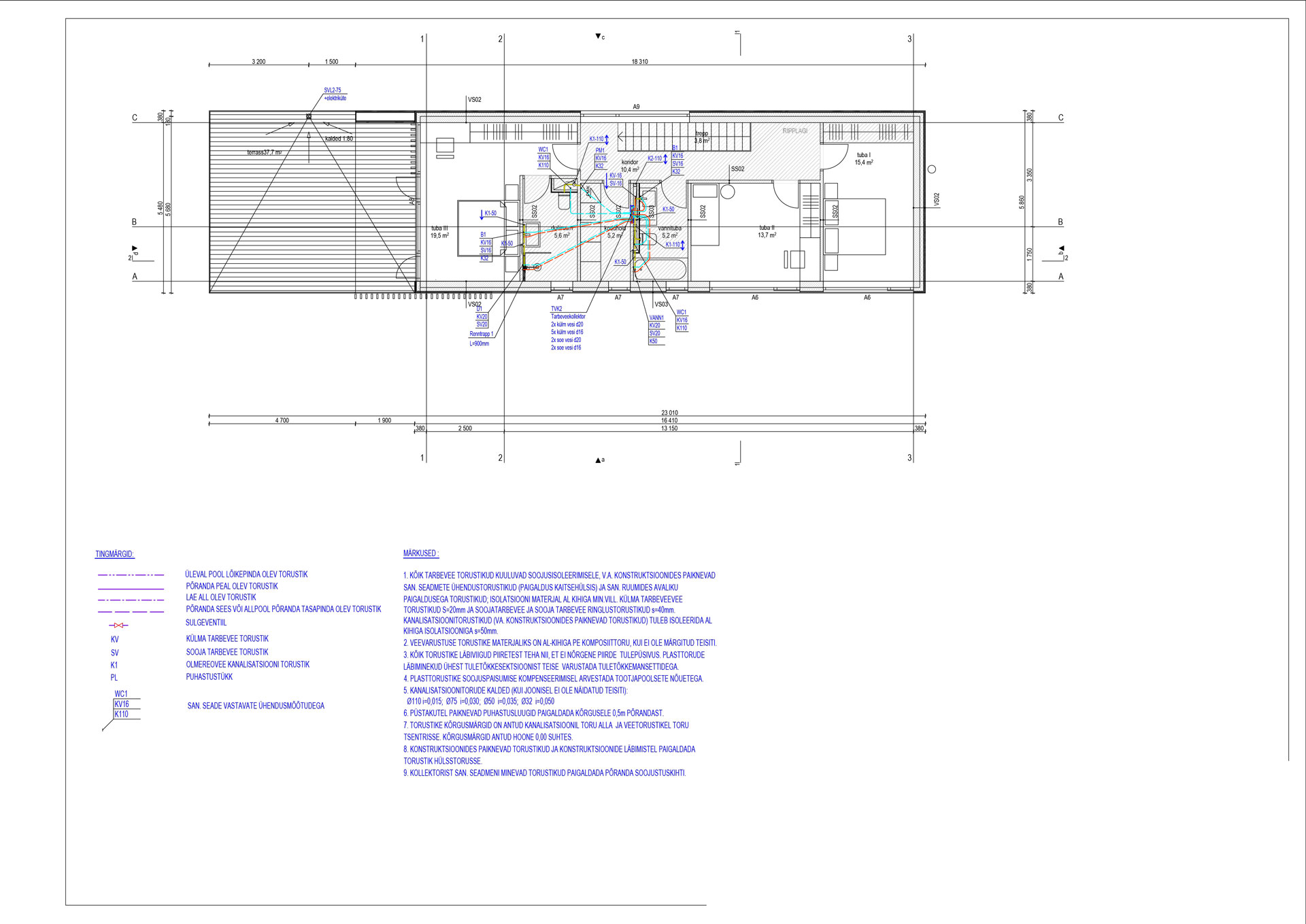
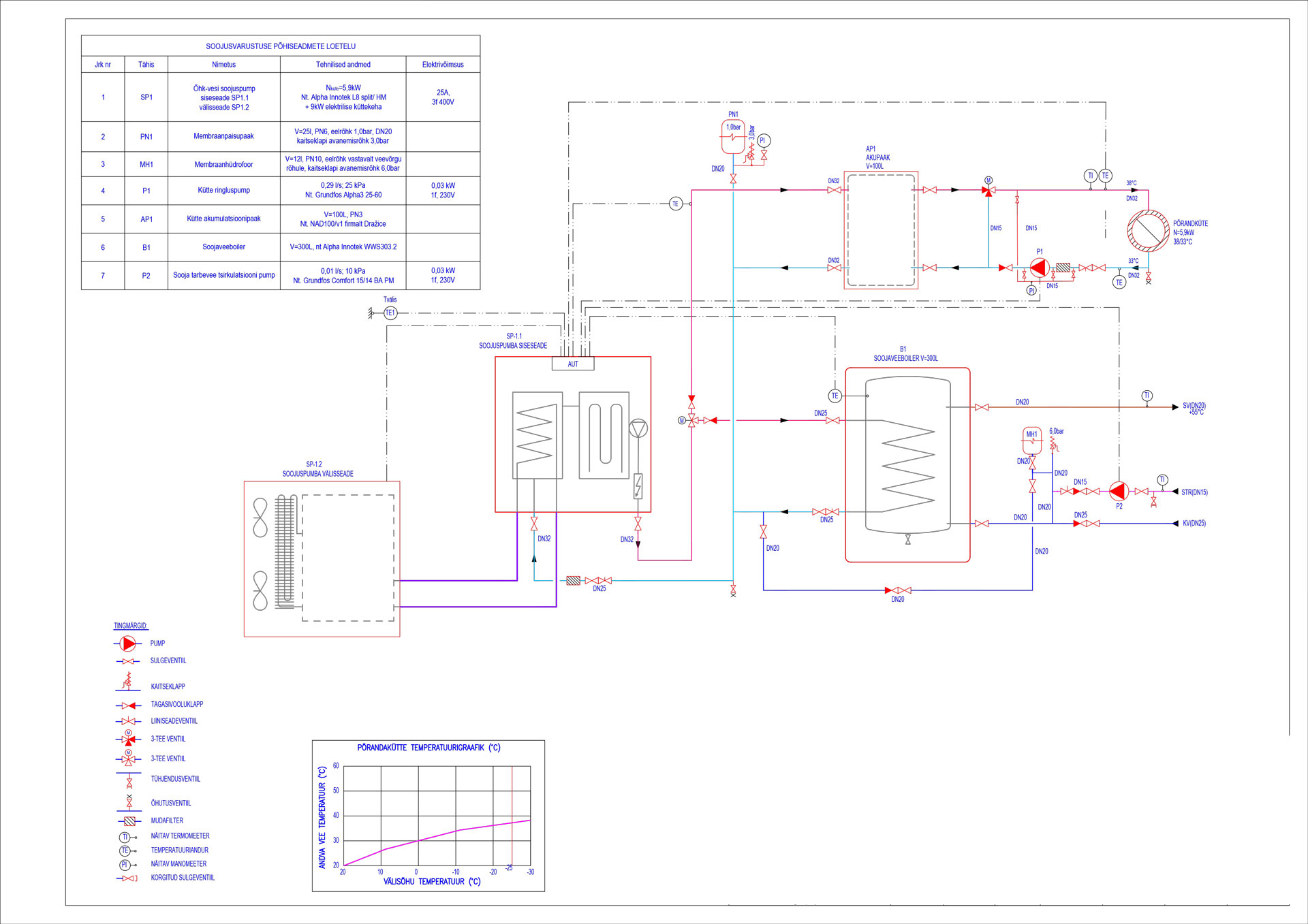
Otsitakse 2 eramaja ehitusel vee- ja kanalisatsiooni tööde tegijat sisetööde osale.

Maja seinad on Fibo5 plokkidest. Vahelagi ja katuslagi õõnespaneelidest.

Töödega alustamine - Juuli 1-2 nädal.

Töövõtja tööde hulka kuulub lisaks torutööde teostamisele ka kogu vajamineva paberimajanduse koostamine ja esitamine tellijale (kaetud tööde aktid, survestamise protokoll, teostusjoonised jne).

Veetorud ja liitmikud kas uponor või kan-therm.

Santehnika paigaldus kuulub töövõttu. Tellija poolt on samuti duširennid.

Pildid, video ja failid

Hanke korraldaja: eraisik ID74455

Pakkumised

Pakkumisi kokku: 2

Ettevõte Summa Käibemaks Lisatud Vestlus
Kasutaja ikoon ID73470
Pakkuja profiil Väike nool paremale
16 800€ KM lisandub KM lisandub 13.06.2023 Vestlus (0)

Pakkumise kirjeldus:

Hind koos soojussõlmega

Kasutaja ikoon ID74916
Pakkuja profiil Väike nool paremale
15 800€ KM lisandub KM lisandub 13.06.2023 Vestlus (0)

Pakkumise kirjeldus:

Tere

Pakkumine sisaldab ühe maja majasisese kanalisatsiooni, külma ja sooja tarbevee ning põrandakütte paigaldust koos materjalidega ja santehnika paigaldust.

Teeme eskiisjoonised enne tööde algust paberil ja teostusjoonised pärast arveldamist digitaalselt.
Surve-, kaetud tööde- ja tööde teostamise aktid esitame allkirjastatult.

Arvelda ... Rohkem

Küsimused hanke korraldajale

Küsimus: private ID71075   12.06.2023 16:07
Tere,

Kas materjaalide spetsi ei ole? Kas soojasõlme siis ei soovi ja kas torud viia soojasõlmeni?

Teavita reeglite rikkumisest

Korraldaja vastus: 13.06.2023 15:50

Tere,

On soov ka soojasõlm välja ehitada.
LISASIN materjalide spetsi piltide alla

Lugupidamisega

Teavita reeglite rikkumisest

Küsimus: private ID71237   16.06.2023 10:34
Tere,
- Kas Wavin veetorude jaoks ka sobib?
- Dušširenni pole vaja pakkuda? Seda tarnib tellija?

Teavita reeglite rikkumisest

Korraldaja vastus: 16.06.2023 12:45

Wavin on sobilik koos liitmikega siis.
Dušširennid tarnib tellija.

Lugupidamisega

Teavita reeglite rikkumisest

Lisa küsimus

Lisa küsimus

Minu pakkumine

Reeglid

Pakkumise kirjelduse väli on mõeldud pakkumise detailsemaks lahti kirjutamiseks. Pikema teksti mugavaks sisestamiseks klikkige kasti paremal ülaservas oleval ikoonil.
Pakkumist tehes on keelatud postitada enda kontaktandmeid (nimi, telefon, aadress jne). Me jälgime ja analüüsime pakkumisi, et vältida pettuseid ja reeglite rikkumisi.
Rikkumise puhul kasutajakonto blokeeritakse.

 

Teisi töid samas valdkonnas

Valdkonnas "Torutööd" on 2 aktiivset tööd

Kaarhalli soojaku torustiku renoveerimine

Asukoht: Harjumaa, Saue
Aega jäänud: 17h 52 min
Tehtud pakkumisi: 4

Köögi äravoolu paigaldus

Asukoht: Harjumaa, Tallinn
Aega jäänud: 4p 17h
Tehtud pakkumisi: 2

Vanemad teated:

Vaata kõiki

Sellel veebilehel kasutatakse küpsiseid. Kasutamist jätkates nõustute küpsiste kasutamisega.

Sulge
 
Minu pakkumine

Reeglid

Pakkumise kirjelduse väli on mõeldud pakkumise detailsemaks lahti kirjutamiseks. Pikema teksti mugavaks sisestamiseks klikkige kasti paremal ülaservas oleval ikoonil.
Pakkumist tehes on keelatud postitada enda kontaktandmeid (nimi, telefon, aadress jne). Me jälgime ja analüüsime pakkumisi, et vältida pettuseid ja reeglite rikkumisi.
Rikkumise puhul kasutajakonto blokeeritakse.