+ Lisa oma töö      

Otsid ehitajat "Põrandatööd" valdkonnast?

Parima pakkumise ja teostaja leidmiseks lisa oma töö.

Põrandatööd/põrandaküte Harjumaal

ID 82851

447 vaatamist

Prindi

  • check Pakkumiste tegemine
    kuni 10.07.2023
  • check Võitja valik kuni
    17.07.2023
  • 3 Töö teostamine
    ja hinnang
Hanke lõpp: E, 10. juuli, 2023
Maakond: Harjumaa
Tööde algus: T, 01. august, 2023 (Soovituslik)
Tööde lõpp: P, 20. august, 2023 (Soovituslik)
Ehitusmaterjalid: Töö tegija poolt
Soovin pakkumisi: Summa kogu projektile

Töö sisu

Töö sisu
Soovin saada hinnapakkumist põrandatöödele (tööde ajaks on vana põrand üles võetud- alles talad ja liiv).
Vajalik põranda eeltööd, soojustamine, põrandakütte paigaldus, kipsivalu).
Maht: 66m2
Lõpptulem peab jääma sile, loodis ja ühtlane- peab olema valmis parketti/plaadi panemiseks.

Tööde teostamine ühes etapis (st võimalikult kiirelt). Ei tohiks nn venima jääda.

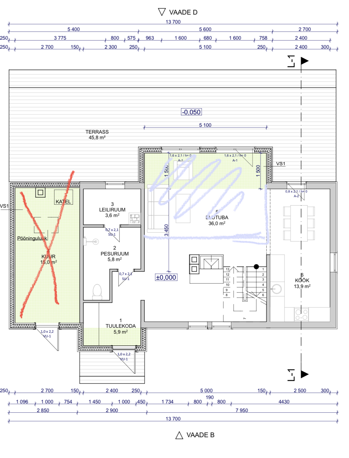
Mõned tähelepanekud:
-Kuna tegemist vana majaga, siis majal erinevaid ehitusetappe.
-Suur tuba vaja valada aste alla poole - joonise märgitud lilla ala.
-Punane maha tõmmatud ala joonisel ei kuulu tööde hulka.
-Majal on pisike kelder, mida edaspidi ei vajata (ei tohiks segada põranda ehitust)
-Tegemist maja esimese korrusega

Pildid, video ja failid

Hanke korraldaja: eraisik ID42845

Pakkumised

Pakkumisi kokku: 3

Ettevõte Summa Käibemaks Lisatud Vestlus
Kasutaja ikoon ID70588
Pakkuja profiil Väike nool paremale
6 600€ Ei ole KMKR Ei ole KMKR 10.07.2023 Vestlus (0)

Pakkumise kirjeldus:

Tere,

Pakkumine küsitud töödele ja materjalidele.

Lugupidamisega,

jm.

Kasutaja ikoon ID56040
Pakkuja profiil Väike nool paremale
3 240€ KM lisandub KM lisandub 10.07.2023 Vestlus (0)

Pakkumise kirjeldus:

66m2 kipsivalu 50mm
+küttekontuuride paigaldus
hinnas tööd ja materjalid,
kollektor eraldi poe hinnaga vastavalt kontuuride arvule
(eps, servalnt jms on lihtne töö äkki ōnnestub Teil ise teha)

Kasutaja ikoon ID73479
Pakkuja profiil Väike nool paremale
7 000€ Sisaldab KM Sisaldab KM 10.07.2023 Vestlus (0)

Pakkumise kirjeldus:

Tere

Hea meelega teostame tööd teie jaoks.tööd tehakse kvaliteetselt ja võimalikult kiiresti.Pakume 5 aastane garantii oma töödele.

See hind sisaldab kõiki nimekirjas olevaid soovitud tööd.
Spetsialisti tulek teie objektile, hinnapakkumise ja tööteostamise lepingu koostamine.

Minu firma tegeleb katuste, fassaadide ehitusega ning üldehi ... Rohkem

Küsimused hanke korraldajale

Küsimus: private ID64993   11.06.2023 10:51
Milline kütte agregaat tuleb.

Teavita reeglite rikkumisest

Korraldaja vastus: 11.06.2023 11:00

Atlantic õhk- vesi

Teavita reeglite rikkumisest

Küsimus: private ID73102   12.06.2023 14:36
Tere! kas sul on pilti, kuidas see praegu välja näeb?

Teavita reeglite rikkumisest

Korraldaja vastus: 12.06.2023 14:58

Hetkel ei ole vana põrand üles võetud, seega pilti pole.

Teavita reeglite rikkumisest

Küsimus: private ID70588   10.07.2023 15:44
Tere,

Võiks kohe ära ka teha kui Teile sobib.

Lugupidamisega,

jm.

Teavita reeglite rikkumisest

Korraldaja vastus:
Hanke korraldaja ei ole küsimusele veel vastanud

Lisa küsimus

Lisa küsimus

Minu pakkumine

Reeglid

Pakkumise kirjelduse väli on mõeldud pakkumise detailsemaks lahti kirjutamiseks. Pikema teksti mugavaks sisestamiseks klikkige kasti paremal ülaservas oleval ikoonil.
Pakkumist tehes on keelatud postitada enda kontaktandmeid (nimi, telefon, aadress jne). Me jälgime ja analüüsime pakkumisi, et vältida pettuseid ja reeglite rikkumisi.
Rikkumise puhul kasutajakonto blokeeritakse.

 

Teisi töid samas valdkonnas

Valdkonnas "Põrandatööd" on 2 aktiivset tööd

Talumaja põrandate valamine/ehitus koos küttetorustiku paigaldusega

Asukoht: Raplamaa, Purila
Aega jäänud: 16p 23h
Tehtud pakkumisi: 2

Põrandakütte paigaldus ja põrandavalu (kips või betoon)

Asukoht: Saaremaa, Muhu vald
Aega jäänud: 23h 3 min
Tehtud pakkumisi: 1

Vanemad teated:

Vaata kõiki

Sellel veebilehel kasutatakse küpsiseid. Kasutamist jätkates nõustute küpsiste kasutamisega.

Sulge
 
Minu pakkumine

Reeglid

Pakkumise kirjelduse väli on mõeldud pakkumise detailsemaks lahti kirjutamiseks. Pikema teksti mugavaks sisestamiseks klikkige kasti paremal ülaservas oleval ikoonil.
Pakkumist tehes on keelatud postitada enda kontaktandmeid (nimi, telefon, aadress jne). Me jälgime ja analüüsime pakkumisi, et vältida pettuseid ja reeglite rikkumisi.
Rikkumise puhul kasutajakonto blokeeritakse.