+ Lisa oma töö      

Otsid ehitajat "Üldehitus" valdkonnast?

Parima pakkumise ja teostaja leidmiseks lisa oma töö.

Lao- ja kontorihoone ehitus

ID 82786

881 vaatamist

Prindi

  • check Pakkumiste tegemine
    kuni 08.07.2023
  • check Võitja valik kuni
    15.07.2023
  • 3 Töö teostamine
    ja hinnang
Hanke lõpp: L, 8. juuli, 2023
Maakond: Tartumaa
Muu asula: Tila
Tööde algus: P, 01. oktoober, 2023 (Soovituslik)
Tööde lõpp: L, 01. juuni, 2024 (Soovituslik)
Ehitusmaterjalid: Töö tegija poolt
Soovin pakkumisi: Summa kogu projektile

Töö sisu

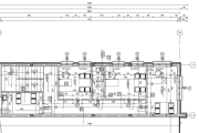
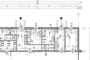
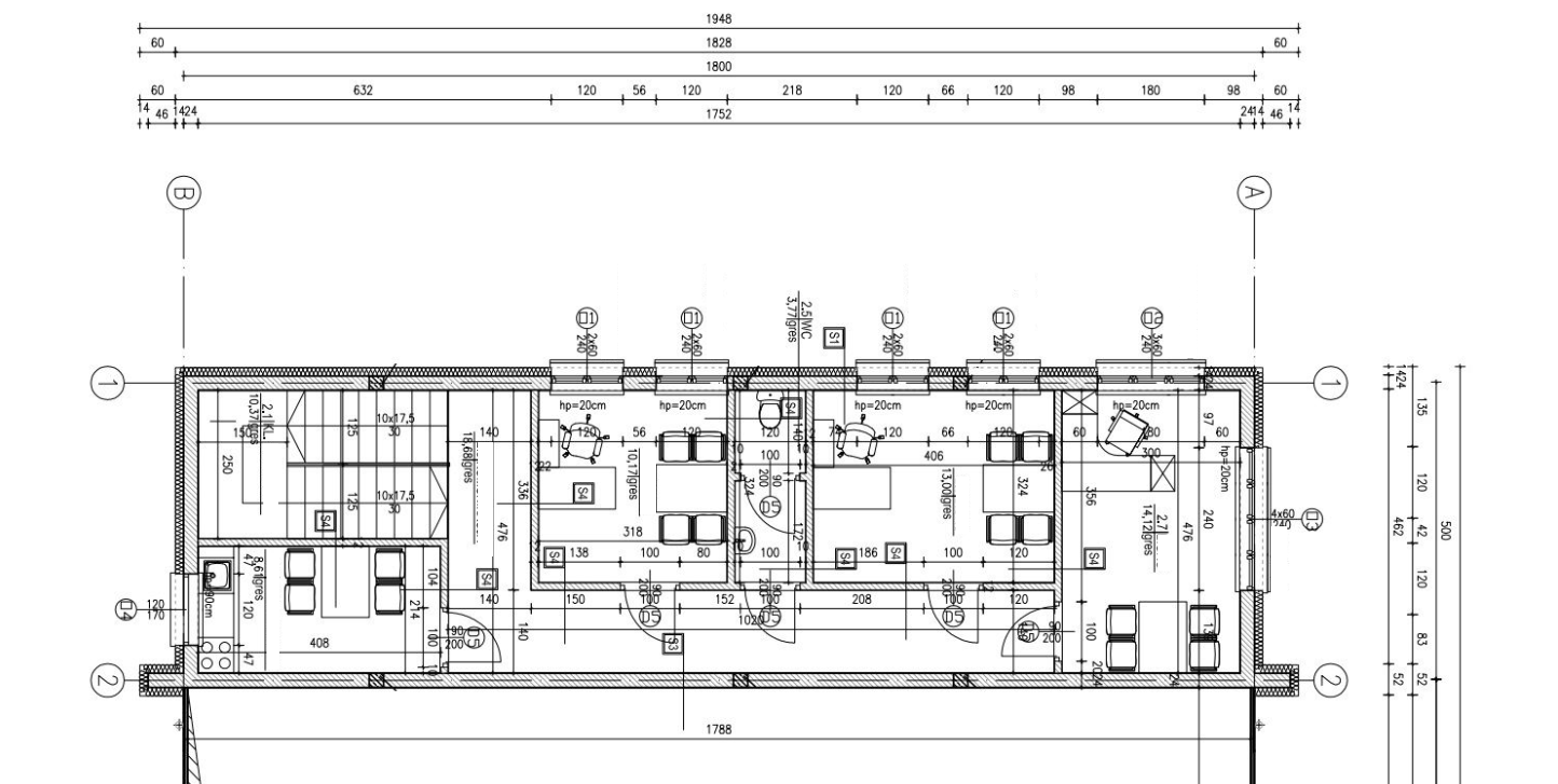
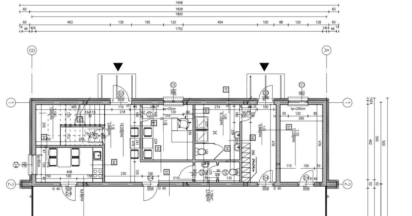
Sooviks pakkumist lao- ja kontorihoone ehitamisele. Objekti aadress - Raadi alev, Tartu vald. Materjalid ja kogu töö protsess töö teostaja poolt. Ehitusprojekt puudub, kuid sobiva pakkumise korral tellime selle ise. Seinad 100mm sandwich, hoone osa õõnesplokk.

Pildid, video ja failid

Hanke korraldaja: ettevõte ID35771

Pakkumised

Pakkumisi kokku: 5

Ettevõte Summa Käibemaks Lisatud Vestlus
Kasutaja ikoon ID43856
Pakkuja profiil Väike nool paremale
896 000€ KM lisandub KM lisandub 14.06.2023 Vestlus (0)

Pakkumise kirjeldus:

1400€m2 võtmed kätte hind, Sisaldab projekti ja täielikku ehitust.

Hind ei sisalda platside ehitust ümber hoone.

Kasutaja ikoon ID57450
Pakkuja profiil Väike nool paremale
868 000€ KM lisandub KM lisandub 05.07.2023 Vestlus (0)

Pakkumise kirjeldus:

Hind vastavalt lähteülesandele. Sobivuse korral tuleme läbi ning koostame detailse pakkumise.
Edukat hanget!

Kasutaja ikoon ID74897
Pakkuja profiil Väike nool paremale
779 000€ KM lisandub KM lisandub 08.07.2023 Vestlus (0)

Pakkumise kirjeldus:

Ettemaks pole nii vajalik, kui saame jooksvalt arveldada ja lisaks, kui lao osas panna z profiilil sandwich katus saab hinda alla ning võidav ajaliselt ja hilhem kergem parandusi teha aastate pärast. On enam vhem täpne pakkumine ka olemas.

Kasutaja ikoon ID44538
Pakkuja profiil Väike nool paremale
749 520€ KM lisandub KM lisandub 08.07.2023 Vestlus (0)

Pakkumise kirjeldus:

Pakkumine koostatud vastavalt lähteüleasndele.
Hind sisaldab kõiki ehitusmaterjale ja töid, mis on vajalikud hoone valmimiseks. Hinna sisse kuulub ka projekteerimine, ehitusloa taotlus ja tööde valmimisel kasutusloa taotlus. Kontori viimistlusmaterjalide osas oleme arvestanud preemium klassi materjalidega.

Meie meeskonda kuuluvad inimesed kes on ra ... Rohkem

Kasutaja ikoon ID73479
Pakkuja profiil Väike nool paremale
1 000 000€ Sisaldab KM Sisaldab KM 08.07.2023 Vestlus (0)

Pakkumise kirjeldus:

Tere

Hea meelega teostame tööd teie jaoks.tööd tehakse kvaliteetselt ja võimalikult kiiresti.Pakume 5 aastane garantii oma töödele.

See hind sisaldab kõiki nimekirjas olevaid soovitud tööd.
Spetsialisti tulek teie objektile, hinnapakkumise ja tööteostamise lepingu koostamine.

Minu firma tegeleb katuste, fassaadide ehitusega ning üldehi ... Rohkem

Küsimused hanke korraldajale

Küsimus: private ID74897   08.07.2023 19:13
EI õnnestu kalkulatsiooni lisada avage vestlus saan pildina lisana siis.

Teavita reeglite rikkumisest

Korraldaja vastus:
Hanke korraldaja ei ole küsimusele veel vastanud

Küsimus: private ID74897   08.07.2023 23:06
ühiku hind
1
Kinnistu ost
obj
2
Projekteerimine
obj
1
20 000,00
3
Konstruktiivne projekt
obj
1
15 000,00
4
Ehitusluba ning muud dokumendid
obj
1
5 000,00
5
Vee ja kanalisatsiooni projekt
obj
1
10 000,00
6
Elektri projekt
obj
1
10 000,00
7
Kaevetööd ja aluse ettevalmistus
8
Kasvupinnase eemaldamine
m3
371,00
11,00
9
Ehitusprügi utiliseerimine
t
677,00
9,00
10
Kaevamine
m3
628,00
6,00
11
Tihendatud killustikalused
m3
370,00
50,40
12
Tagasitäide
m3
120,00
34,80
13
Betoonitööd
14
Vundamendi kannud betoon + ankrupoltide paigaldus
m3
36,00
800,00
15
Sokliseina paigaldus kontori osas
m3
30,00
655,00
16
Põrandaplaat 200 mm betoon C25/30 + teraskiud 25 kg
m2
660,00
45,00
17
Metallpostide monoliitiseerimine peenbetoon C20/25
m3
3,00
775,20
18
Teraskonstruktsioonid kandvad kaetud tuletõkkevärviga
tonn
47,00
4 200,00
19
Seinad
20
Sandwich-paneelide paigaldus
m2
490,00
75,00
21
Katus
22
Kandev profiil PP113 + SBS kate + soojustus
m2
750,00
85,00
23
Avatäited (uksed, aknad)
24
Projektijuhtimine ja geodeetilised tööd
5,00
5 000,00
25
Põrandate betoneerimine lisana välisterassiga
m2
400,00
55,00
26
Vahekorruste teraskonstruktsioonide betoneerimine
1,00
38 000,00
27
Trepid ja astmed
16,00
1 500,00
28
Vahekorruste HZn piirded ja katuse piirded
jm
42,00
180,00
29
Vaheseina
m
64,00
150,00
30
Aed ja väravad
obj
1,00
31
Signalisatsioon, suitsuluugid
obj
1,00
60 000,00
32
eritööd küte , elekter, kanal jahutus jne
obj
1,00
80 000,00
33
kontor ja ladu küte ja elektri ning torustikuga
720,00
39,00
KOKKU

Teavita reeglite rikkumisest

Korraldaja vastus:
Hanke korraldaja ei ole küsimusele veel vastanud

Lisa küsimus

Lisa küsimus

Minu pakkumine

Reeglid

Pakkumise kirjelduse väli on mõeldud pakkumise detailsemaks lahti kirjutamiseks. Pikema teksti mugavaks sisestamiseks klikkige kasti paremal ülaservas oleval ikoonil.
Pakkumist tehes on keelatud postitada enda kontaktandmeid (nimi, telefon, aadress jne). Me jälgime ja analüüsime pakkumisi, et vältida pettuseid ja reeglite rikkumisi.
Rikkumise puhul kasutajakonto blokeeritakse.

 

Teisi töid samas valdkonnas

Valdkonnas "Üldehitus" on 32 aktiivset tööd

Kuuri lammutus

Asukoht: Pärnumaa
Aega jäänud: 3p
Tehtud pakkumisi: 6

Põrandakütte torustiku ja kollektori paigaldus.

Asukoht: Harjumaa, Kurkse
Aega jäänud: 16p
Tehtud pakkumisi: 4

Vanemad teated:

Vaata kõiki

Sellel veebilehel kasutatakse küpsiseid. Kasutamist jätkates nõustute küpsiste kasutamisega.

Sulge
 
Minu pakkumine

Reeglid

Pakkumise kirjelduse väli on mõeldud pakkumise detailsemaks lahti kirjutamiseks. Pikema teksti mugavaks sisestamiseks klikkige kasti paremal ülaservas oleval ikoonil.
Pakkumist tehes on keelatud postitada enda kontaktandmeid (nimi, telefon, aadress jne). Me jälgime ja analüüsime pakkumisi, et vältida pettuseid ja reeglite rikkumisi.
Rikkumise puhul kasutajakonto blokeeritakse.