+ Lisa oma töö      

Otsid ehitajat "Üldehitus" valdkonnast?

Parima pakkumise ja teostaja leidmiseks lisa oma töö.

Garaaži laiendus

ID 82643

477 vaatamist

Prindi

  • check Pakkumiste tegemine
    kuni 11.06.2023
  • check Võitja valik kuni
    18.06.2023
  • 3 Töö teostamine
    ja hinnang
Hanke lõpp: P, 11. juuni, 2023
Maakond: Harjumaa
Muu asula: Viti
Tööde algus: E, 19. juuni, 2023 (Soovituslik)
Tööde lõpp: R, 30. juuni, 2023 (Soovituslik)
Ehitusmaterjalid: Töö tellija poolt
Soovin pakkumisi: Summa kogu projektile

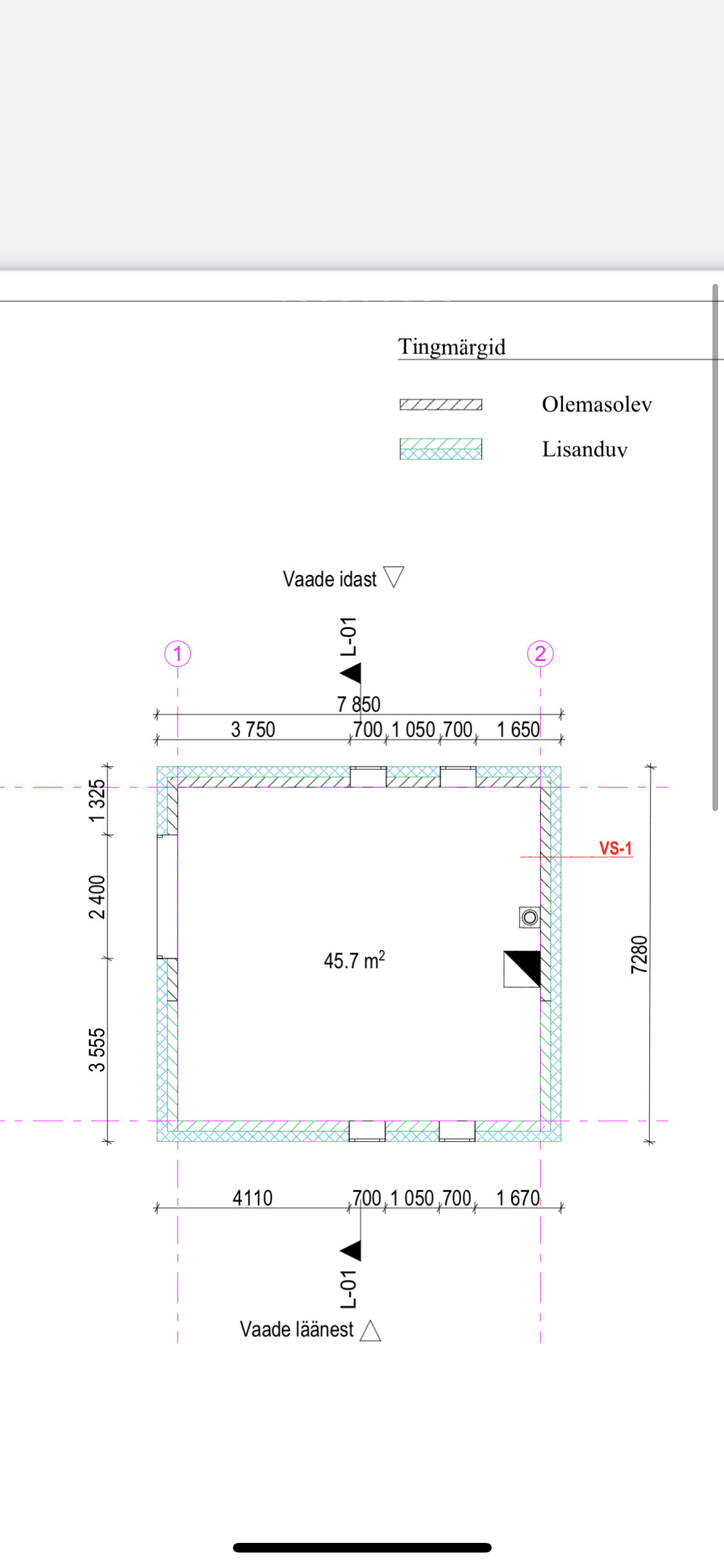
Töö sisu

Vaja laiendada garaaši olemasoleva arvelt projekt ja ehitusluba olemas.
Vaja lammutada 2 seina
Kuna garaažil 2 külge maa all siis tuleb laduda plokkidest.

Pildid, video ja failid

Hanke korraldaja: ettevõte ID46881

Pakkumised

Pakkumisi kokku: 1

Ettevõte Summa Käibemaks Lisatud Vestlus
Kasutaja ikoon ID50594
Pakkuja profiil Väike nool paremale
1 000€ KM lisandub KM lisandub 11.06.2023 Vestlus (0)

Pakkumise kirjeldus:

Tere,

Täpse pakkumise jaoks on vaja objektiga lähemalt tutvuda.

Lgp. Taivo

Küsimused hanke korraldajale

Hanke korraldajale ei ole veel küsimusi esitatud.

Lisa küsimus

Lisa küsimus

Minu pakkumine

Reeglid

Pakkumise kirjelduse väli on mõeldud pakkumise detailsemaks lahti kirjutamiseks. Pikema teksti mugavaks sisestamiseks klikkige kasti paremal ülaservas oleval ikoonil.
Pakkumist tehes on keelatud postitada enda kontaktandmeid (nimi, telefon, aadress jne). Me jälgime ja analüüsime pakkumisi, et vältida pettuseid ja reeglite rikkumisi.
Rikkumise puhul kasutajakonto blokeeritakse.

 

Teisi töid samas valdkonnas

Valdkonnas "Üldehitus" on 32 aktiivset tööd

Kuuri lammutus

Asukoht: Pärnumaa
Aega jäänud: 3p
Tehtud pakkumisi: 6

Põrandakütte torustiku ja kollektori paigaldus.

Asukoht: Harjumaa, Kurkse
Aega jäänud: 16p
Tehtud pakkumisi: 4

Vanemad teated:

Vaata kõiki

Sellel veebilehel kasutatakse küpsiseid. Kasutamist jätkates nõustute küpsiste kasutamisega.

Sulge
 
Minu pakkumine

Reeglid

Pakkumise kirjelduse väli on mõeldud pakkumise detailsemaks lahti kirjutamiseks. Pikema teksti mugavaks sisestamiseks klikkige kasti paremal ülaservas oleval ikoonil.
Pakkumist tehes on keelatud postitada enda kontaktandmeid (nimi, telefon, aadress jne). Me jälgime ja analüüsime pakkumisi, et vältida pettuseid ja reeglite rikkumisi.
Rikkumise puhul kasutajakonto blokeeritakse.