+ Lisa oma töö      

Otsid ehitajat "Korterite remont" valdkonnast?

Parima pakkumise ja teostaja leidmiseks lisa oma töö.

Avade lõikamine paneelmajas

ID 82558

587 vaatamist

Prindi

  • check Pakkumiste tegemine
    kuni 05.06.2023
  • check Võitja valik kuni
    12.06.2023
  • 3 Töö teostamine
    ja hinnang
Hanke lõpp: E, 5. juuni, 2023
Maakond: Harjumaa
Linn: Tallinn
Tööde algus: E, 05. juuni, 2023 (Soovituslik)
Tööde lõpp: E, 12. juuni, 2023 (Soovituslik)
Ehitusmaterjalid: Töö tegija poolt
Soovin pakkumisi: Summa kogu projektile

Töö sisu

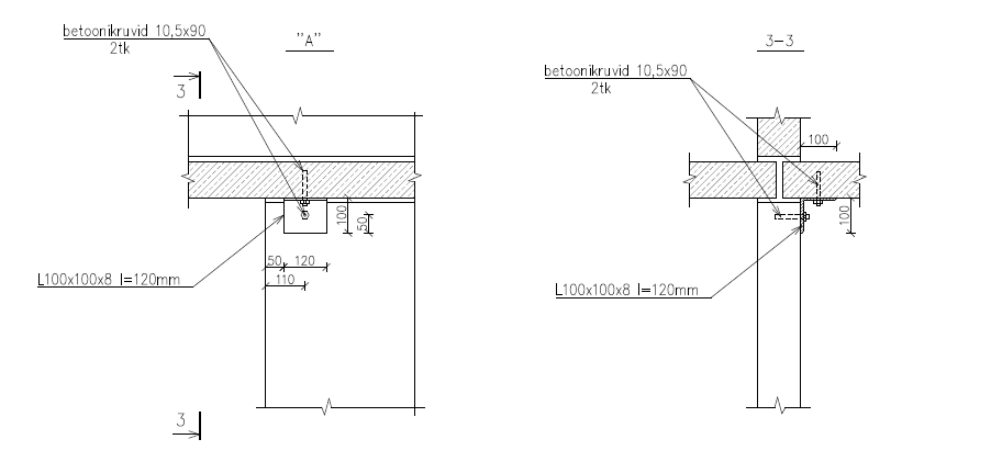
Soovin hinnapakkumist kahe ava lõikamise ja esiku kandvasse seinapaneeli 250mm laiuse väljafreesitava seinaosa tööde teostamiseks. Tööde teostamise kohaks on 3-toaline korter Mustamäel, korter asub 1. korrusel. Hinnapakkumine palun teha koos vajamineva materjaliga. Pärast tööde teostamist on oluline, et töö tegija saab väljastada ehitusdokumentatsiooni viidates muudatusprojektile.

Pildid, video ja failid

Hanke korraldaja: eraisik ID53501

Pakkumised

Pakkumisi kokku: 3

Ettevõte Summa Käibemaks Lisatud Vestlus
Kasutaja ikoon ID70306
Pakkuja profiil Väike nool paremale
2 400€ KM lisandub KM lisandub 03.06.2023 Vestlus (0)

Pakkumise kirjeldus:

Töö sisaldab lõikust,lammutust,utiliseerimine,dokumentatsioon.

Kasutaja ikoon ID68615
Pakkuja profiil Väike nool paremale
1 550€ Ei ole KMKR Ei ole KMKR 04.06.2023 Vestlus (0)

Pakkumise kirjeldus:

Hinnapakkumine on koostatud kahe raudbetoonseina ava lõikamiseks ja olemasoleva laiendamiseks ja nurkraua paigaldamiseks koos prügi utiliseerimisega.
Hind sisaldab vajalikke tööriistu, materjale ja tööjõudu.

Samuti koostame
ehitisdokumentatsiooni ja esitame kasutusteatise .

Kasutaja ikoon ID73479
Pakkuja profiil Väike nool paremale
3 000€ Sisaldab KM Sisaldab KM 05.06.2023 Vestlus (0)

Pakkumise kirjeldus:

Tere

Hea meelega teostame tööd teie jaoks.Tööd tehakse kvaliteetselt ja võimalikult kiiresti.Pakume 5 aastane garantii oma töödele.

See hind sisaldab kõiki nimekirjas olevaid soovitud tööd.
Spetsialisti tulek teie objektile, hinnapakkumise ja tööteostamise lepingu koostamine.

Minu firma tegeleb katuste, fassaadide ehitusega ning üldehi ... Rohkem

Küsimused hanke korraldajale

Hanke korraldajale ei ole veel küsimusi esitatud.

Lisa küsimus

Lisa küsimus

Minu pakkumine

Reeglid

Pakkumise kirjelduse väli on mõeldud pakkumise detailsemaks lahti kirjutamiseks. Pikema teksti mugavaks sisestamiseks klikkige kasti paremal ülaservas oleval ikoonil.
Pakkumist tehes on keelatud postitada enda kontaktandmeid (nimi, telefon, aadress jne). Me jälgime ja analüüsime pakkumisi, et vältida pettuseid ja reeglite rikkumisi.
Rikkumise puhul kasutajakonto blokeeritakse.

 

Teisi töid samas valdkonnas

Valdkonnas "Korterite remont" on 2 aktiivset tööd

Vannitoa lampide paigaldus + erinevad pisiparandused korteris

Asukoht: Harjumaa, Tallinn
Aega jäänud: 1p 21h
Tehtud pakkumisi: 3

Korteri kapitaalremont ja ümberehitus (täielik siseviimistlus + elektritööd)

Asukoht: Järvamaa
Aega jäänud: 12p 21h
Tehtud pakkumisi: 0

Vanemad teated:

Vaata kõiki

Sellel veebilehel kasutatakse küpsiseid. Kasutamist jätkates nõustute küpsiste kasutamisega.

Sulge
 
Minu pakkumine

Reeglid

Pakkumise kirjelduse väli on mõeldud pakkumise detailsemaks lahti kirjutamiseks. Pikema teksti mugavaks sisestamiseks klikkige kasti paremal ülaservas oleval ikoonil.
Pakkumist tehes on keelatud postitada enda kontaktandmeid (nimi, telefon, aadress jne). Me jälgime ja analüüsime pakkumisi, et vältida pettuseid ja reeglite rikkumisi.
Rikkumise puhul kasutajakonto blokeeritakse.