+ Lisa oma töö      

Otsid ehitajat "Üldehitus" valdkonnast?

Parima pakkumise ja teostaja leidmiseks lisa oma töö.

vanade seinte eemaldamine, uute ladumine

ID 82455

593 vaatamist

Prindi

  • check Pakkumiste tegemine
    kuni 29.06.2023
  • check Võitja valik kuni
    06.07.2023
  • 3 Töö teostamine
    ja hinnang
Hanke lõpp: N, 29. juuni, 2023
Maakond: Harjumaa
Muu asula: Paekna
Tööde algus: E, 12. juuni, 2023 (Soovituslik)
Tööde lõpp: T, 01. august, 2023 (Soovituslik)
Ehitusmaterjalid: Töö tellija poolt
Soovin pakkumisi: Summa kogu projektile

Töö sisu

Tegemist 100 aastase vana taluga, millel on puitosa ja maakivi osa.
Töö sisu:
- vanade seinte lammutamine;
- laetalade toestamine;
- vundamendi tegemine - kõik mis vajalik;
- uute seinte ladumine vastavalt projektile;

Pildid, video ja failid

Hanke korraldaja: korteriühistu ID74840

Pakkumised

Pakkumisi kokku: 2

Ettevõte Summa Käibemaks Lisatud Vestlus
Kasutaja ikoon ID30805
Pakkuja profiil Väike nool paremale
23 000€ Ei ole KMKR Ei ole KMKR 18.06.2023 Vestlus (0)

Pakkumise kirjeldus:

Pakkumine kóikidele tóódele mis on hankes válja toodud . Lahti tápsemalt ei kirjuta sest hanke lehel kopeeritakse minu hinnad ja tehakse soodsam pakkumine . Tóó aeg vastavalt vabale ajale mis hetkel on alates juuli 3 nádal - tóóde lópp keeruline panna, sest tuleb jupikaupa lammutada ja úles ehitada arvestasin 3 osas . Raske tehnika ja materjalid ... Rohkem

Kasutaja ikoon ID73479
Pakkuja profiil Väike nool paremale
35 000€ Sisaldab KM Sisaldab KM 29.06.2023 Vestlus (0)

Pakkumise kirjeldus:

Tere

Hea meelega teostame tööd teie jaoks.tööd tehakse kvaliteetselt ja võimalikult kiiresti.Pakume 5 aastane garantii oma töödele.

See hind sisaldab kõiki nimekirjas olevaid soovitud tööd.
Spetsialisti tulek teie objektile, hinnapakkumise ja tööteostamise lepingu koostamine.

Minu firma tegeleb katuste, fassaadide ehitusega ning üldehi ... Rohkem

Küsimused hanke korraldajale

Küsimus: private ID30805   12.06.2023 17:24
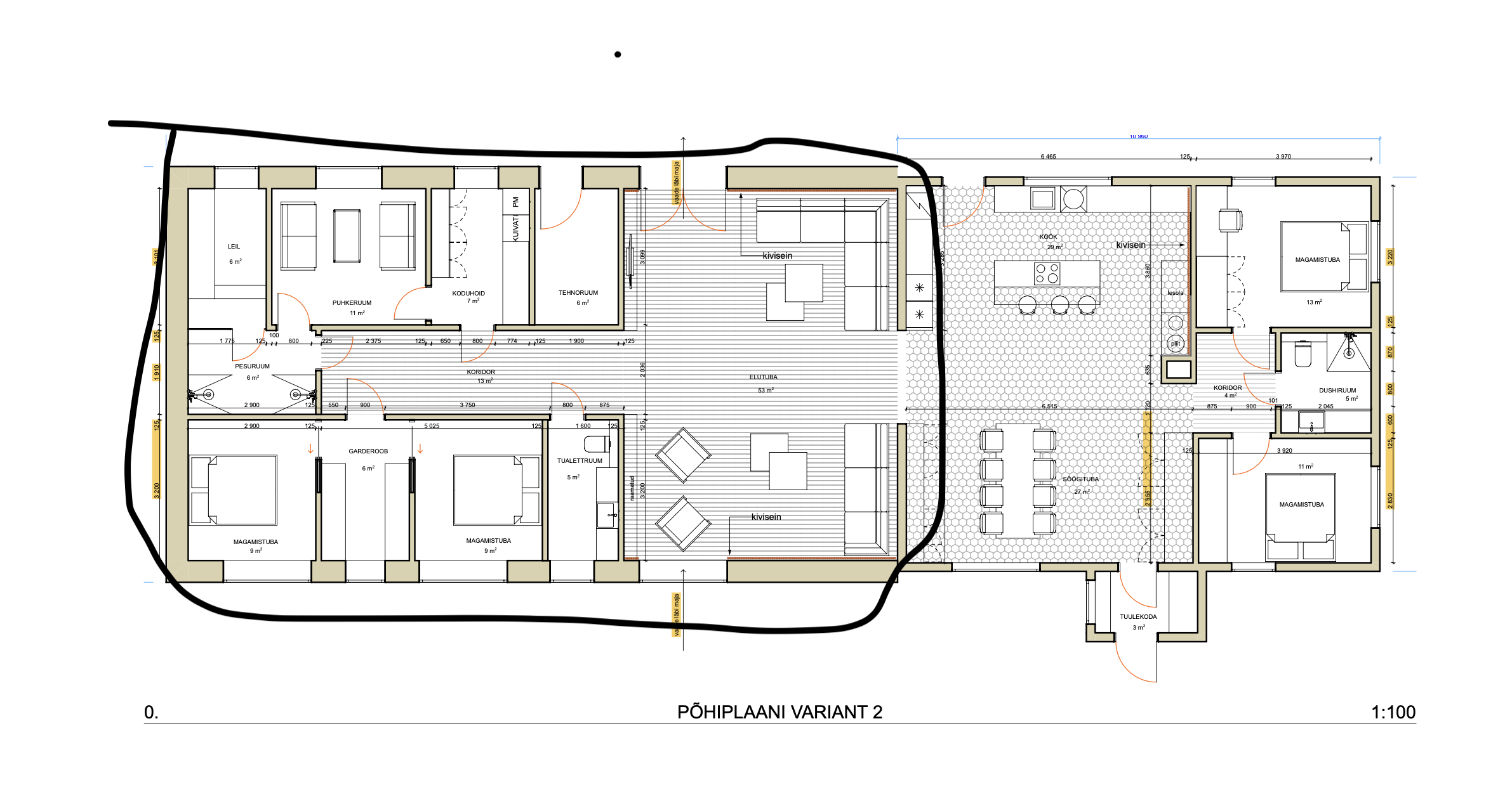
Palun lisage projekt .

Teavita reeglite rikkumisest

Korraldaja vastus: 13.06.2023 10:15

Tere
lisasin joonise.

Parimat
Kristi

Teavita reeglite rikkumisest

Küsimus: private ID30805   13.06.2023 19:52
Tere, Et pakkumist teha peaks olema joonisel ka móódud, kórgused. Millise móóduga plokk láheb ja nii edasi . Mis lábimóóduga tuleb uus múúritis . Nagu aru saan on kóik materjalid teie poolt ?

Teavita reeglite rikkumisest

Korraldaja vastus: 15.06.2023 17:59

Tere

jah materjalid on meie poolt:

- müür tuleb 200mm fobo plokk;
- müüritise laius on ploki laius;
- seinte kõrgus ca 2,5 meetrit;
- mõõri pikkus ca 40 meetrit, selle sees ka uksed aknad.

Teavita reeglite rikkumisest

Küsimus: private ID30805   15.06.2023 20:39
Tere, Nagu aru saan on kóik materjalid teie poolt? Utiliseerima ei pea midagi ? Kas on teil vóímalus ka kopp endal rentida ? Kas sóbib tóóde tegemine ka August-September ?

Teavita reeglite rikkumisest

Korraldaja vastus: 15.06.2023 21:06

Jah kõik materjalid. Kui selgub, et midagi vaja ehitajal juurde, siis see lisandub juurde. Jah kopa saame ka ise rentida. Soov oleks juuli august kui võimalik.

Teavita reeglite rikkumisest

Küsimus: private ID30805   15.06.2023 21:31
Juuli esimesed nádalad hóivatud . Kuid juuli lópp vaba. Teeme teile pakkumise

Teavita reeglite rikkumisest

Korraldaja vastus: 15.06.2023 21:57

Aitäh.

Teavita reeglite rikkumisest

Küsimus: private ID30805   15.06.2023 22:17
Kúsimus tekkis veel , Kuna láheb kaevamiseks, kas soovite drenaazi ja vihmavee torustiku koos nurga kaevudega ? Vóí ei soovi últse ?

Teavita reeglite rikkumisest

Korraldaja vastus: 15.06.2023 22:20

Meil puudub võimalus seda vett kahjuks kuhugi juhtida.

Teavita reeglite rikkumisest

Küsimus: private ID30805   18.06.2023 13:19
Tere, Milline on kaevatav pinnas ?

Teavita reeglite rikkumisest

Korraldaja vastus: 18.06.2023 16:23

Pigem väheste kividega mullane.

Teavita reeglite rikkumisest

Lisa küsimus

Lisa küsimus

Minu pakkumine

Reeglid

Pakkumise kirjelduse väli on mõeldud pakkumise detailsemaks lahti kirjutamiseks. Pikema teksti mugavaks sisestamiseks klikkige kasti paremal ülaservas oleval ikoonil.
Pakkumist tehes on keelatud postitada enda kontaktandmeid (nimi, telefon, aadress jne). Me jälgime ja analüüsime pakkumisi, et vältida pettuseid ja reeglite rikkumisi.
Rikkumise puhul kasutajakonto blokeeritakse.

 

Teisi töid samas valdkonnas

Valdkonnas "Üldehitus" on 32 aktiivset tööd

Kuuri lammutus

Asukoht: Pärnumaa
Aega jäänud: 3p
Tehtud pakkumisi: 6

Põrandakütte torustiku ja kollektori paigaldus.

Asukoht: Harjumaa, Kurkse
Aega jäänud: 16p
Tehtud pakkumisi: 4

Vanemad teated:

Vaata kõiki

Sellel veebilehel kasutatakse küpsiseid. Kasutamist jätkates nõustute küpsiste kasutamisega.

Sulge
 
Minu pakkumine

Reeglid

Pakkumise kirjelduse väli on mõeldud pakkumise detailsemaks lahti kirjutamiseks. Pikema teksti mugavaks sisestamiseks klikkige kasti paremal ülaservas oleval ikoonil.
Pakkumist tehes on keelatud postitada enda kontaktandmeid (nimi, telefon, aadress jne). Me jälgime ja analüüsime pakkumisi, et vältida pettuseid ja reeglite rikkumisi.
Rikkumise puhul kasutajakonto blokeeritakse.