+ Lisa oma töö      

Otsid ehitajat "Siseviimistlustööd" valdkonnast?

Parima pakkumise ja teostaja leidmiseks lisa oma töö.

Väikemaja sisetööd

ID 82413

594 vaatamist

Prindi

  • check Pakkumiste tegemine
    kuni 05.06.2023
  • check Võitja valik kuni
    12.06.2023
  • 3 Töö teostamine
    ja hinnang
Hanke lõpp: E, 5. juuni, 2023
Maakond: Tartumaa
Muu asula: Kaimi
Tööde algus: E, 12. juuni, 2023 (Soovituslik)
Tööde lõpp: E, 17. juuli, 2023 (Soovituslik)
Ehitusmaterjalid: Töö tegija poolt
Soovin pakkumisi: Summa kogu projektile

Töö sisu

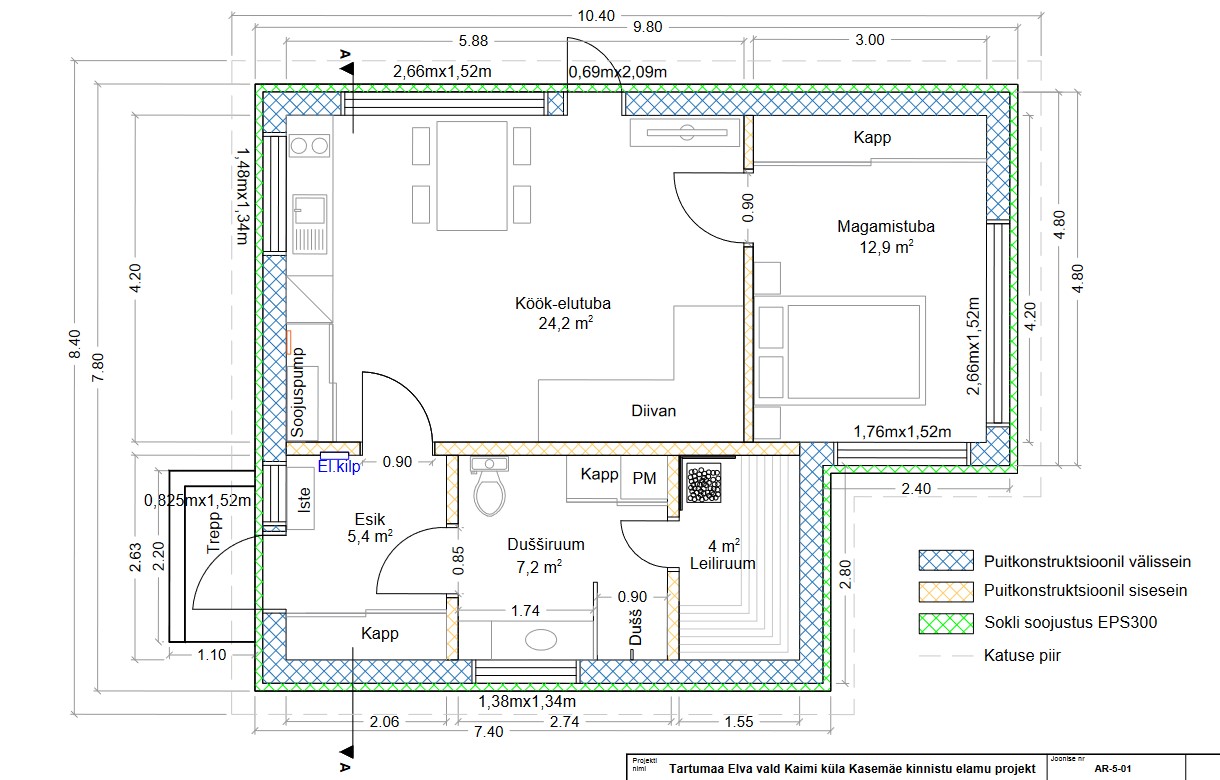
Väikemaja siseseinte ehitus. Elutoa ja esiku valmiskujul ehitus. Esikusse põrandale plaat, elutuppa kasutatud liimitav parkett. Seinad kips ja lagi puit.

Pildid, video ja failid

Hanke korraldaja: eraisik ID74965

Pakkumised

Pakkumisi kokku: 4

Ettevõte Summa Käibemaks Lisatud Vestlus
Kasutaja ikoon ID74103
Pakkuja profiil Väike nool paremale
4 500€ KM lisandub KM lisandub 29.05.2023 Vestlus (0)

Pakkumise kirjeldus:

Pakkumine sisaldab hankes mainituid töid, eeldusega et objekt seal maal et saab kohe seinu tegema hakata

Kasutaja ikoon ID57450
Pakkuja profiil Väike nool paremale
16 800€ KM lisandub KM lisandub 30.05.2023 Vestlus (0)

Pakkumise kirjeldus:

Loetletud ruumide täislahendus, valmis siseseinad ning põrandad. Samuti kõik seinad lõpliku värvi all ning lagi voodrilauaga kaetud.
Sobivuse korral võtke ühendust, tuleme läbi ja koostame detailse pakkumise.
Edukat hanget!

Kasutaja ikoon ID65367
Pakkuja profiil Väike nool paremale
10 800€ Sisaldab KM Sisaldab KM 30.05.2023 Vestlus (0)
Kasutaja ikoon ID67766
Pakkuja profiil Väike nool paremale
5 500€ Ei ole KMKR Ei ole KMKR 02.06.2023 Vestlus (0)

Pakkumise kirjeldus:

Hind sisaldab väikemaja sisetöid esiku elutoa välja ehitust .Hind ei sisalda ehitusmaterjali hinda. Hind võib muutuda kuna täpsema hinnapakkumise saame teha kui oleme objektiga tutvunud .Parimat soovides

Küsimused hanke korraldajale

Hanke korraldajale ei ole veel küsimusi esitatud.

Lisa küsimus

Lisa küsimus

Minu pakkumine

Reeglid

Pakkumise kirjelduse väli on mõeldud pakkumise detailsemaks lahti kirjutamiseks. Pikema teksti mugavaks sisestamiseks klikkige kasti paremal ülaservas oleval ikoonil.
Pakkumist tehes on keelatud postitada enda kontaktandmeid (nimi, telefon, aadress jne). Me jälgime ja analüüsime pakkumisi, et vältida pettuseid ja reeglite rikkumisi.
Rikkumise puhul kasutajakonto blokeeritakse.

 

Teisi töid samas valdkonnas

Valdkonnas "Siseviimistlustööd" on 20 aktiivset tööd

Seinte pahteldus ja värvimine

Asukoht: Harjumaa, Türisalu
Aega jäänud: 2p 19h
Tehtud pakkumisi: 7

Korteri seinte ja lagede värvimine, osaline pahteldamine

Asukoht: Harjumaa, Tallinn
Aega jäänud: 19h 18 min
Tehtud pakkumisi: 5

Vanemad teated:

Vaata kõiki

Sellel veebilehel kasutatakse küpsiseid. Kasutamist jätkates nõustute küpsiste kasutamisega.

Sulge
 
Minu pakkumine

Reeglid

Pakkumise kirjelduse väli on mõeldud pakkumise detailsemaks lahti kirjutamiseks. Pikema teksti mugavaks sisestamiseks klikkige kasti paremal ülaservas oleval ikoonil.
Pakkumist tehes on keelatud postitada enda kontaktandmeid (nimi, telefon, aadress jne). Me jälgime ja analüüsime pakkumisi, et vältida pettuseid ja reeglite rikkumisi.
Rikkumise puhul kasutajakonto blokeeritakse.