+ Lisa oma töö      

Otsid ehitajat "Üldehitus" valdkonnast?

Parima pakkumise ja teostaja leidmiseks lisa oma töö.

Hange on lõppenud!

Võitjaks osutus kasutaja ID 30805

Korraldaja hinnang tehtud tööle

5.0
13.08.2023
Töökiirus: 12345
Kvaliteet: 12345
Hind: 12345

Töid sai tehtud oluliselt suuremas mahus kui algses hankes ja korraliku kvaliteediga. Julgen soovitada. - Kalle T.

Näita pilte (2) Peida pildid

Enne:

  • nurk_enne.jpg

Pärast:

  • nurk_pärast.jpg

Renoveeritava maja müüritööd, vundamenditööd

ID 82390

868 vaatamist

Prindi

  • check Pakkumiste tegemine
    kuni 11.06.2023
  • check Võitja valik kuni
    18.06.2023
  • 3 Töö teostamine
    ja hinnang
Hanke lõpp: P, 11. juuni, 2023
Maakond: Harjumaa
Linn: Tallinn
Tööde algus: E, 12. juuni, 2023 (Soovituslik)
Tööde lõpp: P, 18. juuni, 2023 (Soovituslik)
Ehitusmaterjalid: Töö tegija poolt
Soovin pakkumisi: Summa kogu projektile

Töö sisu

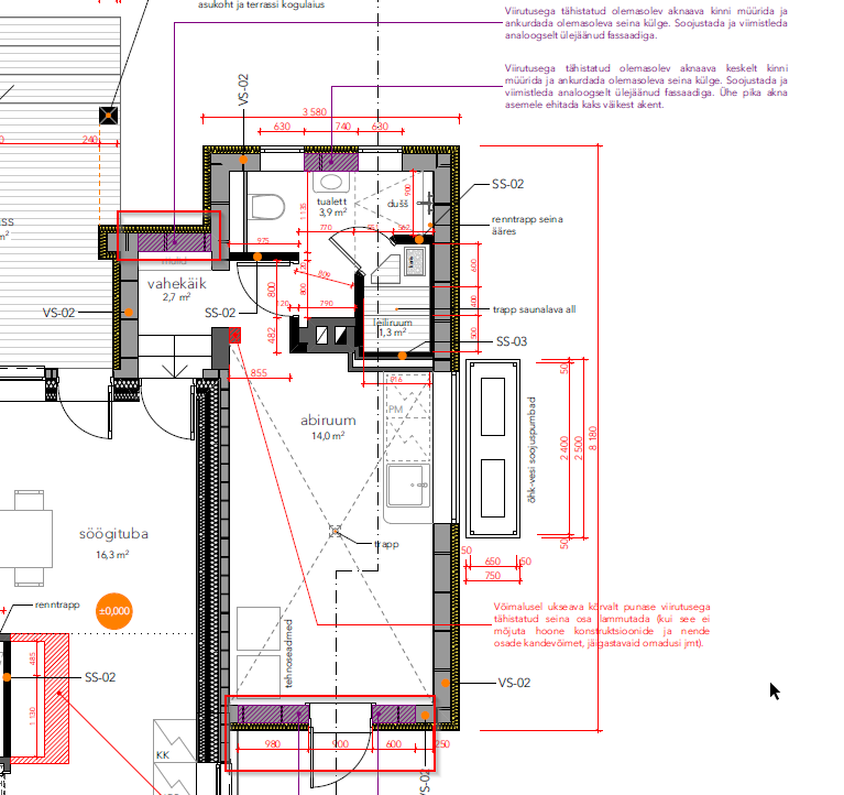
1. Olemasoleva avatäite eemaldamine, 210 x 90 ukseava kinnimüürimine.
2. Olemasoleva avatäite eemaldamine, 200 x 246 ukseava kinnimüürimine 200 x 90 ukseavaks.
3. maja nurga vundamendi toestamine ja nurga taastamine.

Olemasoleva tellisseina paksus ca 26 cm (2 x serviti tellis ja õhuvahe). Müürimiseks FIBO või analoog.
Müüritud sein peab väljast jääma samas tasapinnas kui olemasolev.

Pildid, video ja failid

Hanke korraldaja: eraisik ID20124

Pakkumised

Pakkumisi kokku: 3

Ettevõte Summa Käibemaks Lisatud Vestlus
Kasutaja ikoon ID73479
Pakkuja profiil Väike nool paremale
6 000€ Sisaldab KM Sisaldab KM 11.06.2023 Vestlus (0)

Pakkumise kirjeldus:

Tere

Hea meelega teostame tööd teie jaoks.tööd tehakse kvaliteetselt ja võimalikult kiiresti.Pakume 5 aastane garantii oma töödele.

See hind sisaldab kõiki nimekirjas olevaid soovitud tööd.
Spetsialisti tulek teie objektile, hinnapakkumise ja tööteostamise lepingu koostamine.

Minu firma tegeleb katuste, fassaadide ehitusega ning üldehi ... Rohkem

Kasutaja ikoon ID28394
Pakkuja profiil Väike nool paremale
5 200€ Sisaldab KM Sisaldab KM 11.06.2023 Vestlus (0)

Pakkumise kirjeldus:

Hind materjalidele ja müüritöödele.

Kasutaja ikoon ID30805
Pakkuja profiil Väike nool paremale
3 850€ Ei ole KMKR Ei ole KMKR 11.06.2023 Vestlus (0)

Pakkumise kirjeldus:

Hinnas vastavalt hankes válja toodud tóód ( tóósisu punktid 1,2 ja 3 ) .
Hind sisaldab materjale , transporti, lammutust , ehitust ja ka utiliseerimist.
Kui kohapeal selgub et garaaZi ukse alune vajab lisa vundamenti vói soovite ka teha panduse parandust mida hankes márgitud ei ole on see lisatóó ja kóik lisatóód on 40 eurot h . Samuti lisató ... Rohkem

Küsimused hanke korraldajale

Küsimus: private ID30805   11.06.2023 17:03
Tere, unustasin márkida tóó alguse . Milleks on 3 Juuli.

Teavita reeglite rikkumisest

Korraldaja vastus:
Hanke korraldaja ei ole küsimusele veel vastanud

Lisa küsimus

Lisa küsimus

Minu pakkumine

Reeglid

Pakkumise kirjelduse väli on mõeldud pakkumise detailsemaks lahti kirjutamiseks. Pikema teksti mugavaks sisestamiseks klikkige kasti paremal ülaservas oleval ikoonil.
Pakkumist tehes on keelatud postitada enda kontaktandmeid (nimi, telefon, aadress jne). Me jälgime ja analüüsime pakkumisi, et vältida pettuseid ja reeglite rikkumisi.
Rikkumise puhul kasutajakonto blokeeritakse.

 

Teisi töid samas valdkonnas

Valdkonnas "Üldehitus" on 27 aktiivset tööd

Terassi õlitamine, 13,7 ruutu

Asukoht: Harjumaa, Saue
Aega jäänud: 5p 20h
Tehtud pakkumisi: 4

Eramaja ehitus

Asukoht: Harjumaa, Suurupi
Aega jäänud: 4p 20h
Tehtud pakkumisi: 4

Vanemad teated:

Vaata kõiki

Sellel veebilehel kasutatakse küpsiseid. Kasutamist jätkates nõustute küpsiste kasutamisega.

Sulge
 
Minu pakkumine

Reeglid

Pakkumise kirjelduse väli on mõeldud pakkumise detailsemaks lahti kirjutamiseks. Pikema teksti mugavaks sisestamiseks klikkige kasti paremal ülaservas oleval ikoonil.
Pakkumist tehes on keelatud postitada enda kontaktandmeid (nimi, telefon, aadress jne). Me jälgime ja analüüsime pakkumisi, et vältida pettuseid ja reeglite rikkumisi.
Rikkumise puhul kasutajakonto blokeeritakse.