+ Lisa oma töö      

Otsid ehitajat "Lammutustööd" valdkonnast?

Parima pakkumise ja teostaja leidmiseks lisa oma töö.

Lammutus / Koristus puitosadele. Potensiaalne küte ja jaanitule materjal!

ID 82133

895 vaatamist

Prindi

  • check Pakkumiste tegemine
    kuni 04.06.2023
  • check Võitja valik kuni
    11.06.2023
  • 3 Töö teostamine
    ja hinnang
Hanke lõpp: P, 4. juuni, 2023
Maakond: Pärnumaa
Muu asula: Audru
Tööde algus: E, 22. mai, 2023 (Soovituslik)
Tööde lõpp: P, 11. juuni, 2023 (Soovituslik)
Ehitusmaterjalid: Töö tegija poolt
Soovin pakkumisi: Summa kogu projektile

Töö sisu

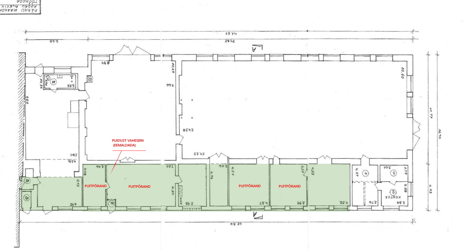
Külghoone puitosade lammutus. Maha on juba võetud eterniit, tõrvapapp ja pealmine laudis. Sisemine lagi on krohvitud puitsõrestikule ja on suuremalt jaolt juba sisse varisenud. Lae soojustusmaterjal on saepuru. Ühel pildil näha ka klaasvilla, aga seda on kasutatud osaliselt lihtsalt parnaduseks mõne koha peal. Laudpõrand samuti eemaldada betoonini (asukoht märgitud joonisel), mujal ruumides betoon. Toestustalad ja uuem materjal säilitada. Aknad on praeguseks hetkeks juba eemaldatud. Võib teha hiljem pakkumise ka radiaatorite ja torustiku ( vanaraud) utiliseerimiseks. Hoonele on kõvakattega pinnas kogu ulatuses ja hea ligipääs.

Pildid, video ja failid

Hanke korraldaja: eraisik ID74824

Pakkumised

Pakkumisi kokku: 12

Ettevõte Summa Käibemaks Lisatud Vestlus
Kasutaja ikoon ID54332
Pakkuja profiil Väike nool paremale
3 000€ Sisaldab KM Sisaldab KM 21.05.2023 Vestlus (0)

Pakkumise kirjeldus:

Hanke korraldaja poolt soovitud ja kirjeldatud töö teostamine.

Kasutaja ikoon ID59430
Pakkuja profiil Väike nool paremale
2 340€ KM lisandub KM lisandub 21.05.2023 Vestlus (0)
Kasutaja ikoon ID66912
Pakkuja profiil Väike nool paremale
1 900€ KM lisandub KM lisandub 22.05.2023 Vestlus (0)
Kasutaja ikoon ID59949
Pakkuja profiil Väike nool paremale
3 000€ Sisaldab KM Sisaldab KM 23.05.2023 Vestlus (0)
Kasutaja ikoon ID73891
Pakkuja profiil Väike nool paremale
2 450€ Ikoon kell KM lisandub KM lisandub 25.05.2023 Vestlus (0)

Pakkumise kirjeldus:

Tere!

Pakkumine sisaldab töö sisu kirjelduses väljatoodud puitpõrandate lammutamist betoonini, lae konstruktsiooni-soojustuse -ja tugitalade lammutamist, lammutusprahi utiliseerimist.
Töödega saame alustada kõige varasemalt 24.05/25.05.2023 ( Kui algus kuupäev teile ei sobi , saame planeerida ka hilisemaks, teie sobivuse järgi) . Objektile on ... Rohkem

Kasutaja ikoon ID74517
Pakkuja profiil Väike nool paremale
5 600€ Sisaldab KM Sisaldab KM 26.05.2023 Vestlus (0)
Kasutaja ikoon ID22919
Pakkuja profiil Väike nool paremale
9 800€ KM lisandub KM lisandub 26.05.2023 Vestlus (0)
Kasutaja ikoon ID59242
Pakkuja profiil Väike nool paremale
3 500€ Sisaldab KM Sisaldab KM 28.05.2023 Vestlus (0)

Pakkumise kirjeldus:

Tere

Pakkumine sisaldab puit osa lammutust. Milline materjal alles jääb ja milline mitte on võimalik hiljem täpsustada. Vajadusel saame ka utiliseerida. Küsimuste puhul võite alati ühendust võtta.

Lugupidamisega
Riho

Kasutaja ikoon ID51815
Pakkuja profiil Väike nool paremale
11 500€ Ei ole KMKR Ei ole KMKR 30.05.2023 Vestlus (0)

Pakkumise kirjeldus:

Töö vastavalt tellija soovile!

Kasutaja ikoon ID58217
Pakkuja profiil Väike nool paremale
4 100€ KM lisandub KM lisandub 30.05.2023 Vestlus (0)

Pakkumise kirjeldus:

Tere!

Pakkumine hankes kirjeldatud töödele.

Lugupidamisega,
S

Kasutaja ikoon ID73479
Pakkuja profiil Väike nool paremale
15 000€ Sisaldab KM Sisaldab KM 04.06.2023 Vestlus (0)

Pakkumise kirjeldus:

Tere

Hea meelega teostame tööd teie jaoks.Tööd tehakse kvaliteetselt ja võimalikult kiiresti.Pakume 5 aastane garantii oma töödele.

See hind sisaldab kõiki nimekirjas olevaid soovitud tööd.
Spetsialisti tulek teie objektile, hinnapakkumise ja tööteostamise lepingu koostamine.

Minu firma tegeleb katuste, fassaadide ehitusega ning üldehi ... Rohkem

Kasutaja ikoon ID73310
Pakkuja profiil Väike nool paremale
5 000€ KM lisandub KM lisandub 04.06.2023 Vestlus (0)

Küsimused hanke korraldajale

Küsimus: private ID73891   22.05.2023 11:15
Tere,

Kas saan õigesti aru et soov on lammutada lagi+toestustalad ja neljas toas asuvad puitpõrandad betoonini. Kas teistes tubades kus on betoonpõrand, jääb alles? Samuti küsimus ka seinte kohta (väljaarvatud puitsein), et kas need jäävad ka alles?

Parimat
M.G

Teavita reeglite rikkumisest

Korraldaja vastus: 22.05.2023 12:08

Tervitus,

Tänud. Jah, lagi ja seda osaliselt hetkel toetavad prussid. Teistes tubades on juba betoonpõrand ja laudis puudub. Seinad plaanis ka osaliselt lammutada hiljem, niisis kui vaja ligipääsu tekitada, võib eest lahti teha. Kivid on suht lahti. Pildil paremalt vaadates nljandas akna avas on seda tehtud ja aknaluse eemaldamiseks ja sealt seadme kättesaamiseks, kulus u.15 min. Eesmärk on mitte segada puidusegu kividega, sest üks härra soovib seda potensiaalselt endale täiteks.

Parimaga,
Margus

Teavita reeglite rikkumisest

Lisa küsimus

Lisa küsimus

Minu pakkumine

Reeglid

Pakkumise kirjelduse väli on mõeldud pakkumise detailsemaks lahti kirjutamiseks. Pikema teksti mugavaks sisestamiseks klikkige kasti paremal ülaservas oleval ikoonil.
Pakkumist tehes on keelatud postitada enda kontaktandmeid (nimi, telefon, aadress jne). Me jälgime ja analüüsime pakkumisi, et vältida pettuseid ja reeglite rikkumisi.
Rikkumise puhul kasutajakonto blokeeritakse.

 

Teisi töid samas valdkonnas

Valdkonnas "Lammutustööd" on 6 aktiivset tööd

Suvila lammutamine

Asukoht: Raplamaa, Vilivere
Aega jäänud: 4h 52 min
Tehtud pakkumisi: 10

Katuse lammutamine

Asukoht: Harjumaa
Aega jäänud: 12p 4h
Tehtud pakkumisi: 7

Vanemad teated:

Vaata kõiki

Sellel veebilehel kasutatakse küpsiseid. Kasutamist jätkates nõustute küpsiste kasutamisega.

Sulge
 
Minu pakkumine

Reeglid

Pakkumise kirjelduse väli on mõeldud pakkumise detailsemaks lahti kirjutamiseks. Pikema teksti mugavaks sisestamiseks klikkige kasti paremal ülaservas oleval ikoonil.
Pakkumist tehes on keelatud postitada enda kontaktandmeid (nimi, telefon, aadress jne). Me jälgime ja analüüsime pakkumisi, et vältida pettuseid ja reeglite rikkumisi.
Rikkumise puhul kasutajakonto blokeeritakse.