+ Lisa oma töö      

Otsid ehitajat "Metallitööd" valdkonnast?

Parima pakkumise ja teostaja leidmiseks lisa oma töö.

Metallkarkass

ID 81725

793 vaatamist

Prindi

  • check Pakkumiste tegemine
    kuni 25.05.2023
  • check Võitja valik kuni
    01.06.2023
  • 3 Töö teostamine
    ja hinnang
Hanke lõpp: N, 25. mai, 2023
Maakond: Harjumaa
Linn: Tallinn
Tööde algus: N, 15. juuni, 2023 (Soovituslik)
Tööde lõpp: R, 30. juuni, 2023 (Soovituslik)
Ehitusmaterjalid: Töö tegija poolt
Soovin pakkumisi: Summa kogu projektile

Töö sisu

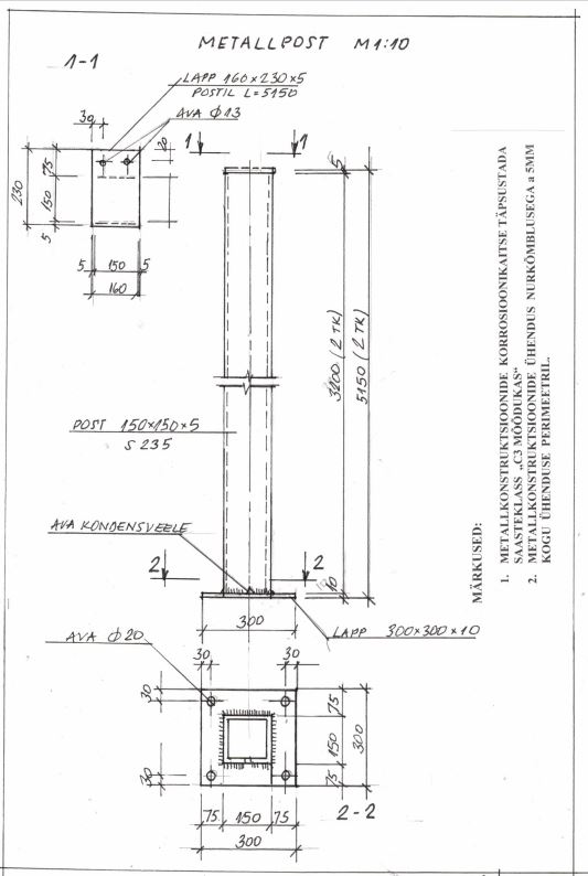
Metallkarkassi tootmine ja paigaldus vastavalt joonistele. (Joonised 3-6 on rohkem informatiivse iseloomuga et tekiks parem pilt ette tervikust). Tegemist rõdu metallkarkassiga. Vundamendi valab tellija ( koos armeeringuga). Töövõtja poolt karkassi paigaldus vundamendile. Arvestada joonisel olevate mõõtudega, kuid enne tööde tegemist täpsustame cm täpsusega kohapel objektil üle. Karkass tuleb katta korrosioonivastase kattega (värv, tsinkimine jne. - vaba valik )

Pildid, video ja failid

Hanke korraldaja: eraisik ID52940

Pakkumised

Pakkumisi kokku: 3

Ettevõte Summa Käibemaks Lisatud Vestlus
Kasutaja ikoon ID71503
Pakkuja profiil Väike nool paremale
400€ KM lisandub KM lisandub 24.05.2023 Vestlus (1)

Pakkumise kirjeldus:

Tere,

Teen hinnapakkumise sulle selle raami metalli projekteerimisele. Need joonised saaksid saata otse Pärnu ettevõttesse, mis selle töö sul ära teeb.

Ma ise asun Keilas ja logistiliselt poleks mõtekas seda hakata siin tegema, Pärnus ettevõtteid küll, kes selle ära teeksid, kui õiged joonised.

Minu soovitused:
*Raam tuleks kindlalt ... Rohkem

Kasutaja ikoon ID71911
Pakkuja profiil Väike nool paremale
4 740€ Sisaldab KM Sisaldab KM 24.05.2023 Vestlus (3)

Pakkumise kirjeldus:

Tere,

Hind sisaldab hankes kirjeldatud töid.
Kohapeal arutame kõik üksikasjad täpsemalt läbi.
Kogenud meistrid teevad kvaliteetset tööd garantiiga.
Hind sisaldab materjale, tarnimist ja paigaldust.
Pakutud hind on koos käibemaksuga.

Kasutaja ikoon ID73479
Pakkuja profiil Väike nool paremale
5 000€ Sisaldab KM Sisaldab KM 25.05.2023 Vestlus (2)

Pakkumise kirjeldus:

Tere

Hea meelega teostame tööd teie jaoks.Tööd tehakse kvaliteetselt ja võimalikult kiiresti.Pakume 5 aastane garantii oma töödele.

See hind sisaldab kõiki nimekirjas olevaid soovitud tööd.
Spetsialisti tulek teie objektile, hinnapakkumise ja tööteostamise lepingu koostamine.

Minu firma tegeleb katuste, fassaadide ehitusega ning üldehi ... Rohkem

Küsimused hanke korraldajale

Küsimus: private ID71911   13.05.2023 10:51
Tere päevast!
Kas saame õigesti aru, et kokku oleks vaja toota ja paigaldada:
Post 4tk
Tala 4tk
Toelapp 4tk
Lapp 4tk (3.joonis 1-1)

Kuidas tuleks talasid postidega ühendada?

Terv,

Teavita reeglite rikkumisest

Korraldaja vastus: 15.05.2023 11:31

Tere
Jah poste 4, talasid 4, alumisi toelappe mis lähevad vundamendi külge on 4 ja konstruktori joonisel on tõesti ka üks viga, nimelt neid ülemisi toelappe pole sinna joonistatud, kuid neid peaks olema mõlemal talal 4 tk, kokku siis 8 ( see lõike koht 1-1 on detailina olemas). Talad postidega ühendatakse keevisega, see info on olemas joonisel 3, märkuses (sama joonis kus asuvad lõige 1-1 ja 2-2)

Lugupidamisega
RK

Teavita reeglite rikkumisest

Lisa küsimus

Lisa küsimus

Minu pakkumine

Reeglid

Pakkumise kirjelduse väli on mõeldud pakkumise detailsemaks lahti kirjutamiseks. Pikema teksti mugavaks sisestamiseks klikkige kasti paremal ülaservas oleval ikoonil.
Pakkumist tehes on keelatud postitada enda kontaktandmeid (nimi, telefon, aadress jne). Me jälgime ja analüüsime pakkumisi, et vältida pettuseid ja reeglite rikkumisi.
Rikkumise puhul kasutajakonto blokeeritakse.

 

Teisi töid samas valdkonnas

Valdkonnas "Metallitööd" on 2 aktiivset tööd

Auto varjualuse sein

Asukoht: Harjumaa, Ääsmäe
Aega jäänud: 4p 12h
Tehtud pakkumisi: 0

Vanemad teated:

Vaata kõiki

Sellel veebilehel kasutatakse küpsiseid. Kasutamist jätkates nõustute küpsiste kasutamisega.

Sulge
 
Minu pakkumine

Reeglid

Pakkumise kirjelduse väli on mõeldud pakkumise detailsemaks lahti kirjutamiseks. Pikema teksti mugavaks sisestamiseks klikkige kasti paremal ülaservas oleval ikoonil.
Pakkumist tehes on keelatud postitada enda kontaktandmeid (nimi, telefon, aadress jne). Me jälgime ja analüüsime pakkumisi, et vältida pettuseid ja reeglite rikkumisi.
Rikkumise puhul kasutajakonto blokeeritakse.