+ Lisa oma töö      

Otsid ehitajat "Müüritööd" valdkonnast?

Parima pakkumise ja teostaja leidmiseks lisa oma töö.

Eramu müüritööd - columbia, õõnespaneel, bauroc.

ID 81720

650 vaatamist

Prindi

  • check Pakkumiste tegemine
    kuni 25.05.2023
  • check Võitja valik kuni
    01.06.2023
  • 3 Töö teostamine
    ja hinnang
Hanke lõpp: N, 25. mai, 2023
Maakond: Tartumaa
Tööde algus: N, 25. mai, 2023 (Soovituslik)
Tööde lõpp: E, 31. juuli, 2023 (Soovituslik)
Ehitusmaterjalid: Töö tellija poolt
Soovin pakkumisi: Summa kogu projektile

Töö sisu

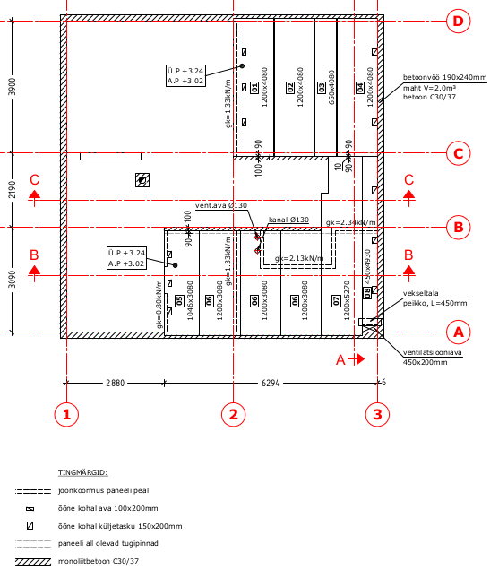
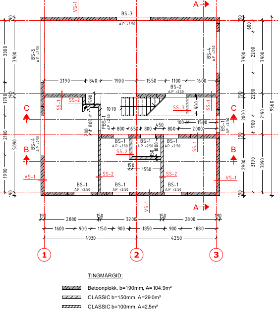
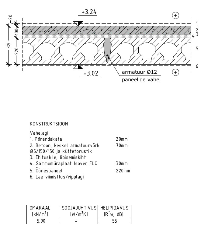
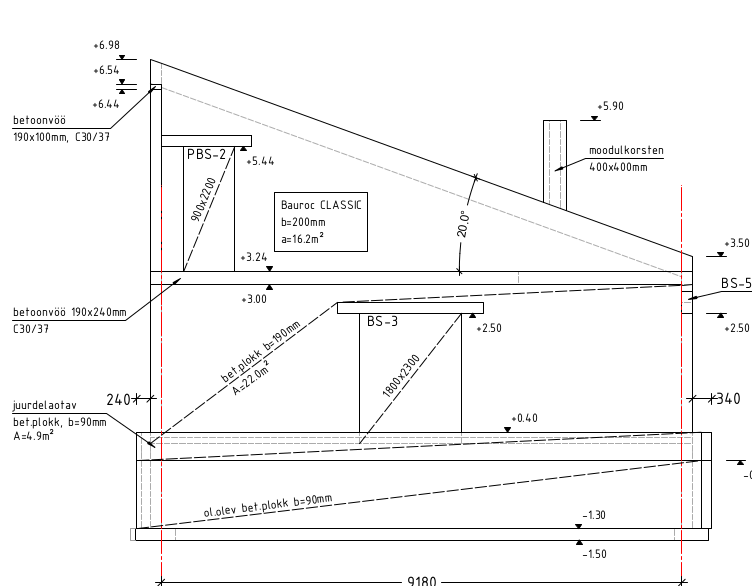
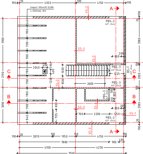
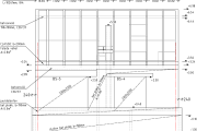
Vastavalt konstr. projektile kandvate seinte ladumine ja vahelagi, sillused, vööd.
Otsin usaldusväärset ja kogemustega ehitajat, kellel oleks suvel aega töö ära teha.

11.mai: Võib pakkuda iga osa tööhinda eraldi.

Pildid, video ja failid

Hanke korraldaja: eraisik ID56694

Pakkumised

Pakkumisi kokku: 4

Ettevõte Summa Käibemaks Lisatud Vestlus
Kasutaja ikoon ID70688
Pakkuja profiil Väike nool paremale
330€ Sisaldab KM Sisaldab KM 11.05.2023 Vestlus (5)

Pakkumise kirjeldus:

Tere!

Hind sisaldab:

1. 8 m2 kivi ladumist
2. Kivi hind kuskil 3,2 eurot koos maksudega
3. Koristustöid

NB! Tulevad meie firma Tartu mehed Kõik vajalik olemas

Kasutaja ikoon ID57450
Pakkuja profiil Väike nool paremale
19 800€ KM lisandub KM lisandub 12.05.2023 Vestlus (2)

Pakkumise kirjeldus:

Pakkumine sisaldab kõigi plokkide ladumist, tellinguid, silluste paigaldust, plokkide sarrustamist, betoonivalu, õõnespaneelide paigaldust. Sobivuse korral võtke ühendust, tuleme läbi ning koostame detailse pakkumise. Edukat hanget!

Kasutaja ikoon ID71572
Pakkuja profiil Väike nool paremale
9 500€ Ei ole KMKR Ei ole KMKR 15.05.2023 Vestlus (0)

Pakkumise kirjeldus:

Pakkumine vastavalt hanke sisule .

Kasutaja ikoon ID73479
Pakkuja profiil Väike nool paremale
25 000€ Sisaldab KM Sisaldab KM 25.05.2023 Vestlus (0)

Pakkumise kirjeldus:

Tere

Hea meelega teostame tööd teie jaoks.Tööd tehakse kvaliteetselt ja võimalikult kiiresti.Pakume 5 aastane garantii oma töödele.

See hind sisaldab kõiki nimekirjas olevaid soovitud tööd.
Spetsialisti tulek teie objektile, hinnapakkumise ja tööteostamise lepingu koostamine.

Minu firma tegeleb katuste, fassaadide ehitusega ning üldehi ... Rohkem

Küsimused hanke korraldajale

Küsimus: private ID57046   17.05.2023 07:10
Tere
Kus kandis Tartumaal?

Teavita reeglite rikkumisest

Korraldaja vastus: 17.05.2023 23:15

Tere!
Tartu linna kandis.

Teavita reeglite rikkumisest

Lisa küsimus

Lisa küsimus

Minu pakkumine

Reeglid

Pakkumise kirjelduse väli on mõeldud pakkumise detailsemaks lahti kirjutamiseks. Pikema teksti mugavaks sisestamiseks klikkige kasti paremal ülaservas oleval ikoonil.
Pakkumist tehes on keelatud postitada enda kontaktandmeid (nimi, telefon, aadress jne). Me jälgime ja analüüsime pakkumisi, et vältida pettuseid ja reeglite rikkumisi.
Rikkumise puhul kasutajakonto blokeeritakse.

 

Vanemad teated:

Vaata kõiki

Sellel veebilehel kasutatakse küpsiseid. Kasutamist jätkates nõustute küpsiste kasutamisega.

Sulge
 
Minu pakkumine

Reeglid

Pakkumise kirjelduse väli on mõeldud pakkumise detailsemaks lahti kirjutamiseks. Pikema teksti mugavaks sisestamiseks klikkige kasti paremal ülaservas oleval ikoonil.
Pakkumist tehes on keelatud postitada enda kontaktandmeid (nimi, telefon, aadress jne). Me jälgime ja analüüsime pakkumisi, et vältida pettuseid ja reeglite rikkumisi.
Rikkumise puhul kasutajakonto blokeeritakse.