+ Lisa oma töö      

Otsid ehitajat "Vundamenditööd" valdkonnast?

Parima pakkumise ja teostaja leidmiseks lisa oma töö.

plaatvundament

ID 81708

671 vaatamist

Prindi

  • check Pakkumiste tegemine
    kuni 13.05.2023
  • check Võitja valik kuni
    20.05.2023
  • 3 Töö teostamine
    ja hinnang
Hanke lõpp: L, 13. mai, 2023
Maakond: Saaremaa
Muu asula: Valjala
Tööde algus: L, 01. juuli, 2023 (Soovituslik)
Tööde lõpp: E, 31. juuli, 2023 (Soovituslik)
Ehitusmaterjalid: Töö tegija poolt
Soovin pakkumisi: Summa kogu projektile

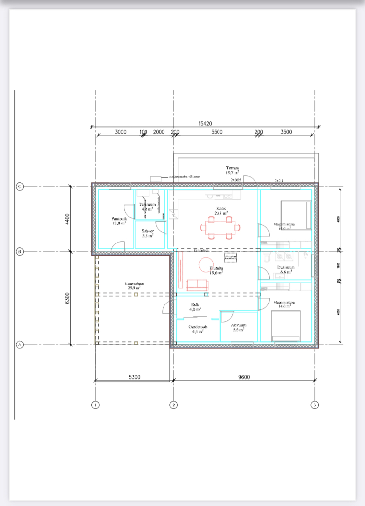
Töö sisu

Plaatvundamendi rajamine.
Komminukatsioonide vedamine, elektrikilp ca 50m, tsentraalne vesi ja kanal ca 50 m.
Põrandakütte torustiku paigaldus.

Pildid, video ja failid

Hanke korraldaja: eraisik ID74590

Pakkumised

Pakkumisi kokku: 6

Ettevõte Summa Käibemaks Lisatud Vestlus
Kasutaja ikoon ID74605
Pakkuja profiil Väike nool paremale
52 000€ Sisaldab KM Sisaldab KM 11.05.2023 Vestlus (0)

Pakkumise kirjeldus:

Pakkumine on koos KM.

Kasutaja ikoon ID53401
Pakkuja profiil Väike nool paremale
35 500€ KM lisandub KM lisandub 11.05.2023 Vestlus (0)

Pakkumise kirjeldus:

Tere.
Meie pakkumine sisaldab:
1. Pinnasetööd- pinnase koorimine, geokangas ja killustiku/liiva alus kuni 20cm.
2. Vundamendi aluse vee ja kanalisatsiooni süsteemi ehitus.
3. L plokkide paigaldus (Reiden).
4. Põranda aluse soojustusplaadi paigaldus- EPS100- 300mm
5. Perimeetri horisontaalse soojustuse paigaldus- EPS120- 100mm
6. Tarbevee torude pa ... Rohkem

Kasutaja ikoon ID73664
Pakkuja profiil Väike nool paremale
32 700€ KM lisandub KM lisandub 11.05.2023 Vestlus (0)
Kasutaja ikoon ID61081
Pakkuja profiil Väike nool paremale
29 400€ KM lisandub KM lisandub 11.05.2023 Vestlus (0)

Pakkumise kirjeldus:

Tere.
Hinnapakkumine plaatvndamendi tehituseks.

Kasutaja ikoon ID70017
Pakkuja profiil Väike nool paremale
42 300€ Ei ole KMKR Ei ole KMKR 13.05.2023 Vestlus (0)

Pakkumise kirjeldus:

Pakkumine Töö koos materjaliga.
Sisaldab:
Mahamärkkimine
Väljakaeve tagasitäitmine 20 cm
Lvormid 400
300mm eps soojustus
Armeerimine
Põrandaküttetorustiku paigaldus
Torustiku paigaldus
Betoonivalamine ja silumne
Trasside paigaldus 50 jm vesi, elekter ja kanal
Loodan, et pakkumine sobib ja viib koostööle
Omame pikaajalist kogemust plaatv ... Rohkem

Kasutaja ikoon ID73479
Pakkuja profiil Väike nool paremale
35 000€ Sisaldab KM Sisaldab KM 13.05.2023 Vestlus (0)

Pakkumise kirjeldus:

Tere

Hea meelega teostame tööd teie jaoks.Tööd tehakse kvaliteetselt ja võimalikult kiiresti.Pakume 5 aastane garantii oma töödele.

See hind sisaldab kõiki nimekirjas olevaid soovitud tööd.
Spetsialisti tulek teie objektile, hinnapakkumise ja tööteostamise lepingu koostamine.

Minu firma tegeleb katuste, fassaadide ehitusega ning üldehi ... Rohkem

Küsimused hanke korraldajale

Küsimus: private ID53401   11.05.2023 07:08
Tere. Kas väljakaevatav pind tuleb ära vedada?
Lugupidamisega

Teavita reeglite rikkumisest

Korraldaja vastus: 11.05.2023 09:24

ei tule, jääb krundile

Teavita reeglite rikkumisest

Küsimus: private ID59430   11.05.2023 21:28
Mis pinnasega tegu on kuhu vundament tuleb?

Teavita reeglite rikkumisest

Korraldaja vastus: 12.05.2023 10:08

Savi

Teavita reeglite rikkumisest

Lisa küsimus

Lisa küsimus

Minu pakkumine

Reeglid

Pakkumise kirjelduse väli on mõeldud pakkumise detailsemaks lahti kirjutamiseks. Pikema teksti mugavaks sisestamiseks klikkige kasti paremal ülaservas oleval ikoonil.
Pakkumist tehes on keelatud postitada enda kontaktandmeid (nimi, telefon, aadress jne). Me jälgime ja analüüsime pakkumisi, et vältida pettuseid ja reeglite rikkumisi.
Rikkumise puhul kasutajakonto blokeeritakse.

 

Vanemad teated:

Vaata kõiki

Sellel veebilehel kasutatakse küpsiseid. Kasutamist jätkates nõustute küpsiste kasutamisega.

Sulge
 
Minu pakkumine

Reeglid

Pakkumise kirjelduse väli on mõeldud pakkumise detailsemaks lahti kirjutamiseks. Pikema teksti mugavaks sisestamiseks klikkige kasti paremal ülaservas oleval ikoonil.
Pakkumist tehes on keelatud postitada enda kontaktandmeid (nimi, telefon, aadress jne). Me jälgime ja analüüsime pakkumisi, et vältida pettuseid ja reeglite rikkumisi.
Rikkumise puhul kasutajakonto blokeeritakse.