+ Lisa oma töö      

Otsid ehitajat "Torutööd" valdkonnast?

Parima pakkumise ja teostaja leidmiseks lisa oma töö.

Eramajade vee- ja kanalisatsiooni välis- ja sisetööd

ID 81511

769 vaatamist

Prindi

  • check Pakkumiste tegemine
    kuni 12.05.2023
  • check Võitja valik kuni
    19.05.2023
  • 3 Töö teostamine
    ja hinnang
Hanke lõpp: R, 12. mai, 2023
Maakond: Harjumaa
Linn: Tallinn
Tööde algus: E, 22. mai, 2023 (Soovituslik)
Tööde lõpp: R, 30. juuni, 2023 (Soovituslik)
Ehitusmaterjalid: Töö tellija poolt
Soovin pakkumisi: Tüki- või ühikuhinda

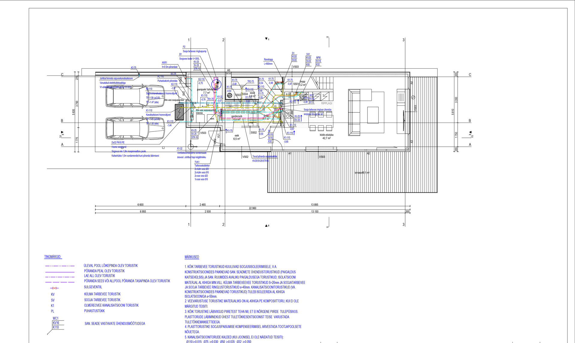
Töö sisu

Vajatakse 2 eramaja vee- ja kanalisatsioonitööde teostamiseks ettevõtet.
Materjal on töövõtja poolt.

Kinnistud asuvad Haaberstis, Tallinnas.

Välistööd - vesi (keevismuhv); kanalisatsioon (kanalisatsioonikaev kinnistul); drenaaz 2 kaevuga (ümber vundamendi); sadevesi eraldi kaevuga kinnistul.

Sisetööd - vesi, kanalisatsioon, põrandaküte

Pildid, video ja failid

Hanke korraldaja: eraisik ID74455

Pakkumised

Pakkumisi kokku: 4

Ettevõte Summa Käibemaks Lisatud Vestlus
Kasutaja ikoon ID71237
Pakkuja profiil Väike nool paremale
15 988€ KM lisandub KM lisandub 10.05.2023 Vestlus (0)

Pakkumise kirjeldus:

Hinna sisse kuulub:
- Kogu materjal
- kogu maja sise vee-, kanalisatsiooni- ja põrandakütte ehitustööd
- Tuletõkke tööd ja materjal
- Torude isolatsioon (vesi, kanal, küte)
- Põrandaküte ajamid ja seina termostaadid
- san. seadmete paigaldus

Hinna sisse ei kuulu:
- soojasõlm/katel
- välistööd (vajadusel saame pakkuda, kuid eelnevalt ... Rohkem

Kasutaja ikoon ID73479
Pakkuja profiil Väike nool paremale
17 000€ Sisaldab KM Sisaldab KM 12.05.2023 Vestlus (0)

Pakkumise kirjeldus:

Tere

Hea meelega teostame tööd teie jaoks.Tööd tehakse kvaliteetselt ja võimalikult kiiresti.Pakume 5 aastane garantii oma töödele.

See hind sisaldab kõiki nimekirjas olevaid soovitud tööd.
Spetsialisti tulek teie objektile, hinnapakkumise ja tööteostamise lepingu koostamine.

Minu firma tegeleb katuste, fassaadide ehitusega ning üldehi ... Rohkem

Kasutaja ikoon ID67749
Pakkuja profiil Väike nool paremale
16 890€ KM lisandub KM lisandub 12.05.2023 Vestlus (0)

Pakkumise kirjeldus:

Pakkumine sisaldab:

* Kanalisatsiooni PVC dn110 muhvtoru + liitmike
* Kanalisatsioonikaevud 400/315 2tk
* Survetoru de32 + liitmike
* Drenaazitoru filterkangaga 90/82
* Drenaazikaevusid 3tk
* Kaevatöid
* Täitematerjali ( liiv, killustik )
* Teostusjoonist
* Sisekanalisatsioonitorusid + liitmike
* Renntrappe 900 2tk
* Trapid
* Iso ... Rohkem

Kasutaja ikoon ID72301
Pakkuja profiil Väike nool paremale
6 600€ Ei ole KMKR Ei ole KMKR 12.05.2023 Vestlus (0)

Pakkumise kirjeldus:

Tere!

HP välis Vee- ja kanalisatsiooni torustiku ehitamist koos täitmistega ja dokumentatsiooniga.

Hind sisaldab:

1) Torustiku ja puistematerjalid
2) Kraavi väljakaeve ja sobimatu pinnase utiliseerimine.
3) Torustiku aluste tegemine vastavalt nõuetele. (Kild fr4/16 või fr 8/16.)
4) Vesi, kanal, sade ja drenaaz torustiku paigaldamine.
5) Tag ... Rohkem

Küsimused hanke korraldajale

Küsimus: private ID38971   08.05.2023 13:28
Tere! Kas pakkuda võib ka ainult väliosa? Lisaks sooviks rohkem jooniseid väliosa kohta, näiteks teise maja asendiplaani ja ka mõõdud võiks joonisel olla või eraldi mahutabel.

Teavita reeglite rikkumisest

Korraldaja vastus: 08.05.2023 16:36

Voib pakkuda ka ainult välidosa. Teine maja on kohe kõrval ja identne.

Teavita reeglite rikkumisest

Küsimus: private ID72301   09.05.2023 17:31
Tere!

välistrassidele on suht raske teha pakkumist, sest pole teada jm.
Kas on võimalik lisada toristuku metraazi.

Teavita reeglite rikkumisest

Korraldaja vastus:
Hanke korraldaja ei ole küsimusele veel vastanud

Lisa küsimus

Lisa küsimus

Minu pakkumine

Reeglid

Pakkumise kirjelduse väli on mõeldud pakkumise detailsemaks lahti kirjutamiseks. Pikema teksti mugavaks sisestamiseks klikkige kasti paremal ülaservas oleval ikoonil.
Pakkumist tehes on keelatud postitada enda kontaktandmeid (nimi, telefon, aadress jne). Me jälgime ja analüüsime pakkumisi, et vältida pettuseid ja reeglite rikkumisi.
Rikkumise puhul kasutajakonto blokeeritakse.

 

Teisi töid samas valdkonnas

Valdkonnas "Torutööd" on 2 aktiivset tööd

Kaarhalli soojaku torustiku renoveerimine

Asukoht: Harjumaa, Saue
Aega jäänud: 8h 59 min
Tehtud pakkumisi: 4

Köögi äravoolu paigaldus

Asukoht: Harjumaa, Tallinn
Aega jäänud: 4p 8h
Tehtud pakkumisi: 2

Vanemad teated:

Vaata kõiki

Sellel veebilehel kasutatakse küpsiseid. Kasutamist jätkates nõustute küpsiste kasutamisega.

Sulge
 
Minu pakkumine

Reeglid

Pakkumise kirjelduse väli on mõeldud pakkumise detailsemaks lahti kirjutamiseks. Pikema teksti mugavaks sisestamiseks klikkige kasti paremal ülaservas oleval ikoonil.
Pakkumist tehes on keelatud postitada enda kontaktandmeid (nimi, telefon, aadress jne). Me jälgime ja analüüsime pakkumisi, et vältida pettuseid ja reeglite rikkumisi.
Rikkumise puhul kasutajakonto blokeeritakse.