+ Lisa oma töö      

Otsid ehitajat "Üldehitus" valdkonnast?

Parima pakkumise ja teostaja leidmiseks lisa oma töö.

Eramu fibo5 välisseinte ladumine

ID 81489

606 vaatamist

Prindi

  • check Pakkumiste tegemine
    kuni 11.05.2023
  • check Võitja valik kuni
    18.05.2023
  • 3 Töö teostamine
    ja hinnang
Hanke lõpp: N, 11. mai, 2023
Maakond: Harjumaa
Linn: Tallinn
Tööde algus: E, 22. mai, 2023 (Soovituslik)
Tööde lõpp: R, 28. juuli, 2023 (Soovituslik)
Ehitusmaterjalid: Töö tellija poolt
Soovin pakkumisi: Tüki- või ühikuhinda

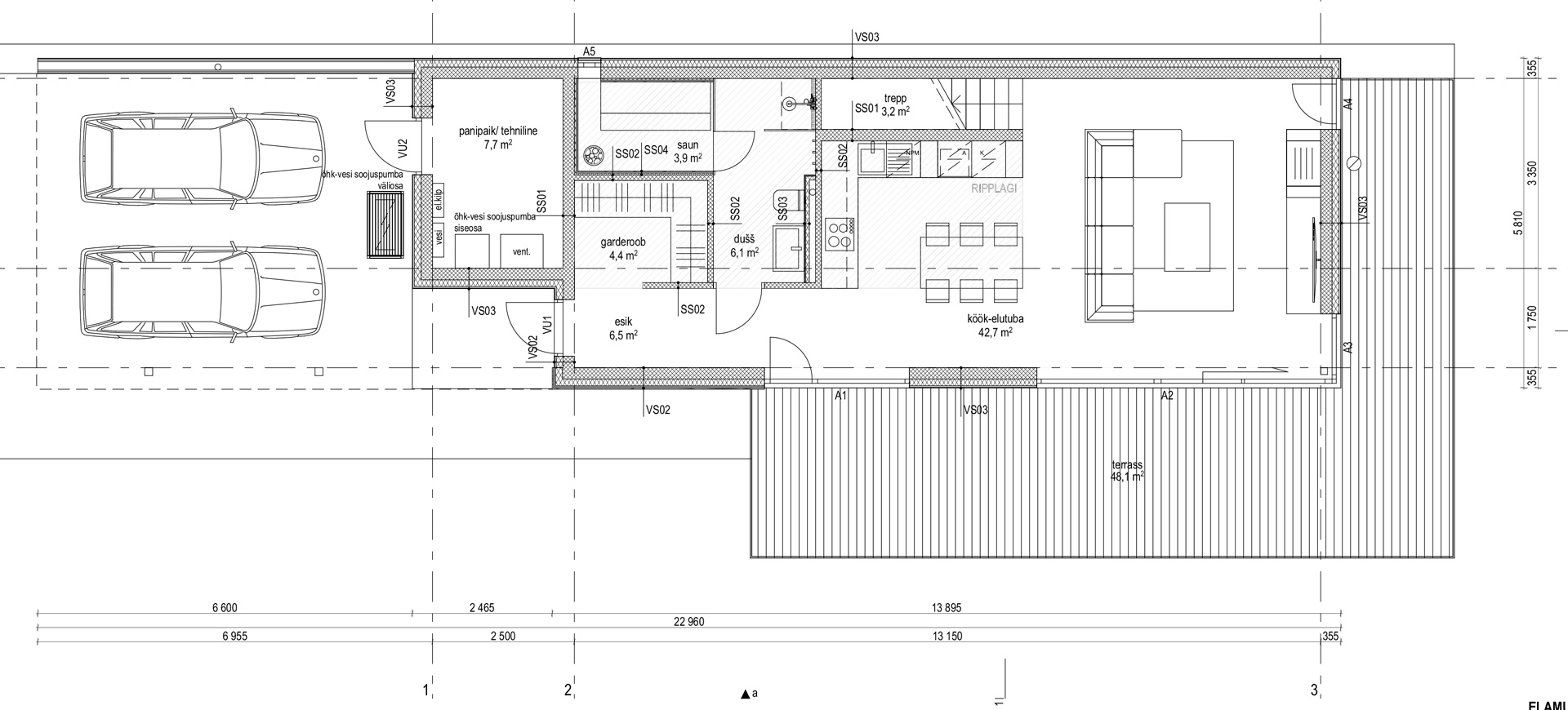
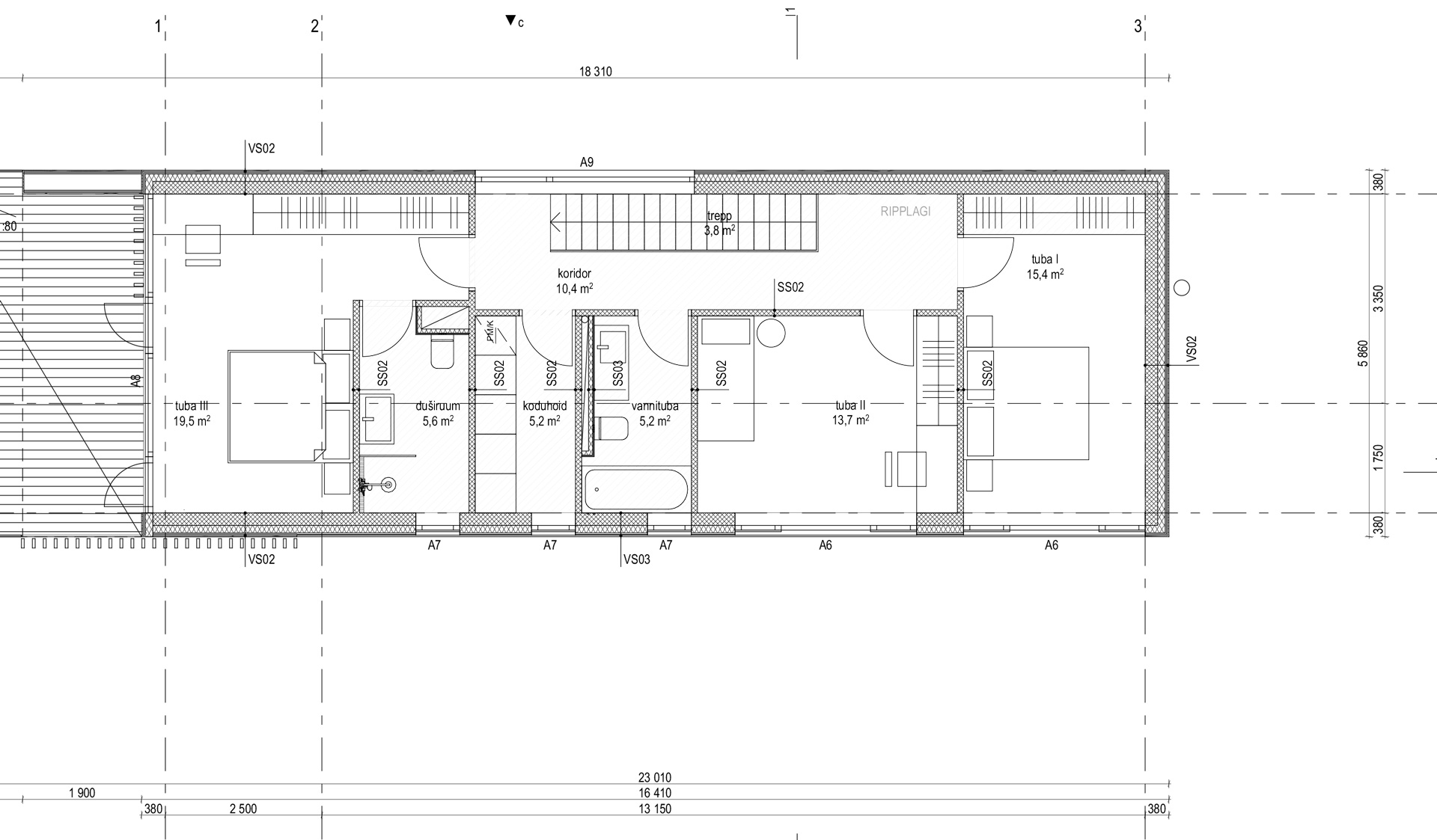
Töö sisu

Sooviks leida eramu ehitusel töötegijat. Materjal töö tellija poolt.

Columbia190 kivi ladumine, armeermine ja betoneerimine - 30m2
Fibo5 välisseinte ladumine ca 200m2
Õõnespaneelide paigaldus ja monolitiseerimine - vahelagi 88m2 ja katuslagi 88m2

Pildid, video ja failid

Hanke korraldaja: eraisik ID74455

Pakkumised

Pakkumisi kokku: 8

Ettevõte Summa Käibemaks Lisatud Vestlus
Kasutaja ikoon ID73479
Pakkuja profiil Väike nool paremale
15 000€ Sisaldab KM Sisaldab KM 04.05.2023 Vestlus (0)

Pakkumise kirjeldus:

Tere

Hea meelega teostame tööd teie jaoks.Tööd tehakse kvaliteetselt ja võimalikult kiiresti.Pakume 5 aastane garantii oma töödele.

See hind sisaldab kõiki nimekirjas olevaid soovitud tööd.
Spetsialisti tulek teie objektile, hinnapakkumise ja tööteostamise lepingu koostamine.

Minu firma tegeleb katuste, fassaadide ehitusega ning üldehi ... Rohkem

Kasutaja ikoon ID69060
Pakkuja profiil Väike nool paremale
4 000€ KM lisandub KM lisandub 04.05.2023 Vestlus (0)

Pakkumise kirjeldus:

Tere

Töö sisaldab töõraha,tööristad

Töö kestab 2-3 nädalat

Kogemus 11 aastat

Lg

Kasutaja ikoon ID50329
Pakkuja profiil Väike nool paremale
8 600€ KM lisandub KM lisandub 05.05.2023 Vestlus (0)
Kasutaja ikoon ID50714
Pakkuja profiil Väike nool paremale
8 000€ Sisaldab KM Sisaldab KM 05.05.2023 Vestlus (0)
Kasutaja ikoon ID48007
Pakkuja profiil Väike nool paremale
7 900€ Ei ole KMKR Ei ole KMKR 07.05.2023 Vestlus (0)
Kasutaja ikoon ID50594
Pakkuja profiil Väike nool paremale
22 000€ KM lisandub KM lisandub 10.05.2023 Vestlus (0)

Pakkumise kirjeldus:

Tere,

Hinnapakkumine koostatud vastavalt hanke kirjeldusele.

Lgp. Taivo

Kasutaja ikoon ID72809
Pakkuja profiil Väike nool paremale
19 200€ KM lisandub KM lisandub 11.05.2023 Vestlus (0)
Kasutaja ikoon ID70588
Pakkuja profiil Väike nool paremale
12 000€ Ei ole KMKR Ei ole KMKR 11.05.2023 Vestlus (0)

Pakkumise kirjeldus:

Tere,

Pakkumine küsitud töödele.

Lugupidamisega,

jm.

Küsimused hanke korraldajale

Küsimus: private ID54654   05.05.2023 07:49
Tere. Paar täpsustavat küsimust. Kas parapet tuleks ka laduda ja kas ootate ka katuse tegemist või lõppeks katuslae monolitiseerimisega.
Lugupidamisega: R.

Teavita reeglite rikkumisest

Korraldaja vastus: 05.05.2023 10:20

Parapet vajalik samuti laduda. Parabet bauroc plokist. Katuslae tegemine tõuseb kindalsti ka päevakorda. Kui oskused on olemas, saame kindlasti ka sellest rääkida.

Teavita reeglite rikkumisest

Küsimus: private ID4350   06.05.2023 23:01
Tere

KasTeie projektis on kindlasti kirjas FIBO 5 välisseinteks?

Primat

A.K

Teavita reeglite rikkumisest

Korraldaja vastus: 08.05.2023 16:37

fibo5 jah, kannab koormused ära.

Teavita reeglite rikkumisest

Küsimus: private ID70588   11.05.2023 10:51
Tere,

Palun täpsustage piirkonda.

Lugupidamisega,

jm.

Teavita reeglite rikkumisest

Korraldaja vastus:
Hanke korraldaja ei ole küsimusele veel vastanud

Lisa küsimus

Lisa küsimus

Minu pakkumine

Reeglid

Pakkumise kirjelduse väli on mõeldud pakkumise detailsemaks lahti kirjutamiseks. Pikema teksti mugavaks sisestamiseks klikkige kasti paremal ülaservas oleval ikoonil.
Pakkumist tehes on keelatud postitada enda kontaktandmeid (nimi, telefon, aadress jne). Me jälgime ja analüüsime pakkumisi, et vältida pettuseid ja reeglite rikkumisi.
Rikkumise puhul kasutajakonto blokeeritakse.

 

Teisi töid samas valdkonnas

Valdkonnas "Üldehitus" on 41 aktiivset tööd

Maja värvimine

Asukoht: Harjumaa, Saue
Aega jäänud: 1h 40 min
Tehtud pakkumisi: 19

Vaja võtta üles 11jm 40cm laiuselt teekivi. Kaevata 40cm sügavune kraav elektrikaabli paigalduseks.

Asukoht: Harjumaa, Tallinn
Aega jäänud: 1h 40 min
Tehtud pakkumisi: 7

Vanemad teated:

Vaata kõiki

Sellel veebilehel kasutatakse küpsiseid. Kasutamist jätkates nõustute küpsiste kasutamisega.

Sulge
 
Minu pakkumine

Reeglid

Pakkumise kirjelduse väli on mõeldud pakkumise detailsemaks lahti kirjutamiseks. Pikema teksti mugavaks sisestamiseks klikkige kasti paremal ülaservas oleval ikoonil.
Pakkumist tehes on keelatud postitada enda kontaktandmeid (nimi, telefon, aadress jne). Me jälgime ja analüüsime pakkumisi, et vältida pettuseid ja reeglite rikkumisi.
Rikkumise puhul kasutajakonto blokeeritakse.