+ Lisa oma töö      

Otsid ehitajat "Siseviimistlustööd" valdkonnast?

Parima pakkumise ja teostaja leidmiseks lisa oma töö.

Hange on lõppenud!

Võitjaks osutus kasutaja ID 65879

Pahteldamine

ID 81055

520 vaatamist

Prindi

  • check Pakkumiste tegemine
    kuni 25.04.2023
  • check Võitja valik kuni
    25.04.2023
  • 3 Töö teostamine
    ja hinnang
Hanke lõpp: T, 25. aprill, 2023
Maakond: Harjumaa
Linn: Tallinn
Tööde algus: E, 01. mai, 2023 (Kohustuslik)
Tööde lõpp: K, 10. mai, 2023
Ehitusmaterjalid: Töö tegija poolt
Soovin pakkumisi: Summa kogu projektile

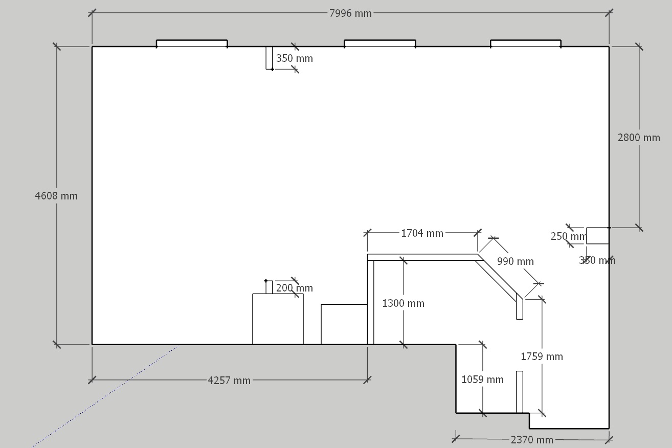
Töö sisu

Otsin teostajat pahteldustöödele terves korteris.

Laepind 37,6 m2
Lagede kõrgus 2,7m
Seinapind ca 90 m2
Aknapõsed 3 tk
Uksepõsed 2 tk
Asukoht Pelgulinn, Õle tnv (2 korrus)

*Objekt antakse üle ja võetakse vastu koristatuna ja tühjana
*Tööde teostamise aeg 01.05-10.05
*Võimalik arveldada eraisikult-eraisikuga
*Pakkumine koos materjalidega

Pildid, video ja failid

Hanke korraldaja: ettevõte ID68527

Pakkumised

Pakkumisi kokku: 4

Ettevõte Summa Käibemaks Lisatud Vestlus
Kasutaja ikoon ID73654
Pakkuja profiil Väike nool paremale
4 310€ Sisaldab KM Sisaldab KM 23.04.2023 Vestlus (0)

Pakkumise kirjeldus:

Hinnapakkumine sisaldab pahteldamist , värvimist , puhastust ja kõik vajalikud materjalid kõik
Töödele 2 aastane garantii
Lugupidamisega K.K.

Kasutaja ikoon ID73102
Pakkuja profiil Väike nool paremale
3 450€ Sisaldab KM Sisaldab KM 24.04.2023 Vestlus (1)

Pakkumise kirjeldus:

Pakkumine sisaldab tööjõudu ja materjale. Värvimine, pahteldamine, kruntvärv. Seinavärv teie valikul.

Kasutaja ikoon ID65879
Pakkuja profiil Väike nool paremale
1 300€ Ei ole KMKR Ei ole KMKR 24.04.2023 Vestlus (3)

Pakkumise kirjeldus:

Hinnapakkumine tehtud hankes kirjeldatud ruutmeetrite peale.Täpsema hinna saab öelda objekti ülemõõtmisel.Hind sisaldab tugevdusnurkade ja vuugilintide paigaldust,pahteldust 3 kihis,lihvimist ning koristust.
Tööde aeg ca nädal.Töid teostab pika kogemusega maaler.(Kogemust 15a)
Arveldamine peale tööde lõppu arve alusel.

Parimat R.

Kasutaja ikoon ID50979
Pakkuja profiil Väike nool paremale
3 000€ Ei ole KMKR Ei ole KMKR 25.04.2023 Vestlus (0)

Küsimused hanke korraldajale

Küsimus: private ID50979   23.04.2023 15:57
Lõppvärvini või ainult pahteldamine?

Teavita reeglite rikkumisest

Korraldaja vastus: 24.04.2023 02:26

Tere.
Ainult pahteldamine

Teavita reeglite rikkumisest

Küsimus: private ID50979   24.04.2023 09:51
Kas laed ka kipsi all?Kas koos lihvimise,akrüülimise ja kruntimisega võib ka pakkumist teha?

Teavita reeglite rikkumisest

Korraldaja vastus:
Hanke korraldaja ei ole küsimusele veel vastanud

Lisa küsimus

Lisa küsimus

Minu pakkumine

Reeglid

Pakkumise kirjelduse väli on mõeldud pakkumise detailsemaks lahti kirjutamiseks. Pikema teksti mugavaks sisestamiseks klikkige kasti paremal ülaservas oleval ikoonil.
Pakkumist tehes on keelatud postitada enda kontaktandmeid (nimi, telefon, aadress jne). Me jälgime ja analüüsime pakkumisi, et vältida pettuseid ja reeglite rikkumisi.
Rikkumise puhul kasutajakonto blokeeritakse.

 

Teisi töid samas valdkonnas

Valdkonnas "Siseviimistlustööd" on 20 aktiivset tööd

Seinte pahteldus ja värvimine

Asukoht: Harjumaa, Türisalu
Aega jäänud: 2p 19h
Tehtud pakkumisi: 7

Korteri seinte ja lagede värvimine, osaline pahteldamine

Asukoht: Harjumaa, Tallinn
Aega jäänud: 19h 19 min
Tehtud pakkumisi: 5

Vanemad teated:

Vaata kõiki

Sellel veebilehel kasutatakse küpsiseid. Kasutamist jätkates nõustute küpsiste kasutamisega.

Sulge
 
Minu pakkumine

Reeglid

Pakkumise kirjelduse väli on mõeldud pakkumise detailsemaks lahti kirjutamiseks. Pikema teksti mugavaks sisestamiseks klikkige kasti paremal ülaservas oleval ikoonil.
Pakkumist tehes on keelatud postitada enda kontaktandmeid (nimi, telefon, aadress jne). Me jälgime ja analüüsime pakkumisi, et vältida pettuseid ja reeglite rikkumisi.
Rikkumise puhul kasutajakonto blokeeritakse.