+ Lisa oma töö      

Otsid ehitajat "Terrasside ehitus" valdkonnast?

Parima pakkumise ja teostaja leidmiseks lisa oma töö.

Terass 61m2

ID 80650

1130 vaatamist

Prindi

  • check Pakkumiste tegemine
    kuni 15.04.2023
  • check Võitja valik kuni
    22.04.2023
  • 3 Töö teostamine
    ja hinnang
Hanke lõpp: L, 15. aprill, 2023
Maakond: Harjumaa
Muu asula: Aruküla
Tööde algus: K, 19. aprill, 2023 (Soovituslik)
Tööde lõpp: K, 03. mai, 2023 (Soovituslik)
Ehitusmaterjalid: Töö tellija poolt
Soovin pakkumisi: Summa kogu projektile

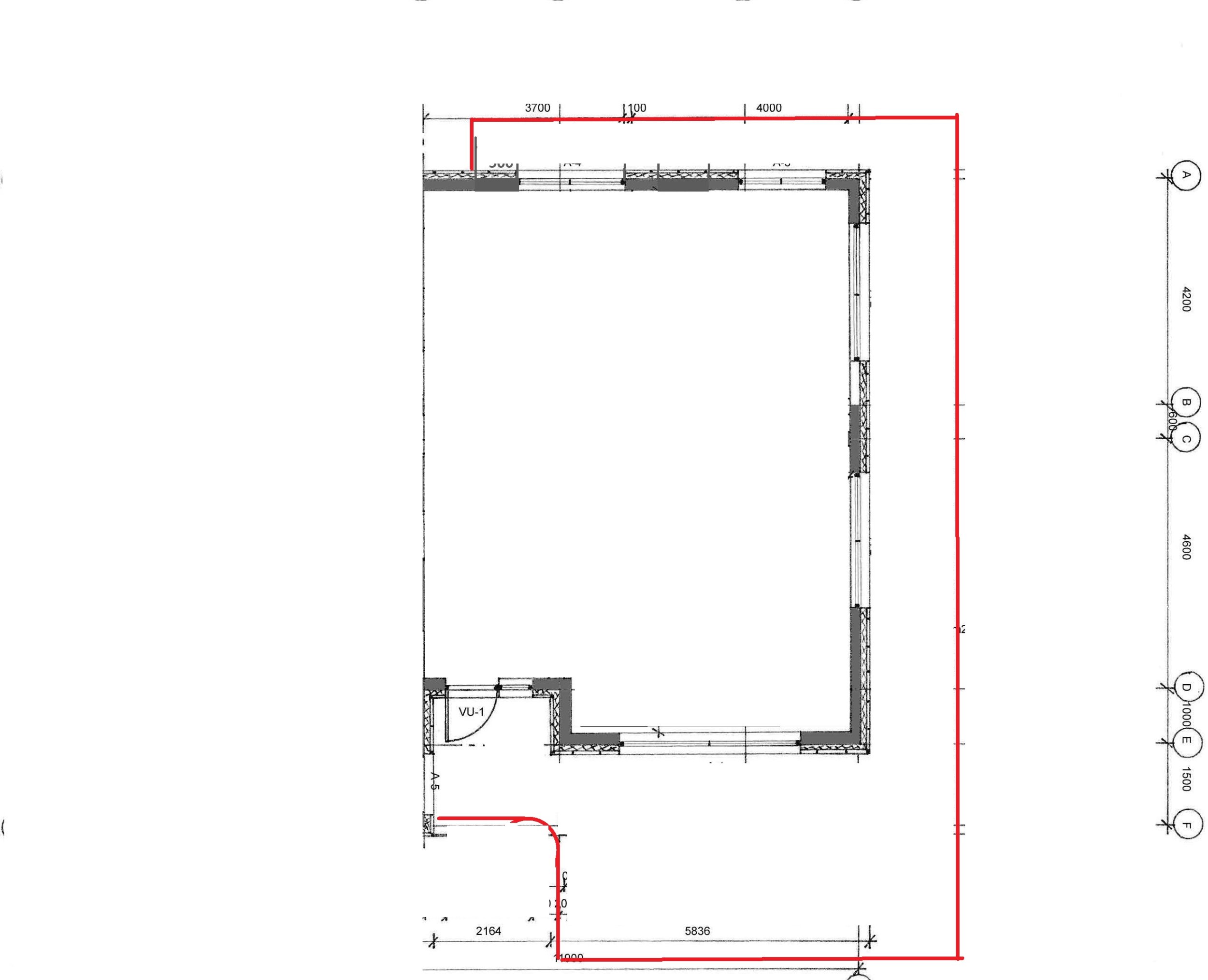
Töö sisu

Terassi pindalaga 61m2.
Aluspõhjaks jääb juba tihendatud liiv + geotekstiil.
Liiva peale 300x300x6 kiviplaat mille peale toetab terassikandur plastik reguleeritav 30-45mm.
Karkass 45x145 sammuga 500 , omavahel ühendatud metallkanduritega (naeltega kinnitus).
Terassilaud PHL 28x120, kinnitus pealt kruvidega.
Terassilauad paigaldatakse paralleelselt seintega.
Üks terassi sisenurk tuleb lahendada sujuva lõikega.
Perimeeter 39m - 2 terassilaua kõrgusega.
Materjalid on kohapeal olemas.

Pildid, video ja failid

Hanke korraldaja: eraisik ID73967

Pakkumised

Pakkumisi kokku: 22

Ettevõte Summa Käibemaks Lisatud Vestlus
Kasutaja ikoon ID56487
Pakkuja profiil Väike nool paremale
5 490€ Sisaldab KM Sisaldab KM 12.04.2023 Vestlus (1)
Kasutaja ikoon ID72774
Pakkuja profiil Väike nool paremale
1 647€ Sisaldab KM Sisaldab KM 13.04.2023 Vestlus (6)

Pakkumise kirjeldus:

Hind vastavalt hankele.
Muuseas: väga hästi läbimõeldud ja tehtud hange. Kõik on kohe selge.

Kasutaja ikoon ID28645
Pakkuja profiil Väike nool paremale
2 300€ Ei ole KMKR Ei ole KMKR 13.04.2023 Vestlus (5)

Pakkumise kirjeldus:

Tere.
Pakkumine Teie hankele .

Lugupidamisega.

Kasutaja ikoon ID71416
Pakkuja profiil Väike nool paremale
2 200€ Ei ole KMKR Ei ole KMKR 13.04.2023 Vestlus (0)

Pakkumise kirjeldus:

Pakkumine Teie poolt kirjeldatud töödele, ei sisalda materjale.

Kasutaja ikoon ID73822
Pakkuja profiil Väike nool paremale
2 400€ KM lisandub KM lisandub 13.04.2023 Vestlus (0)
Kasutaja ikoon ID62796
Pakkuja profiil Väike nool paremale
2 200€ Ei ole KMKR Ei ole KMKR 13.04.2023 Vestlus (2)

Pakkumise kirjeldus:

Tere!

Pakkumine terassi ehituseks, vastavalt soovidele.
Pakkumises töö raha.
Võimalik alustada 19.aprill


Lgp Riivo.

Kasutaja ikoon ID4459
Pakkuja profiil Väike nool paremale
1 200€ Ei ole KMKR Ei ole KMKR 13.04.2023 Vestlus (2)

Pakkumise kirjeldus:

Hinnapakkumine tehtud soovitud töödele hankes oleva info põhjal. materjalid, kinnitusvahendid tellijalt. Alustada saaks 18.04 Parimat

Kasutaja ikoon ID70588
Pakkuja profiil Väike nool paremale
3 100€ Ei ole KMKR Ei ole KMKR 13.04.2023 Vestlus (0)

Pakkumise kirjeldus:

Tere,

Pakkumine küsitud töödele ilma materjalideta.

Töid teostaks õppinud puusepp.

Lugupidamisega,

jm.

Kasutaja ikoon ID50594
Pakkuja profiil Väike nool paremale
6 500€ KM lisandub KM lisandub 13.04.2023 Vestlus (2)

Pakkumise kirjeldus:

Tere,

Hinnapakkumine koostatud vastavalt hanke kirjeldusele.

Lgp. Taivo

Kasutaja ikoon ID4350
Pakkuja profiil Väike nool paremale
1 912€ KM lisandub KM lisandub 13.04.2023 Vestlus (0)
Kasutaja ikoon ID65365
Pakkuja profiil Väike nool paremale
2 500€ Ei ole KMKR Ei ole KMKR 13.04.2023 Vestlus (0)
Kasutaja ikoon ID44254
Pakkuja profiil Väike nool paremale
2 650€ Sisaldab KM Sisaldab KM 13.04.2023 Vestlus (0)

Pakkumise kirjeldus:

Tööga võimalik alustada mai teisel nädalal.

Kasutaja ikoon ID72972
Pakkuja profiil Väike nool paremale
2 500€ Sisaldab KM Sisaldab KM 13.04.2023 Vestlus (0)

Pakkumise kirjeldus:

Tere

Huvi korral küsige pilte tehtud töödest vōi soovitajaid.:)

Tervitades

Kasutaja ikoon ID44954
Pakkuja profiil Väike nool paremale
2 600€ KM lisandub KM lisandub 14.04.2023 Vestlus (0)

Pakkumise kirjeldus:

Tere!

Meie pakkumine vastavalt hankes esitatud info põhjal.
Nagu meile antud tagasiside kinnitab, garanteerime korraliku tulemuse. Hiljuti oleme sarnase loomuga töö teostanud.
Sobivusel võimalus kiiresti regaeerida ning teostada.
Kui esineb teie poolseid küsimusi oleme avatud suhtlusele ning vastame meeleldi.
KM. osa saab teile sobivalt kokku l ... Rohkem

Kasutaja ikoon ID72189
Pakkuja profiil Väike nool paremale
2 500€ KM lisandub KM lisandub 14.04.2023 Vestlus (0)

Pakkumise kirjeldus:

Tere

Alustada saame järgmise nädala teises pooles

Parimat
Ou Jarr

Kasutaja ikoon ID52809
Pakkuja profiil Väike nool paremale
2 550€ Sisaldab KM Sisaldab KM 14.04.2023 Vestlus (0)

Pakkumise kirjeldus:

Tere

Oleme ehitusfirma ,kelle töömeestel 10 + aastat ehitusalast kogemust. Puit on meie lemmik materjal! :)

Ehitame teie soovitud terrassi vastavalt soovile ja joonistele.
Töö kiire ja korralik!

Töö saaks tänase seisuga ette võtta kohe peale hanke lõppu.

Päikest!

Kasutaja ikoon ID52873
Pakkuja profiil Väike nool paremale
1 725€ KM lisandub KM lisandub 14.04.2023 Vestlus (0)

Pakkumise kirjeldus:

Tere,

Pakkumine terrassi ehitusele.

Saaksin alustada 08.05(võibolla ka varem, oleneb ilmadest)


Teostan töid üksinda!


Lp.
Marek

Kasutaja ikoon ID44230
Pakkuja profiil Väike nool paremale
6 700€ Sisaldab KM Sisaldab KM 15.04.2023 Vestlus (0)
Kasutaja ikoon ID31957
Pakkuja profiil Väike nool paremale
2 781,6€ Sisaldab KM Sisaldab KM 15.04.2023 Vestlus (0)

Pakkumise kirjeldus:

Tere,

Pakkumine vastavalt hankes küsitule.

Lugupidamisega

Kasutaja ikoon ID74007
Pakkuja profiil Väike nool paremale
1 500€ Ikoon kell KM lisandub KM lisandub 15.04.2023 Vestlus (0)

Pakkumise kirjeldus:

Tere,

Töödega saan alustada 21.04.
Terrasside ehitamisel palju kogemust, töid teostan üksi.

Lugupidamisega,
Raido

Kasutaja ikoon ID71917
Pakkuja profiil Väike nool paremale
2 250€ Ei ole KMKR Ei ole KMKR 15.04.2023 Vestlus (0)

Pakkumise kirjeldus:

Tere,
Tuleme ehitame terrassi vastavalt projektile.
Objektile tuleb kaks ehitajat.
Anname objekti üle vastavalt teie soovidele.
Soovikorral utiliseerime puidujäägid.
Lugupidamisega,
Genry

Kasutaja ikoon ID73479
Pakkuja profiil Väike nool paremale
3 500€ Sisaldab KM Sisaldab KM 15.04.2023 Vestlus (0)

Pakkumise kirjeldus:

Tere

Hea meelega teostame tööd teie jaoks.Tööd tehakse kvaliteetselt ja võimalikult kiiresti.Pakume 5 aastane garantii oma töödele.
Pakume teile teha plekikatuse paigaldust, topeltvaltssi tehnoloogia (ilma kruvideta). See on kõige parim lahendus oma majale. Garantii on aastateks.
See hind sisaldab kõiki nimekirjas olevaid soovitud tööd.
Spet ... Rohkem

Küsimused hanke korraldajale

Küsimus: private ID52873   12.04.2023 23:03
Tere,

Kas sobiva pakkumise korral sobib töö algus kuupäevaks 08.05?

Terv.
Marek

Teavita reeglite rikkumisest

Korraldaja vastus: 12.04.2023 23:33

Tere,
Põhimõtteliselt sobiks ka al.8.mai

Sven

Teavita reeglite rikkumisest

Lisa küsimus

Lisa küsimus

Minu pakkumine

Reeglid

Pakkumise kirjelduse väli on mõeldud pakkumise detailsemaks lahti kirjutamiseks. Pikema teksti mugavaks sisestamiseks klikkige kasti paremal ülaservas oleval ikoonil.
Pakkumist tehes on keelatud postitada enda kontaktandmeid (nimi, telefon, aadress jne). Me jälgime ja analüüsime pakkumisi, et vältida pettuseid ja reeglite rikkumisi.
Rikkumise puhul kasutajakonto blokeeritakse.

 

Teisi töid samas valdkonnas

Valdkonnas "Terrasside ehitus" on 8 aktiivset tööd

Terrassi ehitus

Asukoht: Harjumaa, Jüri
Aega jäänud: 11p 21h
Tehtud pakkumisi: 8

Olemasoleva terrassi demonteerimine, utiliseerimine, uue ehitus

Asukoht: Harjumaa, Tallinn
Aega jäänud: 21h 48 min
Tehtud pakkumisi: 7

Vanemad teated:

Vaata kõiki

Sellel veebilehel kasutatakse küpsiseid. Kasutamist jätkates nõustute küpsiste kasutamisega.

Sulge
 
Minu pakkumine

Reeglid

Pakkumise kirjelduse väli on mõeldud pakkumise detailsemaks lahti kirjutamiseks. Pikema teksti mugavaks sisestamiseks klikkige kasti paremal ülaservas oleval ikoonil.
Pakkumist tehes on keelatud postitada enda kontaktandmeid (nimi, telefon, aadress jne). Me jälgime ja analüüsime pakkumisi, et vältida pettuseid ja reeglite rikkumisi.
Rikkumise puhul kasutajakonto blokeeritakse.